De Torenflat aan De Groene Loper is een icoon in Maastricht, met een hoogte van maar liefst 59 meter. Op de 14e en tevens bovenste verdieping biedt dit driekamerappartement kilometers ver uitzicht over Maastricht en het Heuvelland, met vele kerktorens en de Sint Pietersberg als herkenningspunten. Het balkon heeft een uitstekende zonligging en grote ramen aan de zuid- en westkant zorgt voor veel lichtinval.
De Torenflat aan De Groene Loper is een icoon in Maastricht, met een hoogte van maar liefst 59 meter. Op de 14e en tevens bovenste verdieping biedt dit driekamerappartement kilometers ver uitzicht over Maastricht en het Heuvelland, met vele kerktorens en de Sint Pietersberg als herkenningspunten. Het balkon heeft een uitstekende zonligging en grote ramen aan de zuid- en westkant zorgt voor veel lichtinval.
Licht, gelijkvloers appartement met uitzicht over heel Maastricht
De Torenflat aan De Groene Loper is een icoon in Maastricht, met een hoogte van maar liefst 59 meter. Op de 14e en tevens bovenste verdieping biedt dit driekamerappartement kilometers ver uitzicht over Maastricht en het Heuvelland, met vele kerktorens en de Sint Pietersberg als herkenningspunten. Het balkon heeft een uitstekende zonligging en grote ramen aan de zuid- en westkant zorgt voor veel lichtinval.
Typering:
De bijna 60 meter hoge Torenflat, ook bekend als de Oranjeflat, wordt beschouwd als een van de eerste woontorens van Zuid-Nederland. Waar vroeger de snelweg A2 zijn weg door Maastricht volgde, is een nieuwe stadswijk ontstaan met waar groen, rust en ruimte volop aanwezig zijn. U woont op loopafstand van het treinstation, de supermarkt en rondom De Groene Loper zijn leuke horecazaken gevestigd. Met de fiets bent u snel in de historische binnenstad, bij de universiteit en het MUMC+.
Indeling:
Souterrain:
In het souterrain zijn de algemene fietsenberging en de privébergingen van de appartementen. Dit appartement heeft een berging van 1,85 x 1,65.
Begane grond:
Op de begane grond is de gezamenlijke entree met het bellentableau, de brievenbussen en video-intercom. In de centrale hal zijn het trappenhuis en twee liften, richting de 14 bovengelegen verdiepingen. Dit appartement is gesitueerd op de 14e verdieping, aan de zonnige zuidkant waardoor het appartement heel licht is.
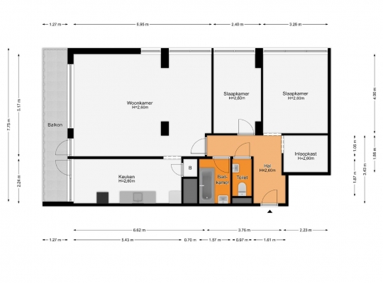
Appartement:
Vlak naast de lift is de voordeur van dit lichte hoekappartement. In de L-vormige hal ligt, net als in bijna het hele appartement, laminaat op de vloer. Aan de linkerzijde zijn de toiletruimte met fonteintje en de badkamer (circa 2,24 x 1,57), ingedeeld met een ligbad/douche en een wastafel. Voor de jassen en andere spullen is er een aparte ruimte (circa 1,86 x 2,23), die ook als werk-/studeerplek of hobbyruimte gebruikt kan worden.
Aan het einde van de hal loopt u de woonkamer (circa 6,95 x 5,17), met grote ramen aan twee zijden en een deur naar het balkon. Geniet van de lichtinval en het fantastische uitzicht over Maastricht. Op de plek waar nu een bureau staat, kan een extra (slaap)kamer worden gerealiseerd. Naast de woonkamer is de dichte keuken (circa 5,43 x 2,24), waar de originele keukenopstelling met spoelbak staat.
Vanuit de keuken en woonkamer is het balkon (circa 7,75 x 1,27) te bereiken, gesitueerd op het zuiden. Vanaf hier ziet u De Groene Loper, het MECC, het ziekenhuis, het Heuvelland, Fort Sint Pieter, de Sint Pietersberg, Céramique en Wyck…. maar er is nog veel meer te bewonderen. Slaapkamer I (circa 4,00 x 3,26) is een ruime tweepersoonskamer met uitzicht richting het station, de Koepelkerk en het historische centrum. Dit uitzicht heeft u ook vanuit slaapkamer II (circa 4,00 x 2,40), die nu als kleedruimte is ingericht.
Algemeen:
Bouwjaar: 1958
Gebruiksoppervlakte wonen: circa 92 m2, inhoud circa 298 m3
VvE bijdrage: € 330,- per maand inclusief voorschot stookkosten, opstal- brand- en glasverzekering, water, onderhoud gemeenschappelijke ruimtes, reservering en verenigingskosten
Parkeren aan de voorzijde van het gebouw middels een parkeervergunning
Vernieuwde blokverwarming (eind 2022) met individuele warmtemeters
Ruim balkon op het zuiden
Fantastisch uitzicht aan twee zijden over Maastricht, richting het Heuvelland
Aanvaarding: in onderling overleg
In de Gemeente Maastricht geldt vanaf 1 oktober 2022 een Huisvestingsverordening - opkoopbescherming voor woningen (https://www.gemeentemaastricht.nl/wonen-en-verhuizen/opkoopbescherming-voor-woningen). Dit kan bij deze woning van toepassing zijn!
Ter bescherming van de belangen van zowel koper als verkoper, wordt uitdrukkelijk gesteld dat een koopovereenkomst met betrekking tot deze onroerende zaak eerst dan tot stand komt nadat koper en verkoper de koopovereenkomst hebben getekend (“schriftelijkheidsvereiste”).
Indien er in de woning huurtoestellen aanwezig zijn zoals CV-ketel, boiler, zonnepanelen, mechanische ventilatie etc. dan dienen deze door de koper te worden overgenomen.
De termijn die wordt opgenomen voor eventuele (overeengekomen) ontbindende voorwaarden (bv. Financiering) is in de regel 4 tot 6 weken na het sluiten van de mondelinge wilsovereenkomst.
De waarborgsom/bankgarantie is 10% van de koopsom. De koper dient deze 3 dagen ná het vervallen van de ontbindende voorwaarden bij de desbetreffende notaris te deponeren.
Koper is te allen tijde gerechtigd voor eigen rekening een bouwkundige keuring te (laten) verrichten dan wel andere adviseurs te raadplegen teneinde een goed inzicht te verkrijgen over de staat van onderhoud.
Deze informatie is door ons, Tijs & Cyril Makelaardij met de nodige zorgvuldigheid samengesteld. Onzerzijds wordt echter geen enkele aansprakelijkheid aanvaard voor enige onvolledigheid, onjuist of anderszins, dan wel de gevolgen daarvan. Alle opgegeven maten en oppervlakten zijn indicatief. Van toepassing zijn de NVM voorwaarden.