Vraagprijs € 745.000,- k.k.
Zeer royale hoekwoning met een grote tuin op een prachtige plek in Scharn. Kent u het groene en rustige Maartveld in Scharn? Hier staat deze zeer ruime hoekwoning met een garage, oprit, 4 slaapkamers en een zeer royale tuin. Er is geen doorgaand verkeer in de straat en aan de voorzijde heeft u prachtig uitzicht op het groen, met hoge bomen en volop speelruimte voor de kinderen. Deze fraaie woning heeft niet alleen een tuin aan drie zijden, maar ook een dakterras op de 2e verdieping.
Zeer royale hoekwoning met een grote tuin op een prachtige plek in Scharn. Kent u het groene en rustige Maartveld in Scharn? Hier staat deze zeer ruime hoekwoning met een garage, oprit, 4 slaapkamers en een zeer royale tuin. Er is geen doorgaand verkeer in de straat en aan de voorzijde heeft u prachtig uitzicht op het groen, met hoge bomen en volop speelruimte voor de kinderen. Deze fraaie woning heeft niet alleen een tuin aan drie zijden, maar ook een dakterras op de 2e verdieping.
Typering:
Aan de andere kant van de straat is een speeltuintje en vanuit de achtertuin is een gezamenlijk parkeerterrein te bereiken. Parkeren kan ook in en voor de garage. Voorzieningen als scholen, sportfaciliteiten, een supermarkt, slager, bakker en het nieuwe stadsdeel De Groene Loper bevinden zich in de nabijheid. In vijf minuten bent u op de A2-autoweg, het station ligt op tien minuten fietsen.
Begane grond:
Niet alleen op het terrein aan de achterzijde, maar ook voor de garage is er de mogelijkheid om te parkeren. Hier is ook de overdekte entree, die toegang geeft tot de hal (circa 7,44 x 1,48). Hier zijn de meterkast, de trapopgang en de toiletruimte met fonteintje. Onder de trap is ruimte voor een kapstok, de tegelvloer is van marmer.
De eetkamer (circa 4,03 x 3,26) staat in open verbinding met de keuken (circa 3,41 x 2,65/2,05), beiden met een grijze tegelvloer. Terwijl u aan tafel zit, geniet u van het mooie uitzicht op het groen van het Maartveld. In de keuken staat een dubbele wandopstelling met inbouwapparatuur van Miele: een gaskookplaat, afzuigkap, combi- oven, vaatwasser en een koelkast. De inpandig te bereiken garage (circa 5,90 x 3,07/2,73) kan deels als provisieruimte annex bijkeuken worden gebruikt. En uiteraard voor de (kinder)fietsen!
Aan de achterzijde is de verrassend grote woonkamer, in een L-vorm en met een schuifpui naar de tuin. De oppervlakte is circa 50 m2, fraai afgewerkt met een visgraat parketvloer en met diverse indelingsopties. Een zithoek, een aparte tv-hoek en een plek voor een fauteuil? Hier kan het allemaal!
De achtertuin, gesitueerd op het westen, is ingericht met twee terrassen en veel groen. In het verlengde van de aanbouw is een (fietsen)berging van circa 3,85 x 2,10 meter, die ook geschikt is voor het tuingereedschap. Er is een eigen achterom, afgesloten met een poort, en vanuit de achtertuin is het binnenterrein met parkeergelegenheid (in mandelig eigendom) te bereiken. Ook in de voortuin ziet u veel groen, merendeels groenblijvend en onderhoudsvriendelijk.
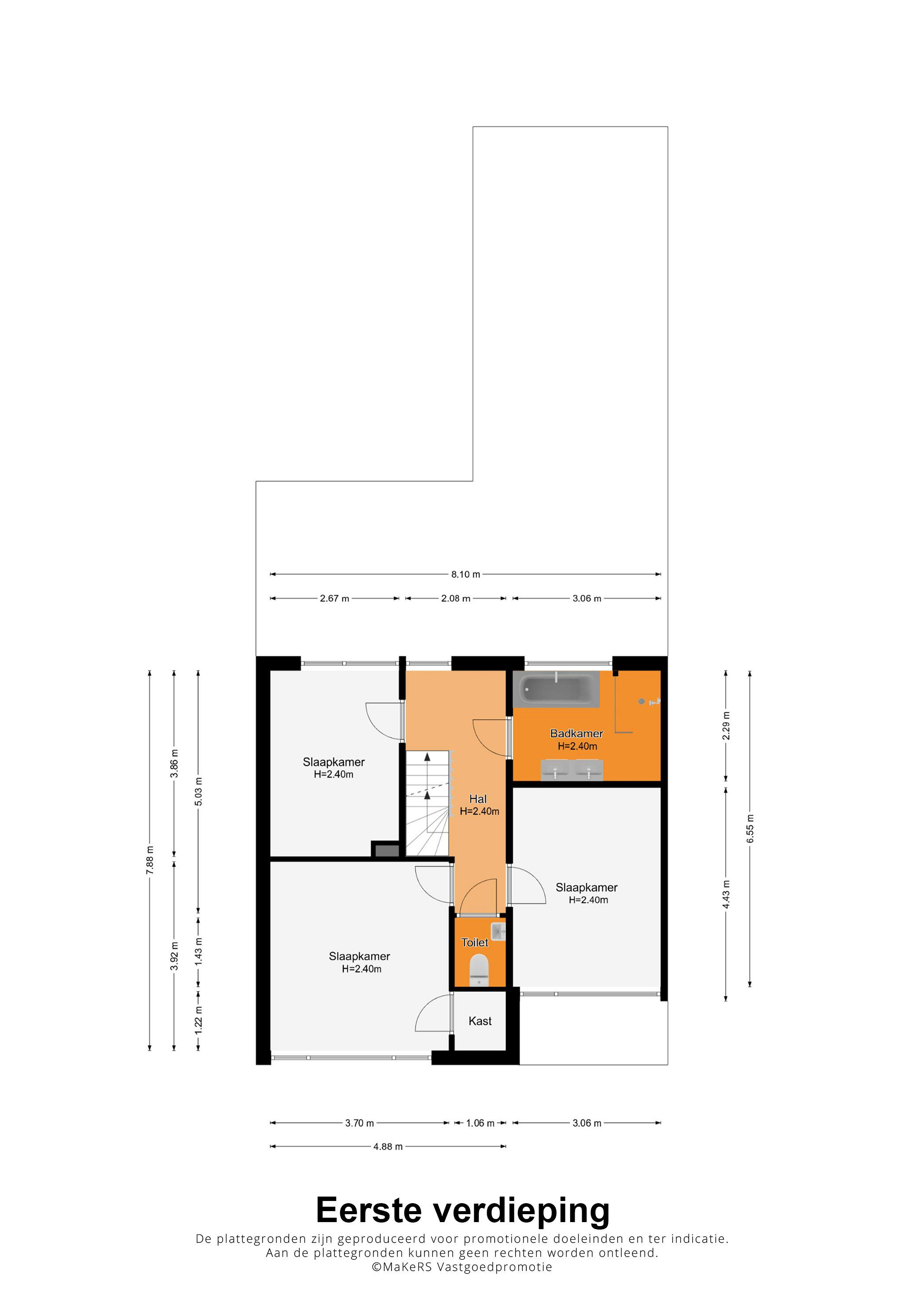
Eerste verdieping:
Vanaf de lichte overloop heeft u toegang tot drie slaapkamers, de badkamer en een separate toiletruimte. De in 2022 vernieuwde badkamer (circa 3,06 x 2,29) is ingedeeld met een ligbad, inloopdouche en een tweepersoons badmeubel. Fraaie details zijn de kranen, designradiator en de spiegel met verlichting.
Slaapkamer I (circa 3,70 x 3,92) met inbouwkast en slaapkamer II (circa 4,43 x 3,06) zijn aan de voorzijde van de woning, met mooi uitzicht op het groene Maartveld. Aan de achterzijde is slaapkamer III (circa 3,86 x 2,67), perfect te gebruiken als kinderkamer of werkkamer.
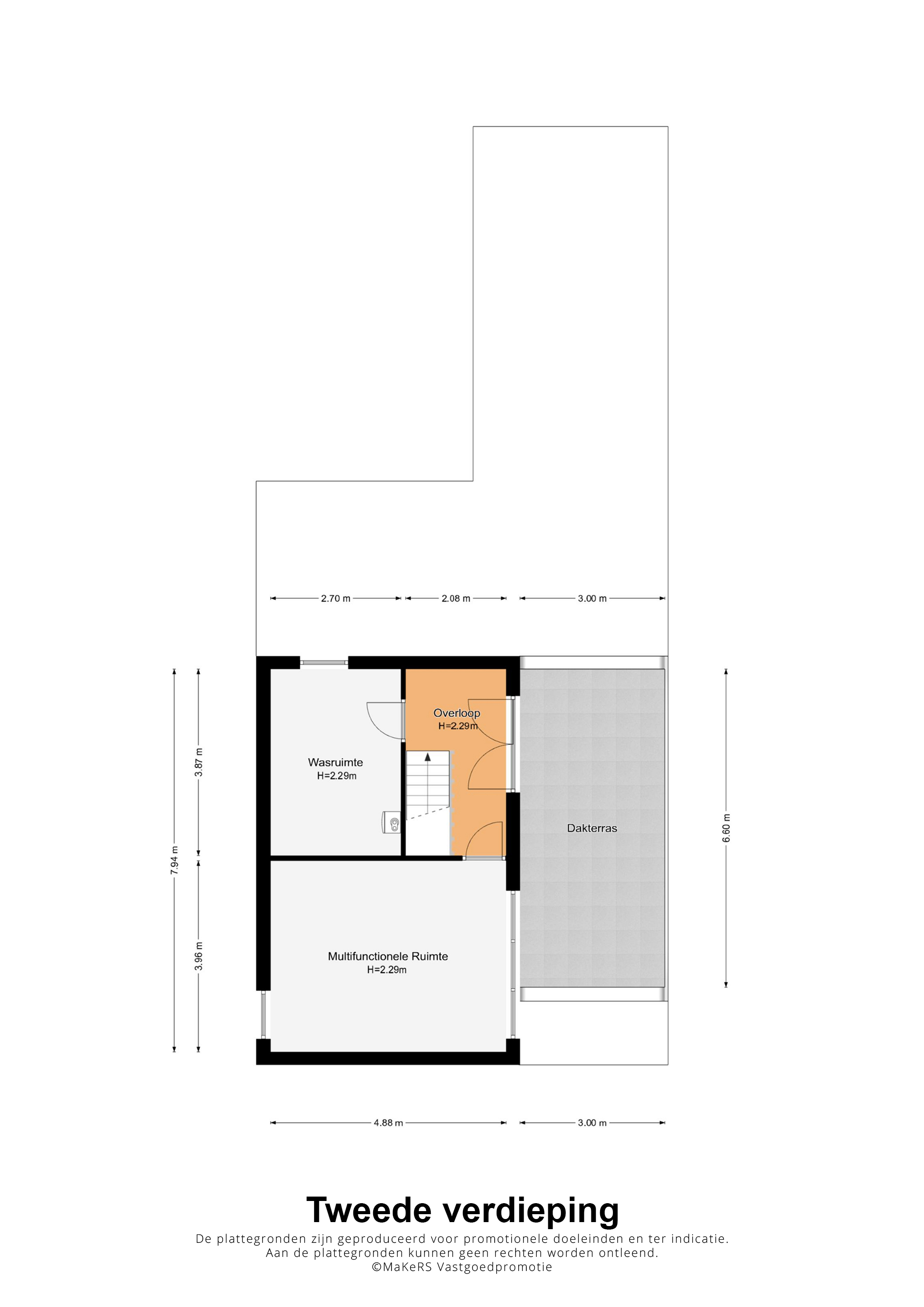
Tweede verdieping:
Er is een vaste trap naar de tweede verdieping waar een overloop, twee ruimtes en het dakterras (circa 6,60 x 3,00) zijn. De ruimte aan de achterzijde is in gebruik als wasruimte/berging (circa 3,87 x 2,70) en slaapkamer IV (circa 4,88 x 3,96) heeft lichtinval vanaf twee kanten.
Algemeen:
Bouwjaar: 2001
Perceeloppervlakte: 301 m2
Gebruiksoppervlakte wonen: circa 188 m2, inhoud circa 710 m3
Verwarming en warm water via een HR-ketel (Intergas Hre, 2019, eigendom)
Op één uitzondering na zijn alle ramen van kamers voorzien van rolluiken, deels elektrisch
Platte daken zijn vernieuwd in september 2025
VvE bijdrage € 60,- per jaar t.b.v. het gezamenlijke parkeerterrein
Energielabel: A
Aanvaarding: in onderling overleg
In de Gemeente Maastricht geldt vanaf 1 oktober 2022 een Huisvestingsverordening - opkoopbescherming voor woningen (dit kan bij deze woning van toepassing zijn).
Ter bescherming van de belangen van zowel koper als verkoper, wordt uitdrukkelijk gesteld dat een koopovereenkomst met betrekking tot deze onroerende zaak eerst dan tot stand komt nadat koper en verkoper de koopovereenkomst hebben getekend (“schriftelijkheidsvereiste”).
Indien er in de woning huurtoestellen aanwezig zijn zoals CV-ketel, boiler, zonnepanelen, mechanische ventilatie etc. dan dienen deze door de koper te worden overgenomen.
De termijn die wordt opgenomen voor eventuele (overeengekomen) ontbindende voorwaarden (bv. Financiering) is in de regel 4 tot 6 weken na het sluiten van de mondelinge wilsovereenkomst.
De waarborgsom/bankgarantie is 10% van de koopsom. De koper dient deze 3 dagen ná het vervallen van de ontbindende voorwaarden bij de desbetreffende notaris te deponeren.
Koper is te allen tijde gerechtigd voor eigen rekening een bouwkundige keuring te (laten) verrichten dan wel andere adviseurs te raadplegen teneinde een goed inzicht te verkrijgen over de staat van onderhoud.
Deze informatie is door ons, Tijs & Cyril Makelaardij met de nodige zorgvuldigheid samengesteld. Onzerzijds wordt echter geen enkele aansprakelijkheid aanvaard voor enige onvolledigheid, onjuist of anderszins, dan wel de gevolgen daarvan. Alle opgegeven maten en oppervlakten zijn indicatief. Van toepassing zijn de NVM voorwaarden.