Vraagprijs € 529.000,- k.k.
Energiezuinige, ruime woning met een garage en 4 slaapkamers. Op een rustige plek in Caberg staat deze in 2020 gebouwde 2-onder-1 kapwoning met een duurzame warmtepomp, 6 zonnepanelen, vloerverwarming, triple glas en het zeer gunstige energielabel A+++. Er is parkeergelegenheid op de oprit en in de aangebouwde garage, die toegang geeft tot de ruime tuin op het westen. Dit huis is klaar voor een duurzame, groene toekomst!
Energiezuinige, ruime woning met een garage en 4 slaapkamers. Op een rustige plek in Caberg staat deze in 2020 gebouwde 2-onder-1 kapwoning met een duurzame warmtepomp, 6 zonnepanelen, vloerverwarming, triple glas en het zeer gunstige energielabel A+++. Er is parkeergelegenheid op de oprit en in de aangebouwde garage, die toegang geeft tot de ruime tuin op het westen. Dit huis is klaar voor een duurzame, groene toekomst!
Typering:
Welkom in de Largostraat, op loopafstand van winkelcentrum Caberg voor de dagelijkse boodschappen en meer. U woont om de hoek van het park, waar kinderen alle ruimte hebben om te spelen. Aan de Clavecymbelstraat stopt de bus, er zijn medische voorzieningen in de buurt en aan de rand van Oud Caberg loopt u zo het Lanakerveld in. Met de fiets bent u zo bij winkelcentrum Brusselse Poort, speeltuin Fort Willem en het historische stadscentrum.
Indeling:
Begane grond:
U zoekt niet te zoeken naar een parkeerplek, want deze woning heeft een oprit en een garage (circa 5,32 x 3,09). Op een paar stappen van de oprit is de voordeur, die toegang geeft tot de hal (circa 3,53 x 1,21). Hier zijn de meterkast, de trapopgang en de toiletruimte met fonteintje.
In de woonkamer (circa 5,76 x 4,57) ligt, net als in de hal en keuken, een mooie laminaatvloer met vloerverwarming. Rustige, warme kleuren bepalen de sfeer en openslaande deuren geven toegang tot de tuin. In de ruime keuken (circa 3,53 x 3,30) staat een lichte opstelling, met een hoge kastenwand en een antracietkleurig aanrechtblad. Alle benodigde apparatuur is ingebouwd: een inductie kookplaat, afzuigkap, combi-oven, vaatwasser en een koelkast.
Deze woning heeft een ruime achtertuin op het westen, met een groot terras en gras. De erfafscheiding is in de afgelopen jaren flink gegroeid en er is een achterom. In de hoek van de tuin staat een berging (circa 2,89 x 2,00), voor het tuingereedschap en andere spullen.
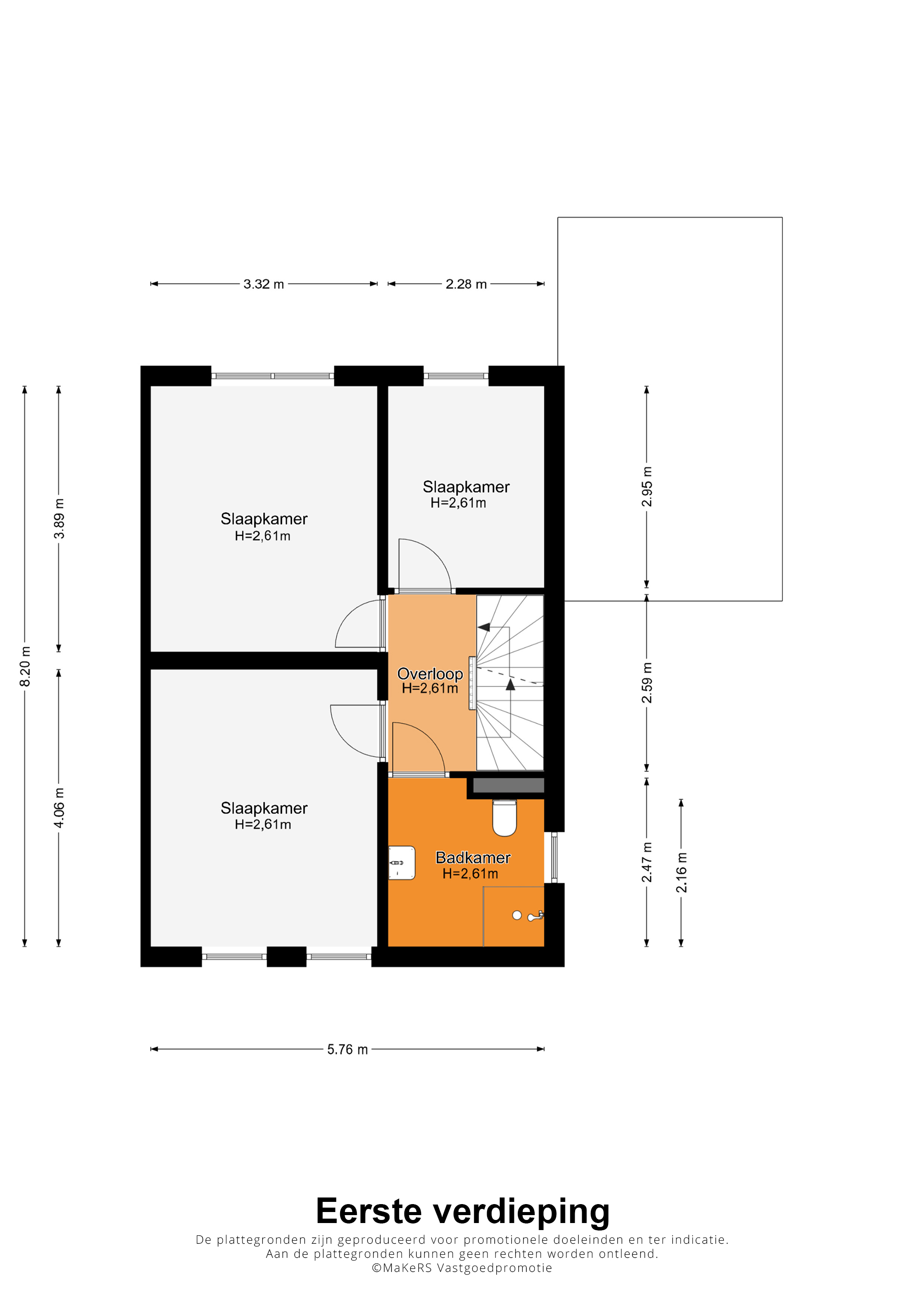
Eerste verdieping:
Vanaf de overloop is er toegang tot drie slaapkamers en de badkamer. Ook op deze verdieping ligt laminaat op de vloer en de kunststof kozijnen zijn voorzien van grote draai-/kiepramen. Aan de achterzijde zijn slaapkamer I (circa 3,89 x 3,32) en slaapkamer II (circa 2,95 x 2,28), beiden met uitzicht op de ruime tuin.
Slaapkamer III ( circa 4,06 x 3,32), de grootste van de drie, bevindt zich aan de voorzijde. Dit geldt ook voor de badkamer (circa 2,74 x 2,28) met een douche, toilet en een wastafel. Het merendeel van de wanden is betegeld in een lichte kleur, en de glazen wand met schuifdeuren maakt de douche optisch groter.
Tweede verdieping:
Slaapkamer IV (circa 25 m2) bevindt zich op de tweede verdieping. Twee dakramen zorgen voor veel lichtinval, er ligt laminaat op de vloer en de nok heeft een hoogte van bijna vijf meter. Deze hoogte biedt de mogelijkheid om een bergvliering te realiseren, om de beschikbare ruimte nog beter te benutten.
Verder zijn er een overloop en een berging (circa 3,37 x 1,70) op deze ruime verdieping. In de berging is de opstelling van de warmtepomp en het WTW-ventilatiesysteem.
Algemeen:
Bouwjaar: 2022
Perceeloppervlakte: 250 m2
Gebruiksoppervlakte wonen: circa 128 m2, inhoud: circa 556 m3
Verwarming en warm water via een warmtepomp (2022, eigendom)
Gehele woning is voorzien van vloerverwarming
Kunststof kozijnen met triple glas
6 zonnepanelen, in totaal 2219Wp
Energielabel: A+++
Aanvaarding: in onderling overleg
De NVM-vragenlijst Deel B en de Lijst van Zaken zijn niet van toepassing, aangezien de woning wordt verkocht met een niet-zelfbewoningsclausule. Verkoper heeft de woning zelf niet bewoond en kan derhalve koper niet informeren over eigenschappen en/of gebreken waarvan hij niet op de hoogte is.
In de Gemeente Maastricht geldt vanaf 1 oktober 2022 een Huisvestingsverordening - opkoopbescherming voor woningen (https://www.gemeentemaastricht.nl/wonen-en-verhuizen/opkoopbescherming-voor-woningen).
Ter bescherming van de belangen van zowel koper als verkoper, wordt uitdrukkelijk gesteld dat een koopovereenkomst met betrekking tot deze onroerende zaak eerst dan tot stand komt nadat koper en verkoper de koopovereenkomst hebben getekend (“schriftelijkheidsvereiste”).
De termijn die wordt opgenomen voor eventuele (overeengekomen) ontbindende voorwaarden (bv. Financiering) is in de regel 4 tot 6 weken na het sluiten van de mondelinge wilsovereenkomst.
De waarborgsom/bankgarantie is 10% van de koopsom. De koper dient deze 3 dagen ná het vervallen van de ontbindende voorwaarden bij de desbetreffende notaris te deponeren. Koper is te allen tijde gerechtigd voor eigen rekening een bouwkundige keuring te (laten) verrichten dan wel andere adviseurs te raadplegen teneinde een goed inzicht te verkrijgen over de staat van onderhoud.
Deze informatie is door ons Tijs & Cyril Makelaardij met de nodige zorgvuldigheid samengesteld.
Onzerzijds wordt echter geen enkele aansprakelijkheid aanvaard voor enige onvolledigheid, onjuist of anderszins, dan wel de gevolgen daarvan. Alle opgegeven maten en oppervlakten zijn indicatief. Van toepassing zijn de NVM voorwaarden.