Vraagprijs € 339.000,- k.k.
Ruim appartement met loggia en 2 slaapkamers op een prachtige plek in Wyck. Op de hoek van de Lage Barakken en het Hoogbrugplein, aan het populaire Wyck, biedt dit lichte 3-kamerappartement alles wat u zoekt om stijlvol te wonen in Maastricht. Door de grote ramen valt veel licht naar binnen, er zijn 2 goede slaapkamers en heel verrassend is de loggia, groot genoeg om met een paar mensen ‘buiten’ te zitten. In een groot deel van het appartement ligt een stijlvolle parketvloer en de keuken, badkamer en toiletruimte maken een zeer verzorgde indruk.
Ruim appartement met loggia en 2 slaapkamers op een prachtige plek in Wyck. Op de hoek van de Lage Barakken en het Hoogbrugplein, aan het populaire Wyck, biedt dit lichte 3-kamerappartement alles wat u zoekt om stijlvol te wonen in Maastricht. Door de grote ramen valt veel licht naar binnen, er zijn 2 goede slaapkamers en heel verrassend is de loggia, groot genoeg om met een paar mensen ‘buiten’ te zitten. In een groot deel van het appartement ligt een stijlvolle parketvloer en de keuken, badkamer en toiletruimte maken een zeer verzorgde indruk.
Typering:
Hier woont u op de grens van het historische Wyck en het moderne stadsdeel Céramique. Winkels, speciaalzaken, een supermarkt, restaurants en cafés zijn binnen handbereik. Verder woont u op loopafstand van het trein-/busstation en de historische binnenstad, aan de andere zijde van de Maas. Het is een van de meest geliefde locaties in Maastricht om te wonen, werken en te genieten van het Bourgondische leven.
Begane grond:
De centrale entree van huisnummer 71 A-B-C-D is op de begane grond. In het eerste deel van de hal zijn de brievenbussen, het bellentableau en de intercom. Op de begane grond is een gezamenlijke fietsenberging en in het souterrain heeft u de beschikking over een privéberging. Met de trap gaat u vervolgens naar de eerste verdieping, waar de entree van dit fraaie appartement is.
Eerste verdieping:
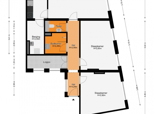
De hal (circa 8,8 m2) is een royale ontvangstruimte met een fraaie afwerking. De parketvloer met blokmotief, die bij verschillende interieurstijlen past, ligt in bijna het hele appartement. Vanuit hier heeft u toegang tot de woonkamer, beide slaapkamers, de badkamer, toiletruimte en de loggia.
De toiletruimte (circa 2,16 x 1,13) is uitgevoerd met lichte wand- en vloertegels, een inbouwreservoir en een fonteintje. Deze kleur tegels ziet u ook in de badkamer (circa 2,09 x 2,16), die ruimte biedt aan een royale douche, een stijlvol wastafelmeubel en een hoge kast.
De woonkamer heeft een speelse indeling en grote ramen aan de zuid-, zuidwest- en westkant. Geniet van de lichtinval en het mooie uitzicht richting het Hoogbrugplein, de Hoge Barakken en het eerste deel van de Hoogbrugstraat.
Naast de woonkamer is de dichte keuken (circa 4,83 x 2,03), waar een lichte wandopstelling staat. De gaskookplaat, afzuigkap, vaatwasser, combi-oven en koelkast zijn ingebouwd. In de bijkeuken/berging (circa 3,41 x 1,71) hangt de HR-ketel (Nefit, 2016, eigendom) en er is genoeg plek om de wasmachine en droger neer te zetten.
Niet alleen de woonkamer en keuken, maar ook de slaapkamers zijn heel ruim en licht. Slaapkamer I is een ruime master bedroom die thans is ingedeeld met een tweepersoonsbed en een bureau. Slaapkamer II, voorzien van een parketvloer, is geschikt als kinderkamer, logeerkamer, werkkamer, kleedruimte en/of garderobe.
Verrassend is de loggia (circa 3,99 x 1,33), te bereiken vanuit de hal. Met een hapje en een drankje binnen handbereik is dit een heerlijke plek om ‘buiten’ te zitten.
Algemeen:
Bouwjaar: 1903
Perceeloppervlakte: n.v.t. (appartementsrecht)
Gebruiksoppervlakte wonen: circa 99 m2, inhoud circa 386 m3
Verwarming en warm water via een HR-ketel (Nefit, 2016, eigendom)
Hardhouten kozijnen met isolatieglas
Gemeentelijk monument
Energielabel: D
Aanvaarding: in onderling overleg
In de Gemeente Maastricht geldt vanaf 1 oktober 2022 een Huisvestingsverordening - opkoopbescherming voor woningen (dit kan bij deze woning van toepassing zijn).
Ter bescherming van de belangen van zowel koper als verkoper, wordt uitdrukkelijk gesteld dat een koopovereenkomst met betrekking tot deze onroerende zaak eerst dan tot stand komt nadat koper en verkoper de koopovereenkomst hebben getekend (“schriftelijkheidsvereiste”).
Indien er in de woning huurtoestellen aanwezig zijn zoals CV-ketel, boiler, zonnepanelen, mechanische ventilatie etc. dan dienen deze door de koper te worden overgenomen.
De termijn die wordt opgenomen voor eventuele (overeengekomen) ontbindende voorwaarden (bv. Financiering) is in de regel 4 tot 6 weken na het sluiten van de mondelinge wilsovereenkomst.
De waarborgsom/bankgarantie is 10% van de koopsom. De koper dient deze 3 dagen ná het vervallen van de ontbindende voorwaarden bij de desbetreffende notaris te deponeren.
Koper is te allen tijde gerechtigd voor eigen rekening een bouwkundige keuring te (laten) verrichten dan wel andere adviseurs te raadplegen teneinde een goed inzicht te verkrijgen over de staat van onderhoud.
Deze informatie is door ons, Tijs & Cyril Makelaardij met de nodige zorgvuldigheid samengesteld. Onzerzijds wordt echter geen enkele aansprakelijkheid aanvaard voor enige onvolledigheid, onjuist of anderszins, dan wel de gevolgen daarvan. Alle opgegeven maten en oppervlakten zijn indicatief. Van toepassing zijn de NVM voorwaarden.