Vraagprijs € 969.000,- k.k.
Statig herenhuis met een kantoor/praktijkruimte, woonhuis en 2 appartementen. In het begin van de Lage Barakken, tegenover het groene pleintje aan de Sint Maartenslaan in Wyck, staat dit royale herenhuis uit 1893. Het stijlvolle pand wordt thans gebruikt als woonhuis, Hair Boutique en er zijn twee inpandige appartementen met een fraaie maisonnette-indeling. Komt er een gezin wonen, dan hebben de kinderen hun eigen appartement en de begane grond kan deels voor een kantoor/praktijk aan huis worden gebruikt. Ook volledige bewoning is mogelijk, net als (gedeeltelijke) verhuur.
Statig herenhuis met een kantoor/praktijkruimte, woonhuis en 2 appartementen. In het begin van de Lage Barakken, tegenover het groene pleintje aan de Sint Maartenslaan in Wyck, staat dit royale herenhuis uit 1893. Het stijlvolle pand wordt thans gebruikt als woonhuis, Hair Boutique en er zijn twee inpandige appartementen met een fraaie maisonnette-indeling. Komt er een gezin wonen, dan hebben de kinderen hun eigen appartement en de begane grond kan deels voor een kantoor/praktijk aan huis worden gebruikt. Ook volledige bewoning is mogelijk, net als (gedeeltelijke) verhuur.
Typering:
Voor een bezoek aan de supermarkt, de vele winkels, sportschool, de historische binnenstad en andere voorzieningen woont u op de perfecte plek. Steek de Wilhelminabrug of de Sint Servaasbrug over, richting de historische binnenstad met de Markt, het Vrijthof en het Onze Lieve Vrouweplein. Om de hoek is de basisschool en verder woont u in de nabijheid van het trein-/busstation, het MUMC+, diverse faculteiten van de universiteit en Plein 1992 met de bibliotheek.
Souterrain:
Vanaf de begane grond heeft u toegang tot het souterrain, die uit drie ruimtes bestaat. Kelder I (circa 3,79 x 1,72), met de trap naar de begane grond, grenst aan kelder II (circa 3,79 x 2,91) en kelder III (circa 4,58 x 4,40). De hoogte van het souterrain bedraagt circa 1,80 meter.
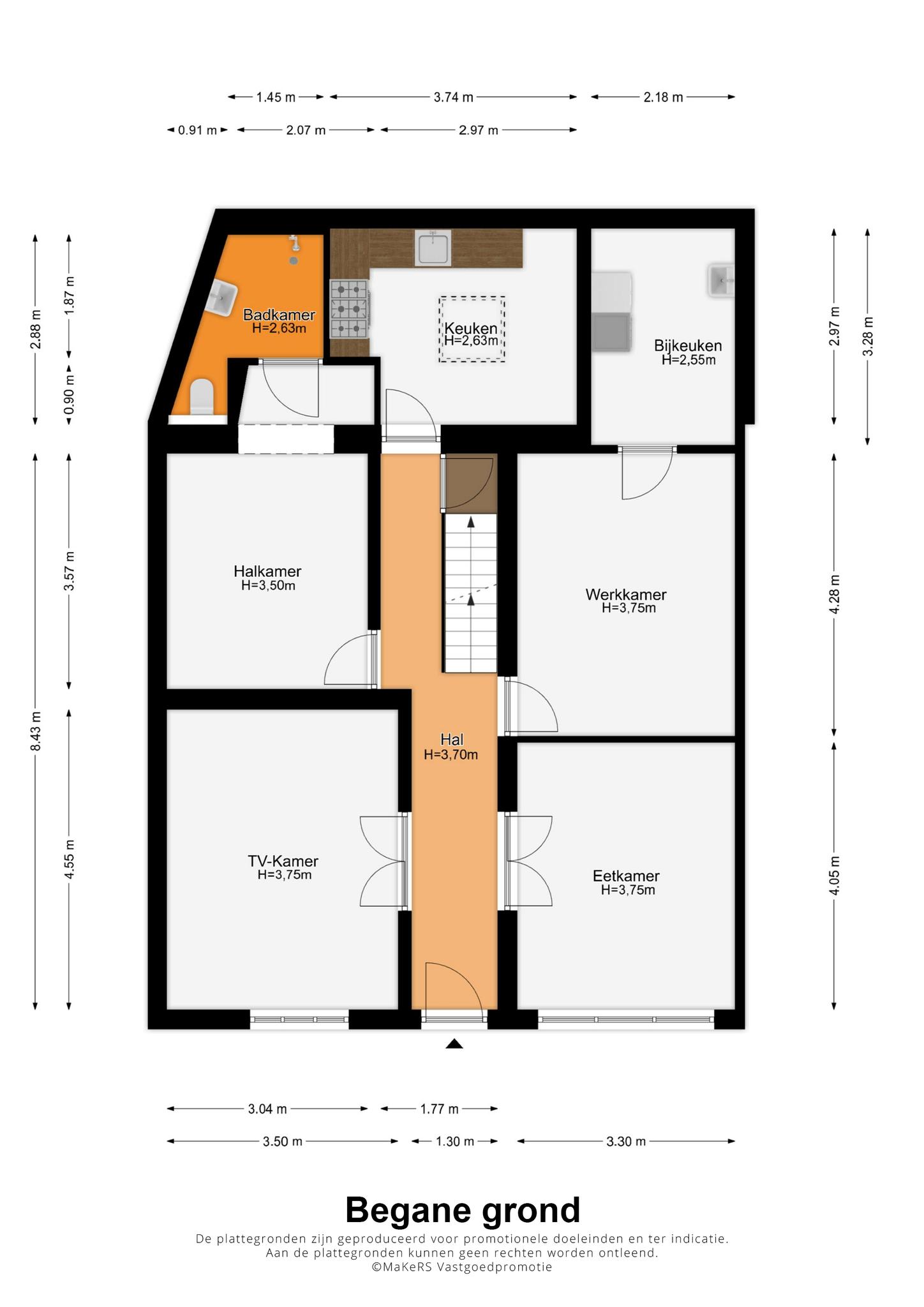
Begane grond:
In het midden van de voorgevel is de entree van dit fraaie herenhuis. De hal (circa 9,9 m2) met marmeren vloer heeft, net als een groot deel van de begane grond, een plafondhoogte van circa 3,75 meter. Aan de voorzijde zijn de tv-kamer (circa 4,55 x 3,50) met een fraaie haard schouw en een ruimte (circa 4,05 x 3,30), die als Hair Boutique wordt gebruikt. Iets verder in de hal zijn de deuren naar de eetkamer (circa 4,28 x 3,30) en de tweede ruimte (circa 3,57 x 3,04) van de kapsalon.
De aanbouw biedt ruimte aan de badkamer, eetkeuken en bijkeuken. De moderne badkamer (circa 3,6 m2) is ingedeeld met een royale douche, toilet, designradiator en een fraaie wastafel. In de naastgelegen eetkeuken (circa 10,2 m2) staat een hoekopstelling met een ingebouwde gaskookplaat, afzuigkap en een vaatwasser. De bijkeuken (circa 3,28 x 2,18) biedt onder andere ruimte aan de wasmachine en droger.
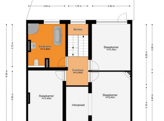
Eerste verdieping:
Volg de fraaie bordestrap naar de eerste verdieping, waar u als eerste op de overloop komt. Aan de overloop grenzen een luxe badkamer en drie slaapkamers, waarvan één een separaat tv-gedeelte heeft. Fraaie elementen zijn de paneeldeuren en het originele trappenhuis.
Slaapkamer I (circa 4,55 x 2,96) en slaapkamer II (circa 4,44 x 3.30) met tv-gedeelte (circa 3,16 x 1,90) bevinden zich aan de voorzijde. Deze ruimte kan ook als kleedruimte of werk/studeerplek worden gebruikt. Aan de achterzijde is slaapkamer III (circa 4,00 x 3,30) met toegang tot het platte dak. De badkamer (circa 3,73 x 3,20), met een houten vloer en fraai kleurgebruik, is ingedeeld met een vrijstaand bad, een luxe ronde douche, een toilet en een wastafel.
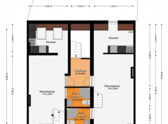
Tweede verdieping:
Verrassend is de indeling op deze verdieping, met twee appartementen. Beide appartementen grenzen aan een gezamenlijke overloop.
Appartement I bevindt zich aan de linkerzijde. De ruimte is ingedeeld met een lichte woonkamer (circa 6,00 x 3,00), een keuken (circa 3,28 x 2,44) met inbouwapparatuur en een badkamer (circa 1,94 x 1,60). Een trap in de woonkamer geeft toegang tot de sfeervolle slaapkamer (circa 5,55 x 3,00 vloeroppervlakte).
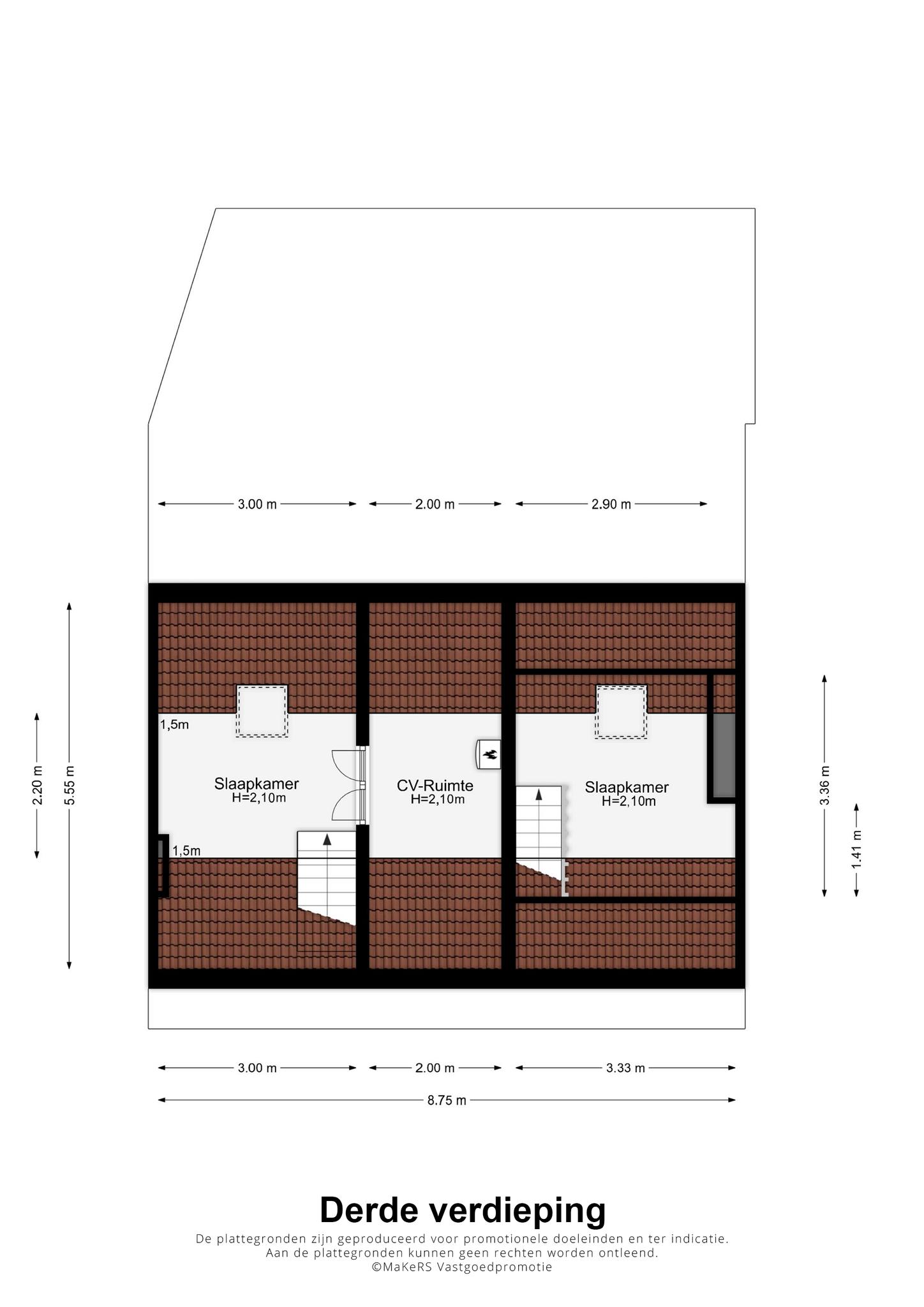
Qua indeling is appartement II, aan de rechterzijde, vergelijkbaar. De woonkamer is circa 6,10 x 3,33 meter en de keuken met inbouwapparatuur is circa 3,32 x 2,44 groot. Ook dit appartement heeft een badkamer (circa 1,94 x 1,58) met een douche, toilet en wastafel. Een trap in de woonkamer geeft toegang tot een slaapkamer (circa 3,36 x 3,30/2,90 vloeroppervlakte). Tussen de slaapkamers van de appartementen is een berging/cv-ruimte.
Algemeen:
Bouwjaar: 1896
Gebruiksoppervlakte wonen: circa 256 m2, inhoud circa 1.159 m3
Verwarming via Cv-ketel (Nefit Ecomline, 2001, eigendom) en een warmtepomp (Quatt, 2024, eigendom)
Vier airco-units (verwarmen en koelen)
Hardhouten en kunststof kozijnen, deels met isolatieglas
Multifunctionele begane grond (wonen en werken), ook in zijn geheel te bewonen
Drie slaapkamers en een badkamer op de eerste verdieping
Twee appartementen op de tweede/derde verdieping met een eigen keuken en badkamer
De woning betreft een monument
Asbest: in het dak is asbest aanwezig
Aanvaarding: in onderling overleg
Ter bescherming van de belangen van zowel koper als verkoper, wordt uitdrukkelijk gesteld dat een koopovereenkomst met betrekking tot deze onroerende zaak eerst dan tot stand komt nadat koper en verkoper de koopovereenkomst hebben getekend (“schriftelijkheidsvereiste”).
Indien er in de woning huurtoestellen aanwezig zijn zoals CV-ketel, boiler, zonnepanelen, mechanische ventilatie etc. dan dienen deze door de koper te worden overgenomen.
De termijn die wordt opgenomen voor eventuele (overeengekomen) ontbindende voorwaarden (bv. Financiering) is in de regel 4 tot 6 weken na het sluiten van de mondelinge wilsovereenkomst.
De waarborgsom/bankgarantie is 10% van de koopsom. De koper dient deze 3 dagen ná het vervallen van de ontbindende voorwaarden bij de desbetreffende notaris te deponeren.
Koper is te allen tijde gerechtigd voor eigen rekening een bouwkundige keuring te (laten) verrichten dan wel andere adviseurs te raadplegen teneinde een goed inzicht te verkrijgen over de staat van onderhoud.
Deze informatie is door ons, Tijs & Cyril Makelaardij met de nodige zorgvuldigheid samengesteld. Onzerzijds wordt echter geen enkele aansprakelijkheid aanvaard voor enige onvolledigheid, onjuist of anderszins, dan wel de gevolgen daarvan. Alle opgegeven maten en oppervlakten zijn indicatief. Van toepassing zijn de NVM voorwaarden.