Vraagprijs € 649.000,- k.k.
Royaal, stijlvol jaren ’30 herenhuis met 5 slaapkamers en 2 badkamers. Op slechts 5 minuten fietsen van het treinstation en de historische binnenstad, in een straat met hoge bomen, staat dit gemoderniseerde herenhuis boordevol karakter en sfeer. De woning is bovendien heel licht en zonnig. Er zijn niet alleen 5 slaapkamers en 2 badkamers, maar ook 2 toiletruimtes en een extra (slaap)kamer op de 3e verdieping. Voor de liefhebber van glas-in lood en paneeldeuren is dit het perfecte huis, met een verrassende achtertuin op het oosten.
Royaal, stijlvol jaren ’30 herenhuis met 5 slaapkamers en 2 badkamers. Op slechts 5 minuten fietsen van het treinstation en de historische binnenstad, in een straat met hoge bomen, staat dit gemoderniseerde herenhuis boordevol karakter en sfeer. De woning is bovendien heel licht en zonnig. Er zijn niet alleen 5 slaapkamers en 2 badkamers, maar ook 2 toiletruimtes en een extra (slaap)kamer op de 3e verdieping. Voor de liefhebber van glas-in lood en paneeldeuren is dit het perfecte huis, met een verrassende achtertuin op het oosten.
Typering:
Basis-, middelbaar- en internationaal onderwijs is in de buurt, net als de Groene Loper en een grote supermarkt. Vlak om de hoek is de bushalte en met de auto rijdt u na iets meer dan 5 minuten op de A2 en A79, richting Eindhoven en Heerlen. De uitval naar het zuiden/Luik en naar het oosten/Gulpen en Vaals is ook heel eenvoudig, snel en soepel.
Souterrain:
Onder het voorste deel van het woonhuis is het souterrain, met een plafondhoogte van circa 2 meter. In kelder I (circa 4,40 x 1,94) is de trap naar de begane grond en kelder II (circa 4,02 x 3,78) is geschikt als wijn-/provisieruimte. In de kelder is een betegelde verhoging voor de wasmachine en droger, met alle aansluitingen. Bijkomend voordeel van die opstelling is dat je niet zoveel hoeft te bukken bij het in- en uitladen van de was
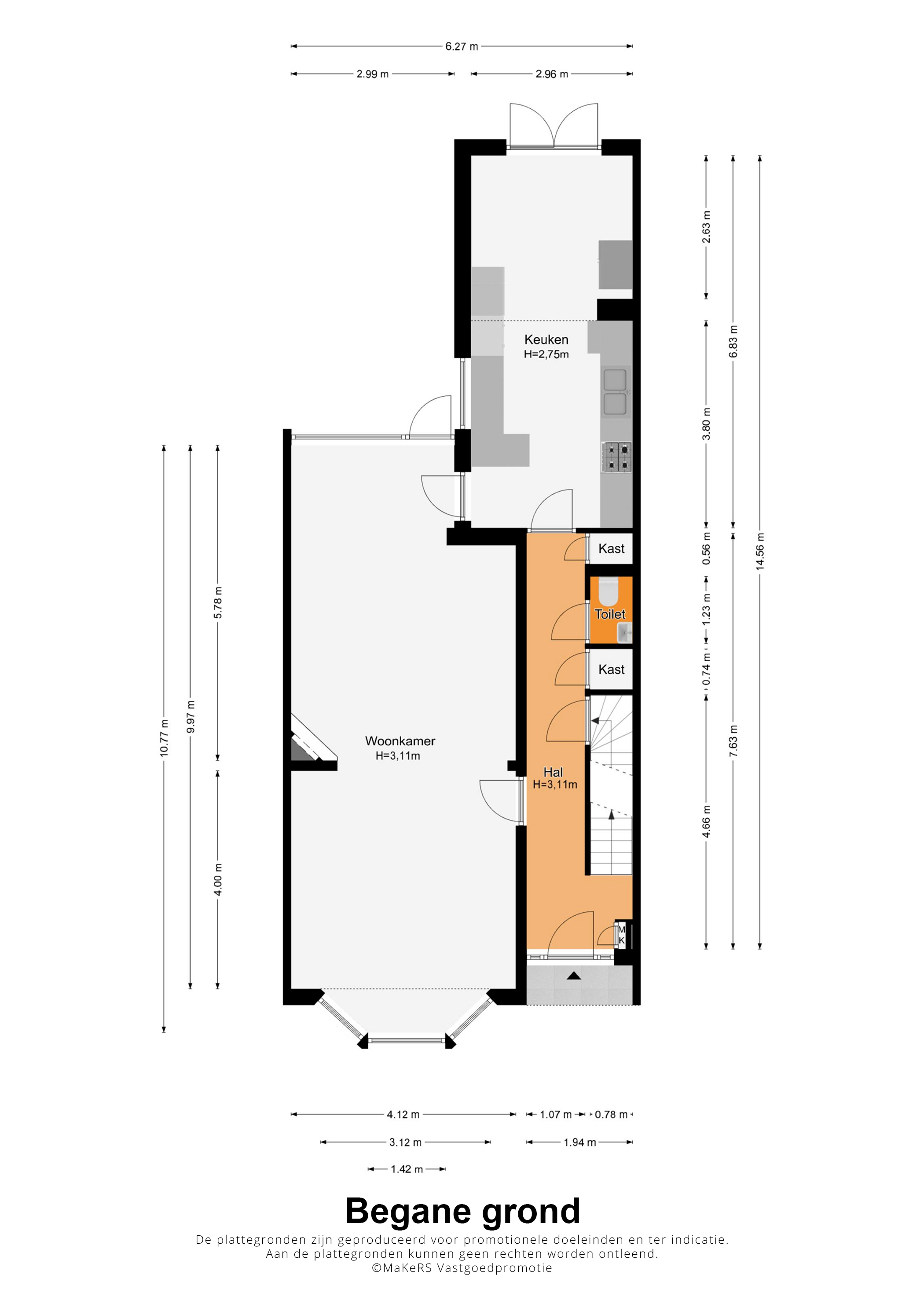
Begane grond:
Niet alleen de overdekte entree, maar ook de royale hal (circa 7,63 x 1,94) is fraai. Het plafond is meer dan 3 meter hoog en u ziet vele originele elementen, van paneeldeuren tot glas-in loodramen. Ook de terrazzovloer is behouden, waardoor de hal het toonbeeld van karakter en sfeer is. In het achterste deel van de hal zijn twee bergkasten en de toiletruimte.
De woonkamer, met een erker aan de voorzijde en een aanbouw aan de achterzijde, heeft een totale oppervlakte van circa 40 m2. Fraaie elementen zijn de glas-in lood ramen, het strakke stucwerk met plafondlijsten, de visgraat parketvloer en de open haard (niet functioneel). Door de grote ramen valt veel licht naar binnen en het uitzicht op de tuin is fraai.
Vanuit de hal en woonkamer is de royale keuken (circa 6,83 x 2,96) te bereiken, met openslaande deuren, voorzien van rolluiken en een zonnescherm, naar de tuin. De keukenopstelling, die uit verschillende elementen bestaat, is uitgevoerd met een gaskookplaat, afzuigkap, een dubbeldeurs koelkast/vriezer, een oven en een vaatwasmachine.
Niet alleen de voortuin, maar ook de achtertuin is heel ruim. Een pluspunt is dat de voortuin, met een groenblijvende haag en bodembedekkers, heel onderhoudsvriendelijk is aangelegd. Dit geldt ook voor de achtertuin, gesitueerd op het oosten. Het ruime, hardhouten terras, over de hele breedte van het huis, is een heerlijke plek om buiten te zitten.
Eerste verdieping:
Volg de fraaie trap naar de overloop, die toegang biedt tot alle vertrekken op deze verdieping. Aan de voorzijde zijn slaapkamer I (circa 3,68 x 3,69) met erker en badkamer I (circa 2,61 x 2,41) met een inloopdouche en twee wastafels met een badmeubel. Op deze verdieping is een separate toiletruimte, aan de andere zijde van de overloop.
Slaapkamer II (circa 3,96 x 4,09) heeft openslaande deuren naar een balkon en vanuit slaapkamer III (circa 3,71 x 2,83) is er toegang tot een dakterras. Slaapkamer II heeft, net als slaapkamer I, twee inbouwkasten. Verder ziet u glas-in loodramen, houten vloeren en paneeldeuren.
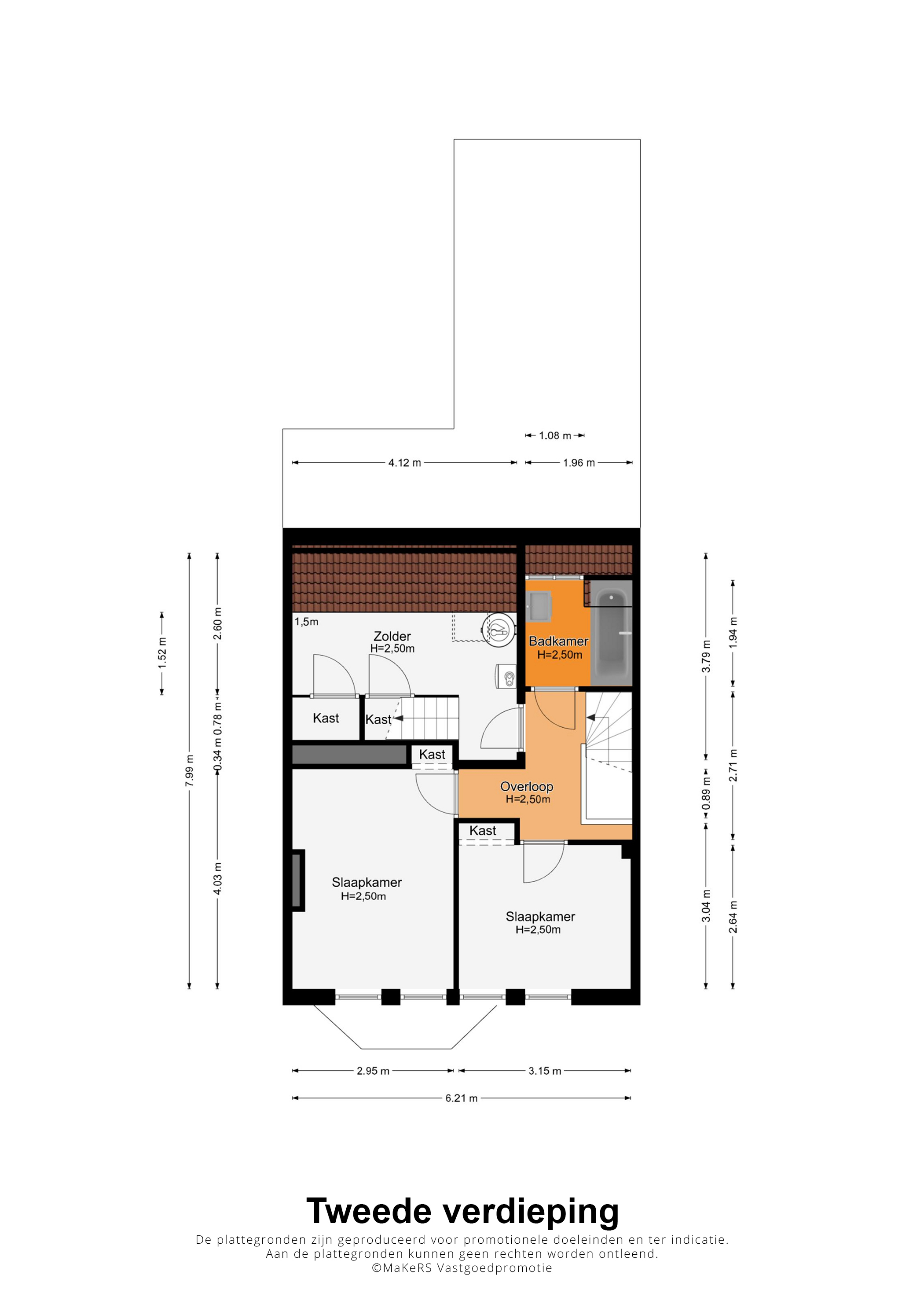
Tweede verdieping:
Op deze verdieping zijn nog twee slaapkamers, een badkamer en een zolder. Slaapkamer IV (circa 4,03 x 2,95) en slaapkamer V (circa 3,15 x 2,64) bevinden zich beiden aan de voorzijde, zonder ruimteverlies van een schuin dak.
Badkamer II (circa 1,94 x 1,96), met een dakkapel en roze wandtegels, is ingedeeld met een ligbad en een wastafel met badmeubel. Op de zolderkamer (circa 4,12 x 2,60) is de opstelling van de HR-ketel (Nefit Topline, 2014, eigendom) met boiler.
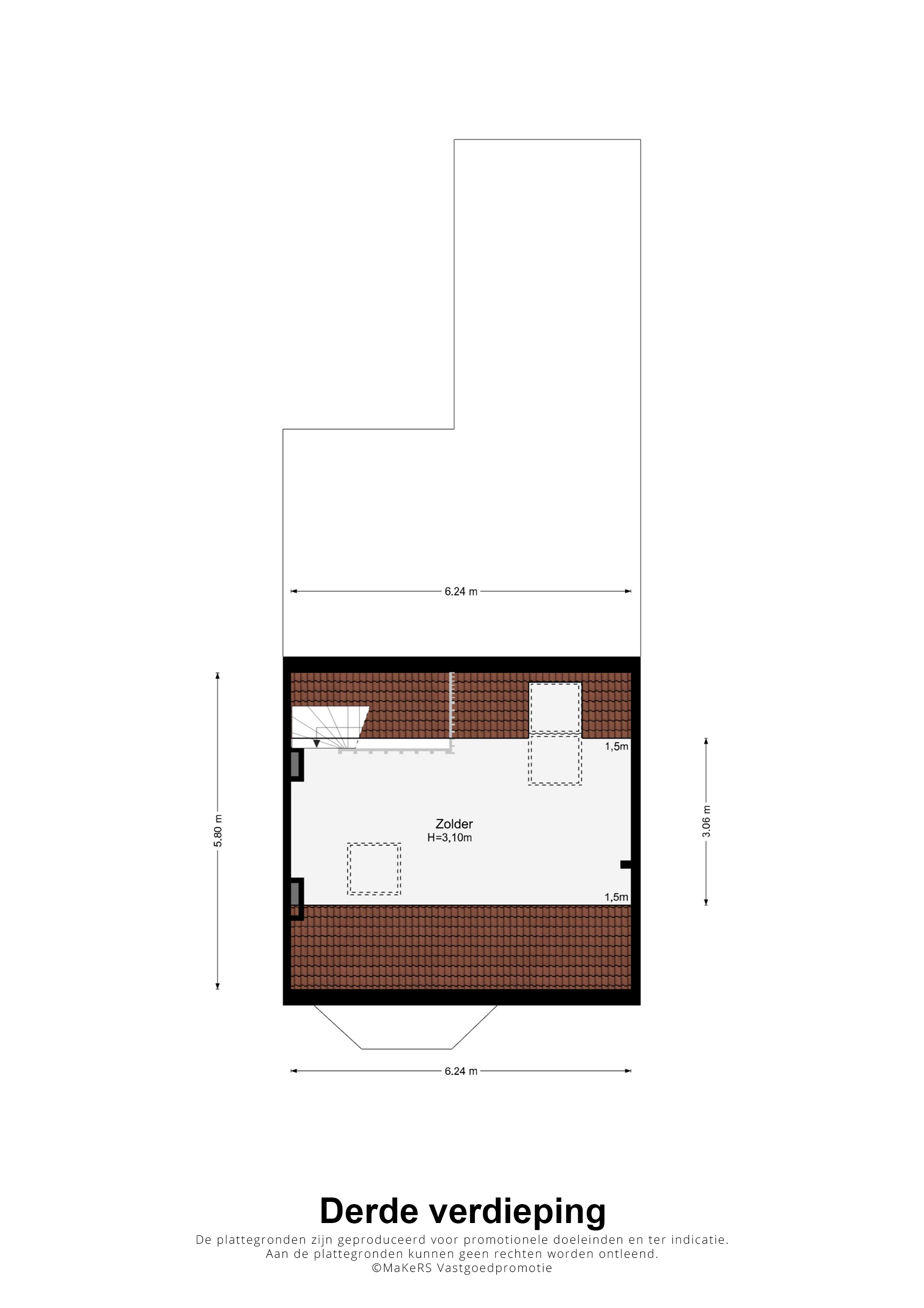
Derde verdieping:
Er is een vaste trap naar de derde verdieping, waar een lichte en riante kamer (circa 6,24 x 3,60) klaar is voor een nieuwe invulling, Deze kamer heeft een meer dan drie meter hoge nok, een prachtige houten vloer en lichtinval via meerdere dakramen.
Algemeen:
Bouwjaar: 1935
Perceeloppervlakte: 240 m2
Gebruiksoppervlakte wonen: circa 204 m2, inhoud: circa 841 m3
Verwarming en warm water via een HR-ketel (Nefit Topline, 2014, eigendom)
Tuin met een achterom
Meerdere woningen hebben een oprit of garage gerealiseerd (achterzijde)
Vijf slaapkamers, twee badkamers en een extra (slaap)kamer op de derde verdieping
Toplocatie nabij (internationaal) onderwijs, winkels, supermarkten en de Groene Loper
Energielabel: D
Asbest: niet bekend
Aanvaarding: in onderling overleg
In de Gemeente Maastricht geldt vanaf 1 oktober 2022 een Huisvestingsverordening - opkoopbescherming voor woningen (https://www.gemeentemaastricht.nl/wonen-en-verhuizen/opkoopbescherming-voor-woningen).
Ter bescherming van de belangen van zowel koper als verkoper, wordt uitdrukkelijk gesteld dat een koopovereenkomst met betrekking tot deze onroerende zaak eerst dan tot stand komt nadat koper en verkoper de koopovereenkomst hebben getekend (“schriftelijkheidsvereiste”).
De termijn die wordt opgenomen voor eventuele (overeengekomen) ontbindende voorwaarden (bv. Financiering) is in de regel 4 tot 6 weken na het sluiten van de mondelinge wilsovereenkomst.
De waarborgsom/bankgarantie is 10% van de koopsom. De koper dient deze 3 dagen ná het vervallen van de ontbindende voorwaarden bij de desbetreffende notaris te deponeren. Koper is te allen tijde gerechtigd voor eigen rekening een bouwkundige keuring te (laten) verrichten dan wel andere adviseurs te raadplegen teneinde een goed inzicht te verkrijgen over de staat van onderhoud.
Deze informatie is door ons Tijs & Cyril Makelaardij met de nodige zorgvuldigheid samengesteld.
Onzerzijds wordt echter geen enkele aansprakelijkheid aanvaard voor enige onvolledigheid, onjuist of anderszins, dan wel de gevolgen daarvan. Alle opgegeven maten en oppervlakten zijn indicatief. Van toepassing zijn de NVM voorwaarden.