Semibungalow met 4 slaapkamers en 2 badkamers op een toplocatie in Amby. Aan de rand van Amby, met vrij uitzicht aan de voorzijde, staat deze semibungalow met 4 slaapkamers, 2 badkamers, een royale garage en een ruime woonkamer met open keuken. Dit is het perfecte huis om gelijkvloers te wonen, met extra kamers voor thuiswonende kinderen en (klein)kinderen die komen logeren. Het dakterras op de 1e verdieping heeft een goede zonligging, net als de achtertuin op het oosten. Wat opvalt zijn de privacy in de achtertuin, en de ligging aan een autovrij pad met prachtig uitzicht naar het groen.
Semibungalow met 4 slaapkamers en 2 badkamers op een toplocatie in Amby. Aan de rand van Amby, met vrij uitzicht aan de voorzijde, staat deze semibungalow met 4 slaapkamers, 2 badkamers, een royale garage en een ruime woonkamer met open keuken. Dit is het perfecte huis om gelijkvloers te wonen, met extra kamers voor thuiswonende kinderen en (klein)kinderen die komen logeren. Het dakterras op de 1e verdieping heeft een goede zonligging, net als de achtertuin op het oosten. Wat opvalt zijn de privacy in de achtertuin, en de ligging aan een autovrij pad met prachtig uitzicht naar het groen.
Typering:
Alle voorzieningen voor jong en oud zijn in de nabijheid: kinderopvang, basisonderwijs, het United World College (UWC), een supermarkt en diverse winkels in Amby. Bij het Geusseltpark zijn vele sportverenigingen en het zwembad, allemaal op loopafstand. Verder woont u op korte afstand van de uitvalswegen richting Eindhoven, Luik, Heerlen en het Heuvelland. Werkt u bij het MECC, de universiteit of het MUMC+? Dan kunt u met de fiets naar het werk!
Begane grond:
Aan de voorzijde, bij de autovrije straat en de voortuin, is de entree van deze verrassend ruime semibungalow. Achter de donkere voordeur is de hal (circa 3,40 x 2,43), met de meterkast en de trap naar de eerste verdieping. De grenen vloer ligt niet alleen in de hal, maar ook in de woonkamer en keuken.
De woonkamer heeft, inclusief keuken, een oppervlakte van circa 45 m2 waardoor er genoeg plek is voor al uw meubels. Het zitgedeelte is aan de voorzijde, met prachtig uitzicht naar het groen, en in de keuken staat de eettafel. Een grote schuifpui zorgt voor een mooie verbinding met het terras in de achtertuin.
Uw oog valt op de lichte keuken in een nette hoekopstelling, met hoge bovenkasten en een kunststof aanrechtblad in een natuursteen-look.
Vanuit de woonkamer heeft u toegang tot aanbouw, met de bijkeuken (circa 2,26 x 3,02) en de zeer ruime garage (circa 7,60 x 3,02). In de bijkeuken is de opstelling van de wasapparatuur en de garage is voorzien van elektra, een elektrisch bedienbare kantelpoort en een deur naar de patiotuin. Uw auto langs de openbare weg parkeren kan, maar hoeft niet!
Gelijkvloers wonen is mogelijk dankzij de slaapkamer en badkamer op de begane grond. Slaapkamer I (circa 5,19 x 3,05) is een ruime tweepersoonskamer, met een raam en een deur aan de tuinzijde. De in lichte kleuren uitgevoerde badkamer (circa 3,06 x 1,84) is ingedeeld met een ligbad, toilet en een wastafel. Het brede raam aan de voorzijde, op plafondhoogte, zorgt voor veel lichtinval en privacy.
De achtertuin is, net als de voortuin, aangelegd met een grote variatie aan beplanting. De kans is groot dat u via de schuifpui de achtertuin inloopt, gesitueerd op het oosten. Er is genoeg ruimte om in de zon te zitten, en een poort geeft toegang tot de achtergelegen rustige straat. Wat opvalt is de vrije ligging, met vele hoge bomen in het zicht.
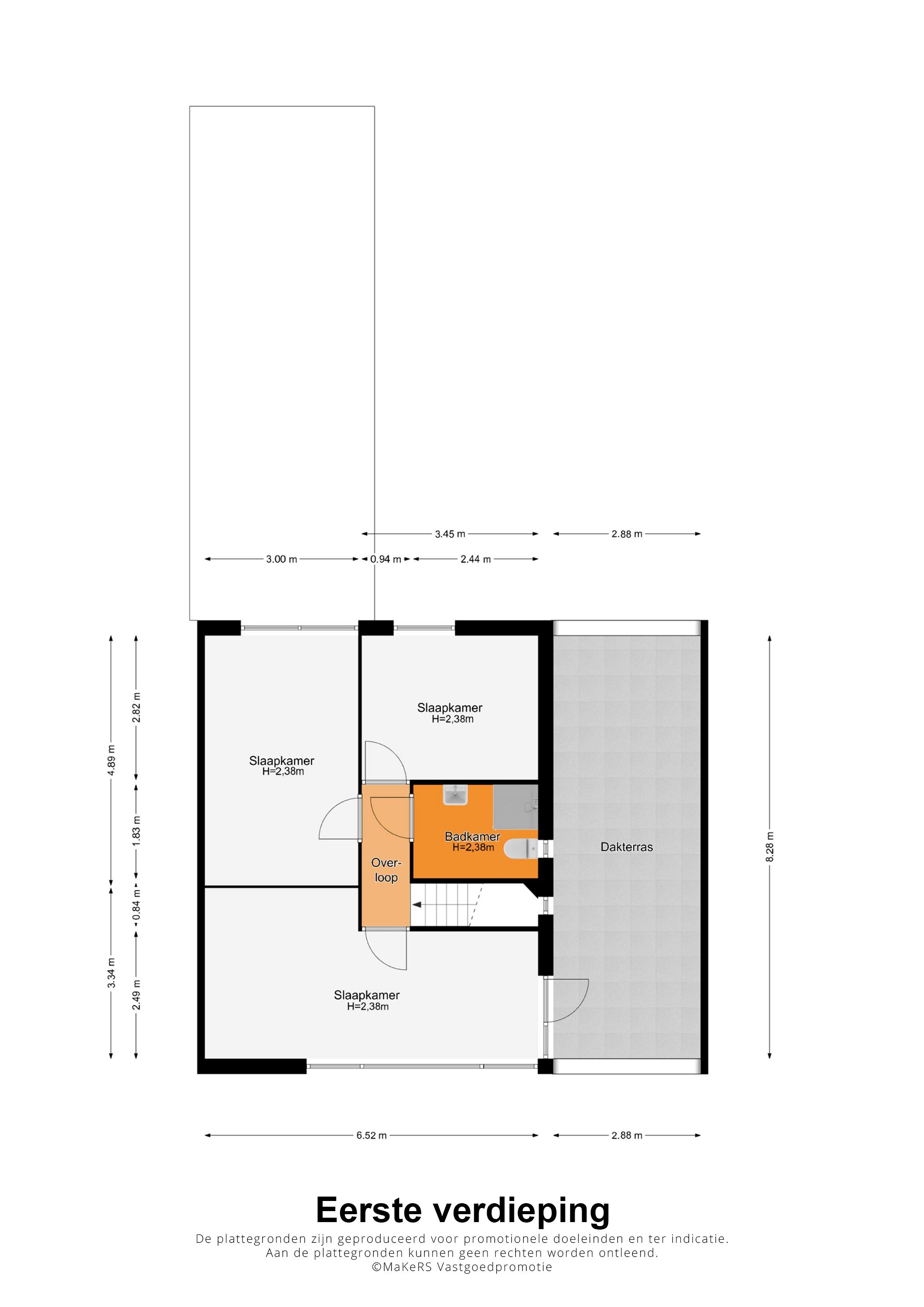
Eerste verdieping:
Vanaf de overloop zijn twee ruime slaapkamers, een berging en de tweede badkamer te bereiken. Slaapkamer II (circa 6,52 x 3,34/2,49) is op een eenvoudige wijze te splitsen in twee kamers, die beiden vanaf de overloop bereikbaar zijn. Deze kamer biedt toegang tot het royale en zonnige dakterras
Slaapkamer III (circa 4,89 x 3,00) bevindt zich aan de achterzijde, net als een ruime berging (circa 3,75 x 2,82). In de berging hangt de HR-ketel (Remeha, 2024, eigendom), en het raam in de buitengevel maakt het mogelijk om deze kamer als werkkamer of hobbyruimte te gebruiken.
Vanaf de overloop heeft u ook toegang tot badkamer II (circa 2,44 x 1,83) met een douche, toilet en een wastafel. Perfect voor thuiswonende kinderen, en voor (klein)kinderen die komen logeren!
Algemeen:
Bouwjaar: 1998
Gebruiksoppervlakte wonen: circa 138 m2, inhoud circa 543 m3
Gelijkvloers wonen dankzij de slaapkamer en badkamer op de begane grond
Drie slaapkamers en een badkamer op de eerste verdieping
Dak-, spouwmuur- en vloerisolatie
Houten kozijnen met dubbele beglazing en diverse rolluiken
Prachtig uitzicht aan de voorzijde
Buitenzijde van de woning wordt onderhouden voor een Vereniging van Eigenaren (VvE)
VvE bijdrage € 24,- per maand
Energielabel: A
Aanvaarding: in onderling overleg
In de Gemeente Maastricht geldt vanaf 1 oktober 2022 een Huisvestingsverordening - opkoopbescherming voor woningen (dit kan bij deze woning van toepassing zijn).
Ter bescherming van de belangen van zowel koper als verkoper, wordt uitdrukkelijk gesteld dat een koopovereenkomst met betrekking tot deze onroerende zaak eerst dan tot stand komt nadat koper en verkoper de koopovereenkomst hebben getekend (“schriftelijkheidsvereiste”).
Indien er in de woning huurtoestellen aanwezig zijn zoals CV-ketel, boiler, zonnepanelen, mechanische ventilatie etc. dan dienen deze door de koper te worden overgenomen.
De termijn die wordt opgenomen voor eventuele (overeengekomen) ontbindende voorwaarden (bv. Financiering) is in de regel 4 tot 6 weken na het sluiten van de mondelinge wilsovereenkomst.
De waarborgsom/bankgarantie is 10% van de koopsom. De koper dient deze 3 dagen ná het vervallen van de ontbindende voorwaarden bij de desbetreffende notaris te deponeren.
Koper is te allen tijde gerechtigd voor eigen rekening een bouwkundige keuring te (laten) verrichten dan wel andere adviseurs te raadplegen teneinde een goed inzicht te verkrijgen over de staat van onderhoud.
Deze informatie is door ons, Tijs & Cyril Makelaardij met de nodige zorgvuldigheid samengesteld. Onzerzijds wordt echter geen enkele aansprakelijkheid aanvaard voor enige onvolledigheid, onjuist of anderszins, dan wel de gevolgen daarvan. Alle opgegeven maten en oppervlakten zijn indicatief. Van toepassing zijn de NVM voorwaarden.