Vraagprijs € 329.000,- k.k.
Royale hoekwoning in het geliefde Amby met een carport, garage/berging en aanbouw. In een zijstraat van het Severenplein staat deze hoekwoning met een aanbouw, waar onder andere de keuken en bijkeuken/wasruimte zijn. Op de 1e verdieping zijn 3 slaapkamers en de ruime badkamer, perfect voor een gezin en om vanuit huis te werken. Er is een vaste trap naar de zolderkamer, terwijl de garage en tuinberging ook ruimte bieden om spullen op te bergen. Een leuk huis op een mooie plek in Amby!
Royale hoekwoning in het geliefde Amby met een carport, garage/berging en aanbouw. In een zijstraat van het Severenplein staat deze hoekwoning met een aanbouw, waar onder andere de keuken en bijkeuken/wasruimte zijn. Op de 1e verdieping zijn 3 slaapkamers en de ruime badkamer, perfect voor een gezin en om vanuit huis te werken. Er is een vaste trap naar de zolderkamer, terwijl de garage en tuinberging ook ruimte bieden om spullen op te bergen. Een leuk huis op een mooie plek in Amby!
Typering:
Aan de overzijde van de straat vindt u de basisschool, veel groen en enkele sportvelden van de sportzaal. Verder woont u in de nabijheid van het United World College (UWC), een supermarkt en verschillende winkels. Bus 6 verbindt Amby onder andere met het treinstation en het centrum. Voor een wandeling loopt u naar het Severenpark, vlak om de hoek. Verder woont u op korte afstand van de uitvalswegen richting Eindhoven, Luik, Heerlen en het Heuvelland. Werkt u bij het MECC, de universiteit of het MUMC+? Dan kunt u met de fiets naar het werk!
Souterrain:
Onder een deel van de begane grond is het souterrain, met een portaal en een kelderruimte (circa 4,04 x 2,43). Deze ruimte heeft meerdere vaste kasten en een hoogte van circa 2,20 meter.
Begane grond:
De hal (circa 4,10 x 2,24) is, net als de rest van de woning, heel ruim en licht. U ziet de meterkast, de trap naar de eerste verdieping en achter een van de deuren is de trap naar het souterrain.
Aan het einde van de hal is een deur met glas-in lood, die toegang geeft tot de L-vormige woonkamer (circa 35 m2). De houten vloer zorgt voor sfeer en aan twee kanten valt veel licht naar binnen. Het zitgedeelte is aan de voorzijde en aan de achterzijde, bij de schuifpui, is genoeg plek voor een grote eettafel.
Een houten schuifdeur met glas verbindt de woonkamer met de keuken (circa 4,36 x 2,96). Ook hier is een groot raam aan de tuinzijde dat, net als de lichtkoepel, de keuken heel licht en ruimtelijk maakt. De lange wandopstelling heeft een ingebouwde inductie kookplaat, afzuigkap en een koelkast. In het verlengde van de keuken is een portaal met de toiletruimte en een bijkeuken/wasruimte (circa 2,96 x 1,17).
Via de keukendeur loopt u naar een overkapping, die ervoor zorgt dat u droog de garage/berging (circa 5,76 x 2,46) kunt bereiken. Deze ruimte, voor de fietsen en andere spullen, is voorzien van elektra en een lichtkoepel in het platte dak. Extra bergruimte is er ook in de tuin, waar een overkapping en een berging (circa 2,49 x 1,72) zijn gebouwd. In de berging is de opstelling van de HR-ketel (Nefit, 2005, eigendom).
De achtertuin met plantenborders op verschillende hoogte is gesitueerd op het oosten. In het midden van de tuin is het terras en er is een overdekt terras gemaakt. Aan de voorzijde is een zogenaamde geveltuin met leuke beplanting, die het huis een mooie uitstraling geeft.
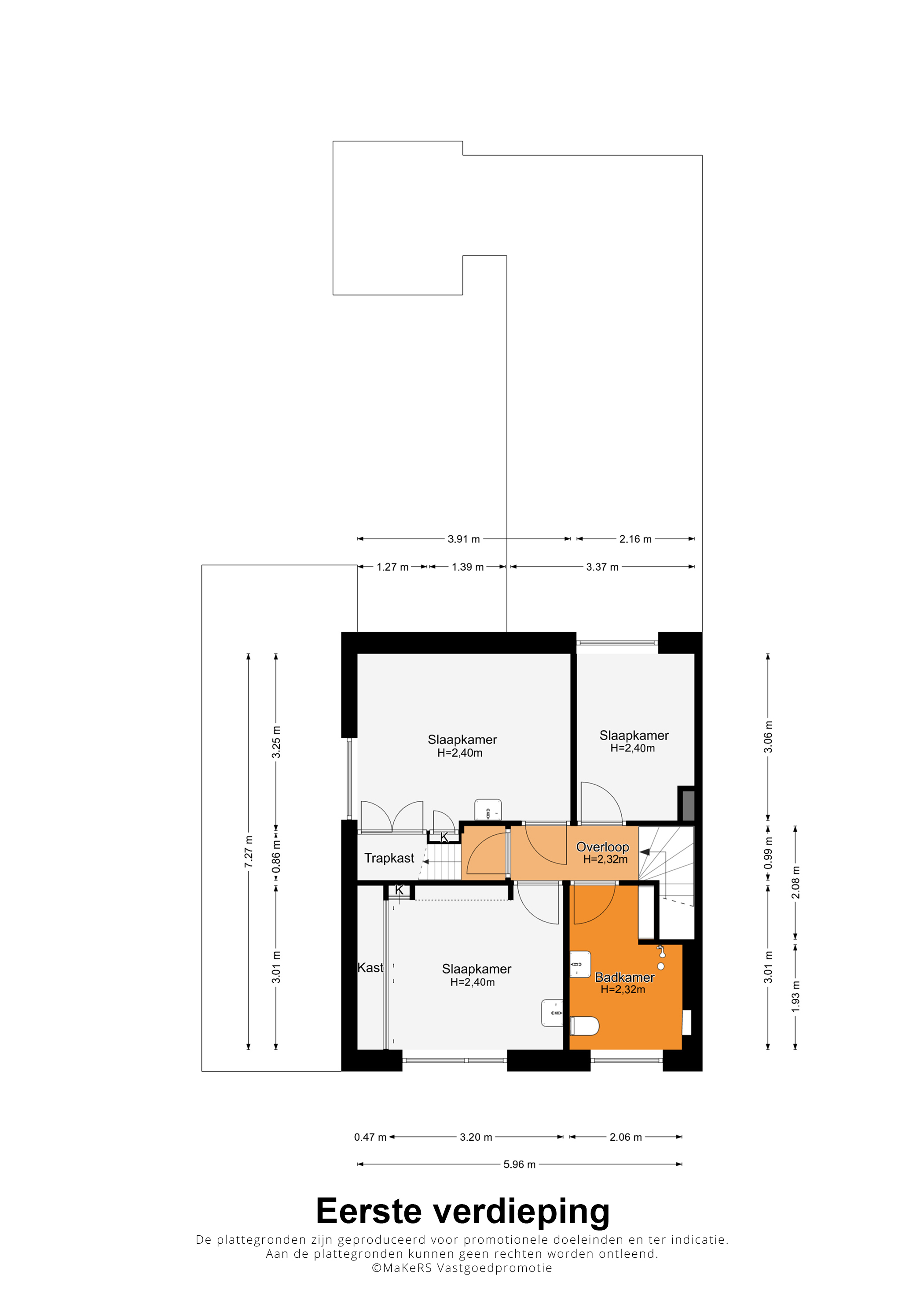
Eerste verdieping:
Vanaf de overloop heeft u toegang tot drie slaapkamers en de badkamer. Slaapkamer I (circa 3,67 x 3,01) met vaste kastenwand en wastafel bevindt zich aan de voorzijde. Aan de achterzijde zijn slaapkamer II (circa 3,06 x 2,16) en slaapkamer III (circa 3,91 x 3,25), met een wastafel en trapkast.
De vernieuwde badkamer (circa 2,06 x 3,01/1,96) is uitgevoerd met lichte wand-/vloertegels en inbouwverlichting. U heeft de beschikking over een inloopdouche, wandcloset en een wastafelmeubel. Dankzij het grote raam, het kleurgebruik en de glazen douchewand oogt de badkamer heel ruimtelijk.
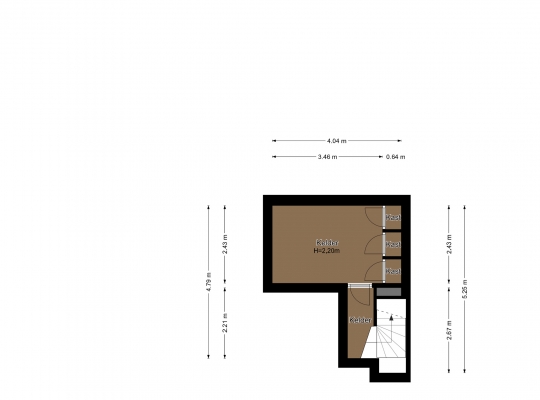
Tweede verdieping:
Een vaste trap geeft toegang tot een grote zolderkamer (circa 6,10 x 3,72 vloeroppervlakte). Deze kamer heeft twee dakramen, volop bergruimte en een nokhoogte van circa 1,89 meter.
Algemeen:
Bouwjaar: 1963
Perceeloppervlakte: 168 m2
Gebruiksoppervlakte wonen: circa 113 m2, inhoud: circa 577 m3
Verwarming en warm water via een HR-ketel (Nefit, 2005, eigendom)
Aluminium kozijnen met isolatieglas en merendeels rolluiken
Aanbouw met een keuken, toiletruimte en bijkeuken/wasruimte
Drie slaapkamers en een ruime badkamer op de eerste verdieping
Vaste trap naar de tweede verdieping (zolderkamer)
Energielabel: D
Aanvaarding: in onderling overleg
In de Gemeente Maastricht geldt vanaf 1 oktober 2022 een Huisvestingsverordening - opkoopbescherming voor woningen (dit kan bij deze woning van toepassing zijn).
Ter bescherming van de belangen van zowel koper als verkoper, wordt uitdrukkelijk gesteld dat een koopovereenkomst met betrekking tot deze onroerende zaak eerst dan tot stand komt nadat koper en verkoper de koopovereenkomst hebben getekend (“schriftelijkheidsvereiste”).
De termijn die wordt opgenomen voor eventuele (overeengekomen) ontbindende voorwaarden (bv. Financiering) is in de regel 4 tot 6 weken na het sluiten van de mondelinge wilsovereenkomst.
De waarborgsom/bankgarantie is 10% van de koopsom. De koper dient deze 3 dagen ná het vervallen van de ontbindende voorwaarden bij de desbetreffende notaris te deponeren. Koper is te allen tijde gerechtigd voor eigen rekening een bouwkundige keuring te (laten) verrichten dan wel andere adviseurs te raadplegen teneinde een goed inzicht te verkrijgen over de staat van onderhoud.
Deze informatie is door ons Tijs & Cyril Makelaardij met de nodige zorgvuldigheid samengesteld.
Onzerzijds wordt echter geen enkele aansprakelijkheid aanvaard voor enige onvolledigheid, onjuist of anderszins, dan wel de gevolgen daarvan. Alle opgegeven maten en oppervlakten zijn indicatief. Van toepassing zijn de NVM voorwaarden.