Vraagprijs € 419.000,- k.k.
Instapklare, uitgebouwde woning in het geliefde Wolder. In een van de meest geliefde wijken van Maastricht, het rustige Wolder, staat deze fraai verbouwde woning met 3 slaapkamers, een inloopkast en luxe badkamer. Op de begane grond zijn de woonkamer en eetkamer, die samen 40 m2 groot zijn. De achtertuin met berging en achterom is het toppunt van sfeer, waar de kans groot is dat u op slag verliefd wordt.
Instapklare, uitgebouwde woning in het geliefde Wolder. In een van de meest geliefde wijken van Maastricht, het rustige Wolder, staat deze fraai verbouwde woning met 3 slaapkamers, een inloopkast en luxe badkamer. Op de begane grond zijn de woonkamer en eetkamer, die samen 40 m2 groot zijn. De achtertuin met berging en achterom is het toppunt van sfeer, waar de kans groot is dat u op slag verliefd wordt.
Typering:
Via de Tongerseweg heeft u een goede aansluiting op de snelwegen A2/A79. Er is een directe busverbinding met het centrum en treinstation, perfect voor een avondje uit of voor de treinforens. In de wijk zijn een basisschool, voetbalvereniging en prachtige natuur waar u kunt wandelen, fietsen en hardlopen. Op papier woont u buiten de stad, ook al merkt u daar niets van. Wolder heeft alles wat u zoekt, en misschien wel meer dan dat …
Souterrain:
Vanuit de hal heeft u toegang tot het souterrain. Daar is een kelderruimte (circa 3,35 x 2,23) met de wasmachineaansluiting en een grote kruipruimte.
Begane grond:
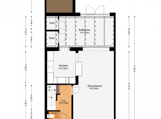
Via de buitentrap en de fraaie voordeur is de hal te bereiken. Deze ruimte is, net als nagenoeg het hele huis, smaakvol verbouwd. Aan de linkerzijde is de stijlvolle toiletruimte met fonteintje en bij de trap naar het souterrain is de recent vernieuwde meterkast.
In de woonkamer (circa 6,31 x 3,66) ligt, net als op bijna de hele begane grond, een grijze tegelvloer. Een fraaie toevoeging is de eetkamer (circa 6,07 x 2,83) met twee grote inbouwkasten en openslaande deuren naar de tuin. Wanden en plafonds zijn gestuct, er ligt vloerverwarming en er valt veel licht naar binnen. De totale oppervlakte van de woonkamer en eetkamer is circa 40 m2; perfect voor een grote hoekbank en een lange eettafel voor supergezellige etentjes met vrienden of familie.
Lichte kleuren bepalen de sfeer in de keuken, met een royale hoekopstelling en een hoge tafel voor twee personen. Hoge bovenkasten, lades en kasten onder het aanrechtblad zorgen voor meer dan genoeg bergruimte. Alle benodigde apparatuur is ingebouwd: een inductie kookplaat, afzuigkap, vaatwasser, combi-oven en een koelkast.
Vanuit de eetkamer loopt u de mooi aangelegde tuin op het noordwesten in. Aan de linkerzijde staat een stenen berging (circa 3,17 x 2,35), voor de fietsen en andere spullen. Het grote terras past goed bij het prachtige metselwerk, deels in mergel, van de aanbouw en de tuinmuren. Het achterste deel van de tuin, met gras en beplanting, draagt bij aan de fantastische sfeer in de tuin. Een brede poort geeft toegang tot de steeg, waardoor u zo met de fiets op pad kunt.
1e verdieping:
Vanaf de overloop zijn twee slaapkamers te bereiken, waarvan een met een inloopkast. Slaapkamer I (circa 2,56 x 2,65) met inbouwkast is in gebruik als kinderkamer. Slaapkamer II (circa 3,58 x 3,15) is de master bedroom, met airco en directe toegang tot een inloopkast (circa 2,60 x 1,70) met een maatwerk interieur.
Naast de inloopkast is de badkamer (circa 11 m2), waar luxe en comfort volop aanwezig zijn. Er is toegang vanuit de inloopkast en vanaf de overloop. Deze ruimte is ingedeeld met een bad, inloopdouche, een wandcloset, designradiator en een maatwerk wastafelmeubel. Grote, grijze tegels zijn gecombineerd met strak stucwerk en modern sanitair. Een plaatje!
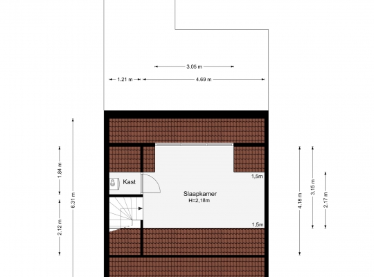
2e verdieping:
Een vaste trap geeft toegang tot slaapkamer III (circa 4,69 x 4,18) met een dakkapel en inbouwverlichting in het plafond. Wordt dit een superleuke kinderkamer, werkkamer of hobbyruimte?
Algemeen:
Bouwjaar: 1957
Gebruiksoppervlakte wonen: circa 111 m2, inhoud circa 439 m3
Perceeloppervlakte: 182 m2
Verwarming en warm water via een HR-ketel (Intergas, 2025, eigendom)
Vloerverwarming op de begane grond, m.u.v. keuken
Twee airco-units (koelen en verwarmen)
10 zonnepanelen (eigendom), geplaatst in 2024
Hardhouten kozijnen met dubbel glas
Vernieuwde meterkast (2026)
Asbest: niet bekend
Energielabel: D
Aanvaarding: in onderling overleg
In de Gemeente Maastricht geldt vanaf 1 oktober 2022 een Huisvestingsverordening - opkoopbescherming voor woningen.
Ter bescherming van de belangen van zowel koper als verkoper, wordt uitdrukkelijk gesteld dat een koopovereenkomst met betrekking tot deze onroerende zaak eerst dan tot stand komt nadat koper en verkoper de koopovereenkomst hebben getekend (“schriftelijkheidsvereiste”).
Indien er in de woning huurtoestellen aanwezig zijn zoals CV-ketel, boiler, zonnepanelen, mechanische ventilatie etc. dan dienen deze door de koper te worden overgenomen.
De termijn die wordt opgenomen voor eventuele (overeengekomen) ontbindende voorwaarden (bv. Financiering) is in de regel 4 tot 6 weken na het sluiten van de mondelinge wilsovereenkomst.
De waarborgsom/bankgarantie is 10% van de koopsom. De koper dient deze 3 dagen ná het vervallen van de ontbindende voorwaarden bij de desbetreffende notaris te deponeren.
Koper is te allen tijde gerechtigd voor eigen rekening een bouwkundige keuring te (laten) verrichten dan wel andere adviseurs te raadplegen teneinde een goed inzicht te verkrijgen over de staat van onderhoud.
Deze informatie is door ons, Tijs & Cyril Makelaardij met de nodige zorgvuldigheid samengesteld. Onzerzijds wordt echter geen enkele aansprakelijkheid aanvaard voor enige onvolledigheid, onjuist of anderszins, dan wel de gevolgen daarvan. Alle opgegeven maten en oppervlakten zijn indicatief. Van toepassing zijn de NVM voorwaarden.