Vraagprijs € 339.000,- k.k.
Ruim wonen tussen stad en natuur, in het mooie Borgharen. In het Maasdorp Borgharen, aan de rand van Maastricht, staat deze 2-onder-1 kapwoning met een xl-garage, oprit en 4 slaapkamers. De kunststof kozijnen zijn voorzien van isolatieglas en rolluiken, de diepe tuin biedt zowel zon als schaduw, en het uitzicht aan de voorzijde is fraai. Wilt u wonen met de dynamiek van de stad op fietsafstand? Dan is dit het perfecte huis voor u!
Ruim wonen tussen stad en natuur, in het mooie Borgharen. In het Maasdorp Borgharen, aan de rand van Maastricht, staat deze 2-onder-1 kapwoning met een xl-garage, oprit en 4 slaapkamers. De kunststof kozijnen zijn voorzien van isolatieglas en rolluiken, de diepe tuin biedt zowel zon als schaduw, en het uitzicht aan de voorzijde is fraai. Wilt u wonen met de dynamiek van de stad op fietsafstand? Dan is dit het perfecte huis voor u!
Typering:
Het natuurgebied Maasvallei is een fantastische plek om te wandelen, fietsen en kanoën door prachtige natuur. Er is een goede busverbinding met het treinstation en er zijn concrete plannen om een fietsbrug over de Maas aan te leggen, waardoor er een snelle fietsverbinding met het historische centrum ontstaat. Borgharen heeft een eigen basisschool, huisartsenpraktijk en veel openbaar groen.
Begane grond:
In de ruime hal (circa 3,35 x 1,11) zijn de meterkast en de trap naar de eerste verdieping. Aan de rechterzijde bevindt zich de toiletruimte, met een wandcloset en geheel betegelde wanden. Het raampje in de voorgevel zorgt voor zowel lichtinval als ventilatie.
De woonkamer (circa 7,39 x 3,76/3,40) heeft niet alleen grote ramen aan de voorzijde en openslaande deuren naar de achtertuin, maar ook een breed raam in de zijgevel. Aan de voorzijde is het zitgedeelte, met uitzicht op de brede straat met openbaar groen, en het eetgedeelte is aan de achterzijde.
Naast de woonkamer is de dichte keuken (circa 2,60 x 2,38), met een provisiekast onder de trap en een deur naar de achtertuin. De houtlook wandopstelling heeft hoge bovenkasten, een praktisch hoogteverschil en is uitgevoerd met diverse inbouwapparatuur: een gaskookplaat, afzuigkap, oven en een koelkast.
De diepe achtertuin, op het noordwesten, biedt zowel zon als schaduw. Het terras met grote tegels is een fijne plek om buiten te zitten, met uitzicht op het grasveld en de beplanting in de borders. Aan de rechterzijde staat een fraaie schutting met betonpalen, de erfafscheiding aan de achterzijde is groenblijvend en aan de linkerzijde staat een verlengde garage (circa 9,47 x 3,11/3,05). Perfect voor de (kinder)fietsen, een auto, de motor en als hobbyruimte!
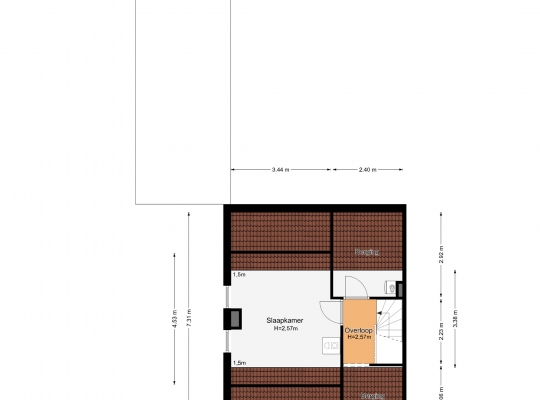
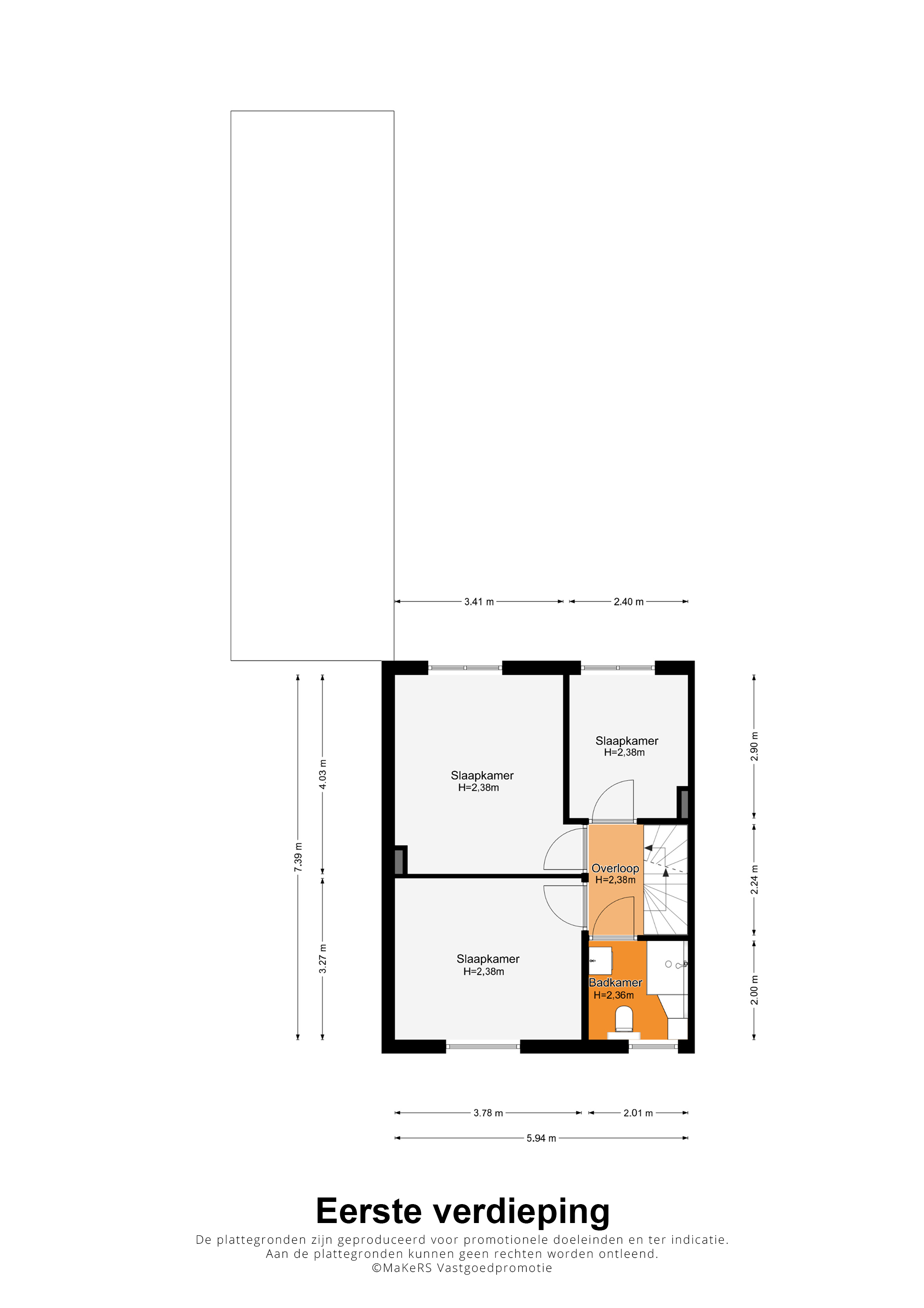
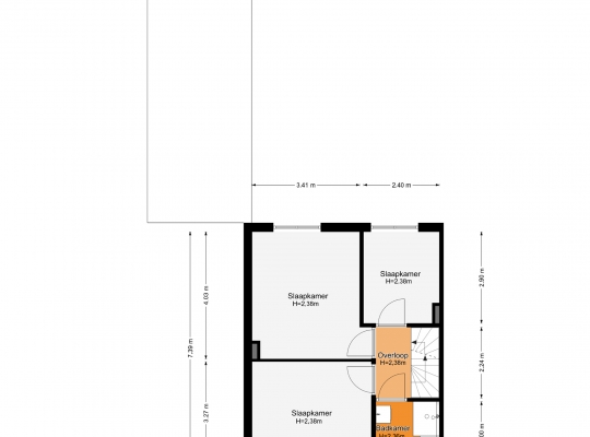
Eerste verdieping:
Vanaf de overloop is er toegang tot drie ruime slaapkamers en de badkamer. Ook op deze verdieping zijn er kunststof kozijnen geplaatst, met isolatieglas en rolluiken.
Aan de achterzijde zijn slaapkamer I (3,41 x 4,03) en slaapkamer II (circa 2,90 x 2,40), klaar voor een nieuwe invulling. Dit geldt ook voor slaapkamer III (circa 3,78 x 3,27) met wastafel, aan de voorzijde van dit lichte huis.
De badkamer (circa 2,01 x 2,00) is uitgevoerd in dezelfde stijl als de toiletruimte. Op de plek van het ligbad is een comfortdouche gemaakt en verder zijn er een handdoekenradiator, wandcloset en een badmeubel met spiegelkast.
Tweede verdieping:
Een vaste trap geeft toegang tot de tweede verdieping, met een goede stahoogte en twee ramen in de zijgevel. Vanaf de overloop is er onder andere toegang tot twee bergingen, waarvan een met de opstelling van de HR-ketel (Hesi Eco Comfort, huur, 2013).
Slaapkamer IV (circa 4,53 x 3,79/3,44) is jarenlang gebruikt als berging en om de was te drogen. Maar een invulling als master bedroom, tienerkamer of werkkamer is perfect voor deze ruimte!
Algemeen:
Bouwjaar: 1972
Perceeloppervlakte: 318 m2
Gebruiksoppervlakte wonen: circa 108 m2, inhoud: circa 374 m3
Verwarming en warm water via een HR-ketel (Hesi Eco Comfort, huur, 2013)
Kunststof kozijnen met isolatieglas (m.u.v. toiletruimte) en rolluiken
Buitenzonwering (elektrisch bedienbaar) aan de achterzijde
Energielabel: C
Asbest: niet bekend
Aanvaarding: in onderling overleg
In de Gemeente Maastricht geldt vanaf 1 oktober 2022 een Huisvestingsverordening - opkoopbescherming voor woningen (https://www.gemeentemaastricht.nl/wonen-en-verhuizen/opkoopbescherming-voor-woningen).
Ter bescherming van de belangen van zowel koper als verkoper, wordt uitdrukkelijk gesteld dat een koopovereenkomst met betrekking tot deze onroerende zaak eerst dan tot stand komt nadat koper en verkoper de koopovereenkomst hebben getekend (“schriftelijkheidsvereiste”).
De termijn die wordt opgenomen voor eventuele (overeengekomen) ontbindende voorwaarden (bv. Financiering) is in de regel 4 tot 6 weken na het sluiten van de mondelinge wilsovereenkomst.
De waarborgsom/bankgarantie is 10% van de koopsom. De koper dient deze 3 dagen ná het vervallen van de ontbindende voorwaarden bij de desbetreffende notaris te deponeren. Koper is te allen tijde gerechtigd voor eigen rekening een bouwkundige keuring te (laten) verrichten dan wel andere adviseurs te raadplegen teneinde een goed inzicht te verkrijgen over de staat van onderhoud.
Deze informatie is door ons Tijs & Cyril Makelaardij met de nodige zorgvuldigheid samengesteld.
Onzerzijds wordt echter geen enkele aansprakelijkheid aanvaard voor enige onvolledigheid, onjuist of anderszins, dan wel de gevolgen daarvan. Alle opgegeven maten en oppervlakten zijn indicatief. Van toepassing zijn de NVM voorwaarden.