Recent verbouwde woning op een rustige plek in Amby. Van top tot teen is deze woning aan de Gersthegge verbouwd. De badkamer, met ligbad/douche en tweede toilet, heeft een fraaie uitstraling en er zijn 3 slaapkamers van goed formaat. Op de begane grond zijn de woonkamer met openslaande tuindeuren, de luxe keuken met inbouwapparatuur en de hal met toiletruimte. Op beide verdiepingen ligt pvc of laminaat, en de lichte, rustige kleuren zorgen ervoor dat u niet hoeft te klussen. In de achtertuin ziet u een grote overkapping, stenen berging en een achterom.
Recent verbouwde woning op een rustige plek in Amby. Van top tot teen is deze woning aan de Gersthegge verbouwd. De badkamer, met ligbad/douche en tweede toilet, heeft een fraaie uitstraling en er zijn 3 slaapkamers van goed formaat. Op de begane grond zijn de woonkamer met openslaande tuindeuren, de luxe keuken met inbouwapparatuur en de hal met toiletruimte. Op beide verdiepingen ligt pvc of laminaat, en de lichte, rustige kleuren zorgen ervoor dat u niet hoeft te klussen. In de achtertuin ziet u een grote overkapping, stenen berging en een achterom.
Typering:
Alle voorzieningen voor jong en oud zijn in de nabijheid: kinderopvang, basisonderwijs, het United World College (UWC) en een winkelcentrum. Bus 6 zorgt voor een goede verbinding met het treinstation en het centrum. Bij het Geusseltpark zijn vele sportverenigingen en het Geusseltbad. Verder woont u op korte afstand van de uitvalswegen richting Eindhoven, Luik, Heerlen en het Heuvelland. Werkt u bij het MECC, de universiteit of het MUMC+? Dan kunt u met de fiets naar het werk!
Begane grond:
Kom binnen in de lange hal, met aan de rechterzijde de meterkast, toiletruimte, trapopgang en een trapkast. In deze kast is de aansluiting voor de wasmachine en de toiletruimte met wandcloset is in 2024 vernieuwd. In de hal ligt, net als in de woonkamer en keuken, een pvc-vloer met vloerverwarming.
Een trendy zwarte deur met glas verbindt de hal met de keuken (circa 2,57 x 2,06). De stijlvolle, moderne keukenopstelling (2024) in een L-vorm biedt veel bergruimte en alle benodigde apparatuur is ingebouwd: een inductie kookplaat, afzuigkap, combi-oven, koelkast en een vaatwasser. Dit is een keuken met de juiste looks, waar je tijdens het koken naar de tuin kan kijken!
Naast de keuken is de woonkamer (circa 6,69 x 3,62), waar een aangename rust hangt. Het zitgedeelte is aan de voorzijde en het eetgedeelte aan de achterzijde, bij de openslaande tuindeuren.
Via deze deuren zijn het overdekte terras (circa 5,80 x 3,05) en de achtertuin te bereiken, gesitueerd op het noorden. De buitenruimte is merendeels bestraat en houten schuttingen aan drie zijden zorgen voor privacy. Naast de stenen berging (circa 3,07 x 2,01) is een poort naar de steeg. Ook de voortuin, op het zuiden, is grotendeels bestraat waardoor het mogelijk is om hier heerlijk in de zon te zitten.
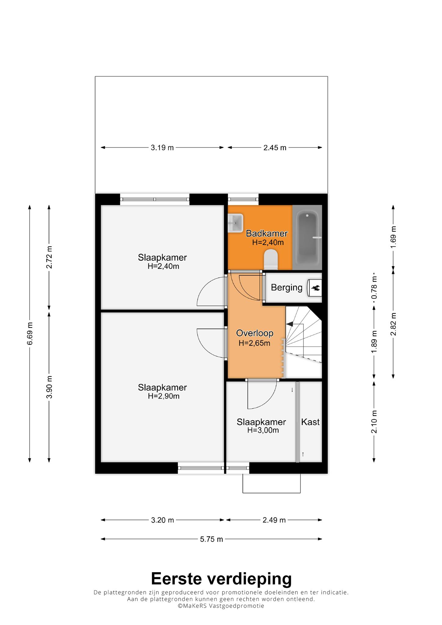
Eerste verdieping:
Wat op de eerste verdieping direct opvalt, zijn de schuine plafonds. Aan de voorzijde is er een maximale hoogte van 3,00 meter en aan de achterzijde bedraagt dit 2,22 meter. Op de overloop is de gemiddelde hoogte 2,65 meter, wat het gevoel van ruimte versterkt. In een berging is de opstelling van de HR-ketel (Intergas, bouwjaar onbekend, eigendom) en boven het trapgat hangt een Mitsubishi airco-unit (koelen en verwarmen).
Slaapkamer I (circa 3,19 x 2,72), ingericht als werk-/studeerkamer, bevindt zich aan de achterzijde. Slaapkamer II (circa 3,90 x 3,20) met trendy houten lattenwand bevindt zich, net als slaapkamer III (circa 2,49 x 2,10) aan de voorzijde. In alle slaapkamers ligt, net als op de overloop, een mooie laminaatvloer.
De recent vernieuwde badkamer (circa 2,45 x 1,69) is in 2024 vernieuwd. Grote, lichte wand- en vloertegels zijn gecombineerd met modern sanitair. Het grote raam zorgt voor veel lichtinval en de ruimte is ingedeeld met een ligbad/douche, toilet, wandradiator en een wastafelmeubel.
Algemeen:
Bouwjaar: 1997, vrijwel geheel gemoderniseerd in 2023/2024
Woonoppervlakte: circa 77 m2, inhoud: circa 268 m3
Hardhouten kozijnen met isolatieglas merendeels rolluiken
Energielabel: A
Aanvaarding: in onderling overleg/op korte termijn mogelijk
In de Gemeente Maastricht geldt vanaf 1 oktober 2022 een Huisvestingsverordening - opkoopbescherming voor woningen (https://www.gemeentemaastricht.nl/wonen-en-verhuizen/opkoopbescherming-voor-woningen).
Ter bescherming van de belangen van zowel koper als verkoper, wordt uitdrukkelijk gesteld dat een koopovereenkomst met betrekking tot deze onroerende zaak eerst dan tot stand komt nadat koper en verkoper de koopovereenkomst hebben getekend (“schriftelijkheidsvereiste”).
Indien er in de woning huurtoestellen aanwezig zijn zoals CV-ketel, boiler, zonnepanelen, mechanische ventilatie etc. dan dienen deze door de koper te worden overgenomen.
De termijn die wordt opgenomen voor eventuele (overeengekomen) ontbindende voorwaarden (bv. Financiering) is in de regel 4 tot 6 weken na het sluiten van de mondelinge wilsovereenkomst.
De waarborgsom/bankgarantie is 10% van de koopsom. De koper dient deze 3 dagen ná het vervallen van de ontbindende voorwaarden bij de desbetreffende notaris te deponeren.
Koper is te allen tijde gerechtigd voor eigen rekening een bouwkundige keuring te (laten) verrichten dan wel andere adviseurs te raadplegen teneinde een goed inzicht te verkrijgen over de staat van onderhoud.
Deze informatie is door ons, Tijs & Cyril Makelaardij met de nodige zorgvuldigheid samengesteld. Onzerzijds wordt echter geen enkele aansprakelijkheid aanvaard voor enige onvolledigheid, onjuist of anderszins, dan wel de gevolgen daarvan. Alle opgegeven maten en oppervlakten zijn indicatief. Van toepassing zijn de NVM voorwaarden.