Vraagprijs € 299.000,- k.k.
Tussenwoning in Heugem, met 3 (mogelijk 4) slaapkamers en een prachtige ligging. Aan de rand van Heugem, in een rustige straat, staat deze lichte woning met energielabel A. Wat u aan de voorzijde niet ziet, is de prachtige ligging aan de achterzijde. De diepe tuin met 2 terrassen grenst aan een breed plantsoen met fraaie, hoge bomen. Op de eerste verdieping zijn 3 slaapkamers en de zeer complete, ruime badkamer. Een 4e slaapkamer is mogelijk op de 2e verdieping, te bereiken via een vaste trap.
Tussenwoning in Heugem, met 3 (mogelijk 4) slaapkamers en een prachtige ligging. Aan de rand van Heugem, in een rustige straat, staat deze lichte woning met energielabel A. Wat u aan de voorzijde niet ziet, is de prachtige ligging aan de achterzijde. De diepe tuin met 2 terrassen grenst aan een breed plantsoen met fraaie, hoge bomen. Op de eerste verdieping zijn 3 slaapkamers en de zeer complete, ruime badkamer. Een 4e slaapkamer is mogelijk op de 2e verdieping, te bereiken via een vaste trap.
OPEN HUIS:
Donderdag 16 april van 09:00 tot 10.00 uur
Woensdag 22 april van 16:00 tot 17.00 uur
Komt u een kijkje nemen? Laat het ons weten, mail uw gegevens naar info@tijsencyril.nl en dan ontvangt u van ons de aanvullende informatie.
Typering:
U woont in de nabijheid van het MUMC+, het MECC en Maastricht University. Voor kinderen is er een speeltuintje aan het Bolderikplein en sportpark Maastricht Zuid is maar een paar minuten lopen. Ook basisonderwijs, de bushalte, medische voorzieningen en winkelcentrum De Beente zijn binnen handbereik. Voor watersporters is de ligging nabij de jachthavens en de Maas een pluspunt.
Begane grond:
Uw kennismaking met deze woning begint in de hal (circa 1,96 x 1,43), met de meterkast en een tegelvloer. De toiletruimte, met een wandcloset en fonteintje, is recent vernieuwd.
De verrassend ruime woonkamer heeft een oppervlakte van circa 28 m2, met grote ramen aan de voor- en achterzijde. De trap naar de eerste verdieping bevindt zich in een nis, waardoor de woonkamer heel ruimtelijk oogt. In de keuken (circa 2,56 x 2,32) staat een hoekopstelling met een gaskookplaat, afzuigkap en een oven.
Vanuit de keuken is de tuin te bereiken, met een stenen berging (circa 2,72 x 1,30) aan de rechterzijde. Er is een achterom, dus de berging kan worden gebruikt voor de fietsen. Er is veel groen in de tuin, deels groenblijvend, en de terrassen zorgen voor een fijne plek in de zon of schaduw.
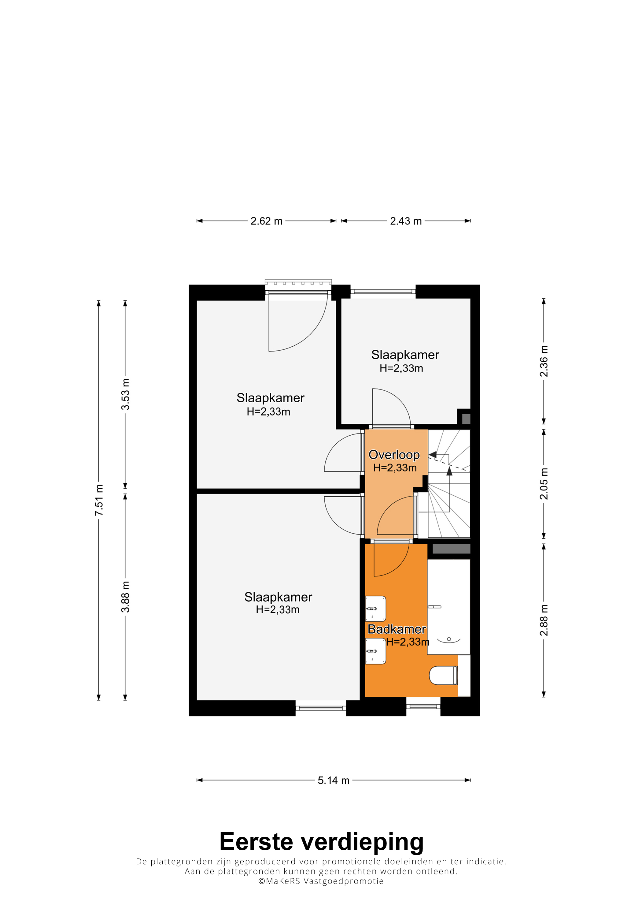
Eerste verdieping:
Slaapkamer I (circa 3,88 x 2,90), de grootste op deze verdieping, bevindt zich aan de voorzijde. Vanuit slaapkamer II (circa 3,53 x 2,90/2,62) en slaapkamer III (circa 2,43 x 2,36) heeft u mooi uitzicht op de tuin en het plantsoen met fraaie bomen. Een van deze kamers heeft een Frans balkon met een groot raam, waardoor veel licht naar binnen valt.
De recent vernieuwde badkamer (circa 2,88 x 2,20) biedt alles wat u zoekt: een ligbad met douche, een tweede toilet, een radiator voor warme handdoeken en twee wastafels, beiden met een spiegel en planchet.
Tweede verdieping:
Een vaste trap geeft toegang tot de zolderkamer (circa 7,51 x 5,14 vloeroppervlak), met een dakraam aan de achterzijde en een circa 2,69 meter hoge nok. Deze grote ruimte biedt de mogelijkheid om een extra slaapkamer, een overloop en een wasruimte te realiseren. Op deze verdieping is de opstelling van de HR-ketel (Intergas Hre, 0000, eigendom).
Algemeen:
Bouwjaar: 1989
Perceeloppervlakte: 121 m2
Gebruiksoppervlakte wonen: circa 96 m2, inhoud: circa 333 m3
Verwarming en warm water via een HR-ketel (Intergas Hre, 0000, eigendom)
Hardhouten kozijnen met dubbel glas
Drie (mogelijk vier) slaapkamers
Prachtige ligging aan een plantsoen en in een rustige straat
Energielabel: A
Projectnotaris: Van Hecke Houben Notarissen Roermond
Aanvaarding: in onderling overleg
In de Gemeente Maastricht geldt vanaf 1 oktober 2022 een Huisvestingsverordening - opkoopbescherming voor woningen (https://www.gemeentemaastricht.nl/wonen-en-verhuizen/opkoopbescherming-voor-woningen).
Ter bescherming van de belangen van zowel koper als verkoper, wordt uitdrukkelijk gesteld dat een koopovereenkomst met betrekking tot deze onroerende zaak eerst dan tot stand komt nadat koper en verkoper de koopovereenkomst hebben getekend (“schriftelijkheidsvereiste”).
De termijn die wordt opgenomen voor eventuele (overeengekomen) ontbindende voorwaarden (bv. Financiering) is in de regel 4 tot 6 weken na het sluiten van de mondelinge wilsovereenkomst.
De waarborgsom/bankgarantie is 10% van de koopsom. De koper dient deze 3 dagen ná het vervallen van de ontbindende voorwaarden bij de desbetreffende notaris te deponeren. Koper is te allen tijde gerechtigd voor eigen rekening een bouwkundige keuring te (laten) verrichten dan wel andere adviseurs te raadplegen teneinde een goed inzicht te verkrijgen over de staat van onderhoud.
Deze informatie is door ons Tijs & Cyril Makelaardij met de nodige zorgvuldigheid samengesteld.
Onzerzijds wordt echter geen enkele aansprakelijkheid aanvaard voor enige onvolledigheid, onjuist of anderszins, dan wel de gevolgen daarvan. Alle opgegeven maten en oppervlakten zijn indicatief. Van toepassing zijn de NVM voorwaarden.