Energielabel A, lage stookkosten en de ligging aan een plein met openbaar groen maken dit huis in Scharn-Noord heel aantrekkelijk. De meer dan 14 meter diepe achtertuin heeft een goede zonligging (zuid) en het schuine dak aan de achterzijde is heel geschikt voor het plaatsen van zonnepanelen. Dit instapklare huis heeft een lichte woonkamer met openslaande tuindeuren, een mooie keuken met inbouwapparatuur, drie slaapkamers en een grote slaap-/werkkamer op de tweede verdieping.
Energielabel A, lage stookkosten en de ligging aan een plein met openbaar groen maken dit huis in Scharn-Noord heel aantrekkelijk. De meer dan 14 meter diepe achtertuin heeft een goede zonligging (zuid) en het schuine dak aan de achterzijde is heel geschikt voor het plaatsen van zonnepanelen. Dit instapklare huis heeft een lichte woonkamer met openslaande tuindeuren, een mooie keuken met inbouwapparatuur, drie slaapkamers en een grote slaap-/werkkamer op de tweede verdieping.
Typering:
Deze woning staat op een rustige, kindvriendelijke locatie nabij de Internationale school en recht tegenover het Friezenplein. Dit groene, rustige plein is een fijne speelplek voor de kinderen. De gewilde wijk Scharn-Noord heeft een goede ligging aan de oostkant van Maastricht met vele (winkel- en school) voorzieningen in de directe nabijheid. Het centrum van Maastricht is, net als de autosnelwegen A2 en A79 richting Luik, Eindhoven, Heerlen en Aken op steenworp afstand.
Begane grond:
De hal met parketvloer is een mooie ruimte met de gerenoveerde trapopgang en aan de linkerzijde is de toiletruimte met halfhoge, lichte betegeling en een fonteintje. De parketvloer ligt niet alleen in de hal, maar ook in de woonkamer en keuken. De tuingerichte woonkamer (ca. 25 m²) heeft grote ramen en openslaande deuren aan de zuidkant. Onder de trap is een bergkast en aan de voorzijde is de open keuken (3.60 x 2.73), waar een grote hoekopstelling in een landelijke stijl staat. Alle benodigde apparatuur is ingebouwd: een groot gasfornuis met oven, een afzuigkap, koelkast, magnetron en een vaatwasser.
Deze instapklare woning heeft een meer dan 14 meter diepe tuin op het zonnige zuiden. Boven het grote terras hangt een elektrisch bedienbaar uitvalscherm en de rest van de tuin is ingedeeld met gras, grind en lage beplanting. Achter in de tuin ziet u een fietsenstalling, de berging en een poort naar de steeg.
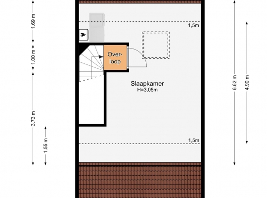
Eerste verdieping:
Vanaf de overloop zijn drie slaapkamers en de badkamer te bereiken. Aan de achterzijde is slaapkamer I (5.11 x 2.93/2.63), ingericht als master bedroom. Slaapkamer II (4.30 x 2.63) en slaapkamer III (3.02 x 2.20) zijn ingericht als kinderkamer en hebben mooi uitzicht naar het rustige plein. Op de overloop en in de slaapkamers ligt een nette laminaatvloer.
De lichte badkamer (3.09 x 1.88) is ingedeeld met een ligbad/douche, tweepersoons wastafel met spiegel en een tweede toilet. Zowel de wanden als de vloer zijn betegeld in een rustige kleurencombinatie.
Tweede verdieping:
Er is een vaste trap naar de tweede verdieping. Via een portaal is de zeer grote slaap-/werkkamer te bereiken, met een laminaatvloer en een dakraam aan de achterzijde. In de hoek, bij de HR-ketel, staan de wasmachine en droger opgesteld.
Algemeen:
Bouwjaar: 2007
Perceeloppervlakte: 134 m2
Gebruiksoppervlakte wonen: circa 117 m2, inhoud circa 417 m3
Verwarming en warm water via een gehuurde HR-ketel (Vaillant, 2015)
Hardhouten kozijnen, voorzien van isolatieglas
De woning heeft dak-, spouwmuur- en vloerisolatie
Mooie ligging aan een plein met openbaar groen en speelgelegenheid voor de kinderen
Energielabel: A
Aanvaarding: In onderling overleg.