Uniek, duurzaam appartement met een 44 m2 groot terras. Van dit appartement, type maisonnette, is er maar één. De ligging op de hoek van het gebouw zorgt voor veel lichtinval, er zijn 2 slaapkamers in het souterrain en de woonkamer met open keuken bevindt zich op de begane grond, boven straatniveau. Het circa 44 m2 grote terras, de overdekte parkeerplek en de privéberging maken dit appartement met energielabel A+++ tot een fantastische plek om te wonen.
Uniek, duurzaam appartement met een 44 m2 groot terras. Van dit appartement, type maisonnette, is er maar één. De ligging op de hoek van het gebouw zorgt voor veel lichtinval, er zijn 2 slaapkamers in het souterrain en de woonkamer met open keuken bevindt zich op de begane grond, boven straatniveau. Het circa 44 m2 grote terras, de overdekte parkeerplek en de privéberging maken dit appartement met energielabel A+++ tot een fantastische plek om te wonen.
Typering:
De Groene Loper is een duurzame wijk die volop in ontwikkeling is. U woont aan de zuidkant van deze populaire stadswijk, op loopafstand van Céramique en Wyck. Ook Heer en de historische binnenstad bevinden zich in de nabijheid. U kunt lopend naar de supermarkt, het trein-/busstation en de overige voorzieningen in de omgeving. Maastricht is, dankzij de universiteit en vele internationale bedrijven, een stad met een internationale vibe op korte afstand van de grens met België en Duitsland. Steden als Eindhoven, Aken en Hasselt zijn, net het vliegveld, uitstekend te bereiken.
Duurzaamheid:
De ontwikkelaar heeft haar ambities ten aanzien van duurzaamheid tot waarheid gemaakt. Uiteraard liggen er zonnepanelen op het dak van het gebouw. Het appartement, type maisonnette, wordt verwarmd via een lucht-water-warmtepomp met boilervat en lage temperatuur verwarming, die per ruimte in te stellen is. Het resultaat is een bijna energieneutraal (BENG) appartement met energielabel A+++. De grote ramen aan twee zijden zijn voorzien van dubbele beglazing (zonwerend en geluidsisolerend). Luchtcirculatie wordt geregeld door een balansventilatie met warmteterugwinning, zonder roosters in de buitengevel.
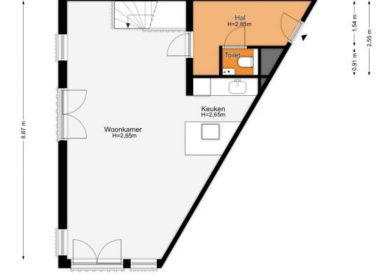
Begane grond:
Het prachtige gebouw met de naam Jolie heeft een uitnodigende, gezamenlijke entree met veel lichtinval. Het stijlvolle trappenhuis en de lift verbindt de begane grond met de bovengelegen woonetages. Bij het appartement horen een vaste overdekte parkeerplek (nummer 68) en een berging (circa 2,97 x 1,81).
De woonverdieping is gesitueerd boven straatniveau, waardoor er weinig inkijk is. Als eerste is er de hal, met aan de linkerzijde de toiletruimte met fonteintje. In de hal, woonkamer en keuken ligt een mooie laminaatvloer met laagtemperatuur vloerverwarming. De hal is groot genoeg om een schoenenkast is side-table neer te zetten.
De woonkamer (circa 36 m2 inclusief keuken) is een fraaie leefruimte met grote ramen twee zijden, met het Frans balkon aan de westkant. Speels element is de schuine muur, die ook in de open keuken zichtbaar is. Hier heeft u de beschikking over een kook-/ziteiland en een wandopstelling, met het spoelgedeelte. De Bora inductie kookplaat met afzuiging, combi-oven, vaatwasser en koelkast zijn ingebouwd.
Een trap verbindt de woonkamer met het souterrain, waar de slaapkamers en badkamer zijn. Slaapkamer I (circa 13,8 m2), ingericht als werk- en logeerkamer, heeft openslaande deuren naar het terras. Slaapkamer II (circa 13,5 m2) is de master bedroom met ramen aan de koele noordzijde.
Aan de overzijde van de overloop zijn de berging en de badkamer. In de berging is de opstelling van de warmtepomp, de unit van de vloerverwarming en de wasapparatuur. De badkamer is ingedeeld met een royale inloopdouche, wandcloset en een wastafel. Een wastafelkast en twee hoge zijkasten bieden volop bergruimte.
?
Terras:
Openslaande deuren in de werk-/logeerkamer geven toegang tot het circa 44 m2 grote terras, met een beukenhaag aan de straatzijde en grind als bodembedekker. Waar de meeste appartementen een klein balkon hebben, heeft dit appartement een buitenruimte van groot formaat.
Algemeen:
Bouwjaar: 2023
Woonoppervlakte: circa 103 m2, inhoud: circa 345 m3
Verwarming via een lucht-water-warmtepomp met lage temperatuur vloerverwarming
Aluminium kozijnen en deuren met dubbel glas (zonwerend en geluidsisolerend)
Balansventilatie met warmte terugwinning
VvE bijdrage voor het appartement circa € 134,84,- per maand
VvE bijdrage voor de berging circa € 4,21,- per maand
VvE bijdrage voor de parkeerplaats circa € 12,64,- per maand
Vaste, overdekte parkeerplek nr. 68 en een privéberging
Twee slaapkamers
Circa 44 m2 groot terras
Energielabel: A+++
Er is géén lijst van zaken en vragenlijst aanwezig
Aanvaarding: in onderling overleg
In de Gemeente Maastricht geldt vanaf 1 oktober 2022 een Huisvestingsverordening - opkoopbescherming voor woningen (https://www.gemeentemaastricht.nl/wonen-en-verhuizen/opkoopbescherming-voor-woningen).
Ter bescherming van de belangen van zowel koper als verkoper, wordt uitdrukkelijk gesteld dat een koopovereenkomst met betrekking tot deze onroerende zaak eerst dan tot stand komt nadat koper en verkoper de koopovereenkomst hebben getekend (“schriftelijkheidsvereiste”).
Indien er in de woning huurtoestellen aanwezig zijn zoals CV-ketel, boiler, zonnepanelen, mechanische ventilatie etc. dan dienen deze door de koper te worden overgenomen.
De termijn die wordt opgenomen voor eventuele (overeengekomen) ontbindende voorwaarden (bv. Financiering) is in de regel 4 tot 6 weken na het sluiten van de mondelinge wilsovereenkomst.
De waarborgsom/bankgarantie is 10% van de koopsom. De koper dient deze 3 dagen ná het vervallen van de ontbindende voorwaarden bij de desbetreffende notaris te deponeren.
Koper is te allen tijde gerechtigd voor eigen rekening een bouwkundige keuring te (laten) verrichten dan wel andere adviseurs te raadplegen teneinde een goed inzicht te verkrijgen over de staat van onderhoud.
Deze informatie is door ons, Tijs & Cyril Makelaardij met de nodige zorgvuldigheid samengesteld. Onzerzijds wordt echter geen enkele aansprakelijkheid aanvaard voor enige onvolledigheid, onjuist of anderszins, dan wel de gevolgen daarvan. Alle opgegeven maten en oppervlakten zijn indicatief. Van toepassing zijn de NVM voorwaarden.