Vrijstaande woning in Scharn met 5 slaapkamers, garage en een werk-/studeerkamer. Deze lichte en goed onderhouden woning wordt aan 3 kanten omringd door een mooie tuin, met een groot terras en een leuke moestuin. Voor de garage is een brede oprit voor 2 auto’s en de werk-/studeerkamer op de begane grond is een aangename plek om te werken. Wat opvalt zijn de lichtinval, de royale woonkamer met openslaande deuren en de eetkeuken met een schuifpui naar de tuin.
Vrijstaande woning in Scharn met 5 slaapkamers, garage en een werk-/studeerkamer. Deze lichte en goed onderhouden woning wordt aan 3 kanten omringd door een mooie tuin, met een groot terras en een leuke moestuin. Voor de garage is een brede oprit voor 2 auto’s en de werk-/studeerkamer op de begane grond is een aangename plek om te werken. Wat opvalt zijn de lichtinval, de royale woonkamer met openslaande deuren en de eetkeuken met een schuifpui naar de tuin.
Typering:
Dit royale woonhuis staat op de hoek van de Europalaan en de Gerechtigheidslaan, in het mooie Scharn. Hier woont u op korte afstand van een basisschool en de internationale school, wat de wijk erg geliefd maakt bij gezinnen en expats. Er zijn meerdere supermarkten in de nabijheid en ook zijn er vele horecazaken voor een kop koffie, lunch en het avondeten. Na een korte wandeling staat u bij de Groene Loper en het treinstation is, net als het historische centrum, goed bereikbaar met de fiets en openbaar vervoer. De autosnelwegen A2 en A79 richting Luik, Eindhoven, Heerlen en Aken liggen op steenworp afstand.
Souterrain:
Vanuit de hal heeft u toegang tot het souterrain, waar twee betegelde kelderruimtes zijn. Kelder I (circa 4,72 x 3,01) is geschikt als wijn-/provisieruimte en in kelder II (circa 2,96 x 2,95) is de opstelling van de wasapparatuur.
Begane grond:
De hal (circa 4,72 x 2,96) met toiletruimte is een royale en lichte ontvangstruimte, met een lichte leisteen vloer en de trap naar de eerste verdieping. Mooie details zijn de kleine, ronde ramen in de voorgevel en de sierlijke trapbalustrade.
Vanuit de hal loopt u L-vormige woonkamer (circa 41,5 m2) in, die geheel als zitkamer is ingedeeld. Er is veel lichtinval aan drie zijden en het uitzicht naar het vele groen in de tuin is fraai. Muren en plafonds zijn gestuct en de donkere leisteen vloer geeft de woonkamer een chique uitstraling.
Een taatsdeur verbindt de woonkamer met een lichte werk-/studeerkamer (circa 4,18 x 2,07) met een vaste kastenwand. Naast deze kamer is de eetkeuken (circa 4,18 x 4,16) met een schuifpui naar het grote terras in de tuin. Er is genoeg plek voor een eettafel en de lichte, hoekopstelling heeft een ingebouwde gaskookplaat, afzuigkap, oven, vaatwasser en een koelkast met vriesvak.
In de hoek van de eetkeuken is er toegang tot de garage (circa 6,35 x 3,64/3,19) met een sectionaalpoort naar de oprit en een deur naar de tuin. In de tuin, die de woning aan drie kanten omringd, ziet u veel groen en een groot terras. Voor kinderen is er volop ruimte om te spelen en er is een grote moestuin met een mooie vakverdeling gemaakt. Op de oprit, aan de kant van de Gerechtigheidslaan, is parkeergelegenheid voor twee auto’s.
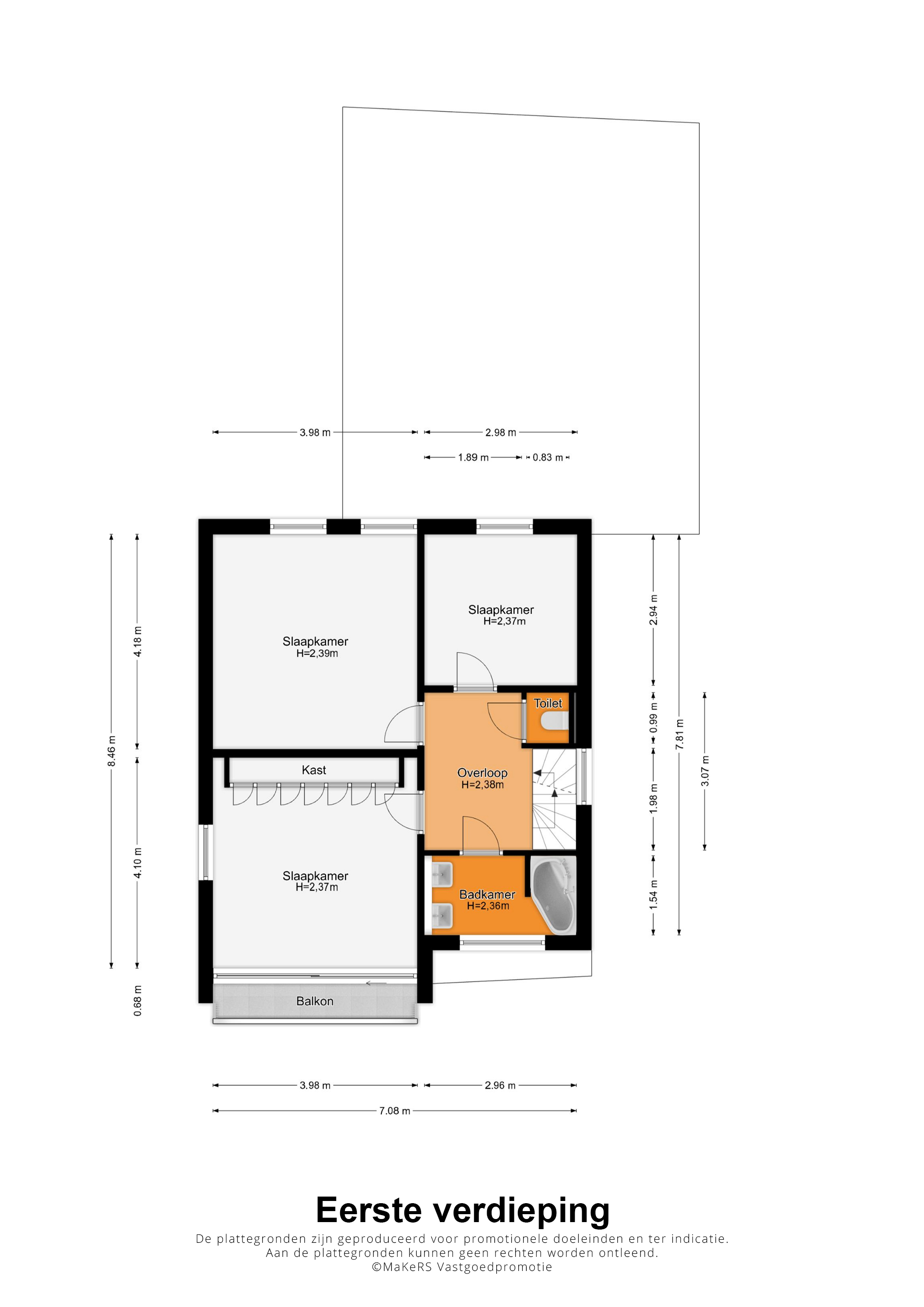
1e verdieping:
De lichte overloop heeft, net als de slaapkamers op deze verdieping, een ruime opzet. Aan de voorzijde is slaapkamer I (circa 4,10 x 3,98) met een grote kastenwand en een schuifpui naar het balkon. Slaapkamer II (circa 4,18 x 3,98) en slaapkamer III (circa 2,98 x 2,94) zijn aan de achterzijde. De afwerking is fraai, met een lichte laminaatvloer en stucwerk.
De badkamer (circa 2,96 x 1,54), met witte wandtegels en zwarte vloertegels, is ingedeeld met een bad/douchecombinatie, twee wastafels en een hoge kast. Aan de andere kant van de overloop, naast de trap, is een separate toiletruimte in dezelfde stijl als de badkamer.
2e verdieping:
Een vaste trap geeft toegang tot de tweede verdieping, met een optimale indeling en een dakkapel aan de achterzijde. Hier zijn slaapkamer IV (circa 4,57 x 3,96), ingericht als sport-/werkkamer, en slaapkamer V (circa 3,09 x 2,96). Aan de voorzijde zijn twee bergingen, waarvan een met de opstelling van de HR-ketel (Atag, 2025, eigendom).
Algemeen:
Bouwjaar: 1964
Gebruiksoppervlakte wonen: circa 185 m2, inhoud circa 806 m3
Perceeloppervlakte: 456 m2
Verwarming en warm water via een HR-ketel (Atag, 2025, eigendom)
Hardhouten kozijnen met isolatieglas
Garage en een brede oprit voor twee auto’s
Vijf slaapkamers, waarvan twee op de bovenste verdieping
Werk-/studeerkamer op de begane grond
Mooi aangelegde tuin aan drie zijden, met veel groen en een groot terras
Asbest: aanwezig in het voorste dak
Energielabel: C
Aanvaarding: in onderling overleg
In de Gemeente Maastricht geldt vanaf 1 oktober 2022 een Huisvestingsverordening - opkoopbescherming voor woningen (dit kan bij deze woning van toepassing zijn).
Ter bescherming van de belangen van zowel koper als verkoper, wordt uitdrukkelijk gesteld dat een koopovereenkomst met betrekking tot deze onroerende zaak eerst dan tot stand komt nadat koper en verkoper de koopovereenkomst hebben getekend (“schriftelijkheidsvereiste”).
Indien er in de woning huurtoestellen aanwezig zijn zoals CV-ketel, boiler, zonnepanelen, mechanische ventilatie etc. dan dienen deze door de koper te worden overgenomen.
De termijn die wordt opgenomen voor eventuele (overeengekomen) ontbindende voorwaarden (bv. Financiering) is in de regel 4 tot 6 weken na het sluiten van de mondelinge wilsovereenkomst.
De waarborgsom/bankgarantie is 10% van de koopsom. De koper dient deze 3 dagen ná het vervallen van de ontbindende voorwaarden bij de desbetreffende notaris te deponeren.
Koper is te allen tijde gerechtigd voor eigen rekening een bouwkundige keuring te (laten) verrichten dan wel andere adviseurs te raadplegen teneinde een goed inzicht te verkrijgen over de staat van onderhoud.
Deze informatie is door ons, Tijs & Cyril Makelaardij met de nodige zorgvuldigheid samengesteld. Onzerzijds wordt echter geen enkele aansprakelijkheid aanvaard voor enige onvolledigheid, onjuist of anderszins, dan wel de gevolgen daarvan. Alle opgegeven maten en oppervlakten zijn indicatief. Van toepassing zijn de NVM voorwaarden.