Ruime woning in De Heeg met 4 slaapkamers, zonnepanelen en kunststof kozijnen.
Aan de rand van De Heeg vind je dit lichte woonhuis, waar enkele jaren geleden de kunststof kozijnen met HR++ glas zijn geplaatst. Ook liggen er zonnepanelen aan de zuidkant en de HR-ketel van Vaillant is in eigendom. In totaal zijn er 4 slaapkamers, waarvan een op de 2e verdieping, en de achtertuin grenst aan een groenstrook en de Oeslingerbaan.
Ruime woning in De Heeg met 4 slaapkamers, zonnepanelen en kunststof kozijnen.
Aan de rand van De Heeg vind je dit lichte woonhuis, waar enkele jaren geleden de kunststof kozijnen met HR++ glas zijn geplaatst. Ook liggen er zonnepanelen aan de zuidkant en de HR-ketel van Vaillant is in eigendom. In totaal zijn er 4 slaapkamers, waarvan een op de 2e verdieping, en de achtertuin grenst aan een groenstrook en de Oeslingerbaan.
Typering:
De Heeg is een kindvriendelijke wijk met speeltuintjes, kindervang, basisonderwijs en twee supermarkten in de nabijheid. Met de auto is het maar een paar minuten naar de A2 (Luik-Eindhoven) en het MUMC+, Station Randwyck en faculteiten van de universiteit zijn op fietsafstand. Aan de westkant van De Heeg ligt een wandelgebied en aan de oostkant het
prachtige Savelsbos.
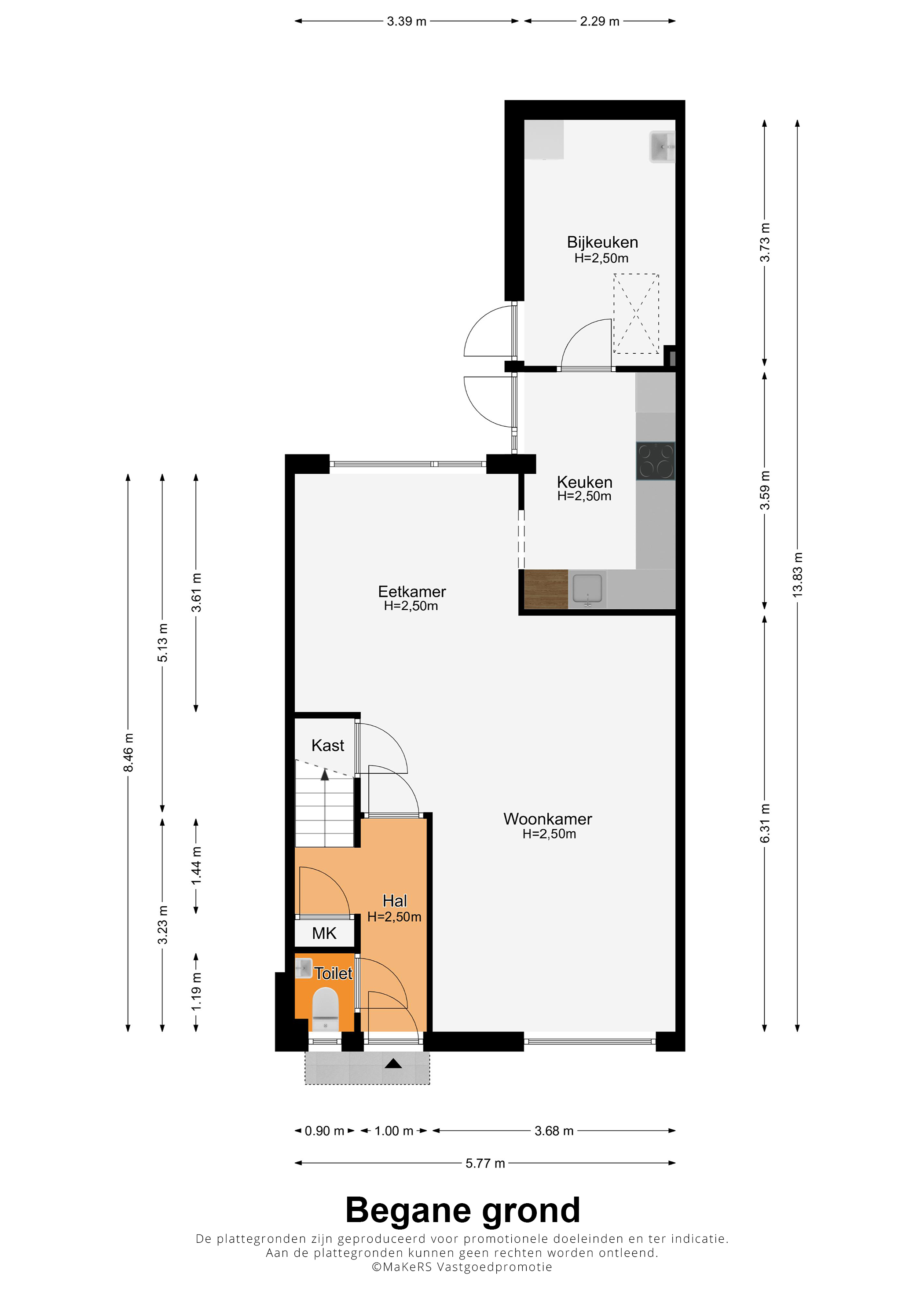
Begane grond:
Via de vernieuwde voordeur loopt u de hal in, met de trap naar de eerste verdieping. Aan de linkerzijde is de toiletruimte met fonteintje, uitgevoerd in lichte kleuren. In de hal ligt, net als in de woonkamer, laminaat op de vloer.
De speels ingedeelde woonkamer heeft een oppervlakte van circa 35 m2, met het zitgedeelte aan de voorzijde en het eetgedeelte aan de achterzijde. Door de grote ramen (HR++ glas in kunststof kozijnen) valt veel licht naar binnen, waardoor de woonkamer nog groter oogt. Erg handig: onder de trap is een bergkast en bij het eetgedeelte is een brede doorgang naar de keuken.
In de keuken (circa 3,59 x 2,29) staat een lichte hoekopstelling met een keramische kookplaat, afzuigkap, oven, vaatwasser en een koel-/vriescombinatie. Functioneel voor nu, met de mogelijkheid voor renovatie of volledig vernieuwen met uw droomkeuken. In de verwarmde bijkeuken (circa 3,72 x 2,29) met gootsteen is onder andere ruimte voor de wasapparatuur en andere spullen. Via het luik in het plafond is er toegang tot een bergvliering.
Na een paar stappen staat u in de onderhoudsvriendelijke achtertuin, met een overkapping en een vernieuwde schutting aan de achterzijde. Er zijn geen achterburen, want de tuin grenst aan een groenstrook en de Oeslingerbaan.
Eerste verdieping:
Vanaf de overloop heeft u toegang tot drie slaapkamers, waarvan twee aan de achterzijde. Er ligt laminaat op de vloer en ook op deze verdieping zijn recent kunststof kozijnen met HR++ glas geplaatst.
Slaapkamer I (circa 3,66 x 3,37), aan de voorzijde, is net als slaapkamer II (circa 4,69 x 3,37) aan de achterzijde ingericht als tweepersoonskamer. Slaapkamer III is onder andere geschikt als kinderkamer of werkkamer.
De badkamer (circa 2,44 x 2,30) is ingedeeld met een ligbad, aparte douche, een tweede toilet en een wastafelmeubel. Het plafond is voorzien van inbouwverlichting en de wanden zijn geheel betegeld in een lichte kleur.
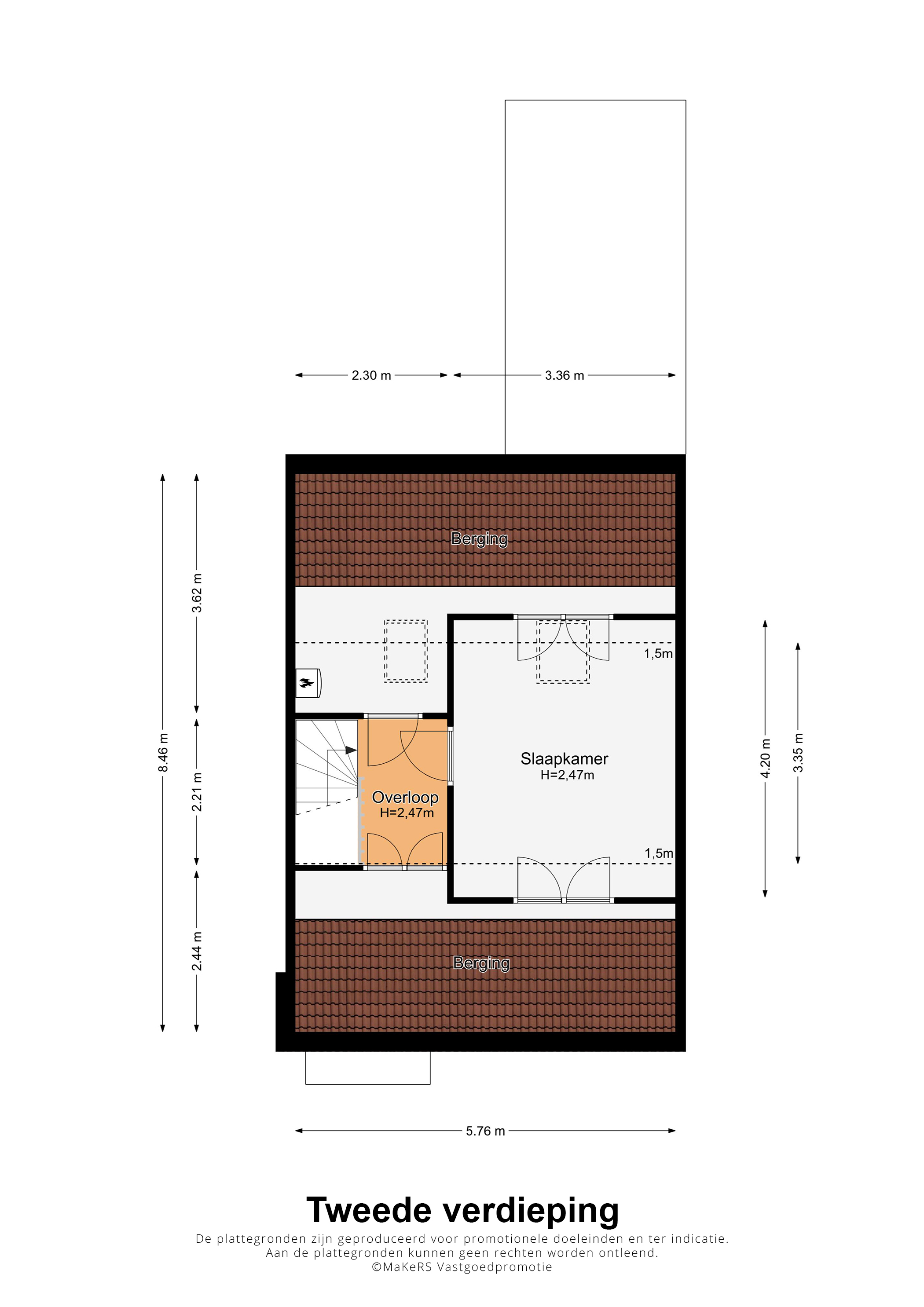
Tweede verdieping:
Een vaste trap geeft toegang tot de tweede verdieping, waar u als eerste op een overloop staat. Vanaf hier is er toegang tot twee bergingen, waarvan een met de opstelling van de HR-ketel (Vaillant, 2018, eigendom). Aansluitend is slaapkamer IV (circa 4,20 x 3,38) met een groot dakraam en toegang tot de eerdergenoemde bergingen. Deze verdieping heeft een nokhoogte van bijna 2,50 meter.
Algemeen:
Bouwjaar: 1980
Perceeloppervlakte: 140 m2
Gebruiksoppervlakte wonen: circa 129 m2, inhoud: circa 459 m3
Vier slaapkamers, waarvan een op de tweede verdieping
Verwarming en warm water via een HR-ketel (Vaillant, 2018, eigendom)
Kunststof kozijnen met HR++ glas
8 zonnepanelen, geplaatst in 2024
Energielabel: A
Asbest: niet bekend
Aanvaarding: in onderling overleg
In de Gemeente Maastricht geldt vanaf 1 oktober 2022 een Huisvestingsverordening - opkoopbescherming voor woningen (https://www.gemeentemaastricht.nl/wonen-en-verhuizen/opkoopbescherming-voor-woningen).
Ter bescherming van de belangen van zowel koper als verkoper, wordt uitdrukkelijk gesteld dat een koopovereenkomst met betrekking tot deze onroerende zaak eerst dan tot stand komt nadat koper en verkoper de koopovereenkomst hebben getekend (“schriftelijkheidsvereiste”).
De termijn die wordt opgenomen voor eventuele (overeengekomen) ontbindende voorwaarden (bv. Financiering) is in de regel 4 tot 6 weken na het sluiten van de mondelinge wilsovereenkomst.
De waarborgsom/bankgarantie is 10% van de koopsom. De koper dient deze 3 dagen ná het vervallen van de ontbindende voorwaarden bij de desbetreffende notaris te deponeren. Koper is te allen tijde gerechtigd voor eigen rekening een bouwkundige keuring te (laten) verrichten dan wel andere adviseurs te raadplegen teneinde een goed inzicht te verkrijgen over de staat van onderhoud.
Deze informatie is door ons Tijs & Cyril Makelaardij met de nodige zorgvuldigheid samengesteld.
Onzerzijds wordt echter geen enkele aansprakelijkheid aanvaard voor enige onvolledigheid, onjuist of anderszins, dan wel de gevolgen daarvan. Alle opgegeven maten en oppervlakten zijn indicatief. Van toepassing zijn de NVM voorwaarden.