Exclusief gerenoveerd monumentaal herenhuis met opvallend veel rust, gelegen tussen de binnenstad en het charmante Jekerkwartier, met 3 slaapkamers, 2 badkamers, een intieme stadstuin en volop luxe. De woning is vanaf 2020 bijna volledig gerenoveerd waarbij authentieke elementen zijn behouden en waar mogelijk terug gebracht. In 2022 en 2023 zijn de woonkamer, eetkamer en stadstuin onder architectuur van Niels Maier verbouwd.
Exclusief gerenoveerd monumentaal herenhuis met opvallend veel rust, gelegen tussen de binnenstad en het charmante Jekerkwartier, met 3 slaapkamers, 2 badkamers, een intieme stadstuin en volop luxe. De woning is vanaf 2020 bijna volledig gerenoveerd waarbij authentieke elementen zijn behouden en waar mogelijk terug gebracht. In 2022 en 2023 zijn de woonkamer, eetkamer en stadstuin onder architectuur van Niels Maier verbouwd.
Typering:
De Cortenstraat is een zijstraat van de Koestraat en het Onze Lieve Vrouweplein, waar de historie en fantastische sfeer volop aanwezig zijn. Aan de andere zijde grenst deze straat aan de Hondstraat, Witmakersstraat en de Maastrichter Heidenstraat. In het Jekerkwartier vindt u vele historische gebouwen, smalle steegjes en gezellige straten. Hier wordt gewoond, zijn galerieën gevestigd en kunt u restaurants en leuke cafés bezoeken.
Souterrain: (niet meegerekend in de woonoppervlakte):
Onder de prachtige trap naar de eerste verdieping is de trap naar de kelder (15e eeuw): een dubbele gewelfde kelderruimte van totaal 5,63 x 3,97 meter. Voor wijn, andere dranken en etenswaren is dit een zeer geschikte plek.
Begane grond:
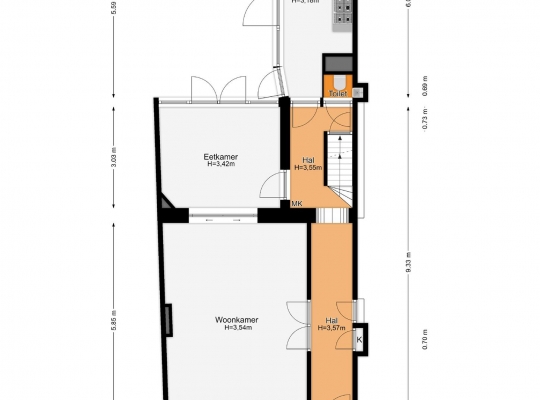
De prachtige entree is een fantastische start van uw bezoek aan dit stijlvolle herenhuis. In de hal ziet u een 3.80 meter hoog plafond, stucwerk, prachtige paneeldeuren en een granitovloer boordevol karakter. Aan het einde van de hal ziet u de houten trap naar de eerste verdieping. Hier bevindt zich de toiletruimte met design sanitair en stijlvol tegelwerk. Dubbele deuren verbinden de hal met de woonkamer (5,85 x 4,14) waar klassiek en modern zijn gecombineerd. Het hoge plafond met ornament en sierlijsten past goed bij de olmenhouten vloer, de natuurstenen schouw met haard, de klassieke raamluiken en de op maat gemaakte bank van corian en stof. Achter de schuifdeuren bevindt zich de eetkamer (3,64 x 3,03) met openslaande tuindeuren en genoeg ruimte voor een diner met vrienden en familie. Via de hal loopt u zo vanuit de eetkamer naar de keuken (5,59 x 2,08) in de aanbouw. Hier ziet u een exclusieve Bulthaup keuken met een 5-pits gaskookplaat, afzuigkap, Quooker (2023), Gaggenau combi-oven (2023), Miele vaatwasser en een Gaggenau koelvriescombinatie (2023). Vanuit de keuken en eetkamer heeft u toegang tot de stadstuin. Het houten terras is een fantastische plek om te loungen en borrelen. De hoge tuinmuur is wit geschilderd, waardoor de ruimte groot oogt. Verder ziet u leibomen, die voor extra schaduw zorgen in de zomer.
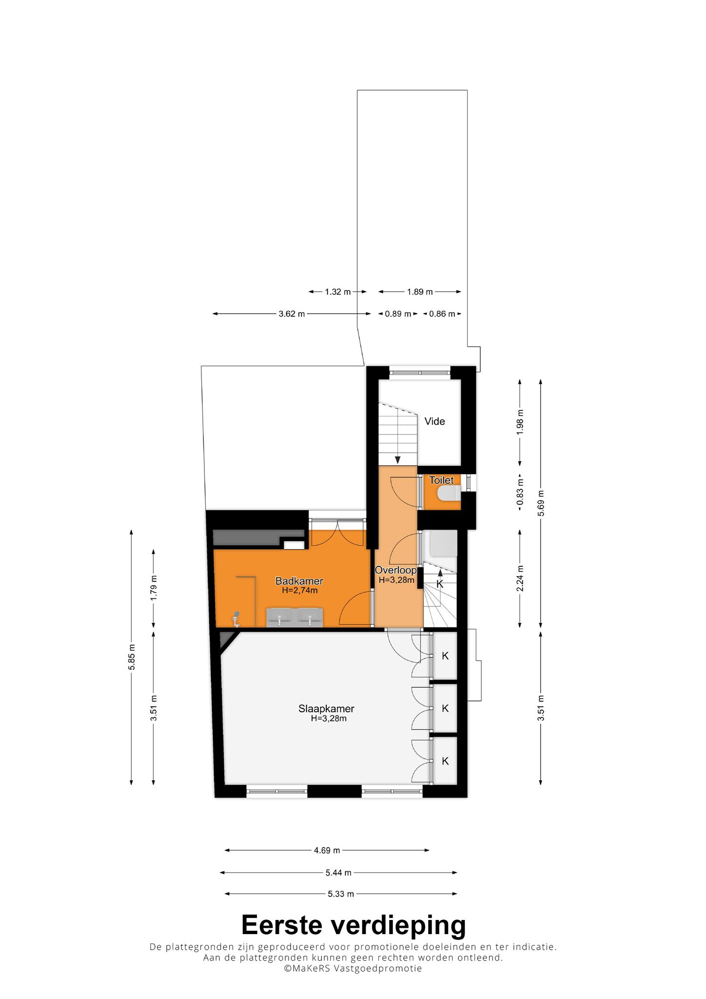
Eerste verdieping:
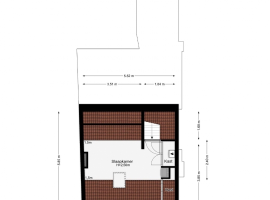
Volg de bordestrap naar de eerste verdieping, waar de slaapkamer I en een badkamer I zijn. Slaapkamer I (5,44 x 3,51) met op maat gemaakte kastenwand en natuurstenen schouw bevindt zich aan de voorzijde van het herenhuis. Het plafond heeft een hoogte van ruim 3.40 meter. In de badkamer (3,62 x 1,79) ziet u sanitair van o.a. Vipp en Vola kranen. U heeft de beschikking over een grote inloopdouche (regendouche en watervaldouche) en een dubbel wastafelmeubel met spiegelkast. Naast de openslaande deuren naar het balkon ziet u een nis met planken en een achterwand van ruw metselwerk, perfect passend in het geheel. Ook is er op deze etage een aparte toiletruimte, uitgevoerd in dezelfde stijl. Onder de trap naar de tweede verdieping is een kast met de wasmachineaansluiting.
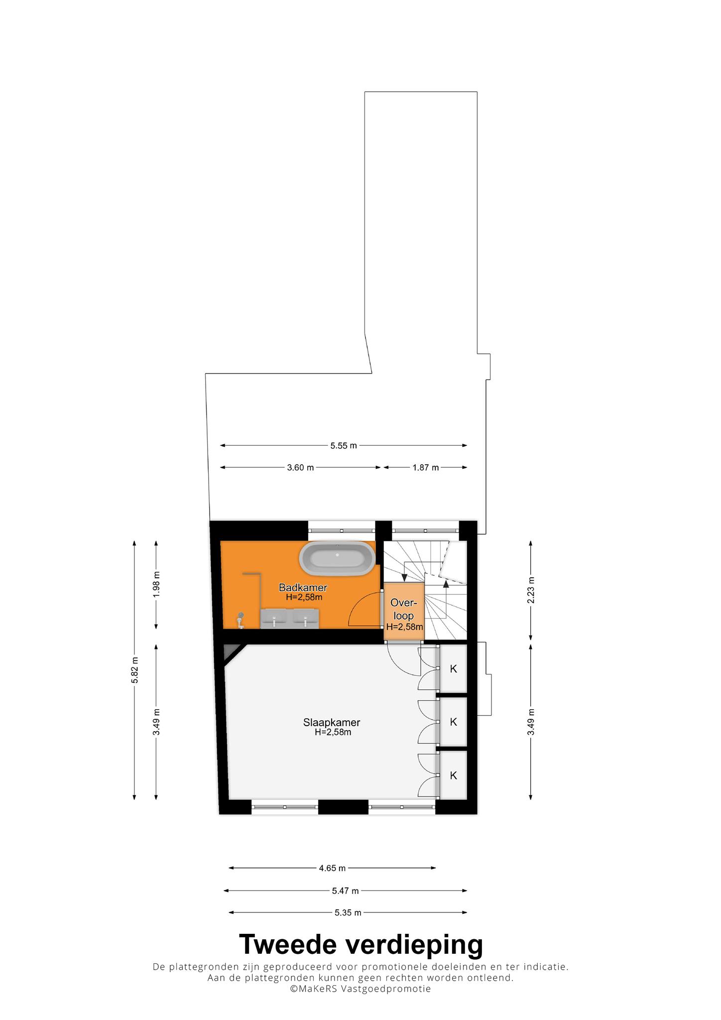
Tweede verdieping:
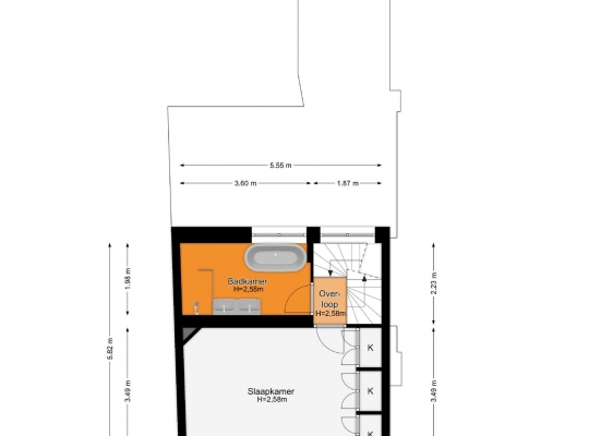
Een verdieping hoger ziet u een soortgelijke indeling met slaapkamer II (5,47 x 3,49) en badkamer II (3,60 x 1,98). De slaapkamer met lichte vloer, eikenhouten balk en op maat gemaakte kastenwand is een sfeervolle kamer waar de witte schouw een decoratieve functie heeft. De badkamer op deze etage is ingedeeld met een prachtig bad, grote inloopdouche en een wastafelmeubel. Qua materiaalkeuze en kleur is deze badkamer vergelijkbaar met badkamer I, zonder concessies te doen ten aanzien van kwaliteit en afwerking.
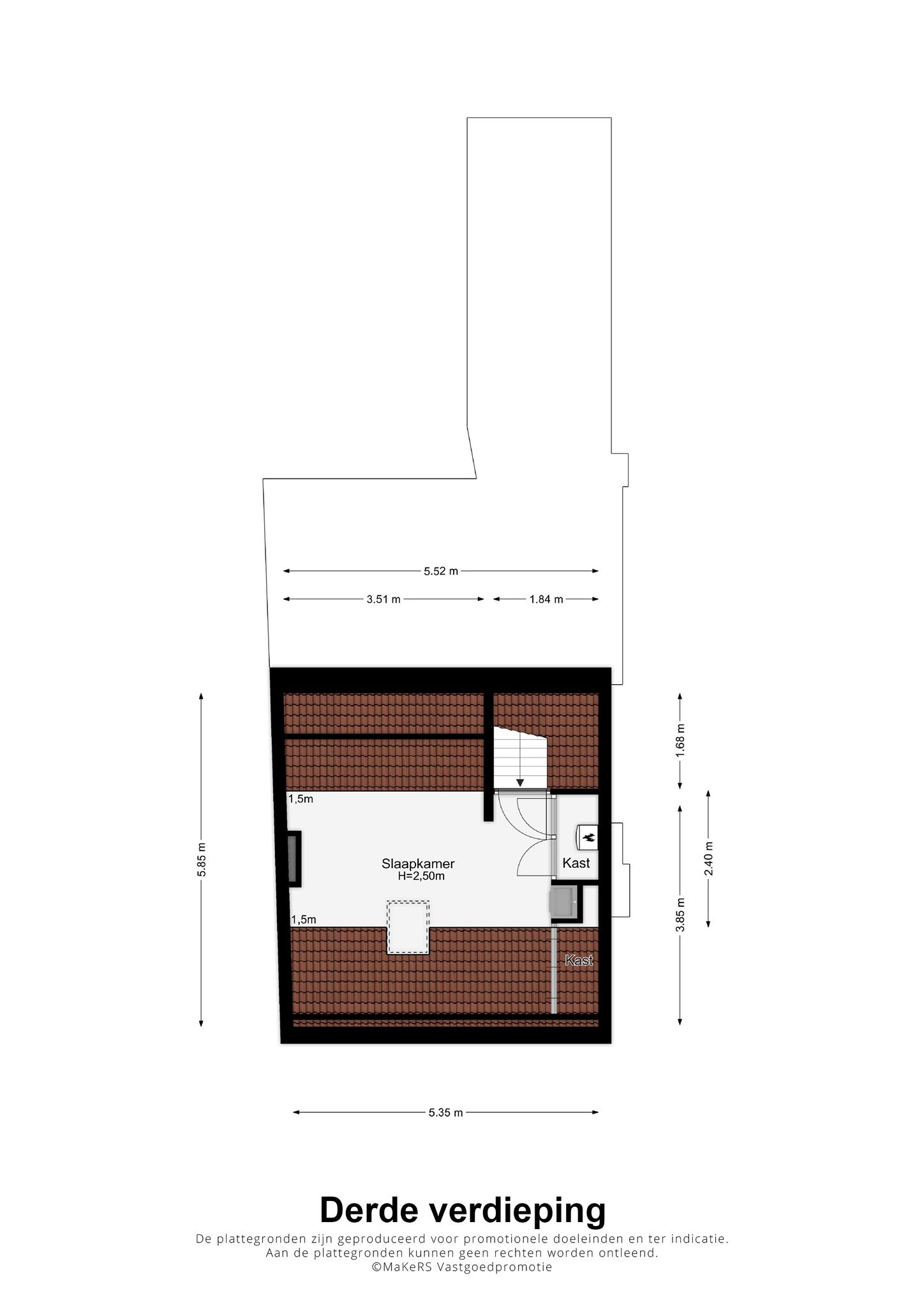
Derde verdieping:
Op de bovenste verdieping is slaapkamer III (5,35 x 2,40) (niet meegerekend in de woonoppervlakte) met een hoge nok, dakraam en een op maat gemaakte kastenwanden met wastafel. In een van deze kasten bevindt zich de HR-ketel (Remeha, 2020, eigendom).
Algemeen:
Bouwjaar: 1825, gerenoveerd vanaf 2020.
Gebruiksoppervlakte wonen: circa 148 m2, inhoud circa 734 m3.
Verwarming en warm water via een HR-ketel (Remeha, 2020, eigendom).
Schuin dak met isolatie.
Hardhouten kozijnen met HR++ glas.
Drie slaapkamers en twee luxe badkamers.
Prachtige Bulthaup keuken met topapparatuur.
Asbest: verkoper is niet bekend dat asbest is verwerkt, echter gezien de leeftijd van de woning bestaat de kans dat er asbesthoudende materialen zijn verwerkt.
verkoper is niet bekend dat er asbesthoudende materialen zijn gebruikt maar gezien de leeftijd van de woning was het mogelijk.
Rijksmonument.
Energielabel: E.
Aanvaarding: in onderling overleg.
Ter bescherming van de belangen van zowel koper als verkoper, wordt uitdrukkelijk gesteld dat een koopovereenkomst met betrekking tot deze onroerende zaak eerst dan tot stand komt nadat koper en verkoper de koopovereenkomst hebben getekend (“schriftelijkheidsvereiste”).
Indien er in de woning huurtoestellen aanwezig zijn zoals CV-ketel, boiler, zonnepanelen, mechanische ventilatie etc. dan dienen deze door de koper te worden overgenomen. De termijn die wordt opgenomen voor eventuele (overeengekomen) ontbindende voorwaarden (bv. Financiering) is in de regel 4 tot 6 weken na het sluiten van de mondelinge wilsovereenkomst.
De waarborgsom/bankgarantie is 10% van de koopsom. De koper dient deze 3 dagen ná het vervallen van de ontbindende voorwaarden bij de desbetreffende notaris te deponeren.
Koper is te allen tijde gerechtigd voor eigen rekening een bouwkundige keuring te (laten) verrichten dan wel andere adviseurs te raadplegen teneinde een goed inzicht te verkrijgen over de staat van onderhoud.
Deze informatie is door ons, Tijs & Cyril Makelaardij met de nodige zorgvuldigheid samengesteld. Onzerzijds wordt echter geen enkele aansprakelijkheid aanvaard voor enige onvolledigheid, onjuist of anderszins, dan wel de gevolgen daarvan. Alle opgegeven maten en oppervlakten zijn indicatief. Van toepassing zijn de NVM-voorwaarden.