Vraagprijs € 475.000,- k.k.
Fraaie stadswoning met 4 slaapkamers, op een rustige plek in het centrum. Tussen de binnenstad, het Frontenpark, Lindenkruis en het Sphinxterrein vindt u het Charles Vos-cour, een oase van rust waar het aangenaam wonen is. Aan een autovrij binnenplein staat deze stadswoning met maar liefst 4 slaapkamers en een fijne stadstuin. Dit is de ultieme plek voor de liefhebber van de stad, die op zoek is naar een (t)huis met ruimte.
Fraaie stadswoning met 4 slaapkamers, op een rustige plek in het centrum. Tussen de binnenstad, het Frontenpark, Lindenkruis en het Sphinxterrein vindt u het Charles Vos-cour, een oase van rust waar het aangenaam wonen is. Aan een autovrij binnenplein staat deze stadswoning met maar liefst 4 slaapkamers en een fijne stadstuin. Dit is de ultieme plek voor de liefhebber van de stad, die op zoek is naar een (t)huis met ruimte.
Typering:
De omstreeks 1993 aangelegde straat is vernoemd naar de Maastrichtse beeldhouwer Charles Vos (1888-1954). Charles Vos-cour is tevens de naam van een postmodernistisch wooncomplex van de Belgische architect Charles Vandenhove, met een ondergrondse parkeergarage en een beschutte binnenhof ('cour') met 93 eengezinswoningen en appartementen. De Hoge Fronten, het Sphinxkwartier, het Vrijthof, de Markt en vele stadsvoorzieningen zijn binnen enkele minuten te voet te bereiken. Voor de lekkerste vlaai loopt u naar bakkerij Hermans en ook voor een goede film, muziekoptreden of een andere uitvoering woont u hier op de perfecte plek.
Begane grond:
Vanaf de Capucijnenstraat loopt u het binnenplein van het Charles Vos-cour op, waar rust en sfeer volop aanwezig zijn. Hier komen geen auto’s, en ziet u prachtige woningen en appartementen in een postmodernistische stijl.
Aan de rechterzijde is huisnummer 4, wat uw nieuwe thuis kan worden. In de ruime en lichte hal (circa 3,36 x 2,18/1,16) zijn de meterkast, trapopgang en de toiletruimte met fonteintje. De lichte tegelvloer ligt niet alleen in de hal, maar op de hele begane grond.
De tuingerichte, L-vormige woon-/eetkamer staat in open verbinding met de keuken. Met een totale oppervlakte van circa 32 m2 is er genoeg plek voor een zithoek, de eettafel en om heerlijk te koken. Vanuit de woonkamer kijkt u door de ramen tot vloerhoogte naar de tuin, en vanuit de keuken naar het rustige binnenplein. De keuken, origineel van het bouwjaar van het huis, heeft een ingebouwde inductie kookplaat, afzuigkap, oven, vaatwasser en een koelkast.
Vanuit de woonkamer heeft u toegang tot de grotendeels betegelde stadstuin op het noordwesten. Dit is een fijne plek om buiten te zitten, bbq’en en te eten in de luwte van de binnenstad. Erg fraai is de oude tuinmuur, en de rest van de tuin vormt een prima basis om naar eigen smaak te verfraaien.
Eerste verdieping:
Aan de achterzijde is slaapkamer I (circa 4,57 x 3,86), in gebruik als master bedroom, met lichtinval vanaf de noordwestkant. Slaapkamer II (circa 4,57 x 2,59), met de boogvormige ramen en een dubbele kastenwand, is een kleedruimte van groot formaat.
Niet alleen de slaapkamers, maar ook de badkamer en de tweede toiletruimte zijn vanaf de overloop te bereiken. De badkamer (circa 2,94 x 1,98) is ingedeeld met een whirlpoolbad, aparte douche en een wastafelmeubel.
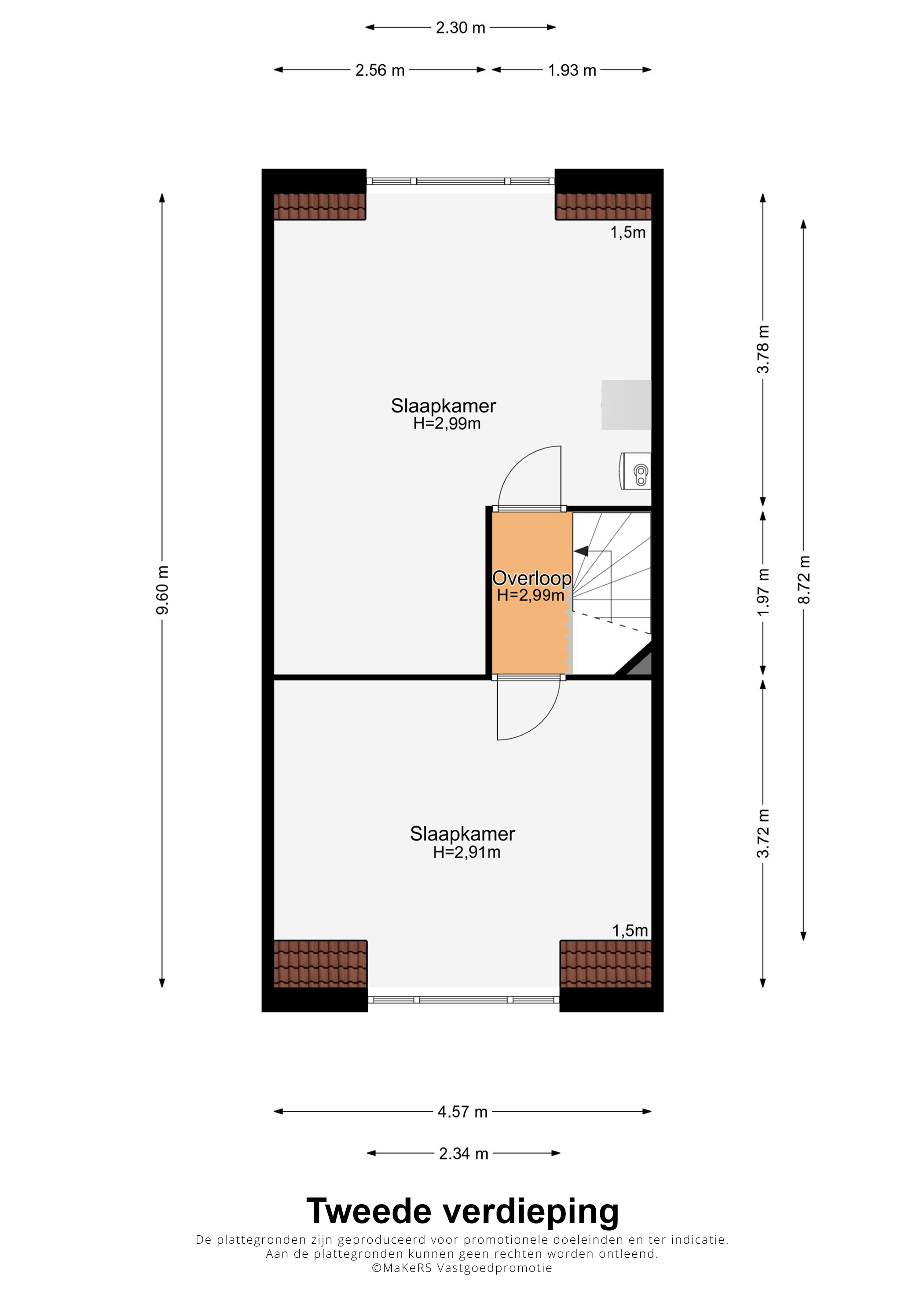
Tweede verdieping:
Het boogvormige dak en de dakkapellen zorgen voor een tweede verdieping met een aangename sfeer. Aan de voorzijde is slaapkamer III (circa 4,57 x 3,72), ingericht als tweepersoonskamer, en slaapkamer IV (circa 4,57 x 5,78/3,78) is aan de achterzijde. In deze kamer, naast de HR-ketel, is de aansluiting voor de wasmachine.
Algemeen:
Bouwjaar: 1993
Perceeloppervlakte: n.v.t.
Gebruiksoppervlakte wonen: circa 147 m2, inhoud circa 399 m3
Verwarming en warm water via een HR-ketel (Intergas, 2015, eigendom)
Hardhouten kozijnen met isolatieglas
De gehele benedenverdieping heeft elektrische vloerverwarming
Vier slaapkamers (twee op de eerste verdieping en twee op de tweede verdieping)
Privétuin, privéberging en een gezamenlijke binnentuin (alleen voor bewoners toegankelijk)
Mogelijkheid tot huur van een parkeerplek in de ondergrondse parkeergarage (Q-park)
VvE bijdrage € 174,16 per maand
Energielabel: A
Aanvaarding: in onderling overleg
In de Gemeente Maastricht geldt vanaf 1 oktober 2022 een Huisvestingsverordening - opkoopbescherming voor woningen (dit kan bij deze woning van toepassing zijn).
Ter bescherming van de belangen van zowel koper als verkoper, wordt uitdrukkelijk gesteld dat een koopovereenkomst met betrekking tot deze onroerende zaak eerst dan tot stand komt nadat koper en verkoper de koopovereenkomst hebben getekend (“schriftelijkheidsvereiste”).
Indien er in de woning huurtoestellen aanwezig zijn zoals CV-ketel, boiler, zonnepanelen, mechanische ventilatie etc. dan dienen deze door de koper te worden overgenomen.
De termijn die wordt opgenomen voor eventuele (overeengekomen) ontbindende voorwaarden (bv. Financiering) is in de regel 4 tot 6 weken na het sluiten van de mondelinge wilsovereenkomst.
De waarborgsom/bankgarantie is 10% van de koopsom. De koper dient deze 3 dagen ná het vervallen van de ontbindende voorwaarden bij de desbetreffende notaris te deponeren.
Koper is te allen tijde gerechtigd voor eigen rekening een bouwkundige keuring te (laten) verrichten dan wel andere adviseurs te raadplegen teneinde een goed inzicht te verkrijgen over de staat van onderhoud.
Deze informatie is door ons, Tijs & Cyril Makelaardij met de nodige zorgvuldigheid samengesteld. Onzerzijds wordt echter geen enkele aansprakelijkheid aanvaard voor enige onvolledigheid, onjuist of anderszins, dan wel de gevolgen daarvan. Alle opgegeven maten en oppervlakten zijn indicatief. Van toepassing zijn de NVM voorwaarden.