Vraagprijs € 691.000,- k.k.
Halfvrijstaande woning met oprit, 3 slaapkamers, 2 badkamers en een kantoorruimte. In Sint Pieter, tegenover de basisschool, biedt deze goed onderhouden halfvrijstaande woning veel wooncomfort. Parkeren kan op eigen terrein, de onderhoudsvriendelijke tuin heeft een eigen achterom en de keuken is, net als beide badkamers, smaakvol uitgevoerd. In 2022 is het dak gerenoveerd waarna er 9 zonnepanelen zijn geplaatst. Verrassend is het souterrain met 4 multifunctionele ruimtes, waaronder een ruime en lichte kantoorruimte.
Halfvrijstaande woning met oprit, 3 slaapkamers, 2 badkamers en een kantoorruimte. In Sint Pieter, tegenover de basisschool, biedt deze goed onderhouden halfvrijstaande woning veel wooncomfort. Parkeren kan op eigen terrein, de onderhoudsvriendelijke tuin heeft een eigen achterom en de keuken is, net als beide badkamers, smaakvol uitgevoerd. In 2022 is het dak gerenoveerd waarna er 9 zonnepanelen zijn geplaatst. Verrassend is het souterrain met 4 multifunctionele ruimtes, waaronder een ruime en lichte kantoorruimte.
Typering:
De ligging is fraai, in het geliefde Sint Pieter. Aan de overzijde van de staat is het kindcentrum Sint Pieter met een basisschool, peuter- en buitenschoolse opvang. De historische binnenstad, de jachthaven, het Stadspark en de voorzieningen in Sint Pieter bevinden zich op loopafstand. U kunt lopend naar de supermarkt en de speciaalzaken aan de Glacisweg, geroemd vanwege de kwaliteit. Via de A2 en A79 zijn steden als Eindhoven, Heerlen en Luik goed bereikbaar.
Souterrain:
Het souterrain, met vier ruimtes, is voor diverse doeleinden te gebruiken. De eerste ruimte, met de trap naar de begane grond, is circa 3,88 x 1,74 en als berging/provisieruimte te bereiken. Dit geldt ook voor ruimte II (circa 2,87 x 1,93) en ruimte III (circa 9,50 x 5,45 / 1.74). Deze laatstgenoemde ruimte heeft een deur naar de tuin en biedt, naast de opstelling van de wasapparatuur, ruimte aan de HR-ketel (Nefit Ecomline HR, 2011, eigendom).
Ruimte IV in het souterrain heeft een plafondhoogte van circa 2,04 meter en een fraaie afwerking, met mergel in het zicht en inbouwverlichting in het plafond. Deze ruimte is ingericht als kantoorruimte, maar ook als atelier of hobbyruimte/speelkamer te gebruiken.
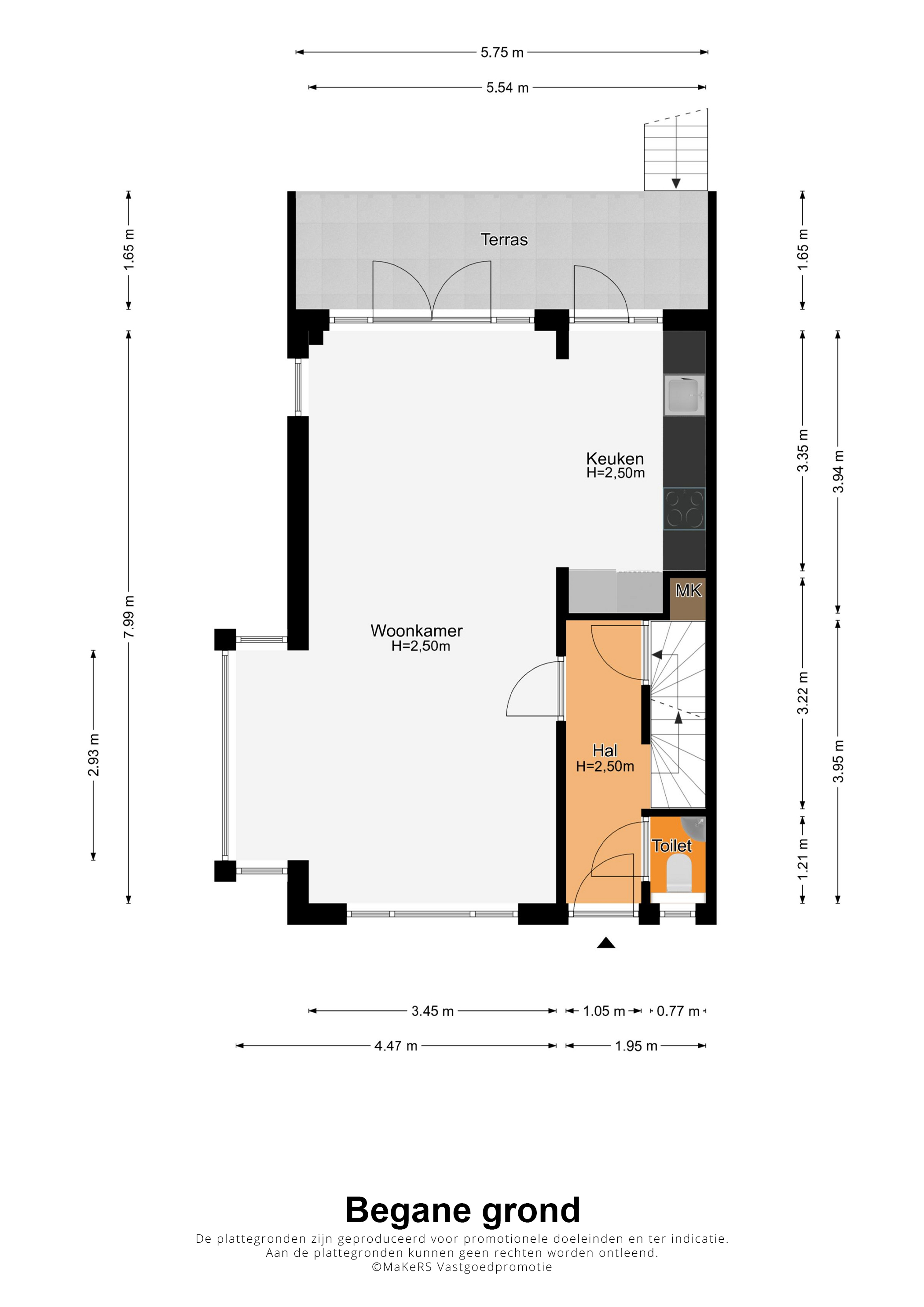
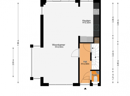
Begane grond:
De hal heeft, net als de rest van de woning, een fantastische uitstraling. Aan de rechterzijde zijn de trap naar het souterrain en de in 2024 gerenoveerde trap naar de eerste verdieping, met ingebouwde verlichting. Verder ziet u stucwerk, trendy behang, paneeldeuren en een donkere tegelvloer. De toiletruimte, ingedeeld met een wandcloset en fonteintje, is uitgevoerd in lichte kleuren.
In de woonkamer met open keuken (totaal circa 36,5 m2) is een sfeervolle leefruimte met een erker en openslaande deuren naar het terras. Grote ramen zorgen voor veel lichtinval en de laminaatvloer, het stucwerk en de zwarte deur naar de hal bepalen de sfeer. In de keuken staat een lichte hoekopstelling met een inductie kookplaat (2024), afzuigkap, koelkast, vriezer, vaatwasser (2024), heteluchtoven en een combimagnetron. Het aanrechtblad is van graniet en de verlichting, boven het aanrecht en in het plafond, is ingebouwd.
Vanuit de keuken en woonkamer is het terras (circa 5,75 x 1,65) met mooie tegelvloer te bereiken. Een buitentrap verbindt het terras met de onderhoudsvriendelijke achtertuin op het oosten. De hardhouten schutting is in 2023 geplaatst en er is een eigen achterom. De oprit, met mogelijkheid voor een laadpaal, biedt ruimte aan één auto.
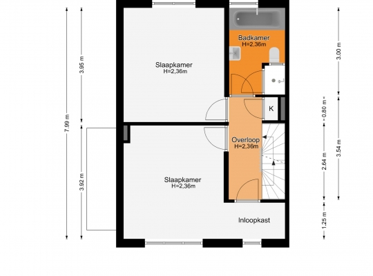
1e verdieping:
Vanaf de overloop zijn twee slaapkamers en een badkamer te bereiken. Op een groot deel van deze verdieping is de originele houten vloer zichtbaar en ook hier zijn de kozijnen en ramen van kunststof, met draai-/kiepramen.
Aan de achterzijde is slaapkamer I (circa 3,48 x 3,95) en slaapkamer II (circa 3,46 x 3,92) met aansluitende inloopkast (circa 1,95 x 1,24) is aan de voorzijde. Beide kamers zijn ingericht als tweepersoonskamer, maar een invulling als ruime kinderkamer is ook mogelijk.
De badkamer (circa 3,00 x 1,93), uitgevoerd in lichte kleuren, is ingedeeld met een ligbad, aparte douche, wandcloset en een wastafel. Het raam, zonder inkijk, zorgt voor veel lichtinval.
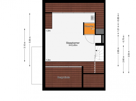
2e verdieping:
Deze verdieping is de plek van slaapkamer III, de master bedroom met en-suite badkamer. Een grote dakkapel zorgt voor een royale vloeroppervlakte van circa 20m2, exclusief de bergruimte in de schuinte van het dak. Boven het bed hangt een elektrische verwarmingsunit en de en-suite badkamer is ingedeeld met een wastafelmeubel en een ruime inloopdouche.
Algemeen:
Bouwjaar: 1958
Perceeloppervlakte: 149 m2
Gebruiksoppervlakte wonen: circa 134 m2, inhoud circa 533 m3
Verwarming en warm water via een HR-ketel (Nefit Ecomline HR, 2011, eigendom)
Kunststof kozijnen met isolatieglas
9 zonnepanelen van 350 Wp, geplaatst in 2022
Parkeergelegenheid op eigen terrein (mogelijkheid voor laadpaal)
Drie slaapkamers, waarvan een met een en-suite badkamer, en een tweede badkamer
Goed onderhouden, instapklare woning in Sint Pieter
Energielabel: C
Aanvaarding: in onderling overleg
In de Gemeente Maastricht geldt vanaf 1 oktober 2022 een Huisvestingsverordening - opkoopbescherming voor woningen (is bij deze woning niet van toepassing)
Ter bescherming van de belangen van zowel koper als verkoper, wordt uitdrukkelijk gesteld dat een koopovereenkomst met betrekking tot deze onroerende zaak eerst dan tot stand komt nadat koper en verkoper de koopovereenkomst hebben getekend (“schriftelijkheidsvereiste”).
Indien er in de woning huurtoestellen aanwezig zijn zoals CV-ketel, boiler, zonnepanelen, mechanische ventilatie etc. dan dienen deze door de koper te worden overgenomen.
De termijn die wordt opgenomen voor eventuele (overeengekomen) ontbindende voorwaarden (bv. Financiering) is in de regel 4 tot 6 weken na het sluiten van de mondelinge wilsovereenkomst.
De waarborgsom/bankgarantie is 10% van de koopsom. De koper dient deze 3 dagen ná het vervallen van de ontbindende voorwaarden bij de desbetreffende notaris te deponeren.
Koper is te allen tijde gerechtigd voor eigen rekening een bouwkundige keuring te (laten) verrichten dan wel andere adviseurs te raadplegen teneinde een goed inzicht te verkrijgen over de staat van onderhoud.
Deze informatie is door ons, Tijs & Cyril Makelaardij met de nodige zorgvuldigheid samengesteld. Onzerzijds wordt echter geen enkele aansprakelijkheid aanvaard voor enige onvolledigheid, onjuist of anderszins, dan wel de gevolgen daarvan. Alle opgegeven maten en oppervlakten zijn indicatief. Van toepassing zijn de NVM voorwaarden.