Vraagprijs € 649.000,- k.k.
Exclusief appartement met privétuin in het hart van Maastricht.
Exclusief appartement met privétuin in het hart van Maastricht.
Op de hoek van de Brusselsestraat en de Sint Nicolaasstraat staat een stijlvol, monumentaal gebouw met de prachtige naam Egidius Meesters. Hier is recent de renovatie afgerond van 3 gelijkvloerse appartementen en 1 fraai penthouse, doordrenkt met luxe en comfort. De appartementen zijn gelijkvloers, met uitzondering van het penthouse dat twee etages telt. Dankzij de indeling van het penthouse, met twee slaapkamers en een badkamer op hetzelfde niveau als het woongedeelte, heeft u ook hier de unieke kans om gelijkvloers te wonen. Een moderne lift verbindt alle verdiepingen moeiteloos en via een trap bereikt u het souterrain, waar de privébergingen gesitueerd zijn. Brusselsestraat 129B is een royaal appartement gelegen op de begane grond van circa 103 m2 dat is uitgevoerd met 3 slaapkamers, waarvan 1 als werkkamer gebruikt kan worden, en een tuin, wat het uniek maakt in dit complex. En dit allemaal op een toplocatie in het Bourgondische, bruisende Maastricht.
OPEN HUIS:Woensdag 29 april 2026 van 16:00 tot 17:00
Donderdag 30 april 2026 van 16:00 tot 17:00
Maandag 04 mei 2026 van 16:00 tot 17:00
Komt u een kijkje nemen? Laat het ons weten, mail uw gegevens naar info@tijsencyril.nl en dan ontvangt u van ons de aanvullende informatie.Typering:Egidius Meesters is een intiem renovatieproject met slechts drie exclusieve appartementen en een penthouse, op de hoek van de Brusselsestraat en de Sint Nicolaasstraat. Het gebouw combineert de charme van de Maastrichtse binnenstad met het comfort van modern wonen. Het Vrijthof, de Markt en de vele terrassen die de stad haar unieke karakter geven, zijn maar een paar minuten lopen.
Parkeren? Dit is mogelijk in de directe omgeving middels een parkeervergunning. Hier woont u niet alleen in Maastricht. U woont in het allermooiste stukje ervan.
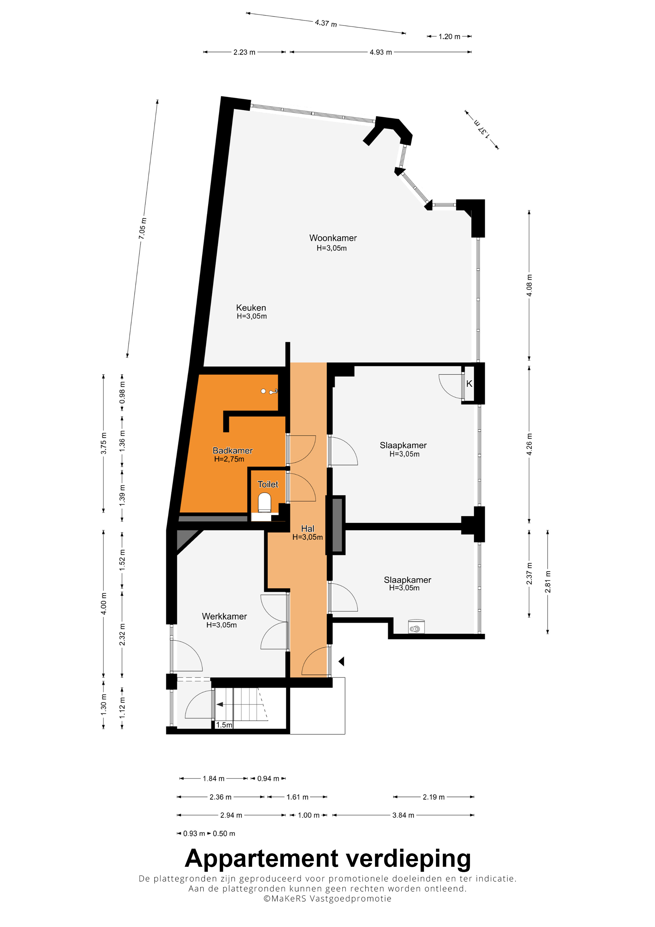
Begane grond:Dit gelijkvloerse appartement van circa 103 m2, met een plafondhoogte van meer dan 3 meter en een privétuin, ademt rust en ruimte. De moderne, gevlinderde betonvloer geeft het interieur een industrieel-chique karakter en het appartement heeft een doordachte indeling, die een gevoel van openheid creëert.
Vanuit de ontvangsthal met garderobenis zijn alle ruimtes van het appartement te bereiken. Aan het einde van de hal is de woonkamer met open keuken, op de hoek van de Brusselsestraat en de Sint Nicolaasstraat. Strak stucwerk, inbouwverlichting en witte shutters vormen de perfecte basis voor uw droominterieur. De aansluitingen voor een keuken zijn reeds geplaatst, wat de mogelijkheid biedt om zelf een keuken naar eigen smaak te laten plaatsen.
Slaapkamer I (circa 4,26 x 3,84) is een royale master bedroom en in slaapkamer II (circa 2,81/2,37 x 3,84) is de opstelling van de HR-ketel. Met een ombouw kunt u deze installatie in no-time aan het zicht onttrekken. Aan de andere zijde van de hal is een fraaie werkkamer (circa 4,00 x 2,94/1,84) met openslaande deuren naar de privétuin van circa 6,5 m2. Ook heeft u vanuit deze kamer toegang tot een kelder welke als berging gebruikt kan worden. Naast de werkkamer zijn het gastentoilet en de badkamer (circa 3,75 x 2,94/2,36), gekenmerkt door een fraaie indeling met een ligbad, wastafel met meubel en een grote inloopdouche.
Via een geïntegreerd domoticasysteem bedient u de verlichting intuïtief, past de slimme thermostaat zich aan uw leefritme aan, en regelt de vloerverwarming zichzelf voor optimaal comfort. Technologie die onzichtbaar is, maar voelbaar in uw dagelijks welbevinden.De privétuin biedt een eigen buitenruimte midden in de stad, waar u 's ochtends uw koffie drinkt en 's avonds met vrienden of familie kunt genieten. Een tuin in de historische binnenstad … wie droomt daar niet van?
Algemeen: Bouwjaar: 1926, algehele renovatie in 2025/2026
Gebruiksoppervlakte wonen: circa 103 m2, inhoud circa 416 m3
Vloerwarming en warm water via een individuele HR-ketel (Intergas, eigendom)
WTW-installatie voor aangenaam comfort en een goed woonklimaat
Hardhouten kozijnen met HR++ glas
Begane grond appartement met privétuin en inpandig te bereiken berging
Vloerafwerking en keukenafwerking geheel naar eigen smaak af te werken
VvE-kosten: circa € 255,92 per maand
Energielabel: A
Aanvaarding: in onderling overleg, per direct mogelijk!
In de Gemeente Maastricht geldt vanaf 1 oktober 2022 een Huisvestingsverordening - opkoopbescherming voor woningen (dit kan bij deze woning van toepassing zijn).
Ter bescherming van de belangen van zowel koper als verkoper, wordt uitdrukkelijk gesteld dat een koopovereenkomst met betrekking tot deze onroerende zaak eerst dan tot stand komt nadat koper en verkoper de koopovereenkomst hebben getekend (“schriftelijkheidsvereiste”).
Indien er in de woning huurtoestellen aanwezig zijn zoals CV-ketel, boiler, zonnepanelen, mechanische ventilatie etc. dan dienen deze door de koper te worden overgenomen.
De termijn die wordt opgenomen voor eventuele (overeengekomen) ontbindende voorwaarden (bv. Financiering) is in de regel 4 tot 6 weken na het sluiten van de mondelinge wilsovereenkomst.
De waarborgsom/bankgarantie is 10% van de koopsom. De koper dient deze 3 dagen ná het vervallen van de ontbindende voorwaarden bij de desbetreffende notaris te deponeren.
Koper is te allen tijde gerechtigd voor eigen rekening een bouwkundige keuring te (laten) verrichten dan wel andere adviseurs te raadplegen teneinde een goed inzicht te verkrijgen over de staat van onderhoud.
Deze informatie is door ons, Tijs & Cyril Makelaardij met de nodige zorgvuldigheid samengesteld. Onzerzijds wordt echter geen enkele aansprakelijkheid aanvaard voor enige onvolledigheid, onjuist of anderszins, dan wel de gevolgen daarvan. Alle opgegeven maten en oppervlakten zijn indicatief. Van toepassing zijn de NVM voorwaarden.