Vraagprijs € 249.000,- k.k.
Superleuk appartement met eigen tuin en parkeerplek, nabij de stad en natuur. Als u de Bosscherweg richting Smeermaas volgt, dan ziet u aan de linkerzijde een prachtig pand met een grote schuur staan, op een perceel van maar liefst 2210 m2. In dit pand zijn 8 appartementen gerealiseerd, waaronder dit gelijkvloerse appartement op de begane grond. Dit is een fijne plek om te wonen, met een privétuin en een vaste parkeerplek voor de auto. De mooie badkamer, moderne keuken, laminaatvloer en grote schuifdeurkast in de slaapkamer zorgen ervoor dat u al snel kan beginnen met inrichten.
Superleuk appartement met eigen tuin en parkeerplek, nabij de stad en natuur. Als u de Bosscherweg richting Smeermaas volgt, dan ziet u aan de linkerzijde een prachtig pand met een grote schuur staan, op een perceel van maar liefst 2210 m2. In dit pand zijn 8 appartementen gerealiseerd, waaronder dit gelijkvloerse appartement op de begane grond. Dit is een fijne plek om te wonen, met een privétuin en een vaste parkeerplek voor de auto. De mooie badkamer, moderne keuken, laminaatvloer en grote schuifdeurkast in de slaapkamer zorgen ervoor dat u al snel kan beginnen met inrichten.
Op het perceel staat niet alleen het fraaie pand met appartementen, maar ook een groot schuurgebouw met bergingen en een gezamenlijke fietsenberging. Er zijn niet alleen parkeerplaatsen die bij de appartementen horen, maar ook 3 bezoekersparkeerplaatsen. De gezamenlijke tuin met hoge bomen, volop groen en terrassen maakt het wonen op deze plek extra aantrekkelijk.
Typering:
Hier woont u aan de rand van het bruisende Maastricht en met prachtige natuur binnen handbereik. Met de fiets is het ongeveer 10 minuten naar de Muziekgieterij, Lumière, het Sphinxgebouw met bioscoop, de Markt en de rest van de historische binnenstad. Iets verder in de straat is een opstappunt om te gaan raften en kajakken, en de omgeving van de Maas is een geliefde plek om te gaan wandelen.
Indeling:
Begane grond:
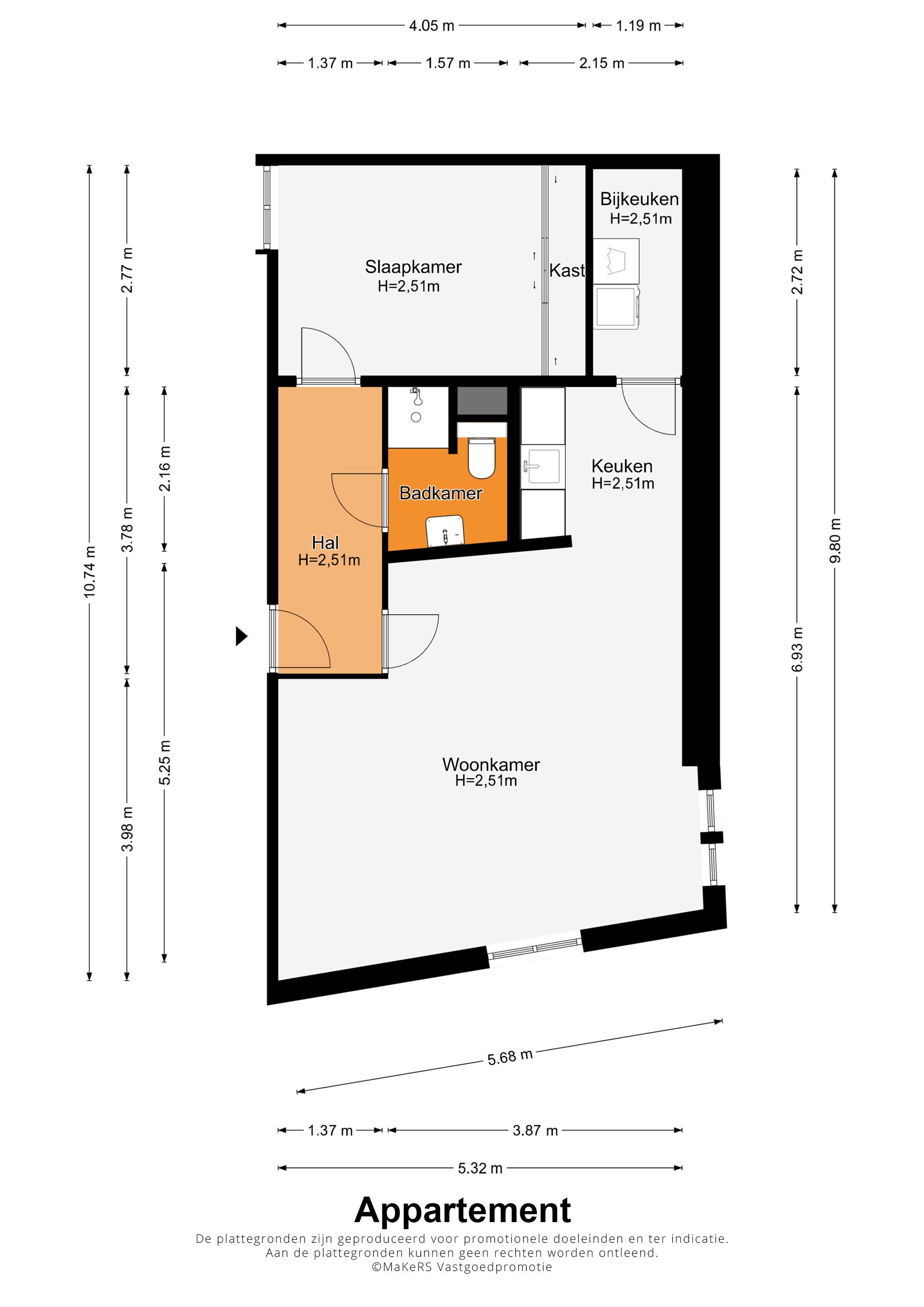
In de gezamenlijke hal, aan de rechterzijde, is de voordeur van dit superleuke appartement. Vanuit de hal zijn de woonkamer, slaapkamer en de badkamer te bereiken. Er ligt laminaat op de vloer en het geheel maakt een verzorgde indruk.
De woonkamer en aansluitende keuken hebben een gezamenlijke oppervlakte van circa 28 m2. Door het grote raam bij het zitgedeelte valt de fijne ochtendzon naar binnen en de aangrenzende tuin hoort bij het appartement. Het eetgedeelte bevindt zich vlak naast de keuken, waar een hoogglans rode wandopstelling met een inductie kookplaat staat. In de bijkeuken (circa 2,72 x 1,19) is ruimte voor de wasmachine, droger en andere spullen.
Aan de achterzijde is de ruime slaapkamer (circa 4,05 x 2,77) met een grote schuifdeurkast en uitzicht op de gezamenlijke tuin. De badkamer (circa 2,16 x 1,57) is ingedeeld met een douche, wandcloset en een wastafel. Een grote spiegel maakt de badkamer heel ruimtelijk en de wanden zijn geheel betegeld.
De tuin aan de voorzijde, rechts van het pad naar de voordeur, hoort bij het appartement. Een fijne plek om buiten te zitten, met zon in de ochtend en middag. Aan de andere zijde van het pand is een gezamenlijke tuin, met veel groen en zitgelegenheid. In deze gezamenlijke tuin bevindt zich een tweede klein stukje privé tuin.
Algemeen:
Bouwjaar: 1994
Gebruiksoppervlakte wonen: circa 55 m2, inhoud: circa 181 m3
Verwarming en warm water via een HR-ketel (Nefit, 2024, eigendom)
Kunststof kozijnen met HR-glas
Gelijkvloers appartement met eigen tuin
Eigen berging (circa 2,61 x 1,40) in bijgebouw en een gezamenlijke fietsenberging
Vaste parkeerplek op eigen terrein, verder zijn er 3 parkeerplaatsen voor bezoekers
Privétuin aan de voorzijde en een grote, gezamenlijke tuin aan de achterzijde
Energielabel: C
Aanvaarding: in onderling overleg
De NVM-vragenlijst Deel B en de Lijst van Zaken zijn niet van toepassing, aangezien de woning wordt verkocht met een niet-zelfbewoningsclausule. Verkoper heeft de woning zelf niet bewoond en kan derhalve koper niet informeren over eigenschappen en/of gebreken waarvan hij niet op de hoogte is.
In de Gemeente Maastricht geldt vanaf 1 oktober 2022 een Huisvestingsverordening - opkoopbescherming voor woningen (https://www.gemeentemaastricht.nl/wonen-en-verhuizen/opkoopbescherming-voor-woningen).
Ter bescherming van de belangen van zowel koper als verkoper, wordt uitdrukkelijk gesteld dat een koopovereenkomst met betrekking tot deze onroerende zaak eerst dan tot stand komt nadat koper en verkoper de koopovereenkomst hebben getekend (“schriftelijkheidsvereiste”).
De termijn die wordt opgenomen voor eventuele (overeengekomen) ontbindende voorwaarden (bv. Financiering) is in de regel 4 tot 6 weken na het sluiten van de mondelinge wilsovereenkomst.
De waarborgsom/bankgarantie is 10% van de koopsom. De koper dient deze 3 dagen ná het vervallen van de ontbindende voorwaarden bij de desbetreffende notaris te deponeren. Koper is te allen tijde gerechtigd voor eigen rekening een bouwkundige keuring te (laten) verrichten dan wel andere adviseurs te raadplegen teneinde een goed inzicht te verkrijgen over de staat van onderhoud.
Deze informatie is door ons Tijs & Cyril Makelaardij met de nodige zorgvuldigheid samengesteld.
Onzerzijds wordt echter geen enkele aansprakelijkheid aanvaard voor enige onvolledigheid, onjuist of anderszins, dan wel de gevolgen daarvan. Alle opgegeven maten en oppervlakten zijn indicatief. Van toepassing zijn de NVM voorwaarden.