Vraagprijs € 500.000,- k.k.
Jaren ’30 herenhuis met 3 appartementen, nabij natuurgebied De Hoge Fronten
Jaren ’30 herenhuis met 3 appartementen, nabij natuurgebied De Hoge Fronten
. Aan de Bilserbaan, een fietsstraat waar auto’s zich aanpassen aan de snelheid, staat dit royale herenhuis uit de geliefde jaren ’30. Het pand is thans ingericht met 3 appartementen, maar kan ook volledig als woonhuis worden gebruikt. Een invulling als meergeneratiewonen of gedeeltelijke verhuur is ook mogelijk. Elk appartement heeft een eigen keuken en een badkamer en de tuin is, net als het dakterras en het balkon, op het zonnige zuidwesten.
OPEN HUIS:
Vrijdag 17 oktober van 09:00 tot 10:00 uur
Dinsdag 21 oktober van 16:00 tot 17:00 uur
Komt u een kijkje nemen? Laat het ons weten, mail uw gegevens naar info@tijsencyril.nl en dan ontvangt u van ons de aanvullende informatie.
Typering:
De ligging is fraai, op loopafstand van natuurgebied De Hoge Fronten en winkelcentrum Brusselse Poort. Verder zijn er een slagerij/supermarkt, diverse (afhaal)restaurants en een bushalte in de buurt. Via de Brusselstraat is het slechts 1,5 kilometer naar het Vrijthof, in het historische centrum van Maastricht.
Souterrain:
Vanuit de hal heeft u toegang tot het souterrain (circa 5,95 x 1,68).
Deze ruimte kan als provisiekelder, wijnkelder en/of berging worden gebruikt.
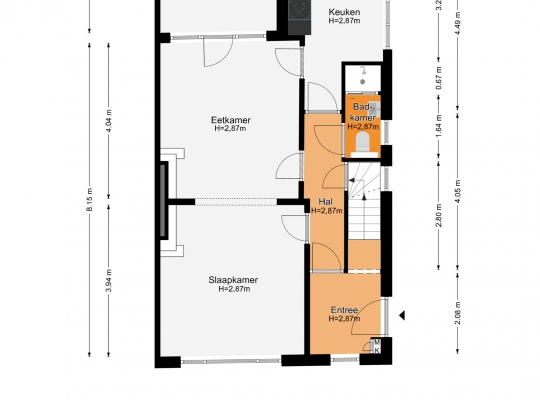
Begane grond:
Aan de rechterzijde is de fraaie entree (circa 2,08 x 1,84) met diverse stijlelementen. Het glas-in loodraam, de voordeur, hoge lambrisering en de hardhouten trap vormen een fraai geheel. Naast de trap is een deur met een glas-in loodraam in én boven de deur. Achter deze deur is een hal (circa 4,05 x 0,89) die toegang biedt tot de woonkamer, eetkamer, keuken, badkamer en het souterrain.
De woon-/eetkamer (circa 8,15 x 3,74) is een fraaie leefruimte met een visgraat parketvloer, dubbele schouw, hoge plafonds en paneeldeuren. Aan de achterzijde is een serre (circa 2,49 x 3,02) gebouwd, perfect als werkkamer of speelkamer van de kinderen. Een deel van de woonkamer kan worden gebruikt als slaapkamer I.
Vanuit de hal en woon-/eetkamer heeft u toegang tot de keuken (circa 4,49/3,23 x 2,47/2,03). Hier ligt de originele vloer en het hoge plafond maakt, samen met de grote ramen, de keuken heel ruimtelijk. De lichte wandopstelling heeft een ingebouwde gaskookplaat en afzuigkap. Naast de keuken is de badkamer (circa 2,30 x 0,92) met een toilet, wastafel en een douche.
Vanuit de serre en keuken is de tuin op het zuidwesten te bereiken, die de vorm van een driehoek heeft. Er is een poort naar de openbare weg, er staat een houten schutting en er is genoeg plek om lekker buiten te zitten.
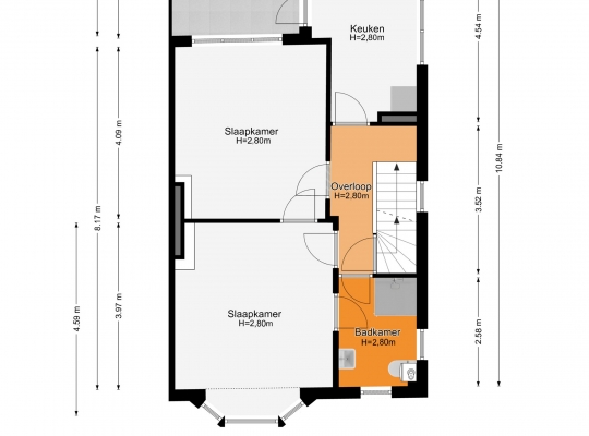
1e verdieping:
De hardhouten trap brengt u naar de eerste verdieping. Deze etage heeft, net als de begane grond en tweede verdieping, de indeling van een tweekamerappartement met een eigen keuken en badkamer. Ook op deze verdieping zijn diverse stijlelementen behouden, van paneeldeuren tot glas-in loodramen.
Aan de voorzijde is de woonkamer (circa 3,97 x 3,76) met een erker. Deze kamer is, bij volledige bewoning als woonhuis, heel geschikt als slaapkamer II. Slaapkamer III (circa 4,09 x 3,76) bevindt zich aan de achterzijde. In beide kamers ligt laminaat en bij de schouw in de kamer aan de achterzijde zijn de originele tegels behouden.
Badkamer II (circa 2,58 x 1,85) met een douche, toilet en een wastafel is aan de voorzijde. Keuken II (circa 4,54 x 2,50/2,05), met toegang tot het dakterras, biedt ruimte aan een blauwe wandopstelling met een gaskookplaat, afzuigkap en een oven. Vanuit de keuken heeft u toegang tot het dakterras (circa 3,03 x 2,59), gesitueerd op het zuidwesten.
2e verdieping:
Het derde appartement heeft een loftachtige indeling met een grote woon-/slaapkamer, een aparte keuken en een badkamer met berging. Op deze verdieping is een balkon (circa 2,96 x 2,74) op het zonnige zuidwesten.
Het balkon is te bereiken vanuit de woon-/slaapkamer van circa 8,19 x 3,82/3,65 meter, met een balkenplafond en een dakkapel aan de voorzijde. In het achterste deel is een vide, met een trap naar de bovengelegen zolder.
Badkamer III (circa 1,83 x 1,99) is ingedeeld met een douche, wastafel en een toilet. De aansluitende berging in de schuinte van het dak biedt ruimte aan de koffers en andere spullen. Aan de voorzijde is keuken III (circa 2,62 x 1,86), waar een hoekopstelling staat.
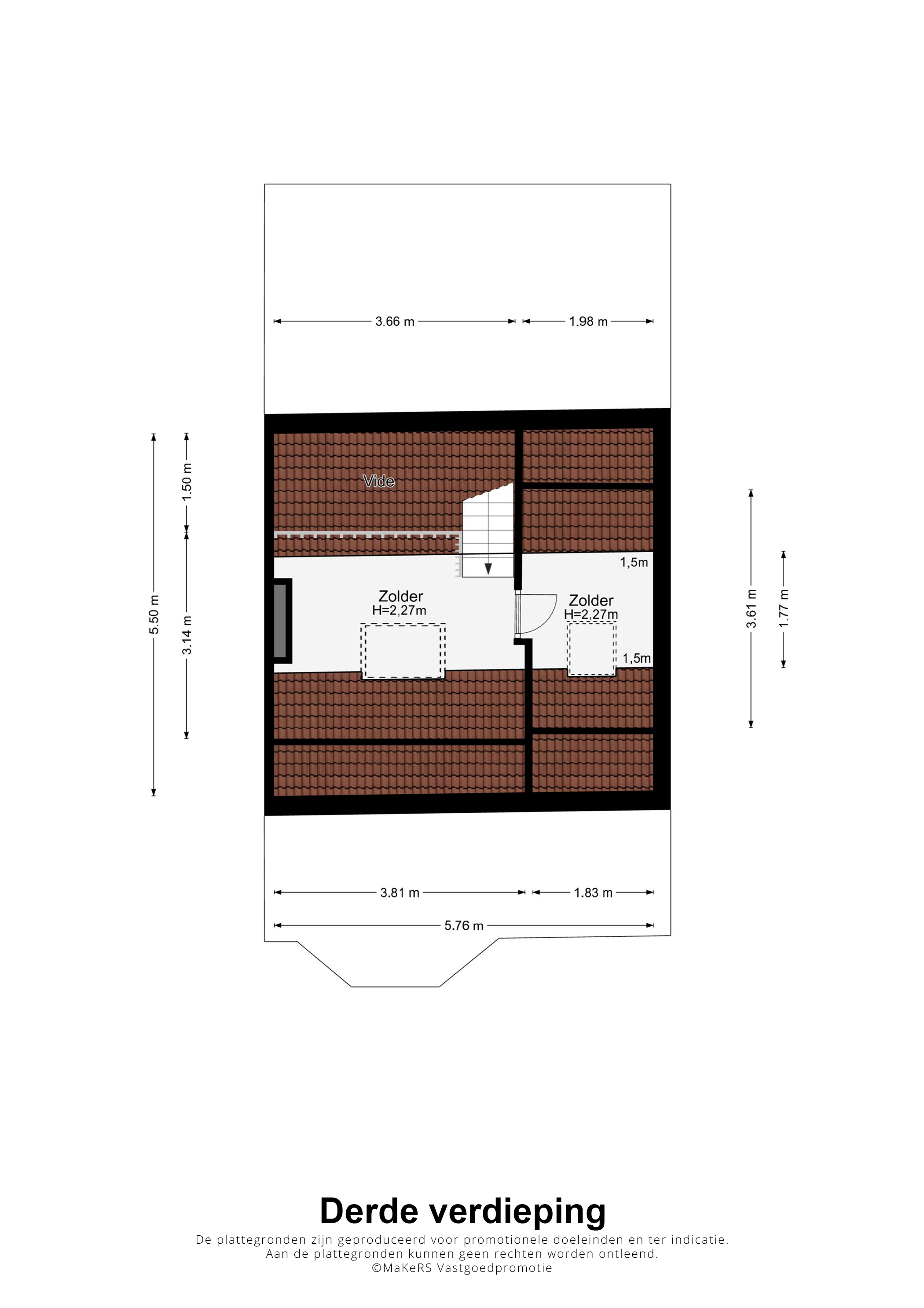
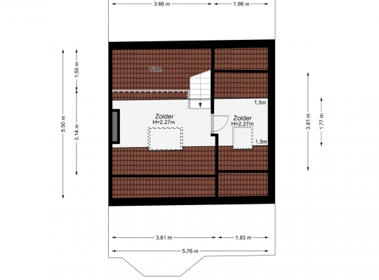
Zolder:
In de nok van het herenhuis zijn twee zolderruimtes. Zolder I (circa 3,81 x 3,14) kan worden gebruikt als slaapruimte, thuiswerkplek of studeerplek. Deze ruimte heeft, net als zolder II (circa 3,61 x 1,98) een dakraam aan de voorzijde.
Algemeen:
Bouwjaar: 1939
Gebruiksoppervlakte wonen: circa 164 m2, inhoud circa 668 m3
Perceeloppervlakte: 143 m2
In gebruik als 3 appartementen, elk met een eigen keuken en badkamerVerwarming en warm water via een HR-ketel (2022, eigendom) en geiser (2022, eigendom)Geiser in de badkamer op de eerste verdiepingTuin, een dakterras en een balkon op het zuidwestenStijlvol jaren ’30 herenhuis met diverse originele elementenHouten kozijnen met enkel glas en deels kunststof kozijnen met deels HR++ glasAsbest: niet bekendEnergielabel: D
Aanvaarding: in onderling overleg In de Gemeente Maastricht geldt vanaf 1 oktober 2022 een Huisvestingsverordening - opkoopbescherming voor woningen (dit is bij deze woning van toepassing).
Ter bescherming van de belangen van zowel koper als verkoper, wordt uitdrukkelijk gesteld dat een koopovereenkomst met betrekking tot deze onroerende zaak eerst dan tot stand komt nadat koper en verkoper de koopovereenkomst hebben getekend (“schriftelijkheidsvereiste”).
Indien er in de woning huurtoestellen aanwezig zijn zoals CV-ketel, boiler, zonnepanelen, mechanische ventilatie etc. dan dienen deze door de koper te worden overgenomen.
De termijn die wordt opgenomen voor eventuele (overeengekomen) ontbindende voorwaarden (bv. Financiering) is in de regel 4 tot 6 weken na het sluiten van de mondelinge wilsovereenkomst.
De waarborgsom/bankgarantie is 10% van de koopsom. De koper dient deze 3 dagen ná het vervallen van de ontbindende voorwaarden bij de desbetreffende notaris te deponeren.
Koper is te allen tijde gerechtigd voor eigen rekening een bouwkundige keuring te (laten) verrichten dan wel andere adviseurs te raadplegen teneinde een goed inzicht te verkrijgen over de staat van onderhoud.
Deze informatie is door ons, Tijs & Cyril Makelaardij met de nodige zorgvuldigheid samengesteld. Onzerzijds wordt echter geen enkele aansprakelijkheid aanvaard voor enige onvolledigheid, onjuist of anderszins, dan wel de gevolgen daarvan. Alle opgegeven maten en oppervlakten zijn indicatief. Van toepassing zijn de NVM voorwaarden.