Zeer ruime, fraai verbouwde hoekwoning in Heugemerveld. Op de hoek van de Baron van Hövellstraat en de Leo Moonenstraat staat deze verrassend ruime woning met 3 (mogelijk 4) slaapkamers, een xl-badkamer, 2 toiletruimtes en een stahoog souterrain. De woonkamer staat in open verbinding met de keuken, voorzien van alle benodigde inbouwapparatuur. In huis hangen 2 airco-units, op het dak liggen 15 zonnepanelen en het dak is geisoleerd. De voortuin is aangelegd met fraaie beplanting en de achtertuin, met een grote overkapping en een overdekt terras, is gesitueerd op het zonnige westen.
Zeer ruime, fraai verbouwde hoekwoning in Heugemerveld. Op de hoek van de Baron van Hövellstraat en de Leo Moonenstraat staat deze verrassend ruime woning met 3 (mogelijk 4) slaapkamers, een xl-badkamer, 2 toiletruimtes en een stahoog souterrain. De woonkamer staat in open verbinding met de keuken, voorzien van alle benodigde inbouwapparatuur. In huis hangen 2 airco-units, op het dak liggen 15 zonnepanelen en het dak is geisoleerd. De voortuin is aangelegd met fraaie beplanting en de achtertuin, met een grote overkapping en een overdekt terras, is gesitueerd op het zonnige westen.
Typering:
De wijk Heugemerveld is een geliefde plek om te wonen op loopafstand van het trein-/busstation, Céramique en Wyck. Ook het historische centrum met winkels, restaurants, terrassen en het theater bevindt zich op loopafstand. Iets verder in de straat is een supermarkt en verder woont u in de nabijheid van een sportschool, Centre Ceramique en basisonderwijs. Werkt u in het MUMC+ of bij Maastricht University, dan kunt met de fiets en met de auto zijn uitvalswegen, net als de snelwegen A2/A79, binnen handbereik.
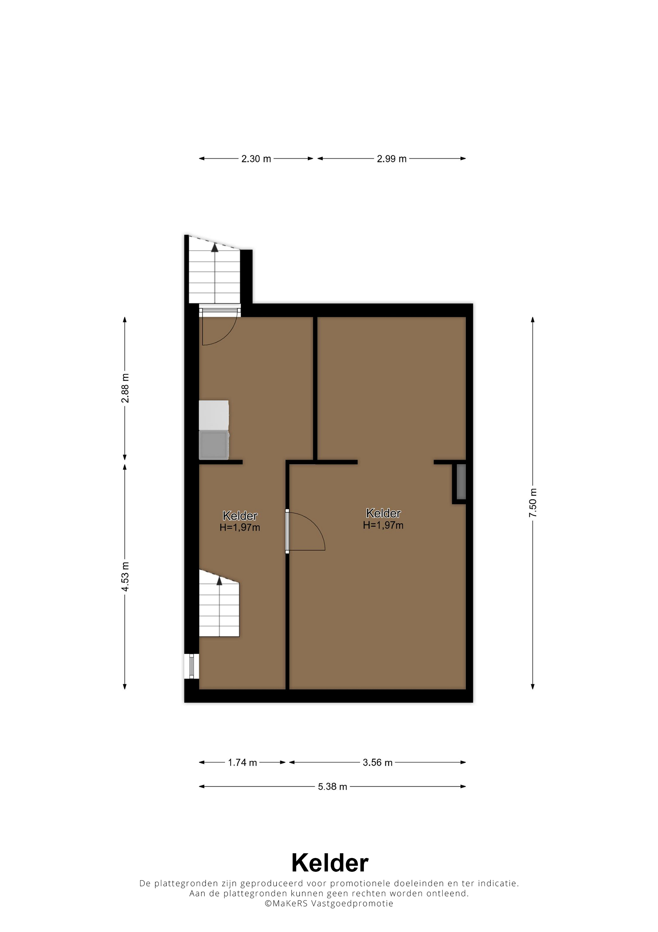
Souterrain:
Wat u aan de buitenzijde niet ziet, is het souterrain onder het gehele woonhuis. Met een hoogte van circa 1,97 meter en een buitentrap naar de tuin is het souterrain geschikt als tuin-/fietsenberging en hobbyruimte.
Ook is er een trap vanuit de hal, die toegang geeft tot kelder I (circa 4,53 x 1,74). De grootste ruimte is kelder II (circa 4,53 x 3,56), eveneens aan de voorzijde. Aansluitend is kelder III (circa 2,85 x 2,99) en in kelder IV (circa 3,88 x 2,30) is de opstelling van de wasapparatuur.
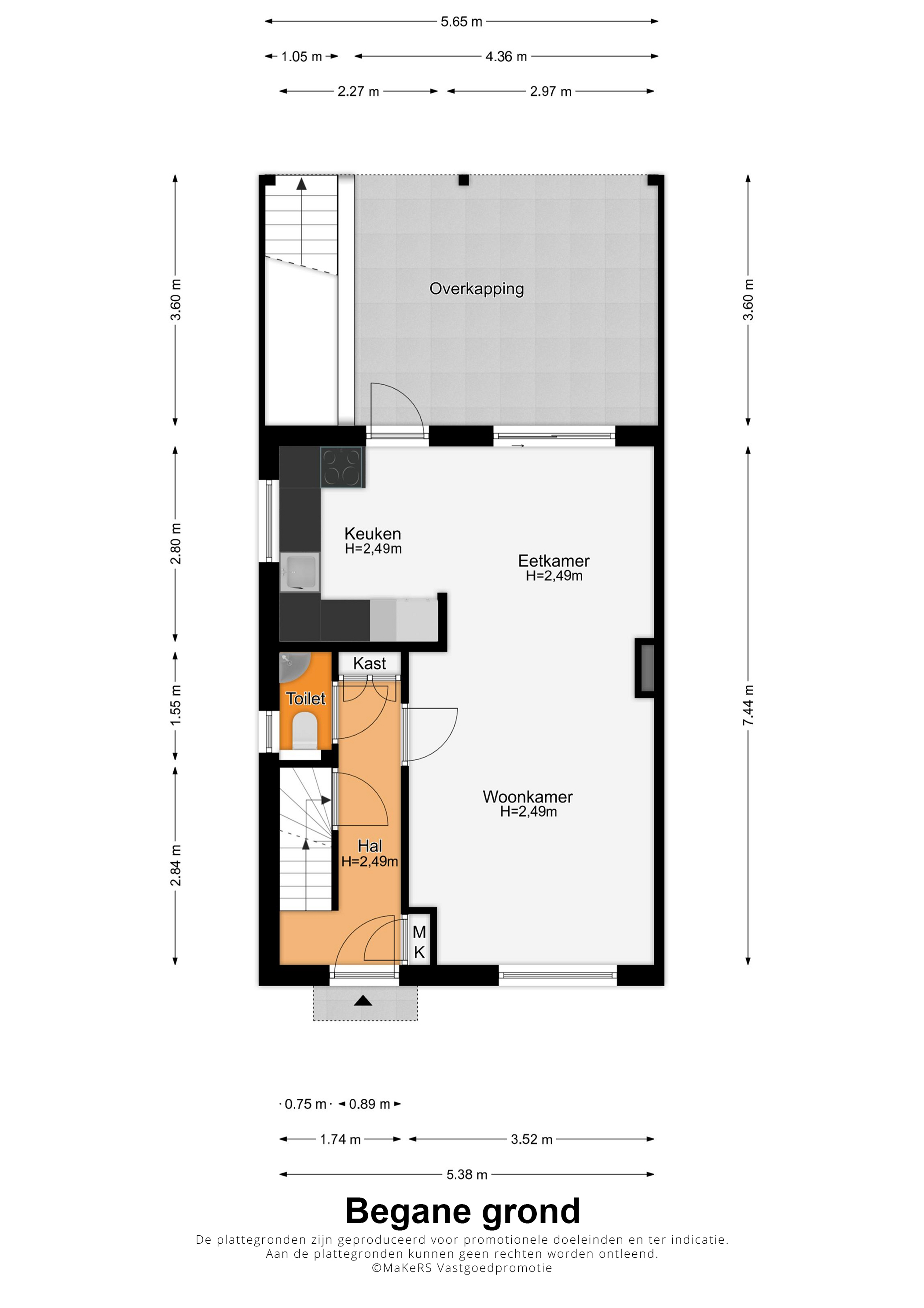
Begane grond:
Via de vernieuwde voordeur, uitgevoerd in een klassieke stijl, is de hal (circa 4,49 x 1,74) te bereiken. Hier zijn de trappen naar het souterrain en eerste verdieping, de meterkast, een garderobekast en de toiletruimte met fonteintje. Fraaie elementen zijn de tegelvloer en het ronde raam in het toilet.
De woonkamer staat in halfopen verbinding met de keuken, met een totale oppervlakte van circa 32,5 m2. Het zitgedeelte is aan de voorzijde, met mooi uitzicht naar de voortuin, en bij het eetgedeelte is een schuifpui naar de tuin geplaatst. Muren en het plafond zijn gestuct, er zijn twee fraaie radiatoren geplaatst en bij het eetgedeelte hangt een airco-unit.
In de keuken, met een zijraam, staat een lichte U-opstelling met een granieten aanrechtblad en achterwand bij het kookgedeelte. Deze keuken heeft veel bergruimte en de inductie kookplaat, afzuigkap, oven, vaatwasser en koelkast zijn ingebouwd.
Vanuit de keuken en woonkamer is de fraai aangelegde, onderhoudsvriendelijke achtertuin te bereiken. De overkapping met terras (circa 4,36 x 3,60) is het verlengstuk van de woonkamer en de iets lagergelegen tuin is ingedeeld met sierbestrating, verhoogde borders en fraaie beplanting. De houten berging met overkapping, beiden met elektra, maken de tuin meer dan af. Onder de overkapping is een poort naar de steeg.
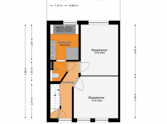
Eerste verdieping:
De overloop is, net als de rest van het huis, heel ruim en licht. Aan de voorzijde is de vaste trap naar de tweede verdieping en aan de achterzijde, naast de toiletruimte, is de ruime badkamer (circa 2,81 x 2,25). Deze ruimte, gerealiseerd in 2002, is ingedeeld met een whirlpoolbad, inloopdouche (2024) en een dubbel wastafelmeubel met spiegelkast. Er is een inpandige verbinding tussen de badkamer en toiletruimte.
Verder zijn er twee slaapkamers op deze verdieping. Slaapkamer I (circa 3,34 x 3,54), ingericht als hobby- en kleedruimte, is aan de voorzijde en slaapkamer II (circa 4,05 x 2,98) bevindt zich aan de achterzijde. In deze kamer, hangt net als in de woonkamer, een airco-unit.
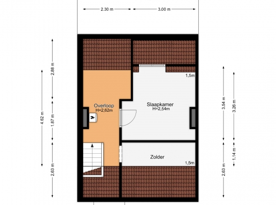
Tweede verdieping:
De eerste ruimte is de overloop, met de opstelling van de HR-ketel (Vaillant, circa 2012, huur). Aan beide kanten, in de schuinten van de dag, is veel bergruimte. Aan de achterzijde is slaapkamer III (circa 3.52 x 3.54) met een dakkapel en aan de voorzijde is een zolder (circa 3,52 x 2,63), die verbouwd kan worden tot werk- of slaapkamer.
Algemeen:
Bouwjaar: 1948
Perceeloppervlakte: 142 m2
Gebruiksoppervlakte wonen: circa 105 m2, inhoud circa 473 m3
Verwarming en warm water via een HR-ketel (Vaillant, circa 2012, huur)
Airco-unit (koelen en verwarmen)
Hardhouten kozijnen met isolatieglas en rolluiken (voor- en achterzijde)
Geïsoleerd dak met 15 zonnepanelen
Groot, multifunctioneel souterrain met een trap naar de tuin
Drie (mogelijk vier) slaapkamers
Ruime badkamer en twee toiletruimtes
Fraai aangelegde tuin met een overkapping, berging en overdekt terras
Energielabel: C
Aanvaarding: in onderling overleg
In de Gemeente Maastricht geldt vanaf 1 oktober 2022 een Huisvestingsverordening - opkoopbescherming voor woningen (https://www.gemeentemaastricht.nl/wonen-en-verhuizen/opkoopbescherming-voor-woningen).
Ter bescherming van de belangen van zowel koper als verkoper, wordt uitdrukkelijk gesteld dat een koopovereenkomst met betrekking tot deze onroerende zaak eerst dan tot stand komt nadat koper en verkoper de koopovereenkomst hebben getekend (“schriftelijkheidsvereiste”).
Indien er in de woning huurtoestellen aanwezig zijn zoals CV-ketel, boiler, zonnepanelen, mechanische ventilatie etc. dan dienen deze door de koper te worden overgenomen.
De termijn die wordt opgenomen voor eventuele (overeengekomen) ontbindende voorwaarden (bv. Financiering) is in de regel 4 tot 6 weken na het sluiten van de mondelinge wilsovereenkomst.
De waarborgsom/bankgarantie is 10% van de koopsom. De koper dient deze 3 dagen ná het vervallen van de ontbindende voorwaarden bij de desbetreffende notaris te deponeren.
Koper is te allen tijde gerechtigd voor eigen rekening een bouwkundige keuring te (laten) verrichten dan wel andere adviseurs te raadplegen teneinde een goed inzicht te verkrijgen over de staat van onderhoud.
Deze informatie is door ons, Tijs & Cyril Makelaardij met de nodige zorgvuldigheid samengesteld. Onzerzijds wordt echter geen enkele aansprakelijkheid aanvaard voor enige onvolledigheid, onjuist of anderszins, dan wel de gevolgen daarvan. Alle opgegeven maten en oppervlakten zijn indicatief. Van toepassing zijn de NVM voorwaarden.