Verrassend ingedeelde halfvrijstaande woning met garage in Biesland. Op de hoek van de Arcadiastraat en de Bieslanderweg staat deze uitgebouwde 2-onder-1 kapwoning met een garage, oprit, serre/tuinkamer en 2 (mogelijk 3 slaapkamers). De mooi aangelegde tuin bevindt zich aan de straatzijde en vanuit de woonkamer kijkt u naar het plantsoen. Bent u op zoek naar een woning met een royale leefruimte, dan is dit de perfecte woning voor u!
Verrassend ingedeelde halfvrijstaande woning met garage in Biesland. Op de hoek van de Arcadiastraat en de Bieslanderweg staat deze uitgebouwde 2-onder-1 kapwoning met een garage, oprit, serre/tuinkamer en 2 (mogelijk 3 slaapkamers). De mooi aangelegde tuin bevindt zich aan de straatzijde en vanuit de woonkamer kijkt u naar het plantsoen. Bent u op zoek naar een woning met een royale leefruimte, dan is dit de perfecte woning voor u!
Typering:
Scholen, winkelvoorzieningen, sport, het historische centrum en openbaar vervoer bevinden zich in de nabijheid. Het Vrijthof is ongeveer 1,5 kilometer fietsen en u woont op minder dan 4 kilometer afstand van het MUMC+. Het Jekerdal, een prachtig wandel- en hardloopgebied, bevindt zich op enkele minuten lopen van dit karakteristieke huis. Ook het Waldeckpark, het Aldenhofpark en zwembad Jekerdal zijn in de nabijheid.
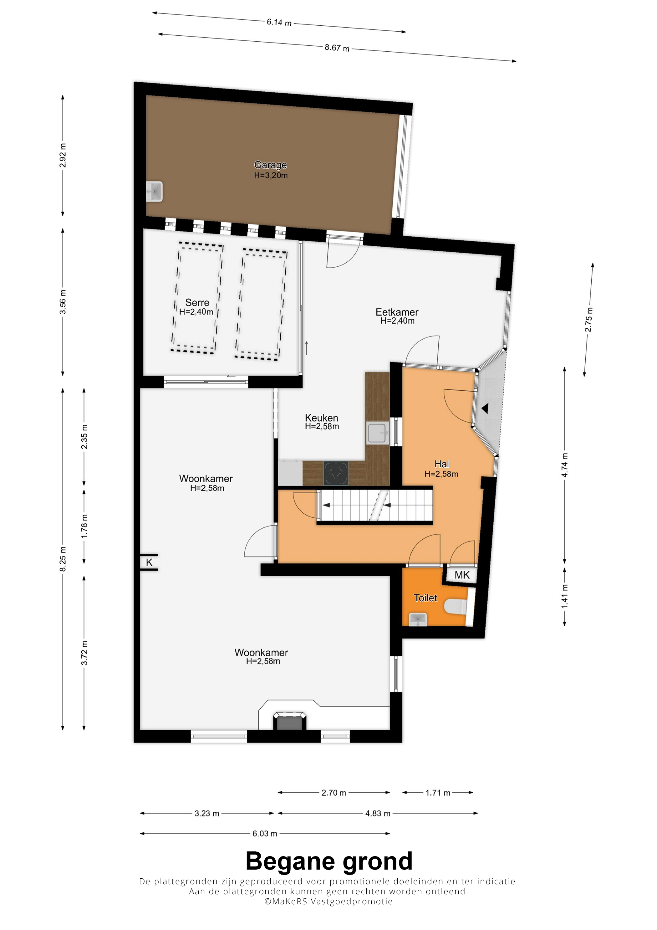
Begane grond:
Aan de kant van het plantsoen is de entree van deze opvallende, uitgebouwde woning. In de fraai aangelegde tuin is een pad naar de voordeur, die toegang geeft tot de royale ontvangsthal. Hier ziet u de trap naar de eerste verdieping, een lichte tegelvloer en inbouwverlichting in het plafond. Aan de linkerzijde, naast de meterkast, is de ruime toiletruimte met fonteintje.
De L-vormige woonkamer (circa 36 m2) bevindt zich aan de voorzijde van de woning, met mooi uitzicht naar het plantsoen. Sfeermakers zijn de parketvloer en de stijlvolle schouw met open gashaard. Aan de achterzijde zijn een doorgang naar de keuken en een schuifpui naar de serre.
In de keuken (circa 2,70 x 2,35) staat een lichte hoekopstelling met een granieten aanrechtblad en alle benodigde inbouwapparatuur: een inductie kookplaat, afzuigkap, koelkast, vriezer, vaatwasser en een combimagnetron. Leuk detail is het raam naar de hal, dat tevens voor extra lichtinval zorgt.
Vanuit de keuken loopt u zo de eetkamer (circa 4,83 x 2,75) in, met uitzicht naar de tuin en een schuifpui naar de serre. De serre met een dubbele lichtstraat is een heerlijke plek om te zitten. Achter de glazen bouwstenen is de garage (circa 6,14 x 2,92) met elektra, water en een sectionaalpoort naar de oprit.
De oprit, met ruimte voor een grote auto, grenst aan de tuin aan de kant van de Arcadiastraat en de Bieslanderweg. Een grote variatie aan beplanting, deels groenblijvend, geeft de tuin een mooi uitstraling.
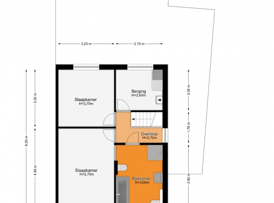
Eerste verdieping:
Het raam in de zijgevel zorgt voor veel lichtinval op de overloop. Achter de deuren, vier in totaal, zijn twee slaapkamers, de badkamer en een berging/wasruimte.
Slaapkamer I (circa 4,85 x 3,23), met een airco-unit (koelen/verwarmen) is aan de voorzijde en slaapkamer II (circa 3,30 x 3,23) bevindt zich aan de achterzijde. Het hoge, schuine dak maakt beide kamers optisch groter. Naast slaapkamer II is de berging/wasruimte (circa 2,70 x 2,35) met de opstelling van de wasmachine, droger en de HR-ketel (Remeha, 2023, eigendom).
De badkamer, te bereiken vanuit slaapkamer I en de overloop, is circa 4,85 x 3,23 meter. Deze ruimte is ingedeeld met een ligbad, aparte douche, wastafelmeubel, toilet en een bidet
Algemeen:
Bouwjaar: 1952
Gebruiksoppervlakte wonen: circa 144 m2, inhoud circa 690 m3
Verwarming en warm water via een HR-ketel (Remeha, 2023, eigendom)
Kunststof kozijnen met isolatieglas
Twee (mogelijk drie) slaapkamers
Zeer ruime badkamer
Grote aanbouw op de begane grond
Serre/tuinkamer en een tuin (straatzijde)
Garage met oprit
Energielabel: C
Aanvaarding: in onderling overleg
In de Gemeente Maastricht geldt vanaf 1 oktober 2022 een Huisvestingsverordening - opkoopbescherming voor woningen (dit kan bij deze woning van toepassing zijn).
Ter bescherming van de belangen van zowel koper als verkoper, wordt uitdrukkelijk gesteld dat een koopovereenkomst met betrekking tot deze onroerende zaak eerst dan tot stand komt nadat koper en verkoper de koopovereenkomst hebben getekend (“schriftelijkheidsvereiste”).
Indien er in de woning huurtoestellen aanwezig zijn zoals CV-ketel, boiler, zonnepanelen, mechanische ventilatie etc. dan dienen deze door de koper te worden overgenomen.
De termijn die wordt opgenomen voor eventuele (overeengekomen) ontbindende voorwaarden (bv. Financiering) is in de regel 4 tot 6 weken na het sluiten van de mondelinge wilsovereenkomst.
De waarborgsom/bankgarantie is 10% van de koopsom. De koper dient deze 3 dagen ná het vervallen van de ontbindende voorwaarden bij de desbetreffende notaris te deponeren.
Koper is te allen tijde gerechtigd voor eigen rekening een bouwkundige keuring te (laten) verrichten dan wel andere adviseurs te raadplegen teneinde een goed inzicht te verkrijgen over de staat van onderhoud.
Deze informatie is door ons, Tijs & Cyril Makelaardij met de nodige zorgvuldigheid samengesteld. Onzerzijds wordt echter geen enkele aansprakelijkheid aanvaard voor enige onvolledigheid, onjuist of anderszins, dan wel de gevolgen daarvan. Alle opgegeven maten en oppervlakten zijn indicatief. Van toepassing zijn de NVM voorwaarden.