Vraagprijs € 335.000,- k.k.
Bent U op zoek naar een licht, ruim en comfortabel appartement op een uitstekende locatie? Dan is dit aantrekkelijke 1-slaapkamerappartement in Heer absoluut een bezichtiging waard!
Bent U op zoek naar een licht, ruim en comfortabel appartement op een uitstekende locatie? Dan is dit aantrekkelijke 1-slaapkamerappartement in Heer absoluut een bezichtiging waard!
Typering:
Gelegen aan de rand van Maastricht, in de geliefde wijk Heer, woont u hier op korte afstand van het bruisende stadscentrum en het recent ontwikkelde project ‘De Groene Loper’. Dankzij de gunstige ligging nabij uitvalswegen en een goede busverbinding richting Maastricht, Gulpen, Vaals en Aken, combineert u hier rust met optimale bereikbaarheid. Winkelcentrum De Leim en diverse andere voorzieningen bevinden zich op loopafstand. Ook het Maastricht UMC+, het MECC Maastricht en meerdere faculteiten van Maastricht University zijn eenvoudig per fiets bereikbaar.
Comfortabel wonen met verrassend veel ruimte:
Dit appartement maakt deel uit van het representatieve complex ‘Poort van Heer’, gelegen op de hoek van de Akersteenweg en de Demertstraat. Via de nette centrale entree met brievenbussen, intercom, trap en lift bereikt u het appartement.
Bij het appartement hoort een vaste parkeerplaats (nr. 58C08) in de ondergrondse parkeergarage en een zeer ruime betegelde privéberging (ca. 5,97 x 2,38 m) met elektra en dubbele toegangsdeur. De comfortabele en veilige parkeergarage is bereikbaar via een brede hellingbaan met toegangspoort aan de Demertstraat.
Indeling – licht, ruimte en kwaliteit:
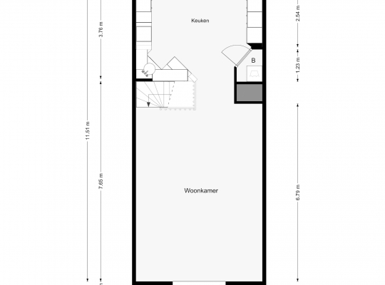
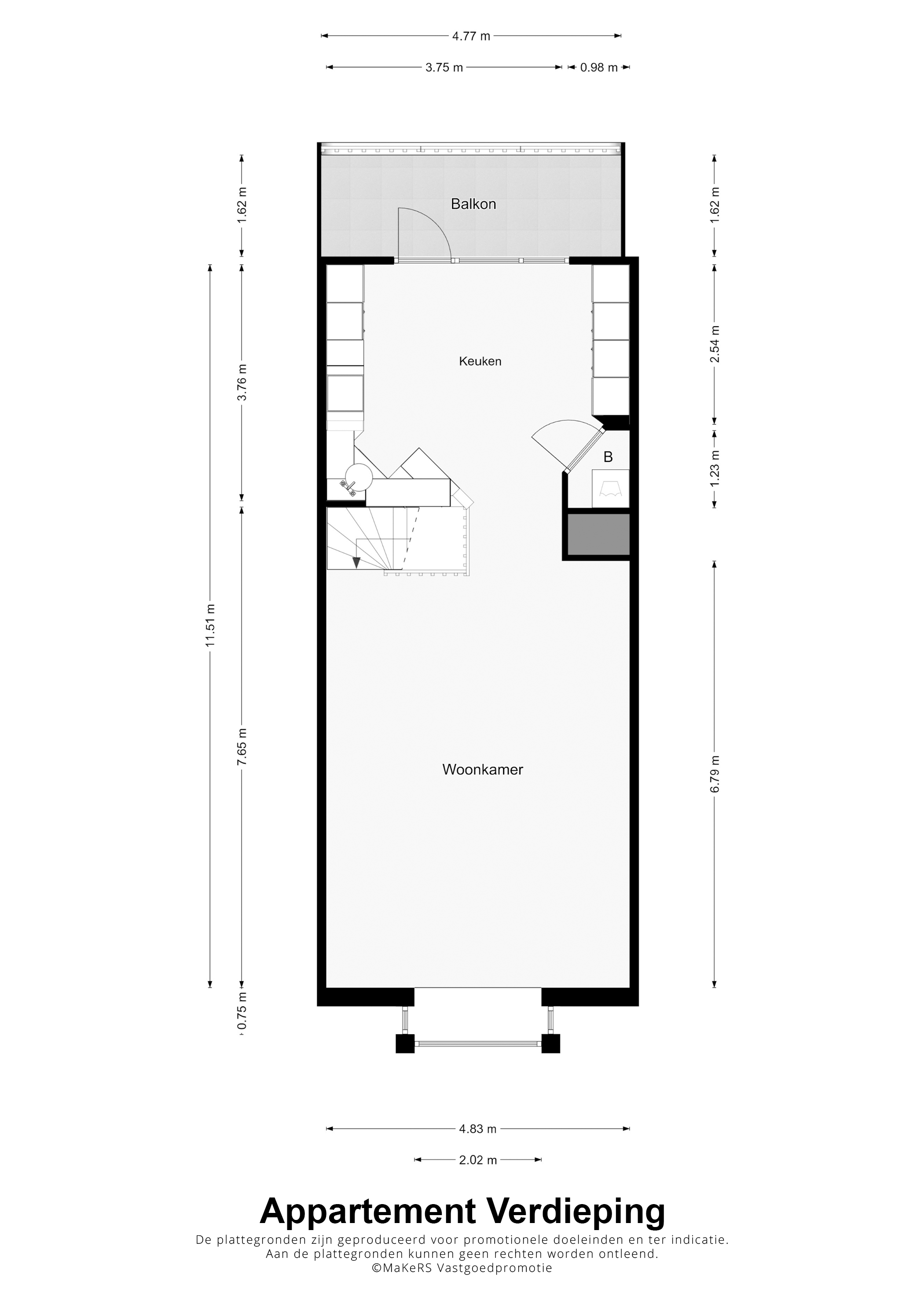
Bij binnenkomst van het appartement treft U een verzorgde hal, een ruime 2-persoonsslaapkamer, een badkamer, een separaat toilet en de toegang tot de trap naar de woonverdieping.
De ruime 2-persoonsslaapkamer (ca. 4,83 x 3,25 m) beschikt over een grote kastenwand met stijlvolle deuren. Deze kast is op maat gemaakt – ideaal voor wie houdt van opgeruimd en praktisch wonen.
De badkamer (ca. 2,74 x 2,08 m) is compleet uitgerust met een ligbad, aparte douche en een wastafelmeubel. Extra bergruimte vindt u in de praktische trapkast.
Royale leefruimte met zonnig balkon:
De bovenverdieping zal u positief verrassen. Hier bevindt zich de royale woonkamer (ca. 6,79 x 4,83 m) met open keuken en inpandige wasruimte. Grote raampartijen zorgen voor een prachtige lichtinval en een aangename, open sfeer. De stijlvolle parketvloer geeft het geheel een warme uitstraling.
De keuken is uitgevoerd met een ruime hoekopstelling en een hoge kastenwand (ook maatwerk) tot plafondhoogte, afgewerkt met een natuurstenen werkblad. Uiteraard is alle benodigde inbouwapparatuur aanwezig : keramische kookplaat, circulaire afzuigkap, oven, vaatwasser, koelkast en vriezer.
Vanuit de keuken stapt u zo op het royale balkon (ca. 4,77 x 1,62 m) op het zonnige zuiden. Hier geniet U van een fraai uitzicht over Heer, met o.a. de karakteristieke schoorsteen van Sibema en de Sint-Pietersberg als herkenningspunten – een heerlijke plek om te ontspannen in de zon.
Kortom: een licht, ruim en comfortabel appartement met eigen parkeerplaats, grote berging, zonnig balkon en een uitstekende ligging nabij alle voorzieningen.
Bent U benieuwd naar de sfeer en de ruimte? Plan dan snel een bezichtiging en laat u verrassen door wat dit appartement u te bieden heeft.
Algemeen: Bouwjaar: 2002
Gebruiksoppervlakte wonen: circa 85 m2
Inhoud: circa 272 m3
VvE bijdrage: € 192,50 per maand (appartement, berging en parkeerplaats).
Verwarming via een HR-ketel (Agpo, 2002, eigendom) en een WTW-installatie
Hardhouten kozijnen met dubbel glas
Privé parkeerplek en berging in de ondergrondse parkeergarage
Balkon op het zuiden met uitzicht richting de Sint Pietersberg
Energielabel: A
Aanvaarding: In onderling overleg
In de Gemeente Maastricht geldt vanaf 1 oktober 2022 een Huisvestingsverordening - opkoopbescherming voor woningen.
Ter bescherming van de belangen van zowel koper als verkoper, wordt uitdrukkelijk gesteld dat een koopovereenkomst met betrekking tot deze onroerende zaak eerst dan tot stand komt nadat koper en verkoper de koopovereenkomst hebben getekend (“schriftelijkheidsvereiste”).
Indien er in de woning huurtoestellen aanwezig zijn zoals CV-ketel, boiler, zonnepanelen, mechanische ventilatie etc. dan dienen deze door de koper te worden overgenomen. De termijn die wordt opgenomen voor eventuele (overeengekomen) ontbindende voorwaarden (bv. Financiering) is in de regel 4 tot 6 weken na het sluiten van de mondelinge wilsovereenkomst.
De waarborgsom/bankgarantie is 10% van de koopsom. De koper dient deze 3 dagen ná het vervallen van de ontbindende voorwaarden bij de desbetreffende notaris te deponeren.
Koper is te allen tijde gerechtigd voor eigen rekening een bouwkundige keuring te (laten) verrichten dan wel andere adviseurs te raadplegen teneinde een goed inzicht te verkrijgen over de staat van onderhoud.
Deze informatie is door ons, Tijs & Cyril Makelaardij met de nodige zorgvuldigheid samengesteld. Onzerzijds wordt echter geen enkele aansprakelijkheid aanvaard voor enige onvolledigheid, onjuist of anderszins, dan wel de gevolgen daarvan. Alle opgegeven maten en oppervlakten zijn indicatief. Van toepassing zijn de NVM voorwaarden.