Gelijkvloers wonen in Rothem, op fietsafstand van Meerssen en Maastricht. Deze benedenwoning met eigen tuin is in 2013 geheel gerenoveerd en een paar jaar geleden, in 2020, is de mooie keuken geplaatst. Het resultaat is een sfeervol huis met een slaapkamer, een moderne badkamer en een gezellige eetkeuken. De achtertuin op het westen zorgt voor vele zonuren op het terras. Dankzij de kunststof kozijnen met isolatieglas en de eigen HR-ketel heeft dit fijne (t)huis energielabel C.
Gelijkvloers wonen in Rothem, op fietsafstand van Meerssen en Maastricht. Deze benedenwoning met eigen tuin is in 2013 geheel gerenoveerd en een paar jaar geleden, in 2020, is de mooie keuken geplaatst. Het resultaat is een sfeervol huis met een slaapkamer, een moderne badkamer en een gezellige eetkeuken. De achtertuin op het westen zorgt voor vele zonuren op het terras. Dankzij de kunststof kozijnen met isolatieglas en de eigen HR-ketel heeft dit fijne (t)huis energielabel C.
Typering:
Rothem is een dorp dat deel uitmaakt van de gemeente Meerssen. U woont op loopafstand van een supermarkt, basisschool en enkele horecagelegenheden. Ook het zwembad, de voetbalvelden en het centrum van Meerssen zijn, net als het treinstation, op korte fietsafstand. Meerssen wordt omringd door prachtige natuur met bossen, kastelen en uitgestrekte akkers en weilanden. Maastricht is nog geen 5 minuten met de auto en de snelwegen A2/A79 zorgen voor een goede verbinding met Eindhoven, Luik en Valkenburg/Parkstad.
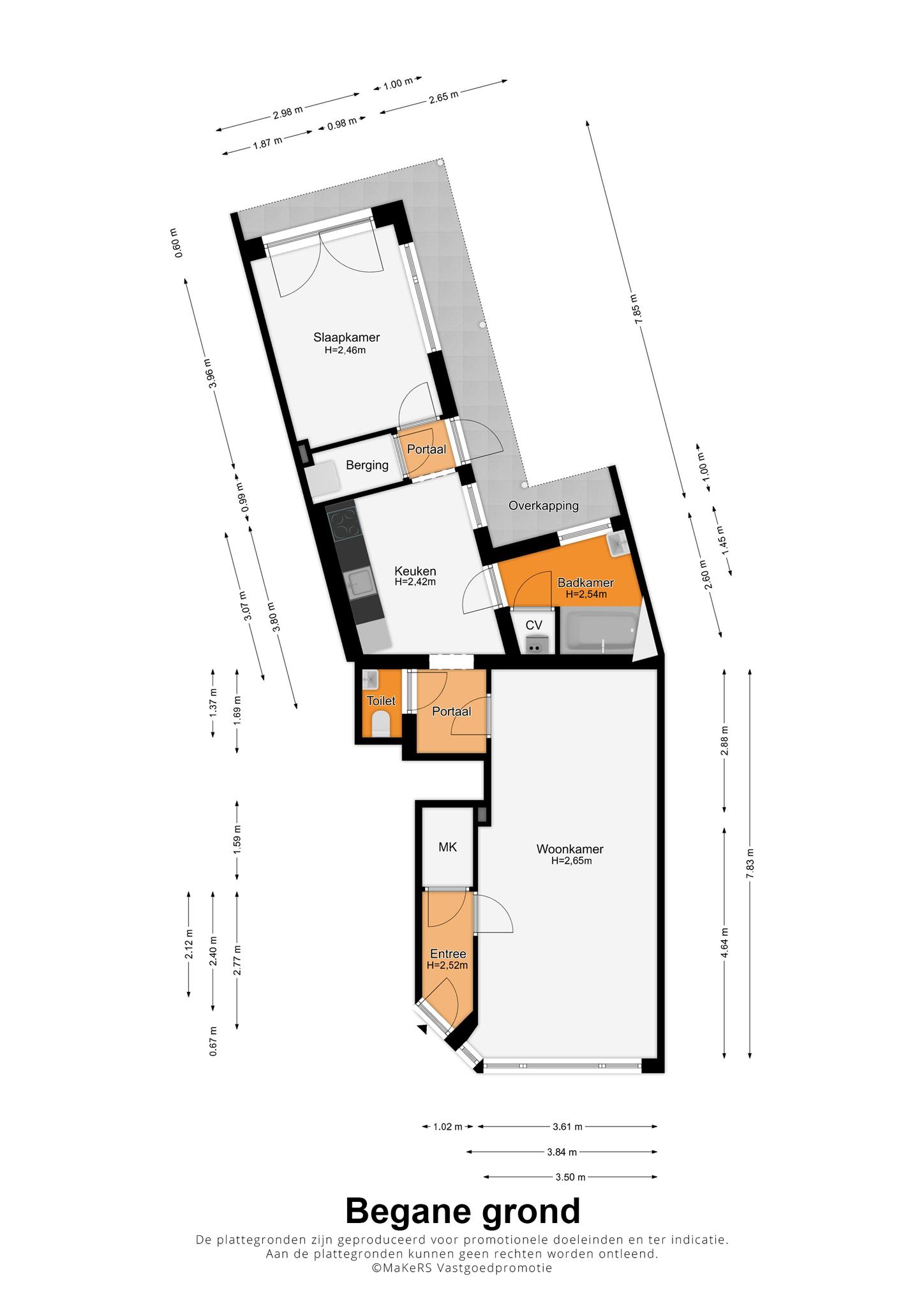
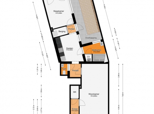
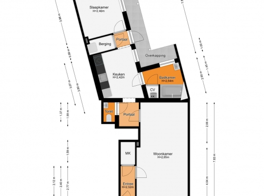
Begane grond:
De benedenwoning heeft een eigen entree van waaruit een bergkast en de woonkamer te bereiken zijn. De mooie laminaatvloer ligt in bijna de hele benedenwoning en de wanden zijn glad gestuct. In de woonkamer (7.83 x 3.50) is de ruimte verdeeld in een ruim zitgedeelte en achter de losse kastenwand is een slaapruimte gerealiseerd. Met het verwijderen van deze kast is de woonkamer te vergroten.
Via een portaal met moderne toiletruimte is de eetkeuken (ca. 3.07 x 2.98) te bereiken. Er is ruimte voor een grote eettafel en door het grote raam valt veel licht naar binnen. De wandopstelling (2020) is voorzien van een inductie kookplaat, afzuigkap en een koelkast met vriesvak.
In het verlengde van de keuken is een portaal waaraan de wasruimte en slaapkamer grenzen. De slaapkamer (3.96 x 2.98) heeft openslaande deuren naar de tuin en is goed in te delen als tweepersoonskamer. Als laatste ziet u de moderne badkamer (ca. 2.65 x 2.60) met een aparte cv-ruimte. De badkamer is fraai ingedeeld met een ligbad/douchecombinatie, een wastafel en trendy accessoires.
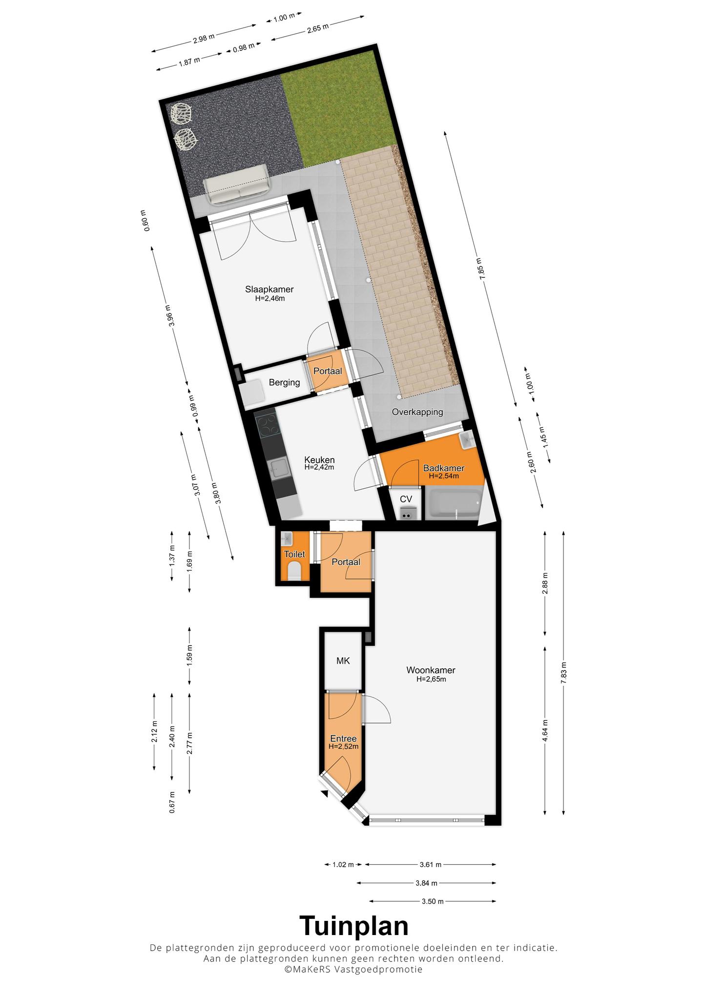
Bij deze instapklare benedenwoning hoort een eigen tuin op het westen. Hier kunt u kiezen tussen een plek in de zon of schaduw en een deel van de tuin is aangelegd met gras. Wordt dit uw (t)huis in het mooie Rothem?
Algemeen:
Bouwjaar: 1968
Gebruiksoppervlakte wonen: circa 70 m2, inhoud circa 265 m3
Energielabel: CVvE bijdrage € 75,- per maand
Algehele renovatie in 2013 en de keukeninstallatie is in 2020 geplaatst
Verwarming en warm water via een AWB HR-ketel (2013)
Voorzien van kunststof kozijnen met isolatieglas
Aanvaarding: in onderling overleg