Halfvrijstaande te moderniseren eengezinswoning met aanbouw, 3 slaapkamers, badkamer en diepe tuin gelegen op het westen.
Halfvrijstaande te moderniseren eengezinswoning met aanbouw, 3 slaapkamers, badkamer en diepe tuin gelegen op het westen.
DEZE WONING WORDT U AANGEBODEN DOOR TIJS & CYRIL MAKELAARDIJ:
Halfvrijstaande te moderniseren eengezinswoning met aanbouw, 3 slaapkamers, badkamer en diepe tuin gelegen op het westen.
Typering:
Dit woonhuis is nabij het centrum van Meerssen gelegen. Meerssen ligt circa 6 kilometer van het centrum van Maastricht met goede verbindingen naar alle windstreken (op- en afrit A2 en A 79), treinverbindingen naar Maastricht, Eindhoven en Heerlen en diverse busverbindingen. Tevens bevindt zich het vliegveld Maastricht- Aachen Airport in de directe nabijheid. Voeg hierbij de beschikbaarheid van natuur (Roekenbos, Maas- en Geuldal), de aanwezigheid van de basisschool op loopafstand, voorgezet onderwijs en alle winkelvoorzieningen in Meerssen biedt voor nu en in de toekomst een prettig woonklimaat.
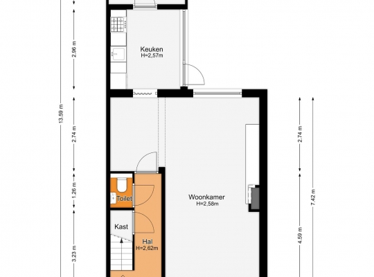
Begane grond:
Entree/hal voorzien van toiletruimte, geheel betegeld met wandcloset en fonteintje, opgang naar de verdieping en toegang tot de leefruimte. L-vormige woonkamer (circa 31 m2) voorzien van parketvloer, semi- open keuken (circa 7,5 m2) onder andere voorzien van een gaskookplaat, wasemkap, koelkast, oven en spoelbak. Bijkeuken/berging (2,84 x 2,72). Tevens is hier de c.v.-installatie gesitueerd (huur Volta, bouwjaar 2013). Houten garage (2,90 x 4,90) voorzien van elektrische poort. Diepe tuin gelegen op het westen.
1e verdieping:
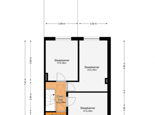
Overloop met toegang tot de drie slaapkamers en de badkamer. Slaapkamer I (2,88 x 3,60), slaapkamer II (circa 12,5 m2), slaapkamer III (3,52 x 2,82). Badkamer (1,84 x 1,03) geheel betegeld en voorzien van inloopdouche en wastafel.
De gehele verdieping is voorzien van laminaat met uitzondering van 1 slaapkamer en de badkamer .
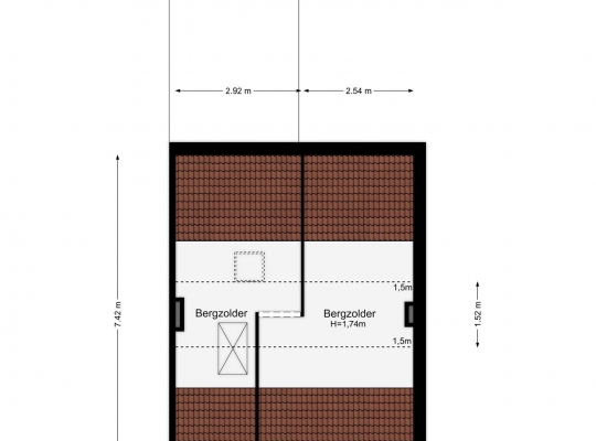
2e verdieping:
Via vlizotrap bereikbare zolderruimte (1,52 x 5,53).
Algemeen:
Bouwjaar: 1956
Perceeloppervlakte: 191 m2
Gebruiksoppervlakte wonen: circa 99 m2, inhoud circa 397 m3.
De woning beschikt over houten kozijnen met dubbele beglazing en grotendeels rolluiken.
Energielabel: F
Aanvaarding: in onderling overleg