Dit is uw kans om de eigenaar te worden van een duurzame, gasloze nul-op-de-meterwoning met energielabel A++++ in de kleinschalige nieuwbouwwijk Hoolhoes. Hier woont u tussen de buurten Limmel en Nazareth op slechts een paar meter van Buitengoed Geul en Maas; een historische plek met kastelen en wandelpaden. Deze woning heeft een uitbouw aan de achterzijde, een warmtepomp, zonnepanelen, een zonnige achtertuin en een prachtige ligging aan een brede straat met veel groen. Bij de woning hoort een vaste parkeerplek (nr. 4) met een kabel naar de meterkast, ten behoeve van een laadpaal.
Dit is uw kans om de eigenaar te worden van een duurzame, gasloze nul-op-de-meterwoning met energielabel A++++ in de kleinschalige nieuwbouwwijk Hoolhoes. Hier woont u tussen de buurten Limmel en Nazareth op slechts een paar meter van Buitengoed Geul en Maas; een historische plek met kastelen en wandelpaden. Deze woning heeft een uitbouw aan de achterzijde, een warmtepomp, zonnepanelen, een zonnige achtertuin en een prachtige ligging aan een brede straat met veel groen. Bij de woning hoort een vaste parkeerplek (nr. 4) met een kabel naar de meterkast, ten behoeve van een laadpaal.
Typering:
Hoolhoes is een recente nieuwbouwontwikkeling in het mooie Maastricht. Bij de entree van de wijk vindt u een grote supermarkt en IKC De Geluksvogel, zodat u voor de supermarkt en de basisschool maar een paar minuten hoeft te lopen. Buitengoed Geul en Maas nodigt uit voor een wandeling, hardlooptraining en een fietstocht. U woont vlak bij treinstation Maastricht Noord waardoor het centrum niet alleen met de fiets, maar ook met openbaar vervoer uitstekend bereikbaar is.
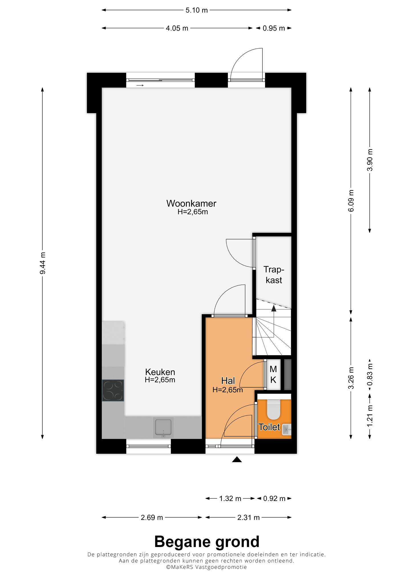
Begane grond:
Zodra u in de hal staat, ziet u dat dit huis zo goed als nieuw is en veel sfeer heeft. De visgraatvloer met vloerverwarming ligt op bijna de hele begane grond en een van de wanden in de hal is afgewerkt met hip patroonbehang. Aan de rechterzijde zijn de trapopgang, meterkast en de moderne toiletruimte met fonteintje.
De lichte woonkamer (6.09 x 5.10) heeft een schuifpui en een aparte deur naar de tuin. Onder de trap is een diepe trapkast voor extra bergruimte. Er is genoeg ruimte voor een grote zithoek en een eettafel, waar u als gezin en met familie of vrienden kunt eten.
Aan de voorzijde is de open keuken (3.26 x 2.69) met een groot raam en een moderne hoekopstelling, alle benodigde inbouwapparatuur van Bauknecht: een inductie kookplaat, afzuigkap, vaatwasser, koel-/vriescombinatie, oven en een combi-oven/magnetron. Ziet u zichzelf hier al koken met mooi uitzicht naar de brede, rustige straat?
De achtertuin op het zuidoosten is een heerlijke plek om buiten te zitten. Het grote terras grenst aan het grasveld met stapstenen. Houten schuttingen zorgen voor privacy en in de berging is ruimte voor de fietsen. Via de poort is de achtergelegen straat te bereiken, waar u de beschikking heeft over een vaste parkeerplek. Ook voor de voortuin, ingedeeld met grind en bestrating, heeft u geen groene vingers nodig.
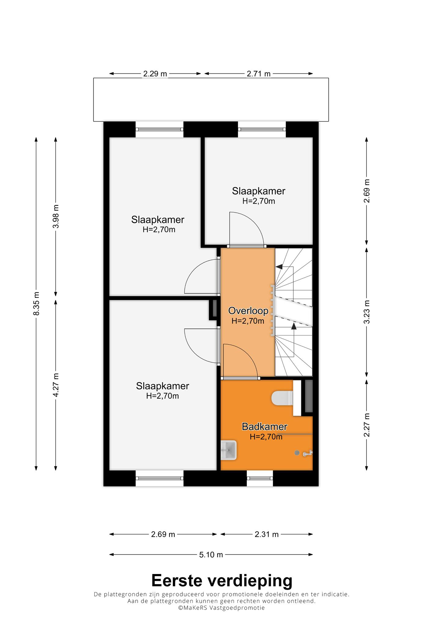
1e verdieping:
Vanaf de overloop zijn drie slaapkamers te bereiken. Aan de voorzijde is de ouderslaapkamer (4.27 x 2.69) en aan de achterzijde zijn slaapkamer II (3.98 x 2.69/2.29) en slaapkamer III (2.71 x 2.69). Op de overloop en in de slaapkamers ligt een mooie pvc-vloer met houtpatroon en vloerverwarming.
De badkamer (2.31 x 2.27) is ingedeeld met mooie wand- en vloertegels, een grote inloopdouche, wandcloset en een modern wastafelmeubel. Door de ramen in de voorgevel valt veel licht naar binnen.
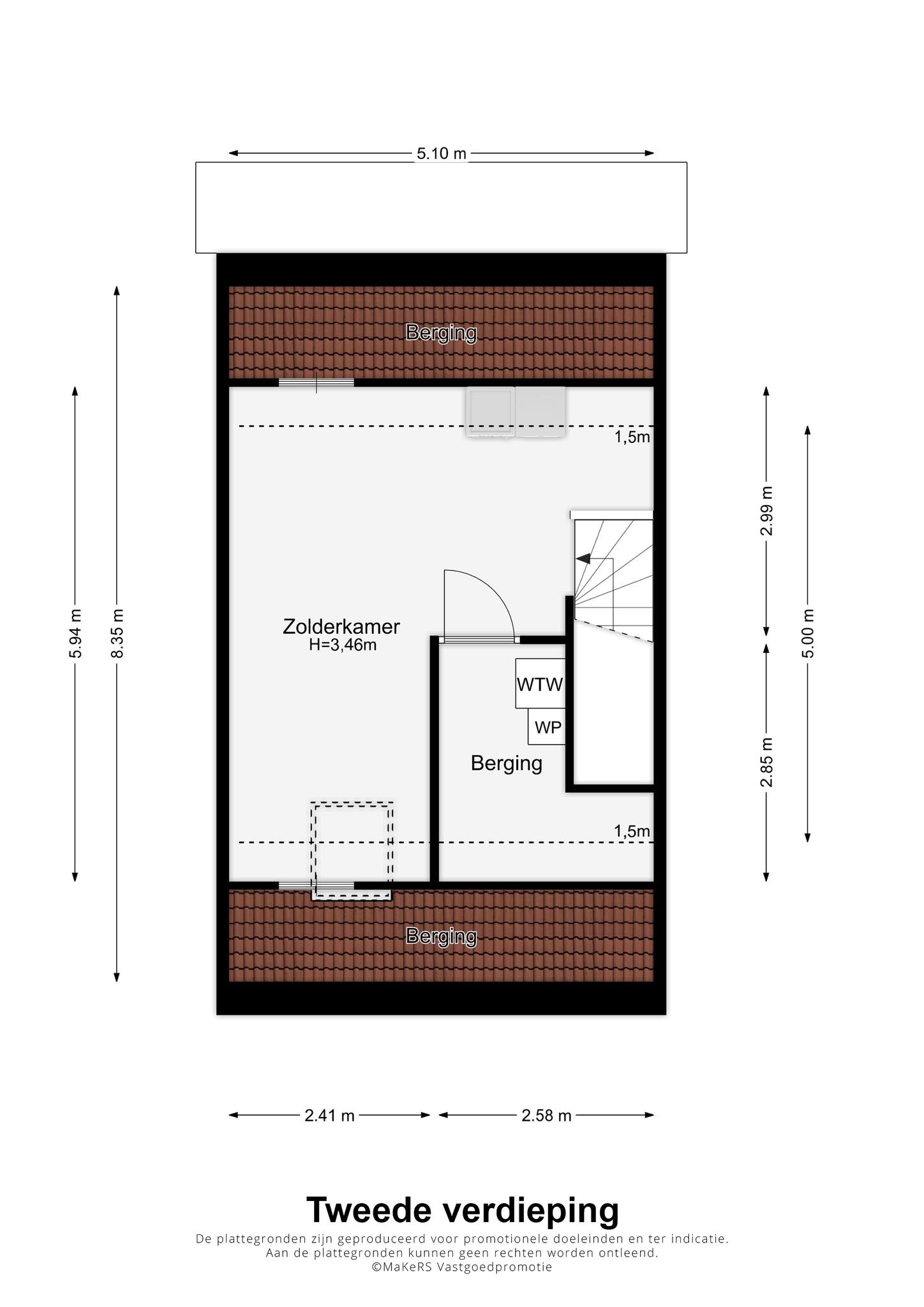
2e verdieping:
Wat een ruimte is er op de tweede verdieping, te bereiken via een vaste trap. Vanaf 1.50 meter hoogte is er ruim 25 m² beschikbaar, verdeeld in een berging en een zolderkamer. De zolderkamer heeft een groot dakraam aan de voorzijde en in de schuinten van het dak is veel bergruimte. Tevens zijn op de zolderkamer de aansluitingen voor het witgoedapparatuur te vinden. In de berging treft u de WTW-unit, de omvormer van de zonnepanelen en de binnen-unit van de warmtepomp.
Algemeen:
Bouwjaar: 2022.
Perceeloppervlakte: 124 m2.
Gebruiksoppervlakte wonen: circa 116 m2, inhoud circa 443 m3.
Energielabel: A++++.
Uitstekend geïsoleerde, duurzame nul-op-de-meter woning met veel wooncomfort.
Hardhouten kozijnen, voorzien van triple glas.
28 zonnepanelen en vloerverwarming op alle verdiepingen.
PVC-vloer met vloerverwarming op de begane grond en eerste verdieping.
Vaste parkeerplek op een mandelig terrein, voorzien van een kabel naar de meterkast ten behoeve van een laadpaal
Zeer ruime zolderkamer, geschikt om 1 extra slaapkamer te realiseren.
Aanvaarding: juli/augustus 2023 (in onderling overleg).
In de Gemeente Maastricht geldt vanaf 1 oktober 2022 een Huisvestingsverordening - opkoopbescherming voor woningen (https://www.gemeentemaastricht.nl/wonen-en-verhuizen/opkoopbescherming-voor-woningen). Dit kan bij deze woning van toepassing zijn!