In het prestigieuze Maastrichtse stadsdeel Céramique op de 4e verdieping gelegen goed onderhouden appartement met 2 slaapkamers, balkon gelegen op het zuidwesten, berging en privéparkeerplaats.
In het prestigieuze Maastrichtse stadsdeel Céramique op de 4e verdieping gelegen goed onderhouden appartement met 2 slaapkamers, balkon gelegen op het zuidwesten, berging en privéparkeerplaats.
Typering:
Het appartement is gelegen in het complex genaamd ‘Patio Sevilla’, ontworpen door de Spaanse architecten Cruz en Ortiz, en bestaat uit drie gebouwen die gesitueerd zijn rond een patio. ‘Patio Sevilla’ is gelegen in het zuidelijke deel van Ceramique naast het Bonnefantenmuseum. Het bijzondere aan Ceramique is dat het als moderne wijk optimaal geïntegreerd is in Maastricht, geheel in harmonie met de aangrenzende karakteristieke binnenstad. Een uniek gebied waar wonen, werken, winkelen, cultuur en recreatie hand in hand gaan.
Souterrain:
In het souterrain is de gemeenschappelijke fietsenberging en de privéberging (3,05 x 1,85) gelegen en de privéparkeerplaats in de parkeergarage welke middels elektrisch bedienbare poort te bereiken is.
Begane grond:
De representatieve centrale hal is voorzien van een lift, het trappenhuis, brievenbussen unit en bellentableau met videofoon.
4e verdieping:
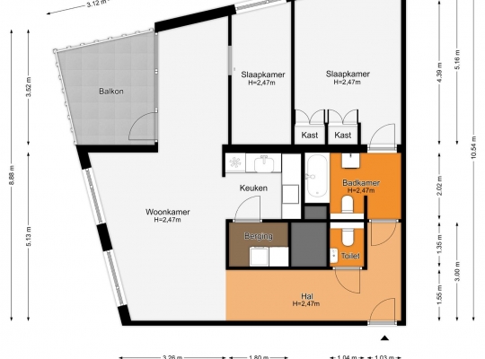
Entree/hal, met toegang tot de gedeeltelijk betegelde toiletruimte met wandcloset en fonteintje. De nette geheel betegelde badkamer (3,0 x 2,02) is voorzien van een ligbad/douche combinatie, designradiator, wandcloset en een vaste wastafel in meubel, ruime slaapkamer (circa 14m2) voorzien van vaste kastenwand. De woonkamer (circa 36 m2) is voorzien van airco en veel lichtinval en biedt middels een openslaande deur toegang tot het overdekt balkon gelegen op het zuidenwesten.
De open keuken (1,80 x 2,02) welke is voorzien van een moderne aanrechtcombinatie met koelkast, diepvries, oven, elektrische kookplaat, afzuigkap, spoelbak en natuursteen aanrechtblad met bar. Bijkeuken (2,5 m2) alwaar aansluiting wasmachine, droger en unit mechanische ventilatie.
Het gehele appartement is voorzien van een laminaat vloer met uitzondering van het toilet en de badkamer.
Algemeen:
Bouwjaar: 2002
Gebruiksoppervlakte wonen: circa 85 m2, inhoud: circa 241 m3.
Het appartement is voorzien van hardhouten kozijnen met HR++ beglazing. Het appartement is voorzien van stadsverwarming. Servicekosten VvE: circa €153,-- per maand.
Aanvaarding in onderling overleg.
In de Gemeente Maastricht geldt vanaf 1 oktober 2022 een Huisvestingsverordening - opkoopbescherming voor woningen (https://www.gemeentemaastricht.nl/wonen-en-verhuizen/opkoopbescherming-voor-woningen). Dit is bij deze woning op dit moment niet van toepassing.