Vrijstaand wonen op een mooie locatie in Cadier en Keer, op slechts 5 minuten van Maastricht. Wat u aan de voorzijde niet ziet, is dat deze woning een circa 30 m² grote atelierruimte met vide en kelder heeft. Zo kunt u hier niet alleen wonen, maar ook vanuit huis werken of de ruimte gebruiken voor al uw hobby’s. Op de eerste verdieping zijn vier slaapkamers en met het plaatsen van een vaste trap is een vijfde slaapkamer mogelijk.
Vrijstaand wonen op een mooie locatie in Cadier en Keer, op slechts 5 minuten van Maastricht. Wat u aan de voorzijde niet ziet, is dat deze woning een circa 30 m² grote atelierruimte met vide en kelder heeft. Zo kunt u hier niet alleen wonen, maar ook vanuit huis werken of de ruimte gebruiken voor al uw hobby’s. Op de eerste verdieping zijn vier slaapkamers en met het plaatsen van een vaste trap is een vijfde slaapkamer mogelijk.
Typering:
De Christinastraat is een rustige straat die de Willem Alexanderstraat met de Groenerein verbindt. Hier woont u op loopafstand van het bos en de groeves in het prachtige, glooiende Limburgse Heuvelland. Op enkele autominuten bevinden zich de snelwegen richting Heerlen, Eindhoven en Luik. Het historische centrum van Maastricht is maar 10 minuten rijden en er is een goede busverbinding met het treinstation, Wyck, Gulpen, Vaals en Aken. In Cadier en Keer vindt u twee supermarkten, diverse speciaalzaken, een basisschool en diverse sportfaciliteiten waaronder de golfbaan “Het Rijk van Margraten”.
Souterrain:
Kelderruimte (7,05 x 5,95).
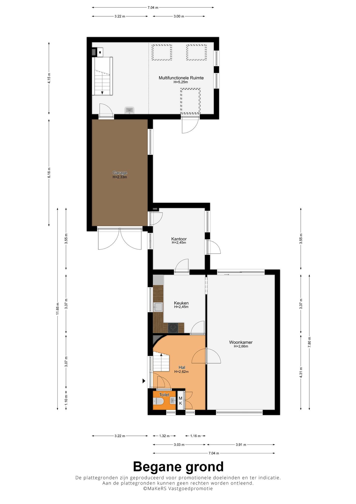
Begane grond:
Aan de linkerzijde is de entree, waar het grote glas-in-lood raam direct uw aandacht trekt. Vanuit de hal zijn de woonkamer, keuken en de toiletruimte met fonteintje te bereiken.
De woonkamer (7.80 x 3.91) heeft een mooie verdeling tussen het zit- en eetgedeelte. De parketvloer toont karakter en via de schuifpui bij het eetgedeelte is de achtertuin te bereiken. In de keuken (3.37 x 3.03) staat een hoekopstelling met een inductie kookplaat, afzuigkap, heteluchtoven, vaatwasser en een koelkast met vriesvak.
Verrassend is de aanbouw, te bereiken vanuit de keuken. Deze ruimte (3.55 x 3.00) heeft lichtinval aan twee zijden en is zeer geschikt als eetkamer of speelkamer van de kinderen. Via deze ruimte loopt u naar de stenen garage (6.16 x 3.22) met openslaande poortdeuren naar de oprit. Er is een deur naar de grote atelierruimte (7.04 x 4.15) met een entresol, fraai lichtinval en een hoge vide. Niet alleen als atelier, maar ook als kantoor aan huis is deze verwarmde ruimte heel geschikt. Een vaste trap geeft toegang tot de praktische kelder (7.05 x 4.09) met een stahoogte van 2.25 meter.
De voor-, zij- en achtertuin zijn goed onderhouden en op de diepe oprit is parkeergelegenheid voor meerdere auto’s. De terrassen aan de rechter- en achterzijde hebben een goede zonligging en het grote gazon is niet alleen perfect voor de tuinliefhebbers, maar ook voor de kinderen. Hier hebben ze volop ruimte om buiten te spelen.
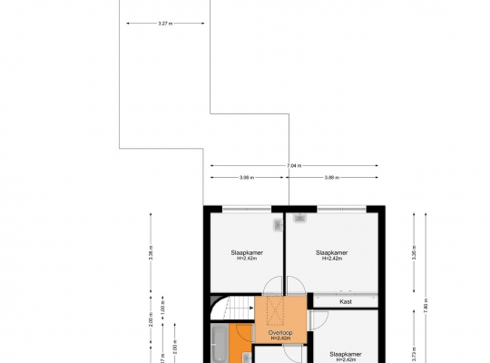
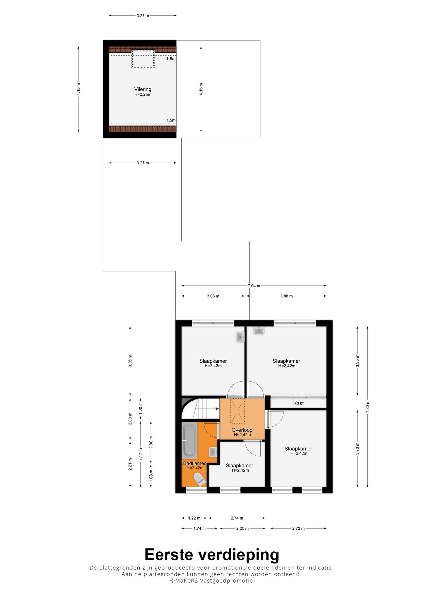
1e verdieping:
Op de eerste verdieping zijn vier slaapkamers, de badkamer en een overloop. Slaapkamer I (3.88 x 3.35) en slaapkamer II (3.36 x 3.06) zijn gesitueerd aan de achterzijde. Een van deze slaapkamers heeft een vaste kastenwand. Slaapkamer III (3.73 x 2.72) en slaapkamer IV (2.74/2.30 x 2.21) zijn aan de voorzijde gesitueerd.
De badkamer (3.17 x 1.74/1.22) is ingedeeld met een ligbad, tweede toilet en een wastafel. Het is mogelijk om de badkamer samen te voegen met de naastgelegen slaapkamer, waardoor er een zeer ruime badkamer ontstaat.
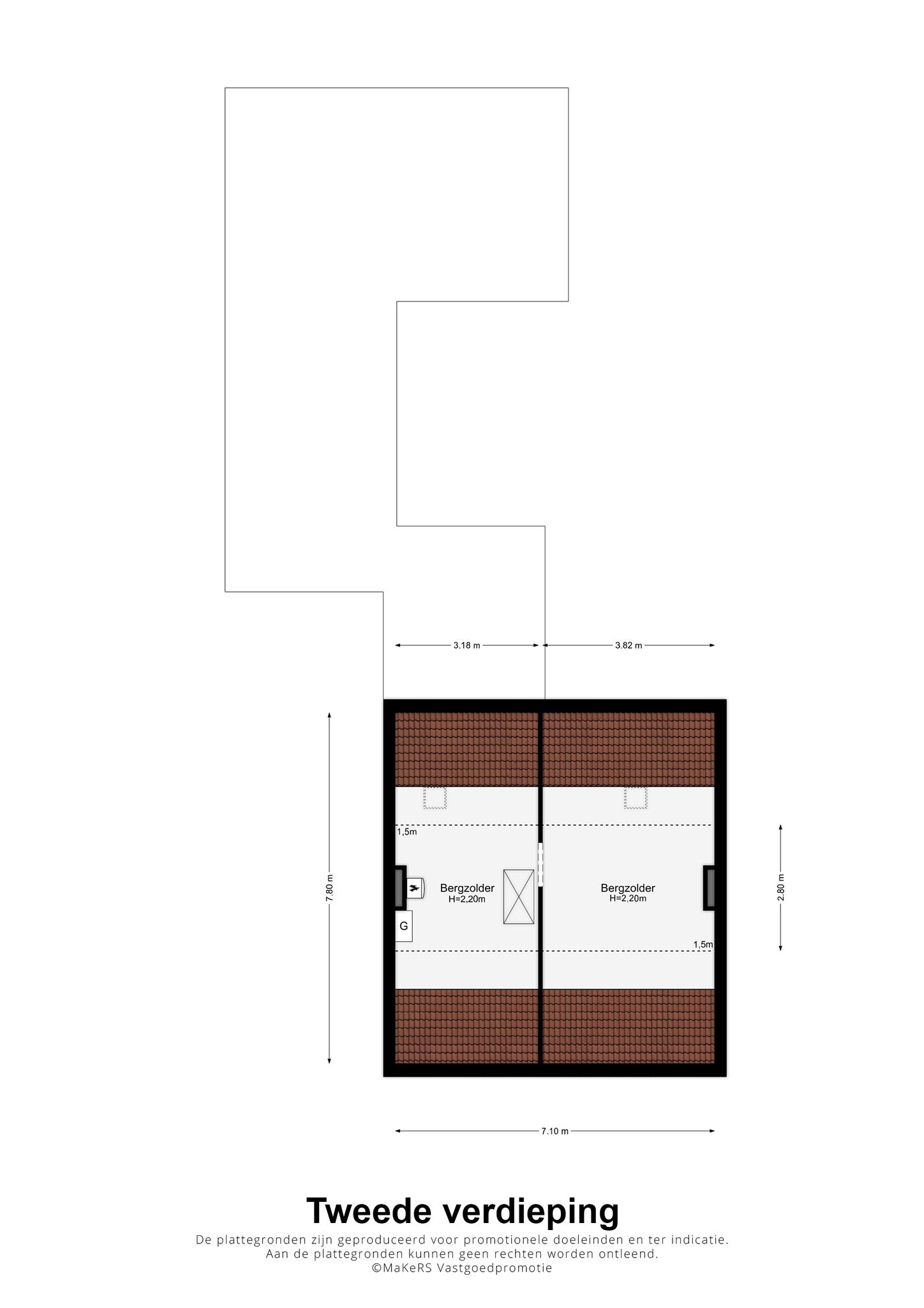
Zolder:
Er is een vlizotrap naar de zolderverdieping, die uit twee ruimtes bestaat. Gemeten vanaf een hoogte van 1.50 meter is de totale grootte 6.00 x 2.80 meter. In combinatie met de nokhoogte van 2.20 meter is er de mogelijkheid om een vijfde slaapkamer te realiseren.
Algemeen:
Bouwjaar: 1970
Perceeloppervlakte: 409 m2
Gebruiksoppervlakte wonen: circa 152 m2 (exclusief 29 m2 kelderruimte), inhoud circa 862 m3
Energielabel: G
Verwarming en warm water via een HR-ketel (eigendom)
Houten kozijnen, voorzien van isolatieglas
Zeer ruime, verwarmde atelierruimte met een entresol en stahoge kelder
Mogelijkheid voor een vaste trap naar de tweede verdieping
Aanvaarding: in onderling overleg