Modern vormgegeven, luxe villa met een fraai aangelegde, onderhoudsvriendelijke tuin op een toplocatie in Parkheide. De architectuur van deze villa, op een perceel van 465 m2 eigen grond, trekt direct de aandacht. Boven zijn drie royale (slaap)kamers en een prachtige badkamer, terwijl u beneden de beschikking heeft over een zeer ruime woonkamer met halfopen keuken en een garage met bijkeuken/berging.
Modern vormgegeven, luxe villa met een fraai aangelegde, onderhoudsvriendelijke tuin op een toplocatie in Parkheide. De architectuur van deze villa, op een perceel van 465 m2 eigen grond, trekt direct de aandacht. Boven zijn drie royale (slaap)kamers en een prachtige badkamer, terwijl u beneden de beschikking heeft over een zeer ruime woonkamer met halfopen keuken en een garage met bijkeuken/berging.
Typering:
Parkheide, dat deel uitmaakt van Ubach over Worms, is een prachtige plek om te wonen. Rustige straten, gevarieerde bebouwing en de ligging ten opzichte van winkels, supermarkten en restaurants maken het wonen in deze wijk heel populair. Een basisschool, sportschool en bushalte met een goede busverbinding naar Heerlen (station) zijn op loopafstand. Na een paar minuten rijdt u op de Ring Parkstad en voor een wandeling in de natuur kunt u terecht bij de Brunssummerheide en de Teverener Heide.
Begane grond:
De moderne architectuur met strakke lijnen en grote ramen maakt u nieuwsgierig. Loop vanaf de oprit naar de overdekte entree, die toegang geeft tot de fraaie ontvangsthal met een leisteen vloer. De trap is fraai. Net als de grote glazen deuren naar de woonkamer. Rechts in de hal is de zeer royale toiletruimte met een wandcloset, fonteintje en een urinoir.
Grote ramen aan drie zijden, de schuifpui naar het overdekte terras en een wengé parketvloer maken de woonkamer tot een zeer lichte en sfeervolle leefruimte. Aan de voorzijde, bij de prachtige gashaard, is het zitgedeelte en het eetgedeelte bevindt zich aan de achterzijde, vlak naast de keuken.
Vanuit de halfopen keuken met leisteen vloer heeft u fraai uitzicht naar de tuin. De hoogwaardige Siematic hoekopstelling biedt veel bergruimte en het aanrechtblad is, net als de achterwand, van graniet. Alle benodigde apparatuur (Miele) is ingebouwd: een inductie kookplaat, afzuigkap, vaatwasser, hetelucht stoomoven, koffiemachine, slowcooker/bordenwarmer en een koelkast.
Rechts in de woonkamer is een portaal dat toegang geeft tot de in spouw gebouwde garage (ca. 6,75 x 3,31) met een elektrische kantelpoort. Aan de achterzijde van de garage is een berging (ca. 2,39 x 3,31) met de opstelling van de wasapparatuur. Ook vanuit deze ruimte zijn het overdekte terras en de tuin te bereiken.
De diepe, onderhoudsvriendelijke achtertuin is gesitueerd op het oosten. Grind in verschillende kleuren is gecombineerd met een prachtige, moderne vijver en meerdere terrassen. Het terras met elektrisch bedienbaar lamellendak is de perfecte plek om de tuin te bewonderen en het terras naast de vijver is voor de zonliefhebber. Links van de villa is een eigen, brede achterom met dubbele poort. De voortuin en de oprit voor twee auto’s maken de villa meer dan af.
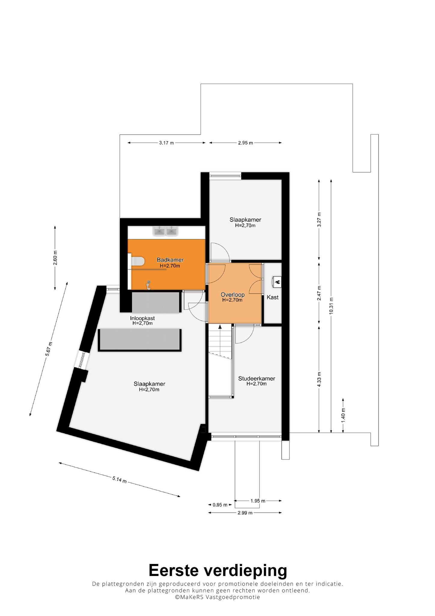
Eerste verdieping:
Volg de trap vanuit de hal naar de overloop, die dankzij de muren van glazen bouwstenen heel licht is. Aan de voorzijde is slaapkamer I met inloopkast met fraaie raampartijen en een hoog plafond. Naast deze slaapkamer is een studeer-/werkkamer (ca. 9,8 m2), die ook als slaapkamer II kan worden gebruikt. Aan de achterzijde is slaapkamer III (ca. 9,6 m2) met prachtig uitzicht naar de tuin.
Vanuit slaapkamer I en de overloop is de badkamer (ca. 8,2 m2) te bereiken. Deze ruimte is fraai ingedeeld met een op maat gemaakt dubbel wastafelmeubel, een grote inloopdouche, wandcloset en een designradiator. De lades en spiegelkasten bieden volop bergruimte en het hoge plafond versterkt het gevoel van ruimte.
Algemeen:
Bouwjaar: 1996
Gebruiksoppervlakte wonen: circa 152 m2, inhoud circa 645 m3
Dak-, spouwmuur- en vloerisolatie
Verwarming via een HR-ketel (Vaillant, 2020, eigendom), gashaard en twee Daikin airco-units (verwarmen en koelen)
Parkeergelegenheid op eigen terrein (oprit en garage)
Aluminium kozijnen met HR-glas
24 zonnepanelen van 415 Wp met micro-omvormers (2023)
Huurtoestellen: alarminstallatie 2023
EPDM dakbedekking met dikke keien
Luxe overkapping/pergola met een elektrisch bedienbaar lamellendak (met regensensor)
Energielabel: A
Aanvaarding: in onderling overleg
Ter bescherming van de belangen van zowel koper als verkoper, wordt uitdrukkelijk gesteld dat een koopovereenkomst met betrekking tot deze onroerende zaak eerst dan tot stand komt nadat koper en verkoper de koopovereenkomst hebben getekend (“schriftelijkheidsvereiste”).
Indien er in de woning huurtoestellen aanwezig zijn zoals CV-ketel, boiler, zonnepanelen, mechanische ventilatie etc. dan dienen deze door de koper te worden overgenomen.
De termijn die wordt opgenomen voor eventuele (overeengekomen) ontbindende voorwaarden (bv. Financiering) is in de regel 4 tot 6 weken na het sluiten van de mondelinge wilsovereenkomst.
De waarborgsom/bankgarantie is 10% van de koopsom. De koper dient deze 3 dagen ná het vervallen van de ontbindende voorwaarden bij de desbetreffende notaris te deponeren.
Koper is te allen tijde gerechtigd voor eigen rekening een bouwkundige keuring te (laten) verrichten dan wel andere adviseurs te raadplegen teneinde een goed inzicht te verkrijgen over de staat van onderhoud.
Deze informatie is door ons, Tijs & Cyril Makelaardij met de nodige zorgvuldigheid samengesteld. Onzerzijds wordt echter geen enkele aansprakelijkheid aanvaard voor enige onvolledigheid, onjuist of anderszins, dan wel de gevolgen daarvan. Alle opgegeven maten en oppervlakten zijn indicatief. Van toepassing zijn de NVM voorwaarden.