Exclusieve designvilla met 70 zonnepanelen op een toplocatie in Landgraaf. Het oorspronkelijke bouwjaar is 1964, maar in 2020 is de villa geheel verbouwd en verduurzaamd tot een droomvilla met energielabel A. Met 3 slaapkamers, 2 badkamers en een exclusieve designkeuken is deze gelijkvloerse villa het ultieme huis in het hoge segment. Het souterrain biedt onder andere ruimte aan een zeer ruime garage en de fraai aangelegde tuin met deels overdekt terras biedt optimale privacy.
Exclusieve designvilla met 70 zonnepanelen op een toplocatie in Landgraaf. Het oorspronkelijke bouwjaar is 1964, maar in 2020 is de villa geheel verbouwd en verduurzaamd tot een droomvilla met energielabel A. Met 3 slaapkamers, 2 badkamers en een exclusieve designkeuken is deze gelijkvloerse villa het ultieme huis in het hoge segment. Het souterrain biedt onder andere ruimte aan een zeer ruime garage en de fraai aangelegde tuin met deels overdekt terras biedt optimale privacy.
DEZE WONING WORDT U AANGEBODEN DOOR TIJS & CYRIL MAKELAARDIJ SITTARD:
Exclusieve designvilla met 70 zonnepanelen op een toplocatie in Landgraaf. Het oorspronkelijke bouwjaar is 1964, maar in 2020 is de villa geheel verbouwd en verduurzaamd tot een droomvilla met energielabel A. Met 3 slaapkamers, 2 badkamers en een exclusieve designkeuken is deze gelijkvloerse villa het ultieme huis in het hoge segment. Het souterrain biedt onder andere ruimte aan een zeer ruime garage en de fraai aangelegde tuin met deels overdekt terras biedt optimale privacy.
Typering:
Deze villa staat aan de oostkant van de Krijgersberglaan in ‘de Exdel’, waar villa’s en bungalows op grote percelen het straatbeeld vormen. De Buiten- en Binnenring zorgen voor goede verbindingen met de regio en het bosrijke gebied, dat aansluit op natuurgebied Brunssumerheide. Dit gebied bevindt zich op loopafstand van de woning. Dagelijkse voorzieningen als supermarkten, winkels, openbaar vervoer, sport (golfclub Brunssumerheide) en scholen bevinden zich in de nabijheid. Villawijk ‘de Exdel’ heeft een gunstige ligging tussen Landgraaf en Heerlen en wordt door velen betiteld als een van de mooiste wijken in de regio.
INDELING:
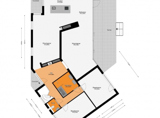
Begane grond:
Via de prachtige buitentrap, waarvan de treden lijken te zweven, loopt u naar de entree van deze prachtige villa. De royale ontvangsthal is het woonbeeld van luxe en sfeer, waar het daglicht op een fraaie wijze naar binnen valt. Aan de linkerzijde loopt u de eerste woonkamer (tv-kamer) in en aan de rechterzijde bevinden zich het luxe gastentoilet en de trap naar het souterrain. Als u rechtdoor loopt, komt u in de tweede woonkamer (tuinkamer) uit die in direct contact staat met de tuin. Fraai element is de visgraatvloer met houtlook, voorzien van vloerverwarming.
De tv-kamer (ca. 28 m2) staat in verbinding met de leefkeuken van ca. 37 m2. Achter de doorkijk gashaard bevindt zich de tuingerichte zitkamer (ca. 33 m2) met een grote schuifpui naar het deels overdekte terras. Zo heeft u de beschikking over een leef- en kookruimte van bijna 100 m2, met ramen van vloer tot plafond en een stijlvolle gevlinderde betonvloer. Stucwerk is gecombineerd met fraai patroonbehang en het plafond is voorzien van luxe inbouwspots.
Keukenzinnig, een design keukenontwerper uit Geleen, heeft een unieke designkeuken ontworpen met een groot kook-/spoeleiland en een grote kastenwand, die in de muur is verzonken. De grijze kleur past perfect bij het granieten blad en alle denkbare inbouwapparatuur van topkwaliteit is ingebouwd: een inductiekookplaat met afzuiging, twee combi-ovens, een koelkast, vriezer, vaatwasser, koffiemachine en twee wijnkoelers.
In het linkerdeel van de villa bevindt zich de master bedroom (ca. 13 m2) met een dressing (ca. 9 m2) en een privébadkamer (ca. 6 m2). De slaapkamer met fraai uitzicht naar de tuin is een oase van rust en geeft u de beleving van een luxe hotelkamer. In de dressing bieden de kasten volop ruimte voor uw kleding, schoenen en accessoires.
De badkamer met design sanitair is ingedeeld met een ligbad met watervalkraan, inloopdouche, wandcloset en een dubbele wastafel uit 1 stuk natuursteen. Fraaie elementen zijn de regendouche, verwarmde spiegel, twee handdoekwarmers, het tegelwerk en de elektrische radiator met afstandsbediening.
In het rechterdeel van de villa zijn twee ruime slaapkamers van ca. 19 m2. Beide slaapkamers bieden genoeg ruimte om een tweepersoonsbed, garderobekast, bureau en een bank neer te zetten. Het uitzicht naar de voortuin en brede laan is fraai, maar ook het uitzicht naar de achtertuin verdient uw aandacht. Aan deze zijde van de villa is de tweede badkamer (ca. 6 m2) met een ligbad, inloopdouche en twee wastafels op een houten blad. Qua luxe en materiaalgebruik is deze badkamer te vergelijken met badkamer I.
Souterrain:
Het rechterdeel van de villa is voorzien van een stahoog souterrain. Via de spiltrap loopt u vanuit de hal naar een portaal die in verbinding staat met twee aaneengesloten technische ruimtes (beide ca. 9 m2) en de ca. 44 m2 grote garage. Met een diepte van 9.50 meter en een sectionaalpoort naar de oprit is de garage de perfecte plek voor twee auto’s, de fietsen en andere spullen.
Tuin:
Deze designvilla staat op een fraai perceel van 1260 m2 met een royale frontbreedte en een uitstekende zonligging (zuiden). Het deels overdekte terras heeft een oppervlakte van ca. 65 m2 en de bostuin is fraai aangelegd met bomen, brede borders, een gazon en een zonneterras.
Algemeen:
Bouwjaar: 1964, geheel gerenoveerd in 2020
Woonoppervlakte: circa 208 m2, inhoud: circa 1012 m3
Verwarming via een warmtepomp (koelen en verwarmen) en 3 Daikin airco’s in de slaapkamers (koelen en verwarmen)
Op afstand te bedienen design gashaard voor de sfeer
Vloerverwarming in de gehele woning met uitzondering van de slaapkamers (4 zones, apart te bedienen)
Matzwarte aluminium kozijnen met HR++ glas
Maar liefst 70 zonnepanelen op het platte dak
Dak-, spouwmuur- en deels vloerisolatie
Duurzame Fraké houten gevelbekleding (thermisch)
Energielabel: A; er wordt een nieuw label aangevraagd. De verwachting is dat dit label hoger zal uitvallen.
Ter bescherming van de belangen van zowel koper als verkoper, wordt uitdrukkelijk gesteld dat een koopovereenkomst met betrekking tot deze onroerende zaak eerst dan tot stand komt nadat koper en verkoper de koopovereenkomst hebben getekend (“schriftelijkheidsvereiste”).
Indien er in de woning huurtoestellen aanwezig zijn zoals CV-ketel, boiler, zonnepanelen, mechanische ventilatie etc. dan dienen deze door de koper te worden overgenomen.
De termijn die wordt opgenomen voor eventuele (overeengekomen) ontbindende voorwaarden (bv. Financiering) is in de regel 4 tot 6 weken na het sluiten van de mondelinge wilsovereenkomst.
De waarborgsom/bankgarantie is 10% van de koopsom. De koper dient deze 3 dagen ná het vervallen van de ontbindende voorwaarden bij de desbetreffende notaris te deponeren.
Koper is te allen tijde gerechtigd voor eigen rekening een bouwkundige keuring te (laten) verrichten dan wel andere adviseurs te raadplegen teneinde een goed inzicht te verkrijgen over de staat van onderhoud.
Deze informatie is door ons, Tijs & Cyril Makelaardij met de nodige zorgvuldigheid samengesteld. Onzerzijds wordt echter geen enkele aansprakelijkheid aanvaard voor enige onvolledigheid, onjuist of anderszins, dan wel de gevolgen daarvan. Alle opgegeven maten en oppervlakten zijn indicatief. Van toepassing zijn de NVM voorwaarden.