Vraagprijs € 415.000,- k.k.
Lichte, ruime woning met een zonnige tuin in Landgraaf/Ubach over Worms.
In een zijstraatje van het Jagerspad, zonder doorgaand autoverkeer, staat deze 2-onder-1 kapwoning met een royale oprit, garage en 4 slaapkamers. Een van deze kamers is op de 2e verdieping, te bereiken via een vaste trap. In 2023 is de badkamer vernieuwd en op het dak liggen maar liefst 15 zonnepanelen. Sfeermaker is de aangebouwde overkapping, met een glazen schuifwand aan de tuinzijde. Wat verder opvalt zijn de aluminium raamluiken op de begane grond, aan de voor- en linkerzijde.
Lichte, ruime woning met een zonnige tuin in Landgraaf/Ubach over Worms.
In een zijstraatje van het Jagerspad, zonder doorgaand autoverkeer, staat deze 2-onder-1 kapwoning met een royale oprit, garage en 4 slaapkamers. Een van deze kamers is op de 2e verdieping, te bereiken via een vaste trap. In 2023 is de badkamer vernieuwd en op het dak liggen maar liefst 15 zonnepanelen. Sfeermaker is de aangebouwde overkapping, met een glazen schuifwand aan de tuinzijde. Wat verder opvalt zijn de aluminium raamluiken op de begane grond, aan de voor- en linkerzijde.
Typering:
In dit mooie stukje Landgraaf vindt u veel groen en er is een grote speeltuin voor de kinderen. Het centrum van Waubach is ongeveer 1,5 kilometer fietsen en het centrum van Landgraaf bevindt zich op slechts 2,5 kilometer afstand. Verder woont u in de nabijheid van de Brunssummerheide, waar u kunt wandelen, hardlopen en fietsen. De Buitenring Parkstad zorgt voor een goede verbinding met de regio en de snelweg A76.
Begane grond:
Op de oprit is plek voor meerdere auto’s, dus u hoeft nooit ver te lopen naar de entree van deze goed onderhouden woning. In de royale hal zijn de meterkast, de trapopgang en de toiletruimte met fonteintje. De lichte tegelvloer ligt op nagenoeg de hele begane grond en de wanden zijn, net als de plafonds, in een lichte kleur geschilderd.
De L-vormige woonkamer heeft een oppervlakte van circa 37 m2, exclusief de halfopen keuken van circa 5 m2. Het royale zitgedeelte is aan de voorzijde, met uitzicht naar de voortuin en de rustige straat. Aan de achterzijde is het eetgedeelte, vlak naast de keuken.
In de keuken is de ruimte optimaal benut, met een U-opstelling in een lichte kleur. Het aanrechtblad en de achterwand zijn uitgevoerd in een fraaie grijze kleur, waardoor de keuken een trendy uitstraling heeft. De inductie kookplaat, afzuigkap, oven, vaatwasser en koelkast zijn ingebouwd waardoor u direct kunt beginnen met koken.
Via de schuifpui loopt u de aangebouwde overkapping (circa 5,70 x 3,95) in, met een glazen schuifwand en ingebouwde ledverlichting. Deze grote ruimte is het perfecte verlengstuk van de woonkamer, waar de bewoners veel tijd doorbrengen. Niet alleen in de zomer, maar ook in het voor- en najaar!
Vanuit de aangebouwde overkapping is er toegang tot de garage (circa 6,71 x 2,97). Voor de auto, fietsen en het klusgereedschap is genoeg plek. Extra bergruimte is er op de vliering, bij het voorste deel van de garage. De achtertuin is, net als de voortuin, fraai aangelegd met veel groen. U ziet een grote variatie aan beplanting, deels groenblijvend, en er zijn twee terrassen om de hele dag in de zon te kunnen zitten.
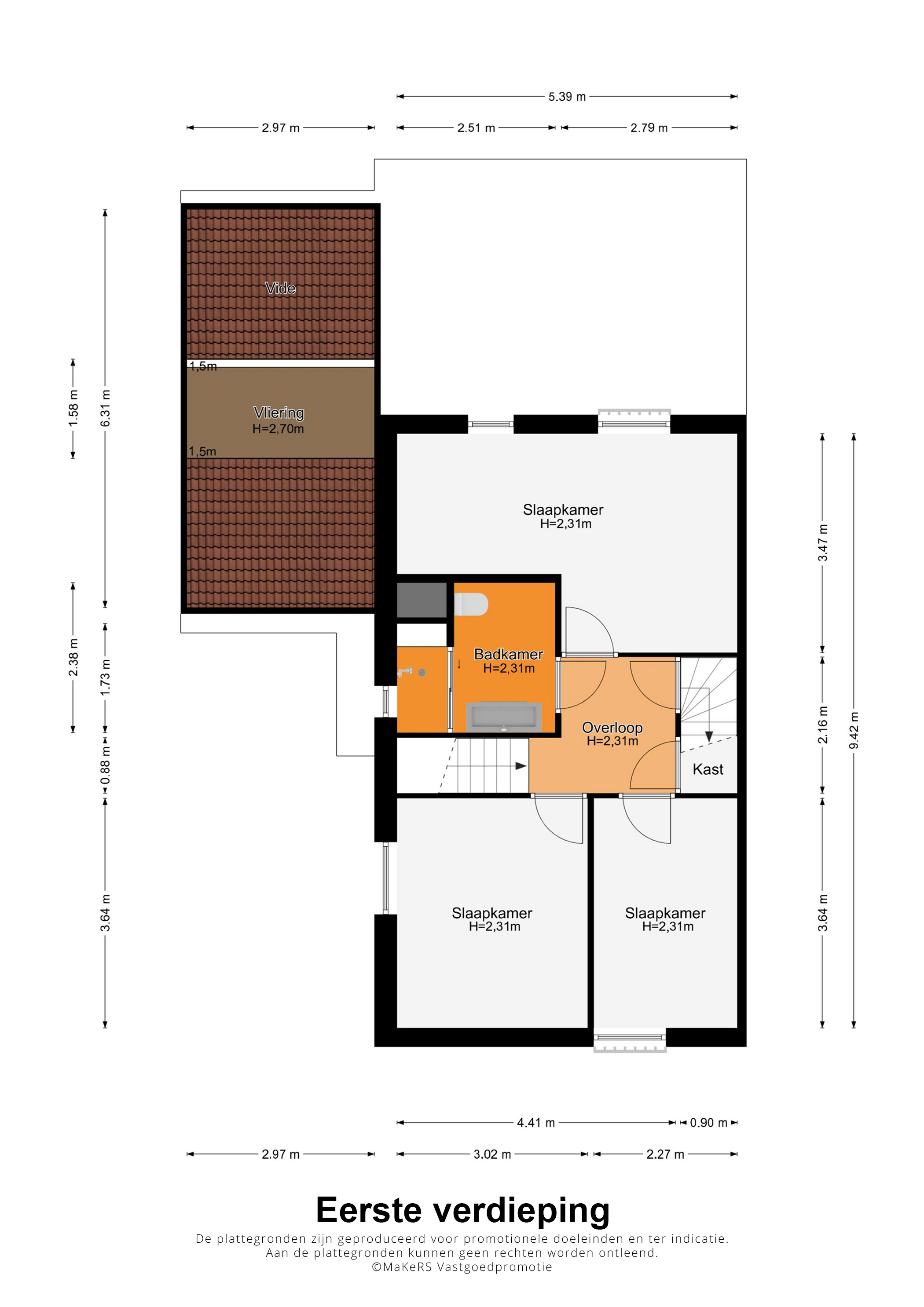
Eerste verdieping:
Vanaf de overloop zijn drie slaapkamers en de badkamer te bereiken, Erg handig: de deur bij de trap naar de tweede verdieping zorgt dat er geen warmte verloren gaat. De parketvloer in blokmotief ligt niet alleen op de overloop, maar ook in een van de slaapkamers.
Aan de achterzijde is slaapkamer I met een slaap- en een kleedgedeelte. Slaapkamer II (circa 3,64 x 3,02) en slaapkamer III (circa 2,27 x 3,64) zijn aan de voorzijde. De grootte van de slaapkamers maakt deze woning perfect voor een gezin en om vanuit huis te werken.
In 2023 is de badkamer vernieuwd, met een prachtig eindresultaat. De ruimte (circa 2,51 x 2,38) is ingedeeld met een grote inloopdouche, een wandcloset en een wastafelmeubel met spiegelkast. Zowel de kranen, de douchewand, designradiator, stopcontacten als andere elementen zijn uitgevoerd in stijlvol zwart.
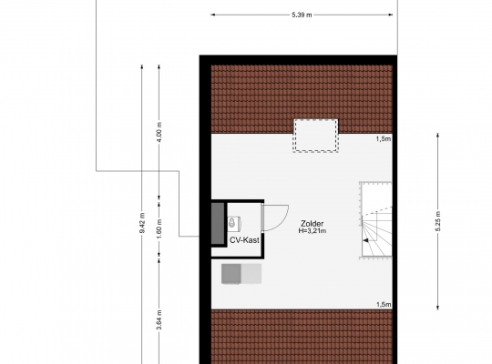
Tweede verdieping:
Met een oppervlakte van circa 5,25 x 5,39 meter (gemeten vanaf 1,50 meter hoogte) is dit een etage van formaat. De hoge nok biedt de mogelijkheid voor een vliering en het dakraam zorgt voor veel lichtinval. Er ligt laminaat op de vloer en in een aparte ruimte hangt de HR-ketel (Atag, 2012, huur).
Algemeen:
Bouwjaar: 1976
Perceeloppervlakte: 309 m2
Gebruiksoppervlakte wonen: circa 130 m2, inhoud circa 543 m3
Kunststof kozijnen met isolerende beglazing
Deels aluminium kozijnen (schuifpui, keuken en badkamer) met isolerende beglazing
Rolluiken op de eerste verdieping en aluminium raamluiken op de begane grond (voorzijde)
Verwarming en warm water via een HR-ketel (Atag, 2012, huur)
15 zonnepanelen van 300 Wp, geplaatst in 2019
Aanvaarding: in overleg
Ter bescherming van de belangen van zowel koper als verkoper, wordt uitdrukkelijk gesteld dat een koopovereenkomst met betrekking tot deze onroerende zaak eerst dan tot stand komt nadat koper en verkoper de koopovereenkomst hebben getekend (“schriftelijkheidsvereiste”).
Indien er in de woning huurtoestellen aanwezig zijn zoals CV-ketel, boiler, zonnepanelen, mechanische ventilatie etc. dan dienen deze door de koper te worden overgenomen.
De termijn die wordt opgenomen voor eventuele (overeengekomen) ontbindende voorwaarden (bv. Financiering) is in de regel 4 tot 6 weken na het sluiten van de mondelinge wilsovereenkomst.
De waarborgsom/bankgarantie is 10% van de koopsom. De koper dient deze 3 dagen ná het vervallen van de ontbindende voorwaarden bij de desbetreffende notaris te deponeren.
Koper is te allen tijde gerechtigd voor eigen rekening een bouwkundige keuring te (laten) verrichten dan wel andere adviseurs te raadplegen teneinde een goed inzicht te verkrijgen over de staat van onderhoud.
Deze informatie is door ons, Tijs & Cyril Makelaardij met de nodige zorgvuldigheid samengesteld. Onzerzijds wordt echter geen enkele aansprakelijkheid aanvaard voor enige onvolledigheid, onjuist of anderszins, dan wel de gevolgen daarvan. Alle opgegeven maten en oppervlakten zijn indicatief. Van toepassing zijn de NVM voorwaarden.