Twee-onder-een kapwoning met een diepe voortuin, garage en een overdekt terras. In de geliefde wijk De Deijl staat deze verrassend ruime woning met drie slaapkamers, een zolderkamer en een lichte woonkamer. De open keuken is vernieuwd en de bijkeuken is een praktische ruimte, die ook als werkkamer of hobbyruimte gebruikt kan worden. Wat deze woning uniek maakt, is de diepe voortuin met een oprit voor meerdere auto’s.
Twee-onder-een kapwoning met een diepe voortuin, garage en een overdekt terras. In de geliefde wijk De Deijl staat deze verrassend ruime woning met drie slaapkamers, een zolderkamer en een lichte woonkamer. De open keuken is vernieuwd en de bijkeuken is een praktische ruimte, die ook als werkkamer of hobbyruimte gebruikt kan worden. Wat deze woning uniek maakt, is de diepe voortuin met een oprit voor meerdere auto’s.
Typering:
Voordat we het over de omgeving gaan hebben, eerst iets over de straatnaam. Een lampisterie is de plaats waar lampen werden bewaard, schoongemaakt, gevuld en weer uitgegeven. In de mijnbouw gaat het om petlampen, waar de naam petlampenboet vandaan komt.
De woning staat in de wijk De Deijl, nabij centrum Hoensbroek en het Schurenberger Park met een levensloopbos, een natuurlijk bos en een activiteitenterrein. Verder woont u in de nabijheid van scholen, de bushalte en de Buitenring. De A76 is iets meer dan 4 kilometer rijden en het dichtstbijzijnde treinstation is in het nabijgelegen Nuth.
Indeling:
Begane grond:
Er is ruime parkeergelegenheid op eigen terrein, waarna u naar de overdekte entree loopt. Via de voordeur is de lichte hal (circa 2,80 x 1,98) te bereiken. Links van de trap is een doorgang naar het tweede deel van de hal, met dezelfde tegelvloer en een fraaie wandafwerking. Het tweede deel van de hal staat in verbinding met de toiletruimte, de garage (circa 5,46 x 2,69) en de bijkeuken (circa 2,62 x 2,66). De bijkeuken heeft niet alleen een deur naar de tuin, maar ook een grote lichtkoepel.
In de hal, rechts van de trap, is een deur naar de verrassend ruime woonkamer van circa 34 m2. Het zitgedeelte is aan de voorzijde, met mooi uitzicht naar de diepe voortuin en de rustige straat. Aan de andere kant van de schouw met sierhaard is het eetgedeelte, met een schuifpui naar het overdekte terras.
Vanaf de eettafel is het een paar stappen naar de keuken, waar een moderne hoekopstelling in een stijlvolle kleurencombinatie staat. Alle benodigde apparatuur is ingebouwd: een inductie kookplaat, afzuigkap, heteluchtoven, vaatwasser en een koelkast met vriesvak.
De achtertuin met overdekt terras is een mooie buitenruimte, met een rechthoekige vijver en twee palmbomen. De rest van de tuin is ingericht met gras, een terras en een houten tuinberging. Groot voordeel van de voortuin is de lengte, waardoor je in huis veel privacy hebt.
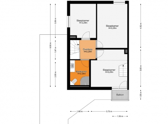
Eerste verdieping:
Vanaf de overloop zijn drie slaapkamers en de badkamer te bereiken. Er ligt, net als op de begane grond, een mooie laminaatvloer in een lichte kleurstelling.
Aan de voorzijde is slaapkamer I (circa 3,73/3,09 x 3,83) met een balkon en een trap naar de tweede verdieping. Slaapkamer II (circa 4,52 x 3,09) en slaapkamer III (circa 3,50 x 2,85) zijn aan de achterzijde, beiden geschikt om in te richten met een tweepersoonsbed. In de badkamer (circa 2,55 x 1,95) is het veelvuldig gebruik van marmer een van de sfeermakers. De ruimte is ingedeeld met een kwartronde douche, wandcloset en een wastafelmeubel.
Tweede verdieping:
De vliering, die als slaap- of speelruimte gebruikt kan worden, staat in verbinding met een zolderkamer (circa 5,87 x 1,58) met een dakraam en de opstelling van de HR-ketel (Nefit, eigendom).
Algemeen:
Bouwjaar: 1975
Perceeloppervlakte: 325 m2
Gebruiksoppervlakte wonen: circa 111 m2, inhoud circa 450 m3
Verwarming en warm water via een HR-ketel (Nefit, eigendom)
Hardhouten kozijnen met isolatieglas
Balkondeur en -raam, voorzien van HR++ glas
Zeer ruime woon-/eetkamer met open keuken
Drie slaapkamers, waarvan een met een vide en een slaapzolder
Inpandig te bereiken garage/berging en een oprit voor meerdere auto’s
Energielabel: C
Aanvaarding: in onderling overleg
Ter bescherming van de belangen van zowel koper als verkoper, wordt uitdrukkelijk gesteld dat een koopovereenkomst met betrekking tot deze onroerende zaak eerst dan tot stand komt nadat koper en verkoper de koopovereenkomst hebben getekend (“schriftelijkheidsvereiste”).
Indien er in de woning huurtoestellen aanwezig zijn zoals CV-ketel, boiler, zonnepanelen, mechanische ventilatie etc. dan dienen deze door de koper te worden overgenomen.
De termijn die wordt opgenomen voor eventuele (overeengekomen) ontbindende voorwaarden (bv. Financiering) is in de regel 4 tot 6 weken na het sluiten van de mondelinge wilsovereenkomst.
De waarborgsom/bankgarantie is 10% van de koopsom. De koper dient deze 3 dagen ná het vervallen van de ontbindende voorwaarden bij de desbetreffende notaris te deponeren.
Koper is te allen tijde gerechtigd voor eigen rekening een bouwkundige keuring te (laten) verrichten dan wel andere adviseurs te raadplegen teneinde een goed inzicht te verkrijgen over de staat van onderhoud.
Deze informatie is door ons, Tijs & Cyril Makelaardij met de nodige zorgvuldigheid samengesteld. Onzerzijds wordt echter geen enkele aansprakelijkheid aanvaard voor enige onvolledigheid, onjuist of anderszins, dan wel de gevolgen daarvan. Alle opgegeven maten en oppervlakten zijn indicatief. Van toepassing zijn de NVM voorwaarden.