Luxe en gelijkvloers appartement met uniek uitzicht over Zuid-Limburg. Aan de rand van het Imstenraderbos, naast de bekende voormalige Vroedvrouwenschool, staat een stijlvol appartementengebouw van maar liefst 19 verdiepingen. Het is een herkenbaar gebouw, waar u comfortabel kunt wonen en optioneel (zorg)diensten kunt afnemen op een prachtige plek in Heerlen. Op de 17e verdieping bevindt zich dit prachtige, in 2024 gerenoveerde appartement van circa 135 m2 met 2 slaapkamers, een luxe keuken, stijlvol sanitair en eindeloos mooi uitzicht. Bij het appartement hoort een vaste parkeerplek in de parkeergarage en in het gebouw is een centrale fietsenberging.
Luxe en gelijkvloers appartement met uniek uitzicht over Zuid-Limburg. Aan de rand van het Imstenraderbos, naast de bekende voormalige Vroedvrouwenschool, staat een stijlvol appartementengebouw van maar liefst 19 verdiepingen. Het is een herkenbaar gebouw, waar u comfortabel kunt wonen en optioneel (zorg)diensten kunt afnemen op een prachtige plek in Heerlen. Op de 17e verdieping bevindt zich dit prachtige, in 2024 gerenoveerde appartement van circa 135 m2 met 2 slaapkamers, een luxe keuken, stijlvol sanitair en eindeloos mooi uitzicht. Bij het appartement hoort een vaste parkeerplek in de parkeergarage en in het gebouw is een centrale fietsenberging.
Typering:
Wat het wonen in Parc Imstenrade extra aantrekkelijk maakt, is de mogelijkheid om gebruik te maken van huishoudelijke, verzorgende en verpleegkundige diensten. Er is een huismeester voor kleine huishoudelijke diensten, waardoor comfortabel en zorgeloos wonen een nieuwe dimensie krijgt. Er is een inpandige verbinding met het hoofdgebouw, waar een restaurant (La Valeur), ontmoetingsruimte De Orangerie, een winkel, kapsalon, sport-/ontspanningsruimte, bibliotheek en een schoonheidssalon/pedicure zijn. Aan alles is gedacht; zo is er regelmatig vervoer naar het centrum tegen een laag tarief en kan dit vervoer ook worden ingeroepen voor persoonlijke ritten. U woont op enkele minuten lopen van het Imstenraderbos, en het wandelpark met grote vijverpartijen en terrassen nodigt u uit voor een wandeling in de zon.
Begane grond:
Op de begane grond is de entree van het stijlvolle appartementengebouw. Hier zijn de brievenbussen, het bellentableau en de intercom. Achter de schuifdeuren is de centrale hal, voorzien van videobewaking, en verder heeft het gebouw twee liftinstallaties, een trappenhuis en een centrale fietsenberging. Bij het appartement hoort een vaste parkeerplek in de parkeergarage.
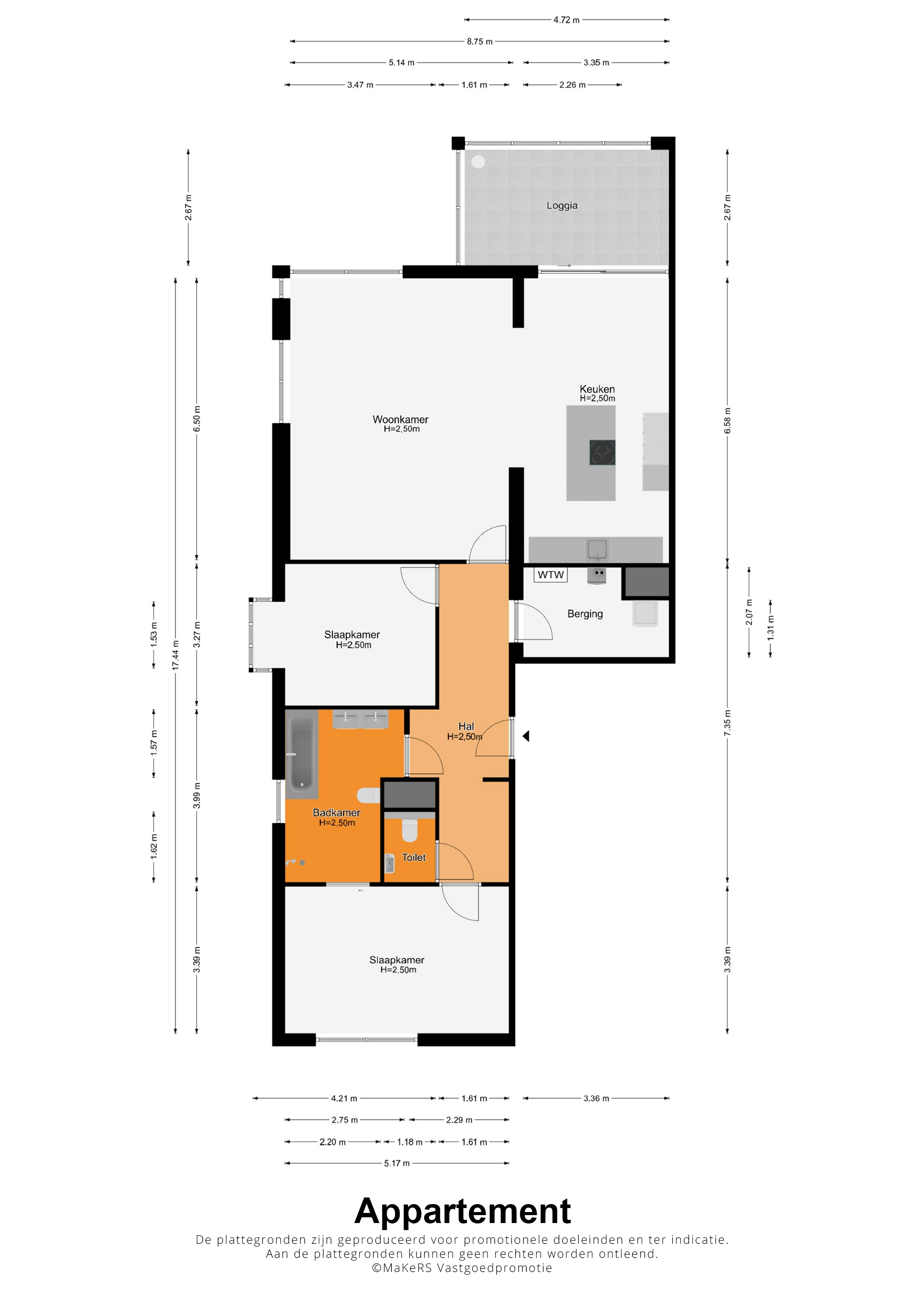
Zeventiende verdieping:
‘Simply the best’. Vanaf het moment dat u in de hal van het appartement staat, bent u op slag verliefd. In 2024 is het appartement van top tot teen verbouwd, met een verbluffend resultaat. De wanden en plafonds zijn gestuct en de houtlook pvc-vloer ligt in bijna alle ruimtes.
De woonkamer (circa 6,50 x 5,14) grenst aan de eetkeuken (circa 6,58 x 3,35). Het resultaat is een fraaie leefruimte van circa 55 m2 met fraaie lichtinval, een aangename sfeer en volop wooncomfort. Niet alleen in de keuken, maar ook in de woonkamer is plek voor een eettafel en ook voor een zitgedeelte is genoeg plek. In de woonkamer hangt een airco-unit, die kan verwarmen en koelen.
In de keuken staat een luxe opstelling met een spoelgedeelte, een kookeiland en een hoge kastenwand. Dit is een keuken van topkwaliteit, met een fraaie uitstraling en alle benodigde inbouwapparatuur van gerenommeerde merken: een inductie kookplaat met afzuiging, een vaatwasser, koelkast, stoomoven en een combimagnetron.
Naast de keuken is een bijkeuken/berging (circa 3,36 x 2,07/1,31) met de vernieuwde WTW-unit. Verder is er plek om een vriezer, de wasmachine, droger en andere spullen neer te zetten.
Dit exclusieve appartement heeft twee slaapkamers, die beide vanuit de hal te bereiken zijn. Slaapkamer I (circa 3,47 x 3,27) is ingericht als logeerkamer en slaapkamer II (circa 5,17 x 3,39) is een royale master bedroom. Het naastgelegen portaal biedt ruimte aan een maatwerk kastenwand voor kleding, schoenen en linnengoed.
Vanaf het portaal heeft u toegang tot het gastentoilet, met een wandcloset en een fonteintje. De naastgelegen badkamer (circa 3,99 x 2,75/2,20) is ingedeeld met een ligbad, aparte douche, tweede toilet en een in 2025 geplaatst badmeubel met twee wastafels.
De loggia (circa 4,72 x 2,67) is een verlengstuk van de woonkamer. Een geweldige plek om te zitten en te genieten van het uitzicht over het Imstenraderbos en het achterliggende landschap. Zet u de ramen open, beleeft u het gevoel van ‘buiten’ zitten en met de ramen dicht verlengt u het seizoen om deze ruimte te gebruiken.
Algemeen:
Bouwjaar: 2000, grotendeels gerenoveerd in 2024
Gebruiksoppervlakte wonen: circa 135 m2, inhoud circa 425 m3
VvE bijdrage circa € 338,68 per maand inclusief parkeerplaats en zorgcalamiteit
Faciliteiten van Vitalis zijn toegankelijk voor bewoners van Parc Imstenrade
Blokverwarming, met afrekening via een individuele meter
Airco in de woonkamer, verwarmen en koelen
WTW-systeem (2024) voor een optimale ventilatie
Openbare parkeergelegenheid voor bezoekers en mogelijkheid tot huren van een hotelkamer tegen een voordelig tarief
Energielabel: A
Aanvaarding: in onderling overleg
Ter bescherming van de belangen van zowel koper als verkoper, wordt uitdrukkelijk gesteld dat een koopovereenkomst met betrekking tot deze onroerende zaak eerst dan tot stand komt nadat koper en verkoper de koopovereenkomst hebben getekend (“schriftelijkheidsvereiste”).
Indien er in de woning huurtoestellen aanwezig zijn zoals CV-ketel, boiler, zonnepanelen, mechanische ventilatie etc. dan dienen deze door de koper te worden overgenomen.
De termijn die wordt opgenomen voor eventuele (overeengekomen) ontbindende voorwaarden (bv. Financiering) is in de regel 4 tot 6 weken na het sluiten van de mondelinge wilsovereenkomst.
De waarborgsom/bankgarantie is 10% van de koopsom. De koper dient deze 3 dagen ná het vervallen van de ontbindende voorwaarden bij de desbetreffende notaris te deponeren.
Koper is te allen tijde gerechtigd voor eigen rekening een bouwkundige keuring te (laten) verrichten dan wel andere adviseurs te raadplegen teneinde een goed inzicht te verkrijgen over de staat van onderhoud.
Deze informatie is door ons, Tijs & Cyril Makelaardij met de nodige zorgvuldigheid samengesteld. Onzerzijds wordt echter geen enkele aansprakelijkheid aanvaard voor enige onvolledigheid, onjuist of anderszins, dan wel de gevolgen daarvan. Alle opgegeven maten en oppervlakten zijn indicatief. Van toepassing zijn de NVM voorwaarden.