Aan de lommerrijke Akerstraat staat deze stijlvolle, geheel verbouwde jaren 30 woning met 5 slaapkamers, 2 badkamers, een groot souterrain en parkeergelegenheid op eigen terrein. Fraaie elementen zijn de stijlplafonds, glas in loodramen en paneeldeuren die perfect passen in deze woning met een bijzondere historie.
Aan de lommerrijke Akerstraat staat deze stijlvolle, geheel verbouwde jaren 30 woning met 5 slaapkamers, 2 badkamers, een groot souterrain en parkeergelegenheid op eigen terrein. Fraaie elementen zijn de stijlplafonds, glas in loodramen en paneeldeuren die perfect passen in deze woning met een bijzondere historie.
Typering:
De Akerstraat is een prachtige straat met afwisselende bebouwing, deels uit het begin van de vorige eeuw. U woont in de nabijheid van het Bernardinuscollege en het Grotius College, een basisschool, de bushalte en het Aambos waar de Caumerbeek doorheen stroomt. Het centrum van Heerlen met winkels, restaurants, cafés, het theater en de bioscoop bevindt zich op circa 1 kilometer afstand. Brightlands Smart Services Campus, APG, de Open Universiteit, Hogeschool Zuyd en het Zuyderland ziekenhuis in de nabijheid maken het wonen aan de Akerstraat heel aantrekkelijk.
INDELING:
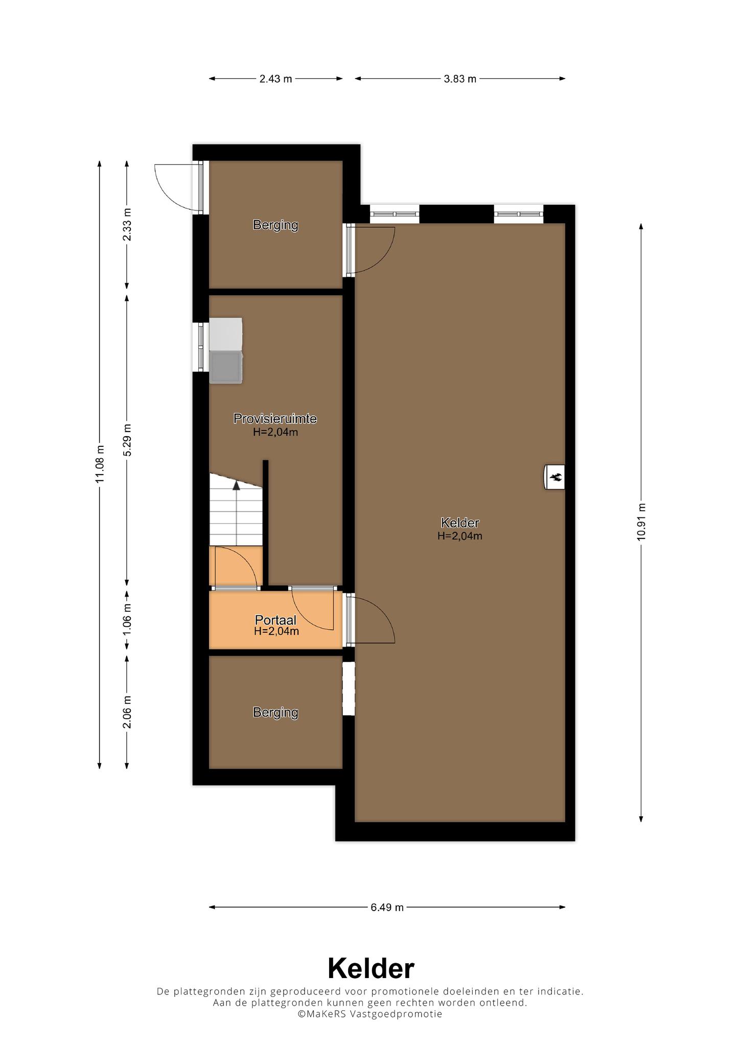
Souterrain:
Het ruime, multifunctionele souterrain is vanuit de hal en van buitenaf te bereiken. Dankzij de hellingbaan is de berging (ca. 2,43 x 2,33) in het souterrain goed bereikbaar met de fiets. De provisieruimte/wasruimte (ca. 5,29 x 2,43) met trapopgang naar de begane grond staat via een tussenportaal in verbinding met een zeer grote kelderruimte (ca. 10,91 x 3,83), waar de in 2023 geplaatste HR-ketel (Nefit, eigendom) hangt. Aan de linker voorzijde is het voormalige kolenhok (ca. 2,42 x 2,06), verbouwd tot berging. De totale oppervlakte van het souterrain bedraagt ca. 68 m2.
Begane grond:
Aan de rechterzijde is de prachtige entree (ca. 2,47 x 1,78) met een op maat gemaakte garderobe, donkere tegelvloer en een prachtige binnendeur met glas in lood. De aansluitende hal is een fantastische ruimte waar diverse originele elementen, van lambrisering tot hoog stijlplafond, samensmelten tot een fraai geheel. In de hal bevinden zich de trappen naar de eerste verdieping en het souterrain. De toiletruimte met rond glas in loodraam is uitgevoerd in een neutrale kleurstelling.
Vanuit de entree en de hal is de fantastische woonkamer te bereiken, met een lengte van maar liefst 11 meter en een oppervlakte van ca. 48,5 m2. De parketvloer, prachtige plafonds, het kleurenpalet en de glas in loodramen dragen bij aan de geweldige sfeer. De plafondhoogte van 3,05 meter zorgt voor een leefruimte met klasse en stijl.
Aan de achterzijde bevindt zich de dichte keuken van SieMatic (ca. 3,37 x 2,46) met dezelfde vloer als in de hal, die goed past bij de dubbele wandopstelling met natuursteen blad. Alle benodigde apparatuur is ingebouwd: een groot 6-pits Boretti gasfornuis met oven, een afzuigkap, vaatwasser, koelkast en een magnetron. Bij zowel de openslaande deuren in de woonkamer als in de keuken zijn luxe hordeuren gemonteerd.
Vanuit de keuken is de fraai aangelegde tuin met authentieke bestrating en hoge beukenhagen te bereiken. De ligging op het oosten zorgt voor fijne zon, met name in de ochtend en middag. Er is een eigen achterom met fraaie poort en de voortuin met oprit, markiezen en vlaggenmast maken het plaatje meer dan compleet. De markiezen aan de voorzijde zijn in 2022 vernieuwd en voorzien van gemotoriseerde bediening middels app/ afstandsbediening.
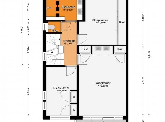
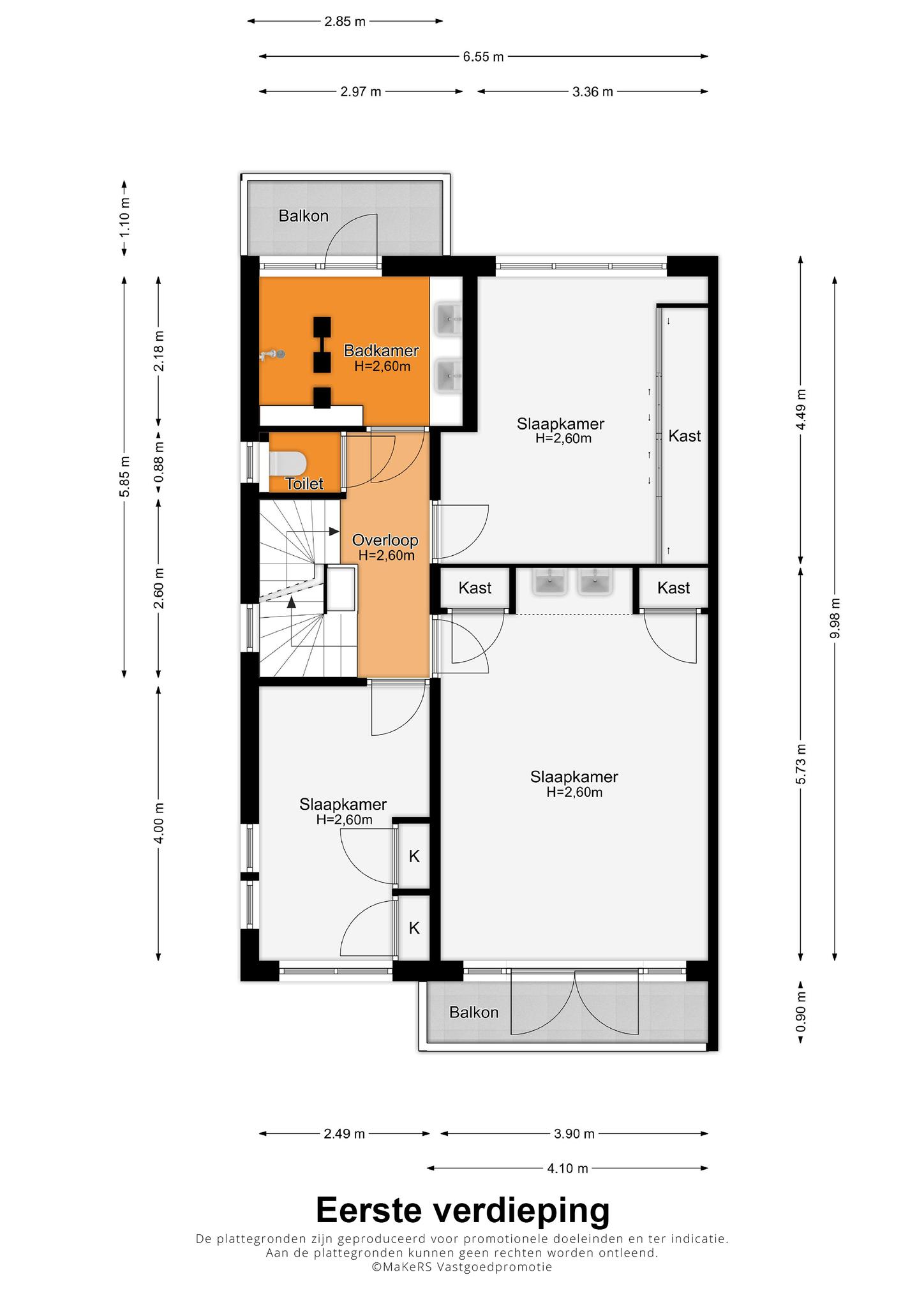
Eerste verdieping:
Volg de prachtige trap naar de eerste verdieping, waar u als eerste op de overloop komt. Aan deze ruimte grenzen drie slaapkamers, een badkamer en een separate toiletruimte. Ook op deze verdieping zijn vele originele elementen, waaronder stijlplafonds en glas in loodramen, behouden.
Slaapkamer I (ca. 5,73 x 3,90) met inbouwkasten, klassieke wastafels en paneeldeuren heeft openslaande deuren naar het balkon aan de voorzijde. Slaapkamer II (ca. 4,00 x 2,49), ingericht als gastenkamer, heeft twee halfronde glas in loodramen in de zijgevel. Aan de achterzijde is slaapkamer III (ca. 4,19 x 3,90/3,36), ingericht als kastenkamer.
Naast de toiletruimte bevindt zich een moderne badkamer (ca. 2,97 x 2,18), die grenst aan het tweede balkon. De badkamer is heel ruimtelijk ingedeeld met een grote inloopdouche, designradiator en een op maat gemaakt badmeubel waarop twee wastafels staan. De grote spiegel, fraaie verlichting en wandkranen maken de badkamer tot een prachtige ruimte.
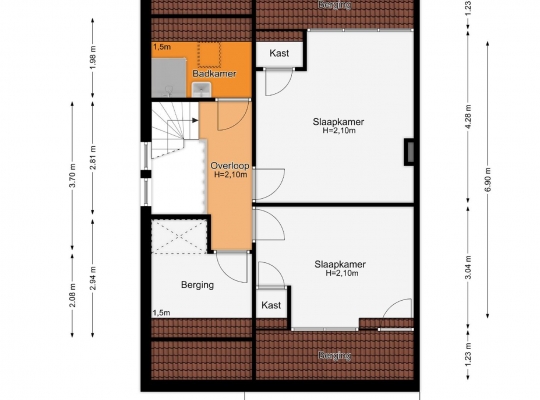
Tweede verdieping:
De zeer ruime tweede verdieping bewijst dat dit een fantastisch familiehuis is, eveneens met originele elementen. Aan de overloop grenzen twee slaapkamers, de tweede badkamer en een kofferkamer met toegang tot de zolder (niet in gebruik). Slaapkamer IV (ca. 4,28 x 3,94) met dakkapel en inbouwkast bevindt zich aan de achterzijde. Aan de voorzijde is slaapkamer V (ca. 3,06 x 3,04) met een dakkapel en inbouwkast. Naast deze kamer bevindt zich de berging en aan de achterzijde is badkamer II (ca. 2,50 x 1,98) met een douche en wastafel.
Algemeen:
Bouwjaar: 1938, keuken en badkamer gerenoveerd in 2012
Gebruiksoppervlakte wonen: circa 184 m2, inhoud circa 862 m3
Verwarming via een HR-ketel (Nefit, 2023, eigendom)
Hardhouten kozijnen met isolatieglas (voorzijde) en enkel glas (achterzijde)
De glas in loodramen zijn voorzien van voorzetramen
Vijf slaapkamers en twee badkamers
Zeer ruim souterrain, ook van buitenaf bereikbaar via een hellingbaan
Parkeergelegenheid op eigen terrein
Energielabel: D
Ter bescherming van de belangen van zowel koper als verkoper, wordt uitdrukkelijk gesteld dat een koopovereenkomst met betrekking tot deze onroerende zaak eerst dan tot stand komt nadat koper en verkoper de koopovereenkomst hebben getekend (“schriftelijkheidsvereiste”).
Indien er in de woning huurtoestellen aanwezig zijn zoals CV-ketel, boiler, zonnepanelen, mechanische ventilatie etc. dan dienen deze door de koper te worden overgenomen.
De termijn die wordt opgenomen voor eventuele (overeengekomen) ontbindende voorwaarden (bv. Financiering) is in de regel 4 tot 6 weken na het sluiten van de mondelinge wilsovereenkomst.
De waarborgsom/bankgarantie is 10% van de koopsom. De koper dient deze 3 dagen ná het vervallen van de ontbindende voorwaarden bij de desbetreffende notaris te deponeren.