Vraagprijs € 339.000,- k.k.
Fraai, ruimtelijk 3-kamerappartement met veel lichtinval en hoge plafonds. Wat dit appartement in Gronsveld heel aantrekkelijk maakt, zijn de hoge ramen en de meer dan 3 meter hoge plafonds. De woonkamer en open keuken zijn aan de voorzijde, waar het zonlicht vanaf de zuidwestkant naar binnen valt. Er zijn 2 slaapkamers, beiden aan de achterzijde, en verder heeft dit instapklare appartement een fraaie badkamer, aparte toiletruimte en een inpandige berging. Er is de mogelijkheid om een parkeerplaats te kopen en in het voormalige schoolgebouw is een gezamenlijke fietsenberging.
Fraai, ruimtelijk 3-kamerappartement met veel lichtinval en hoge plafonds. Wat dit appartement in Gronsveld heel aantrekkelijk maakt, zijn de hoge ramen en de meer dan 3 meter hoge plafonds. De woonkamer en open keuken zijn aan de voorzijde, waar het zonlicht vanaf de zuidwestkant naar binnen valt. Er zijn 2 slaapkamers, beiden aan de achterzijde, en verder heeft dit instapklare appartement een fraaie badkamer, aparte toiletruimte en een inpandige berging. Er is de mogelijkheid om een parkeerplaats te kopen en in het voormalige schoolgebouw is een gezamenlijke fietsenberging.
Typering:
Inwoners van Gronsveld en omgeving kennen het gebouw als basisschool St. Martinus, die jaren geleden is verhuisd naar het Gronsvelder Kerkplein. Daarna is het gebouw, samen met het inmiddels gesloopte gebouw aan de achterzijde, gebruikt als de VMBO afdeling van het Porta Mosana College. Aan de achterzijde van het klassieke, voormalige gebouw wordt momenteel gebouwd aan Residentie Groéselt met 10 luxe nieuwbouwappartementen.
Gronsveld is een fraai dorp aan de zuidkant van Maastricht, op fietsafstand van het MUMC+ en diverse faculteiten van Maastricht University. Met de auto is het ongeveer een kwartier naar het centrum van Maastricht, en aan de voorzijde van het gebouw is een bushalte. Een ander pluspunt is de ligging op slechts enkele minuten van de snelweg A2, richting Luik en Eindhoven. En houdt u van wandelen in de natuur? Vanaf hier loopt u zo het prachtige Savelsbos in, een van de allermooiste bossen van Zuid-Limburg.
Begane grond:
Om dit appartement te bereiken, loopt u naar de achterzijde van het gebouw. Hier is een entree van slechts drie appartementen, met een videofoon waardoor u kunt horen en zien wie aanbelt. Dit appartement bevindt zich op de begane grond, waardoor trappenlopen tot het verleden behoort. Er is een gezamenlijke fietsenberging, die bewoners de mogelijkheid biedt hun fiets/scooter veilig en droog te stallen.
Appartement (begane grond):
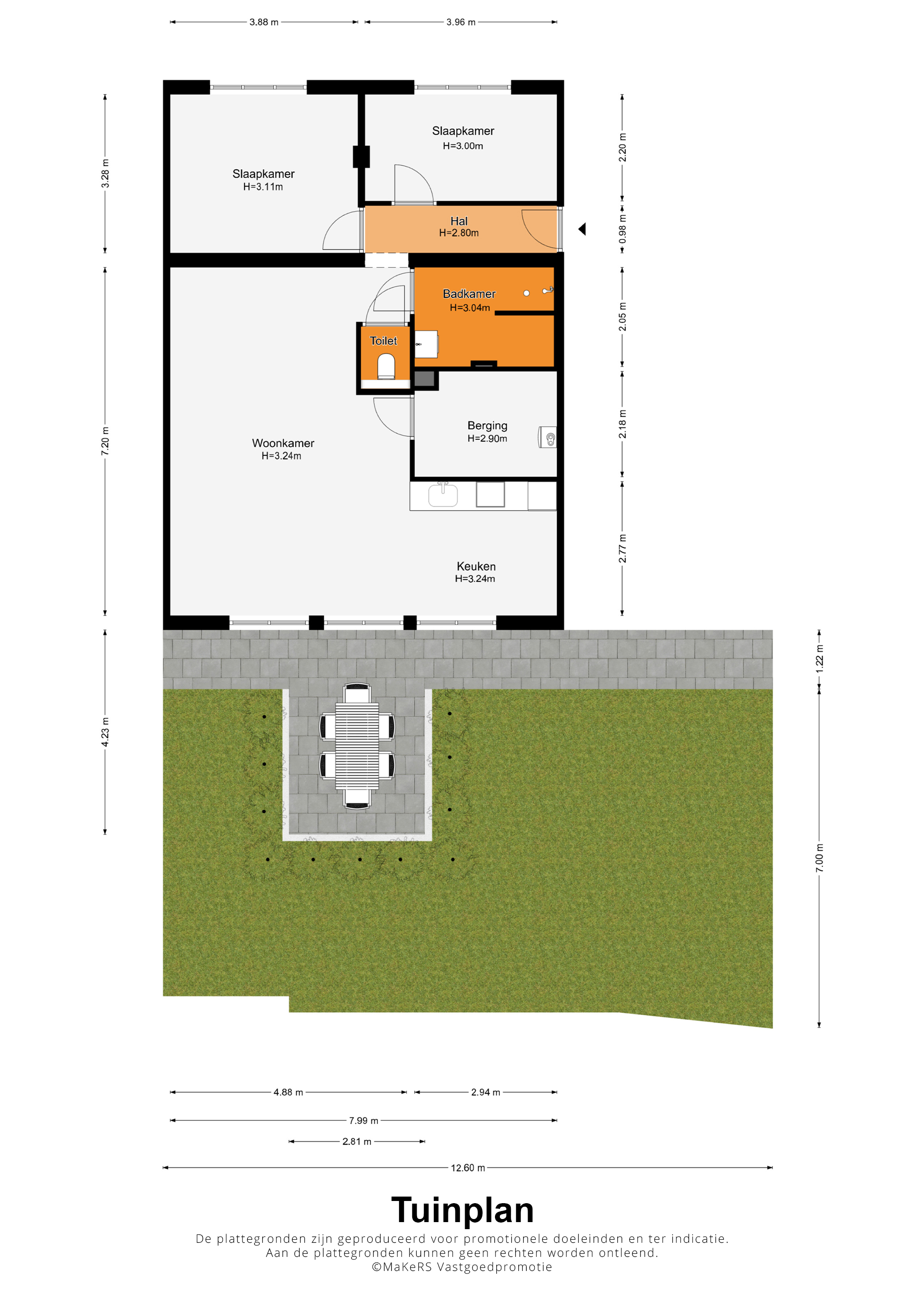
In de gezamenlijke hal ziet u niet alleen de voordeur van het appartement, maar ook de deur van de meterkast. Via de voordeur is de hal (circa 3,96 x 0,98) te bereiken, met een hoog plafond en een laminaatvloer. Deze vloer ligt in bijna het hele appartement en de wanden zijn, net als de plafonds, gestuct.
Aan het einde van de hal loopt u linksaf de woonkamer (circa 32 m2) in, met grote ramen aan de zuidwestkant en een plafondhoogte van ruim 3.20 meter. Hier krijgt u het idee van een loft, klaar om in te richten met meubels en accessoires. In de open keuken (circa 2,94 x 2,77) staat een lichte wandopstelling met een houtlook aanrechtblad en diverse inbouwapparatuur: een inductie kookplaat, afzuigkap, vaatwasser en een koelkast met vriesvak.
Naast de keuken is een inpandige berging (circa 2,94 x 2,18) met de HR-ketel (Vaillant, 2022, eigendom) en de ventilatie-unit (Itho). Ook voor de wasmand(en), strijkplank en een kast of wandrek is genoeg plek in de berging.
Dit goed ingedeelde appartement heeft twee slaapkamers, beiden aan de achterzijde. Slaapkamer I (circa 3,88 x 3,28) is de master bedroom en slaapkamer II (circa 3,96 x 2,20) is onder andere geschikt als werkkamer, kleedruimte en/of kinderkamer.
De badkamer (circa 2,94 x 2,18) is ingedeeld met een ruime douche, een nis voor de wasapparatuur en een badmeubel met wastafel. Fraaie elementen zijn de zwarte thermostaatkraan in de douche, de wit/zwarte tegelvloer en de spiegel met zwarte rand. Naast de badkamer is een toiletruimte, uitgevoerd in dezelfde stijl.
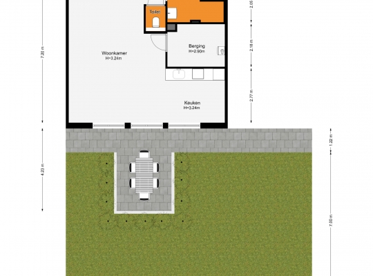
Aan de voorzijde van het appartement bevindt zich de bijbehorende tuin met privéterras. Op het terras is voldoende ruimte voor een comfortabel zitje. De tuin is overzichtelijk en onderhoudsvriendelijk aangelegd met een combinatie van groen en bestrating. Door de ligging aan de voorzijde heeft u een open uitzicht en een levendige omgeving. De tuin vormt een waardevolle aanvulling op het appartement en biedt een fijne plek om buiten te ontspannen, direct bij uw eigen woning.
Algemeen:
Bouwjaar: 1978 (gerenoveerd in 2022)
Gebruiksoppervlakte wonen: circa 86 m2, inhoud circa 334 m3
Perceeloppervlakte: n.v.t.
Fraai driekamerappartement met hoge plafonds (merendeels > 3 meter)
Verwarming en warm water via een HR-ketel (Vaillant, 2022, eigendom)
Kunststof kozijnen met HR++ glas
De energierekening (gas/elektra) van de vorige bewoner was EUR 80 per maand en WML EUR 14 per maand.
Mogelijkheid tot het kopen van een parkeerplaats € 10.000,-
VvE kosten parkeerplaats: circa € 2,76
Maandelijkse VvE-bijdrage is €99,98
Bij deze woning is geen vragenlijst en lijst van zaken aanwezig
Energielabel: A
Projectnotaris: Team Notarissen
Aanvaarding: in onderling overleg
De NVM-vragenlijst Deel B en de Lijst van Zaken zijn niet van toepassing, aangezien de woning wordt verkocht met een niet-zelfbewoningsclausule. Verkoper heeft de woning zelf niet bewoond en kan derhalve koper niet informeren over eigenschappen en/of gebreken waarvan hij niet op de hoogte is.
Ter bescherming van de belangen van zowel koper als verkoper, wordt uitdrukkelijk gesteld dat een koopovereenkomst met betrekking tot deze onroerende zaak eerst dan tot stand komt nadat koper en verkoper de koopovereenkomst hebben getekend (“schriftelijkheidsvereiste”).
Indien er in de woning huurtoestellen aanwezig zijn zoals CV-ketel, boiler, zonnepanelen, mechanische ventilatie etc. dan dienen deze door de koper te worden overgenomen.
De termijn die wordt opgenomen voor eventuele (overeengekomen) ontbindende voorwaarden (bv. Financiering) is in de regel 4 tot 6 weken na het sluiten van de mondelinge wilsovereenkomst.
De waarborgsom/bankgarantie is 10% van de koopsom. De koper dient deze 3 dagen ná het vervallen van de ontbindende voorwaarden bij de desbetreffende notaris te deponeren.
Koper is te allen tijde gerechtigd voor eigen rekening een bouwkundige keuring te (laten) verrichten dan wel andere adviseurs te raadplegen teneinde een goed inzicht te verkrijgen over de staat van onderhoud.