Fraaie, lichte hoekwoning in een voormalig schoolgebouw. Wonen tussen de stad en het Heuvelland, in het mooie Gronsveld. In een voormalig schoolgebouw zijn appartementen en één woning gebouwd, met het comfort van nu en een gezamenlijk parkeerterrein. En die woning, met een eigen entree, staat nu te koop! De voortuin is heerlijk ruim, en het terras aan de achterzijde is een heerlijke plek om buiten te zitten. Op de begane grond zijn de hal met toiletruimte, de woonkamer en keuken. De slaapkamer met en-suite badkamer vindt u op de eerste verdieping, onder het schuine dak met grote dakkapel.
Fraaie, lichte hoekwoning in een voormalig schoolgebouw. Wonen tussen de stad en het Heuvelland, in het mooie Gronsveld. In een voormalig schoolgebouw zijn appartementen en één woning gebouwd, met het comfort van nu en een gezamenlijk parkeerterrein. En die woning, met een eigen entree, staat nu te koop! De voortuin is heerlijk ruim, en het terras aan de achterzijde is een heerlijke plek om buiten te zitten. Op de begane grond zijn de hal met toiletruimte, de woonkamer en keuken. De slaapkamer met en-suite badkamer vindt u op de eerste verdieping, onder het schuine dak met grote dakkapel.
Typering:
Inwoners van Gronsveld en omgeving kennen het gebouw als basisschool St. Martinus, die jaren geleden is verhuisd naar het Gronsvelder Kerkplein. Daarna is het gebouw, samen met het inmiddels gesloopte gebouw aan de achterzijde, gebruikt als de VMBO afdeling van het Porta Mosana College. Aan de achterzijde van het klassieke, voormalige gebouw wordt momenteel gebouwd aan Residentie Groéselt met 10 luxe nieuwbouwappartementen.
Gronsveld is een fraai dorp aan de zuidkant van Maastricht, op fietsafstand van het MUMC+ en diverse faculteiten van Maastricht University. Met de auto is het ongeveer een kwartier naar het centrum van Maastricht, en aan de voorzijde van het gebouw is een bushalte. Een ander pluspunt is de ligging op slechts enkele minuten van de snelweg A2, richting Luik en Eindhoven. En houdt u van wandelen in de natuur? Vanaf hier loopt u zo het prachtige Savelsbos in, een van de allermooiste bossen van Zuid-Limburg.
Begane grond:
De entree van deze hoekwoning is in het linkerdeel van het fraaie, klassieke schoolgebouw. Via de mooi aangelegde tuin, met siergrassen en hortensia’s, loopt u naar de dubbele deur, die toegang geeft tot de hal. Hier zijn de meterkast, de trap naar de eerste verdieping en de fraaie toiletruimte.
Drie grote ramen aan de voorzijde en een pui met openslaande tuindeuren zorgen voor veel lichtinval in de woonkamer (circa 6,38 x 4,40). Er ligt, net als in de hal en keuken, laminaat op de vloer en naast de pilaar is een diepe bergkast.
In de keuken (circa 2,53 x 2,17) staat een lichte hoekopstelling, met zwarte greepjes en een houtlook aanrechtblad. De inductie kookplaat, afzuigkap, koelkast en vaatwasser zijn ingebouwd.
De achtertuin, te bereiken vanuit de woonkamer en keuken, is ingedeeld met een royaal terras op het noordoosten. Wat opvalt is dat het in aanbouw zijnde appartementengebouw op afstand staat, waardoor er op het terras veel privacy is. Via het mandeligachterpad loopt u naar de parkeerplaats, waardoor u nooit meer hoeft te zoeken naar een parkeerplek.
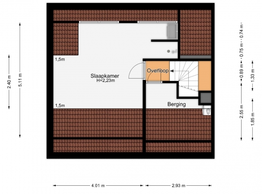
Eerste verdieping:
Via de trap in de hal loopt u naar de overloop, die toegang biedt tot een berging en de slaapkamer met en-suite badkamer. In de berging (circa 2,55/1,85 x 2,93) hangt de HR-ketel (Vaillant, 2021, eigendom).
De slaapkamer (circa 5,11 x 4,01) is, net als de en-suite badkamer, extra ruim en licht dankzij de dakkapel aan de achterzijde. In de badkamer heeft u de beschikking over een ruime douche en een wastafelmeubel. De sfeer wordt bepaald door de zwarte kranen, het mooie tegelwerk en de spiegel met zwarte rand.
Algemeen:
Bouwjaar: 1978 (gerenoveerd in 2021)
Gebruiksoppervlakte wonen: circa 67 m2, inhoud circa 258 m3
Perceeloppervlakte: circa 160 m2 (nader in te meten door het Kadaster)
Dak-, gevel- en vloerisolatie
Verwarming en warm water via een HR-ketel (Vaillant, 2021, eigendom)
Kunststof kozijnen met HR++ glas
Laminaatvloer op de begane grond en eerste verdieping
Mogelijkheid tot het kopen van een parkeerplaats €10.000,-
VvE kosten parkeerplaats: circa €12,50
Energielabel: A
Aanvaarding: in onderling overleg
Ter bescherming van de belangen van zowel koper als verkoper, wordt uitdrukkelijk gesteld dat een koopovereenkomst met betrekking tot deze onroerende zaak eerst dan tot stand komt nadat koper en verkoper de koopovereenkomst hebben getekend (“schriftelijkheidsvereiste”).
Indien er in de woning huurtoestellen aanwezig zijn zoals CV-ketel, boiler, zonnepanelen, mechanische ventilatie etc. dan dienen deze door de koper te worden overgenomen.
De termijn die wordt opgenomen voor eventuele (overeengekomen) ontbindende voorwaarden (bv. Financiering) is in de regel 4 tot 6 weken na het sluiten van de mondelinge wilsovereenkomst.
De waarborgsom/bankgarantie is 10% van de koopsom. De koper dient deze 3 dagen ná het vervallen van de ontbindende voorwaarden bij de desbetreffende notaris te deponeren.
Koper is te allen tijde gerechtigd voor eigen rekening een bouwkundige keuring te (laten) verrichten dan wel andere adviseurs te raadplegen teneinde een goed inzicht te verkrijgen over de staat van onderhoud.