Instapklare, uitgebouwde woning met garage in Oud-Geleen. Heeft u geen tijd of zin om te verbouwen? Deze woning in Oud-Geleen heeft een mooie uitbouw aan de achterzijde, drie royale slaapkamers, een grote badkamer en een separate toilet-/wasruimte op de eerste verdieping. De woonkamer is heel sfeervol, en de tuingerichte woonkeuken is de meest geliefde plek in huis. Via de achtertuin loopt u naar de garage, die nu als sportruimte in gebruik is.
Instapklare, uitgebouwde woning met garage in Oud-Geleen. Heeft u geen tijd of zin om te verbouwen? Deze woning in Oud-Geleen heeft een mooie uitbouw aan de achterzijde, drie royale slaapkamers, een grote badkamer en een separate toilet-/wasruimte op de eerste verdieping. De woonkamer is heel sfeervol, en de tuingerichte woonkeuken is de meest geliefde plek in huis. Via de achtertuin loopt u naar de garage, die nu als sportruimte in gebruik is.
Typering:
Deze goed verbouwde woning staat in het eerste deel van de Wenckebachstraat, om de hoek van de Pieterstraat. Alle dagelijkse voorzieningen zijn op loopafstand, de bus stopt om de hoek en station Geleen-Oost is maar een paar minuten lopen. Ook basis- en middelbaar onderwijs, sportvoorzieningen en het prachtige buitengebied met de Danikerberg zijn in de nabijheid. En werkt u in het Zuyderland ziekenhuis? U bent er zo met de fiets!
Souterrain:
Achter een van de paneeldeuren in de hal is een trap naar het souterrain. Hier heeft u de beschikking over een wijn-/provisiekelder van circa 3,93 x 1,94 meter, die onder de hal en toiletruimte gesitueerd is.
Begane grond:
De hal (circa 3,96 x 1,11) is een fraaie ruimte, mede dankzij de paneeldeuren en de houten vloer. In de hal is niet alleen de trap naar de eerste verdieping, maar ook een trap naar het souterrain. De toiletruimte, met een wandcloset en een fonteintje, is uitgevoerd in mooie kleuren en materialen. Het kunststof raam zorgt voor een toiletruimte met fijne lichtinval.
Vanuit de hal heeft u toegang tot de L-vormige woonkamer van circa 33 m2, met een ruim zitgedeelte aan de voorzijde en een fijne speelhoek op de plek waar vroeger de keuken was. Het plafond en de muren zijn gestuct, er ligt een houten vloer en door het grote raam aan de zuidkant valt veel licht naar binnen.
Over de hele breedte is de woning aan de achterzijde uitgebouwd, met een prachtige woonkeuken (circa 5,70 x 2,76) als resultaat. Een grote schuifpui bij het eetgedeelte geeft, net als de deur in de keuken, toegang tot de tuin. De keukenopstelling, met een kookeiland, is voorzien van een keramische kookplaat, afzuiging in het plafond, een oven en een vaatwasser.
Deze instapklare woning heeft niet alleen een mooi aangelegde voortuin, maar ook een leuke achtertuin met een groot terras en een gazon. Rechts in de tuin staat een stenen berging (circa 2,65 x 2,42) en achter de poort is de garage (circa 5,50 x 3,34). Deze wordt nu als sportruimte gebruikt, maar is ook geschikt om de auto, motor en/of fietsen binnen te zetten.
1e verdieping:
Niet alleen op de begane grond, maar ook op de overloop ligt een houten vloer die goed bij de paneeldeuren past. De indeling is gewijzigd, want een van de slaapkamers is verbouwd tot ruime badkamer en de doucheruimte is nu een toilet-/wasruimte.
Slaapkamer I (circa 3,71 x 3,05), ingericht als kinderkamer, is aan de voorzijde. Aan de achterzijde is slaapkamer II (circa 3,96 x 3,24), die nu de functie van master bedroom heeft. In beide kamers ligt laminaat en de wanden zijn, net als de plafonds, gestuct.
De ruime badkamer (circa 2,98 x 2,48) is ingedeeld met een ligbad, een ruime douche, vaste kast en een wastafel met meubel. Aan de andere kant van de overloop is de toilet-/wasruimte (circa 1,99 x 1,58 meter) met een spoelbak en een blad om de was op te vouwen.
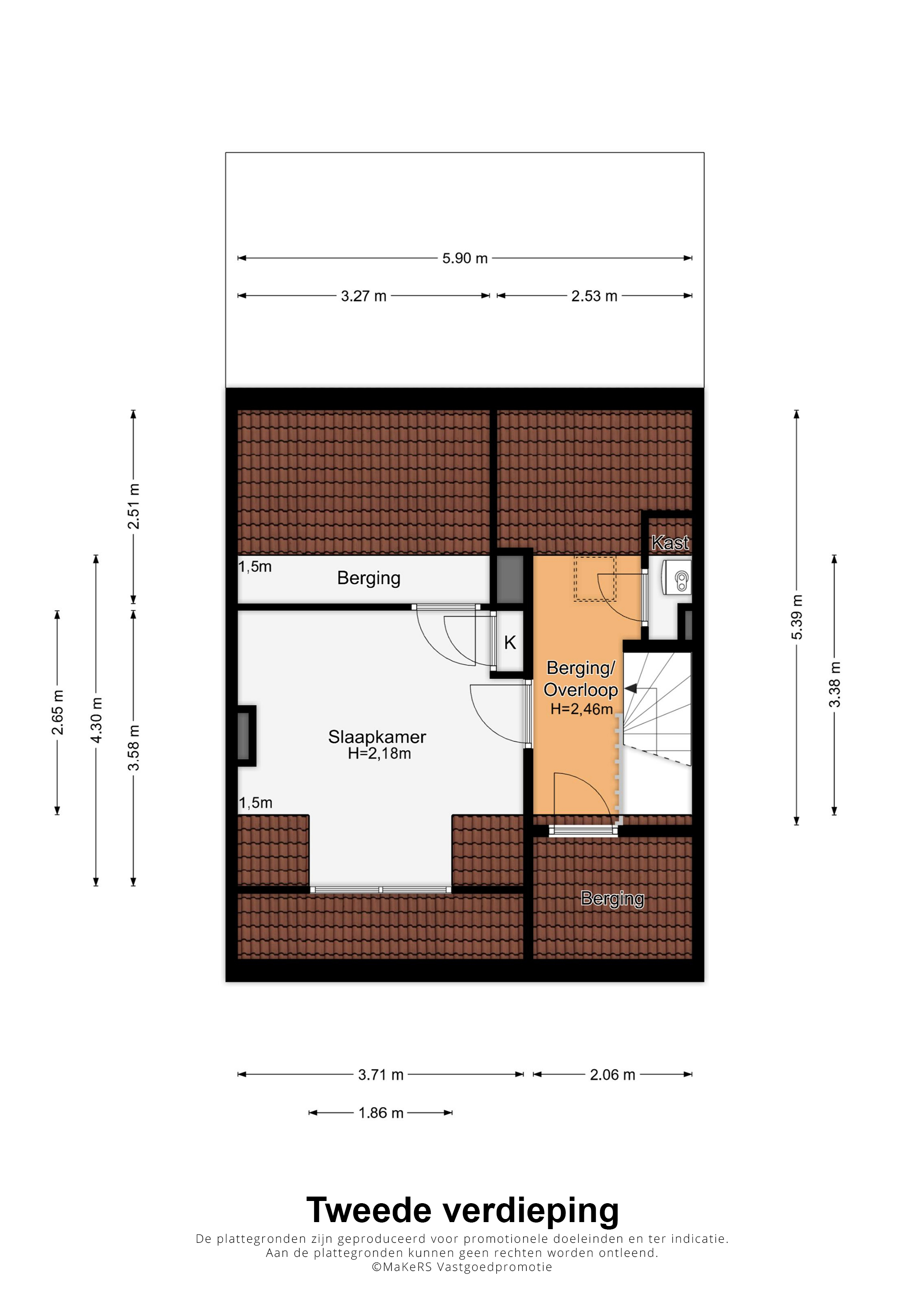
2e verdieping:
Een vaste trap geeft toegang tot een ruime overloop, met een dakraam en een berging in de schuinte van het dak. Ook hangt hier, uit het zicht, de HR-ketel (Atag, 2012, eigendom).
Slaapkamer III (circa 3,58 x 3,71) heeft een inbouwkast, vier blauw wandplanken en een diepe berging in het schuine dakvlak aan de achterzijde. Dankzij de dakkapel aan de voorzijde, met een kunststof kozijn en twee ramen, is deze kamer heel licht.
Algemeen:
Bouwjaar: 1956, gerenoveerd circa 2016
Perceeloppervlakte: 202 m2
Gebruiksoppervlakte wonen: circa 123 m2, inhoud circa 437 m3
Aanbouw aan de achterzijde en een dakkapel aan de voorzijde
Verwarming en warm water via een HR-ketel (Atag, 2012, eigendom)
Kunststof kozijnen met HR++ glas
Recent schilderwerk binnenzijde (begane grond, trap en eerste verdieping)
7 zonnepanelen, geplaatst in 2023
Garage aan de achterzijde
Energielabel: C
Aanvaarding: in onderling overleg
Ter bescherming van de belangen van zowel koper als verkoper, wordt uitdrukkelijk gesteld dat een koopovereenkomst met betrekking tot deze onroerende zaak eerst dan tot stand komt nadat koper en verkoper de koopovereenkomst hebben getekend (“schriftelijkheidsvereiste”).
Indien er in de woning huurtoestellen aanwezig zijn zoals CV-ketel, boiler, zonnepanelen, mechanische ventilatie etc. dan dienen deze door de koper te worden overgenomen.
De termijn die wordt opgenomen voor eventuele (overeengekomen) ontbindende voorwaarden (bv. financiering) is in de regel 4 tot 6 weken na het sluiten van de mondelinge wilsovereenkomst.
De waarborgsom/bankgarantie is 10% van de koopsom. De koper dient deze 3 dagen ná het vervallen van de ontbindende voorwaarden bij de desbetreffende notaris te deponeren.
Koper is te allen tijde gerechtigd voor eigen rekening een bouwkundige keuring te (laten) verrichten dan wel andere adviseurs te raadplegen teneinde een goed inzicht te verkrijgen over de staat van onderhoud.
Deze informatie is door ons, Tijs & Cyril Makelaardij met de nodige zorgvuldigheid samengesteld. Onzerzijds wordt echter geen enkele aansprakelijkheid aanvaard voor enige onvolledigheid, onjuist of anderszins, dan wel de gevolgen daarvan. Alle opgegeven maten en oppervlakten zijn indicatief. Van toepassing zijn de NVM voorwaarden.