Vrijstaand wonen in het mooie Geleen-Zuid in dit karakteristieke huis met een ruime garage en 3 (mogelijk 5) slaapkamers.
Vrijstaand wonen in het mooie Geleen-Zuid in dit karakteristieke huis met een ruime garage en 3 (mogelijk 5) slaapkamers.
Typering:
Dit vrijstaande huis staat in Geleen-Zuid, op de plek waar vroeger het gehucht Spaans Neerbeek gesitueerd was. Dit plaatsje is in de jaren 1960 nagenoeg geheel afgebroken om plaats te maken voor de nieuwbouwwijk Geleen-Zuid. Alleen de straat Spaans Neerbeek, gelegen op de plaats waar vroeger de Dorpstraat lag, herinnert nog aan vroegere tijden. De toevoeging 'Spaans' is ontstaan in de Tachtigjarige Oorlog toen een deel van het gehucht Neerbeek lange tijd in handen was van de Spaanse overheersers.
U woont niet alleen op fietsafstand van Geleen maar ook van Beek, bekend vanwege het drukbezochte winkelcentrum Makado.
Daarnaast kunt u te voet naar Winkelcentrum Zuidhof voor uw dagelijkse boodschappen. Basis- en middelbaar onderwijs, sportfaciliteiten, openbaar vervoer en prachtige natuur maken het wonen op deze plek heel aantrekkelijk. Het buitengebied richting Munstergeleen, Sweikhuizen en Puth nodigt uit tot een wandeling en in Stein is het Steinerbos een populaire plek. De snelwegen A2 en A76 zorgen voor goede verbindingen in alle windrichtingen (Eindhoven/Roermond, Maastricht, Parkstad en Genk/Hasselt).
Souterrain:
Achter een van de deuren in de hal is de trap naar de wijn-/provisiekelder (3,65 x 2,03) met een hoogte van 1,99 meter.
Begane grond:
De overdekte entree met metselwerk en originele voordeur heeft een fraaie uitstraling. In de hal met groot zijraam ziet u de met tapijt beklede trapopgang, de meterkast en deels schoonmetselwerk.
Rechts in de hal is een deur naar de woonkamer (4,01/3,62 x 7,15) met een kleurrijk glas in loodraam, openslaande deuren en mooi uitzicht naar de straat. Deze gezellige leefruimte, met open haard en grote schouw, kan geheel als zitkamer worden ingericht.
Vanuit de hal en woonkamer is de eetkamer (3,24 x 2,98) te bereiken, die grenst aan de keuken (2,90 x 2,86) met schuifpui naar het terras. De lichte hoekopstelling is voorzien van een gaskookplaat, afzuigkap, oven en een koelkast.
In het verlengde van de keuken is een portaal met de toiletruimte en een bijkeuken/berging (2,81 x 2,69). In deze ruimte, met zicht tot in de nok, is de opstelling van de HR-ketel (Remeha Avanta, eigendom).
Deze karakteristieke woning wordt aan drie zijden omringd door een goed onderhouden siertuin met gras en gevarieerde beplanting. Aan de rechterzijde is een diepe oprit voor meerdere auto’s, die leidt naar de achtertuin en de garage. Dankzij de diepte van de achtertuin, gesitueerd op het zuidoosten, heeft de hele dag de mogelijkheid om in de zon te zitten.
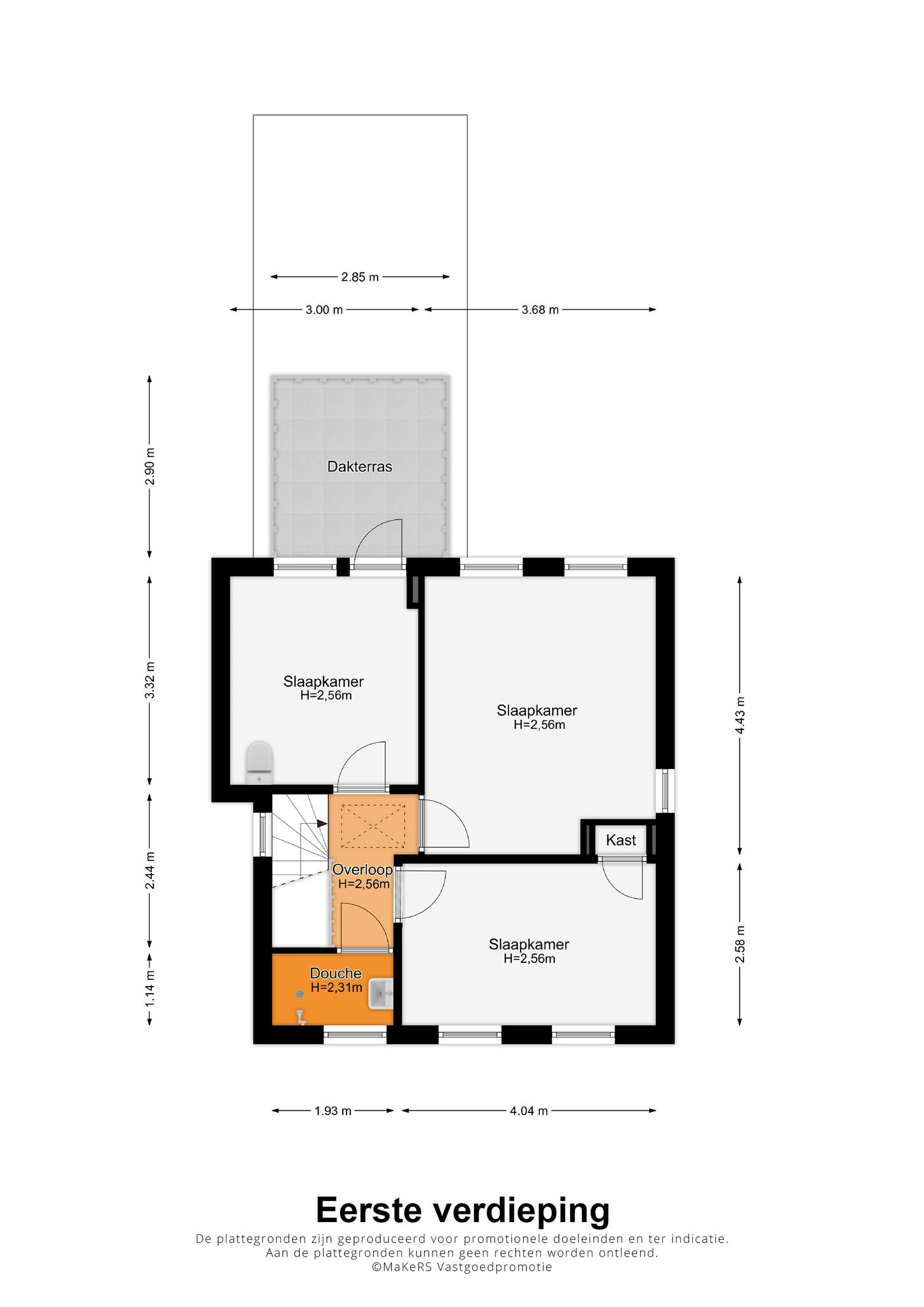
1e verdieping:
Het zijraam zorgt voor veel lichtinval op de overloop en bij de trapopgang. Aan de overloop grenzen drie slaapkamers en de doucheruimte. Slaapkamer I (4,04 x 2,58) met inbouwkast bevindt zich aan de voorzijde en slaapkamer II (3,22 x 2,85) met toilet grenst aan het dakterras. Slaapkamer III (4,43 x 3,68) is een ruime hoofdslaapkamer met lichtinval aan twee zijden.
De doucheruimte (1,93 x 1,14) met wastafel, originele wandtegels en groot raam biedt, net als de rest van het huis, ruimte om naar eigen smaak te vernieuwen.
Zolder:
Een luik met trap geeft toegang tot de zolder met een vloeroppervlakte van circa 6,00 x 7,20 en een nokhoogte van 2,30 meter. Na plaatsing van een vaste trap, een dakraam, isolatie en afwerking is het mogelijk om hier een of twee extra kamers te realiseren.
Garage:
Op het perceel, aan het einde van de oprit, staat een stenen garage van 8,34 x 3,43 met een kantelpoort, aparte loopdeur en elektra. Dit is een goede ruimte voor de auto, motor, fietsen en de hobbyist. Tevens geschikt voor een praktijkruimte aan huis.
Algemeen:
Bouwjaar: 1959
Perceeloppervlakte: 385 m2
Gebruiksoppervlakte wonen: circa 112 m2, inhoud circa 512 m3
Verwarming en warm water (deels) via een HR-ketel (Remeha Avanta, eigendom)
Geiser (Volta) is gehuurd en kan niet overgenomen worden.
Houten en kunststof kozijnen, deels met dubbel glas
Ruime garage met oprit
Mogelijkheid voor een vaste trap naar de tweede verdieping
Energielabel: G
Asbest: Ja
Aanvaarding: In overleg