Goed onderhouden appartement met zonnig balkon in het centrum van Geleen. Het keurig onderhouden tweekamerappartement heeft een mooie ligging op de derde verdieping, aan de kant van de Beekhoverstraat. Dankzij de lift hoeft u geen trappen te lopen en het appartement heeft een eigen berging in de onderbouw. Ook is er een ruime, gezamenlijke fietsenstalling.
Goed onderhouden appartement met zonnig balkon in het centrum van Geleen. Het keurig onderhouden tweekamerappartement heeft een mooie ligging op de derde verdieping, aan de kant van de Beekhoverstraat. Dankzij de lift hoeft u geen trappen te lopen en het appartement heeft een eigen berging in de onderbouw. Ook is er een ruime, gezamenlijke fietsenstalling.
Typering:
U woont op een levendige plek in het centrum van Geleen. Aan de Rijksweg Noord vind je diverse winkels en als u het zebrapad oversteekt, is het maar een paar meter naar de Markt en omliggende winkelstraten. Er is een goede busverbinding met het treinstation in Sittard en station Geleen-Lutterade bevindt zich op 5 minuten fietsen. Dit geldt ook voor het Zuyderland ziekenhuis en de bioscoop. Via de uitvalswegen zijn de A2 (Eindhoven-Maastricht) en de A76 (Stein-Heerlen) goed bereikbaar.
Begane grond:
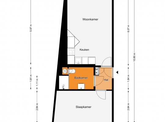
Aan de kant van de Beekhoverstraat is de gezamenlijke entree met de video-intercom en het bellentableau. Via de hal en de lift gaat u vervolgens naar de derde verdieping, waar dit instapklare appartement gesitueerd is. Bij het appartement hoort een eigen berging en er is een gezamenlijke fietsenstalling in het gebouw.
Appartement:
Vanaf de lift is het maar een paar stappen naar de voordeur van dit leuke appartement. De hal (ca. 1,84 x 1,36) staat via mooie binnendeuren in verbinding met de woonkamer, slaapkamer en badkamer. De donkere tegelvloer ligt in bijna het hele appartement en via het glas in de slaapkamerdeur valt veel licht naar binnen.
De woonkamer met open keuken (ca. 22 m2) heeft een pui met drie grote ramen en een deur aan de zuidwestkant. Het overdekte balkon (ca. 3,58 x 1,25) is een fijne plek om buiten te zitten en de woonkamer is goed in te delen met een zithoek, tv-meubel en een eettafel. Ook kun je het hoge blad in de keuken gebruiken om te eten. De moderne opstelling heeft veel bergruimte en de gaskookplaat, afzuigkap, oven, vaatwasser en koelkast met vriesvak zijn ingebouwd.
Aan de rustige achterzijde is de ruime slaapkamer (ca. 12,3 m2) met uitzicht richting de Paterskerk. Drie muren zijn afgewerkt met patroonbehang, die goed past bij de tegelvloer. In de moderne badkamer (ca. 2,84 x 1,81) zie je een douche met lage instap, een wandcloset, wastafelmeubel, spiegel, hoge kast en de wasmachineaansluiting. Boven het toilet, achter de witte deur, hangt de boiler.
Algemeen:
Bouwjaar: 1976
Gebruiksoppervlakte wonen: circa 43 m2, inhoud circa 148 m3
Woonkamer en keuken: 22 m2VvE bijdrage € 202,24 per maand
Houten kozijnen (woonkamer), voorzien van enkel glas
Kunststof kozijnen (slaapkamer), voorzien van isolatieglas
Verwarming via blokverwarming, warm water via een eigen boiler
Mooie ligging op de derde verdieping
Balkon op het zuidwesten
Gelijkvloers wonen dankzij de lift in het gebouw
Energielabel: F
Ter bescherming van de belangen van zowel koper als verkoper, wordt uitdrukkelijk gesteld dat een koopovereenkomst met betrekking tot deze onroerende zaak eerst dan tot stand komt nadat koper en verkoper de koopovereenkomst hebben getekend (“schriftelijkheidsvereiste”).
Indien er in de woning huurtoestellen aanwezig zijn zoals CV-ketel, boiler, zonnepanelen, mechanische ventilatie etc. dan dienen deze door de koper te worden overgenomen.
De termijn die wordt opgenomen voor eventuele (overeengekomen) ontbindende voorwaarden (bv. Financiering) is in de regel 4 tot 6 weken na het sluiten van de mondelinge wilsovereenkomst.
De waarborgsom/bankgarantie is 10% van de koopsom. De koper dient deze 3 dagen ná het vervallen van de ontbindende voorwaarden bij de desbetreffende notaris te deponeren.
Koper is te allen tijde gerechtigd voor eigen rekening een bouwkundige keuring te (laten) verrichten dan wel andere adviseurs te raadplegen teneinde een goed inzicht te verkrijgen over de staat van onderhoud.
Deze informatie is door ons, Tijs & Cyril Makelaardij met de nodige zorgvuldigheid samengesteld. Onzerzijds wordt echter geen enkele aansprakelijkheid aanvaard voor enige onvolledigheid, onjuist of anderszins, dan wel de gevolgen daarvan. Alle opgegeven maten en oppervlakten zijn indicatief. Van toepassing zijn de NVM voorwaarden.