Fraai verbouwde, royale woonboerderij in het hart van Oud-Geleen. Dit is uw kans om de nieuwe eigenaar te worden van deze fraaie woonboerderij in Oud-Geleen, aan het begin van de Pieterstraat. Met een supermarkt, restaurants, cafés en speciaalzaken in de buurt is dit het perfecte huis voor de Bourgondiër. Achter de imposante voorgevel gaat een droomhuis verborgen, boordevol karakter en met een meer dan 20 meter lange tuin. Er zijn maar liefst 4 slaapkamers, 2 kantoorruimtes en de woonkamer staat in verbinding met de woonkeuken, het hart van dit droomhuis.
Fraai verbouwde, royale woonboerderij in het hart van Oud-Geleen. Dit is uw kans om de nieuwe eigenaar te worden van deze fraaie woonboerderij in Oud-Geleen, aan het begin van de Pieterstraat. Met een supermarkt, restaurants, cafés en speciaalzaken in de buurt is dit het perfecte huis voor de Bourgondiër. Achter de imposante voorgevel gaat een droomhuis verborgen, boordevol karakter en met een meer dan 20 meter lange tuin. Er zijn maar liefst 4 slaapkamers, 2 kantoorruimtes en de woonkamer staat in verbinding met de woonkeuken, het hart van dit droomhuis.
Typering:
Als u zegt dat u op circa 80 meter van het Wilhelminaplein woont, bekend van het levensgrote bronzen beeld "De Sjöt", dan weet de kenner van Geleen dat u op een zeer geliefde plek in Oud-Geleen woont. Alle dagelijkse voorzieningen zijn op loopafstand, de bus stopt aan de Oranjelaan en station Geleen-Oost is slechts 550 meter lopen. Ook basis- en middelbaar onderwijs, sportvoorzieningen en het prachtige buitengebied met de Danikerberg zijn in de nabijheid. En werkt u in het Zuyderland ziekenhuis? Met de fiets is het slechts 1,7 kilometer!
Souterrain:
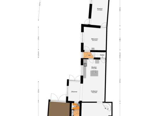
In de hoek van de keuken is een trap naar het souterrain, waar een fraaie gewelfde wijn-/provisiekelder van circa 12,1 m2. Het metselwerk en de trap zijn, met behoud van karakter, gerestaureerd.
Begane grond:
In de fraaie hal, naast de meterkast, is de garderobenis en recht voor u is de toiletruimte, waar oude en nieuwe elementen zijn gecombineerd. De gestucte muren in de hal zijn in een gedurfde, smaakvolle kleur geschilderd en de tegelvloer met patroon geeft de hal een fraaie uitstraling.
Rechts van de hal is de woonkamer (circa 4,92 x 5,22) met een open haard, een houten vloer met karakter en een prachtige trap naar de eerste verdieping. Deze fraaie ruimte kunt u geheel als zitkamer inrichten, met mooi uitzicht naar de Pieterstraat. Naast de trap is een doorgang naar de woonkeuken, inclusief het lichte zitgedeelte aan de tuinzijde. Er is genoeg plek voor een grote eettafel en de keukenopstelling met kookeiland heeft een stijlvol granito aanrechtblad.
Een tweede hal verbindt de keuken met de tuin en de bijkeuken. Dit is een verrassende ruimte met veel lichtinval, een grote wastafel en een wit-zwart geblokte vloer. Vanuit hier heeft u toegang tot een kantoorruimte (circa 5,42 x 2,39), met een aangename hoogte en een directe toegang tot de tuin.
De meer dan 22 meter lange tuin is een oase van groen, boordevol sfeer en met veel privacy. Gemetselde tuinmuren en houten schuttingen vormen samen een mooie erfafscheiding, en er is een poort naar de openbare weg, die tevens toegang biedt tot de garage. Het terras is een heerlijke plek om te borrelen en eten, samen en met vrienden of familie. In het achterste deel van de tuin, bij de vijver, zijn een tweede terras en een berging (circa 4,38 x 2,39) met vliering. Een onderdoorgang, met dubbele deuren aan de tuin- en straatzijde, is een praktische ruimte voor de fietsen en andere spullen.
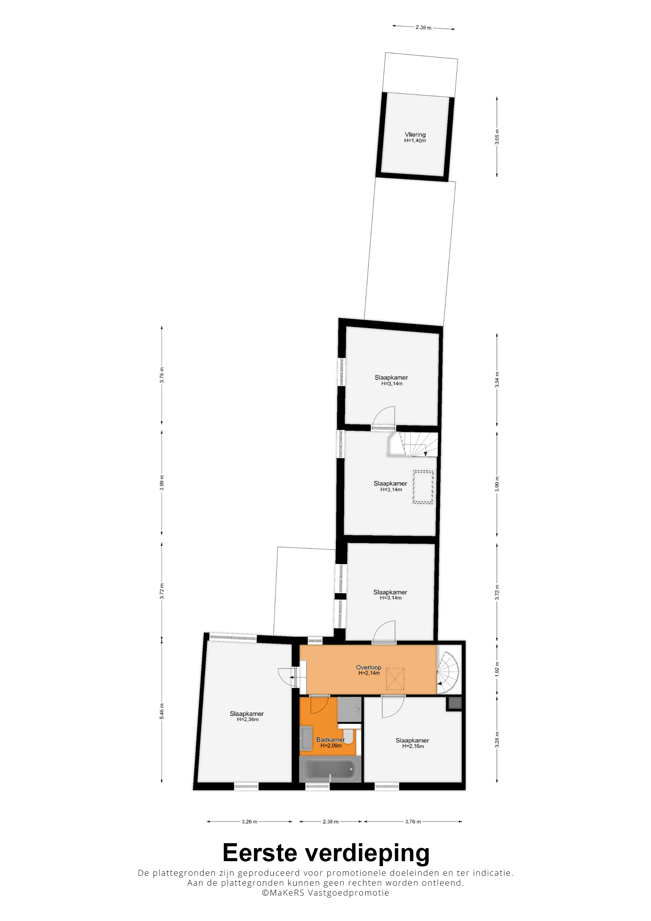
1e verdieping:
In de tweede hal, in de aanbouw, is een trap naar een werkkamer, met een hoge nok en lichtinval aan twee zijden. Deze multifunctionele kamer, eventueel te gebruiken als extra slaapkamer, geeft toegang tot slaapkamer I met uitzicht naar de tuin.
Gaat u via de trap in de woonkamer naar boven, dan bereikt u een ruime overloop. Hier zijn maar liefst drie slaapkamers en de badkamer, smaakvol verbouwd en verrassend ruim. Slaapkamer II (circa 3,76 x 3,28) is aan de voorzijde, en slaapkamer III (circa 5,46 x 3,26) is boven de poort met doorgang naar de tuin. Aan de andere zijde van de overloop is slaapkamer IV, met twee ramen aan de tuinzijde.
Aan de voorzijde, boven de entree, is de badkamer (circa 3,28 x 2,38) met tegelvloer in een herkenbare, klassieke stijl. Bij het raam staat het ligbad en de rest van de badkamer is ingedeeld met een douche, toilet en een houten wastafelmeubel met een marmeren blad.
Zolder:
Boven het voorste deel van de boerderijwoning is een ruime zolder, met een maximale hoogte van circa 2,56 meter. Op deze verdieping is de opstelling van de HR-ketel (Intergas, 2022, eigendom).
Algemeen:
Bouwjaar: 1930
Perceeloppervlakte: 270 m2
Gebruiksoppervlakte wonen: circa 196 m2, inhoud circa 924 m3
Vier slaapkamers en een ruime badkamer op de eerste verdieping, met mogelijkheid tot vijfde slaapkamer
Kantoor-/hobbyruimte op de begane grond en eerste verdieping
Grote zolder, met de mogelijkheid om een extra (slaap)kamer te realiseren
Fraai aangelegde tuin met een onderdoorgang naar de openbare weg
Energielabel: E
Aanvaarding: in onderling overleg
Ter bescherming van de belangen van zowel koper als verkoper, wordt uitdrukkelijk gesteld dat een koopovereenkomst met betrekking tot deze onroerende zaak eerst dan tot stand komt nadat koper en verkoper de koopovereenkomst hebben getekend (“schriftelijkheidsvereiste”).
Indien er in de woning huurtoestellen aanwezig zijn zoals CV-ketel, boiler, zonnepanelen, mechanische ventilatie etc. dan dienen deze door de koper te worden overgenomen.
De termijn die wordt opgenomen voor eventuele (overeengekomen) ontbindende voorwaarden (bv. financiering) is in de regel 4 tot 6 weken na het sluiten van de mondelinge wilsovereenkomst.
De waarborgsom/bankgarantie is 10% van de koopsom. De koper dient deze 3 dagen ná het vervallen van de ontbindende voorwaarden bij de desbetreffende notaris te deponeren.
Koper is te allen tijde gerechtigd voor eigen rekening een bouwkundige keuring te (laten) verrichten dan wel andere adviseurs te raadplegen teneinde een goed inzicht te verkrijgen over de staat van onderhoud.
Deze informatie is door ons, Tijs & Cyril Makelaardij met de nodige zorgvuldigheid samengesteld. Onzerzijds wordt echter geen enkele aansprakelijkheid aanvaard voor enige onvolledigheid, onjuist of anderszins, dan wel de gevolgen daarvan. Alle opgegeven maten en oppervlakten zijn indicatief. Van toepassing zijn de NVM voorwaarden.