Vraagprijs € 335.000,- k.k.
Fraai verbouwde en uitgebouwde woning met garage in De Kluis in Geleen.
Fraai verbouwde en uitgebouwde woning met garage in De Kluis in Geleen.
In een rustige eenrichtingsstraat, de Patrijsstraat, staat ‘het huis met de palmbomen’. Deze 2-onder-1 kapwoning heeft een grote uitbouw, met een royale woonkamer en keuken als resultaat. Boven zijn 3 slaapkamers en de luxe badkamer, uitgevoerd in trendy kleuren. De voor- en achtertuin zijn heel kindvriendelijk, en het overdekte terras in de achtertuin is de perfecte plek voor een hapje en een drankje. De garage is een pluspunt, net als de oprit voor meerdere auto’s. De ligging aan de achterzijde is fraai, want de achterburen ziet u niet vanwege de hoge bomen in de tuinen.
Typering:
De Kluis is een fantastische plek om te wonen, voor jong en oud. Er is een basisschool op loopafstand en verder treft u in de wijk ontmoetingscentrum ’t Plenkhoes, een sportschool, supermarkt, sportcomplex Graaf Huyn en het Graaf Huyn College. Er is een uitstekende verbinding met de snelwegen A2/A76, het Zuyderland ziekenhuis en Beek met het bekende Makado winkelcentrum.
Souterrain:
Vanuit de hal heeft u, via een vaste trap, toegang tot een wijn-/provisiekelder van circa 3,98 x 2,19 meter. Hier bevindt zich de opstelling van de HR-ketel (Vaillant, 2023, eigendom).
Begane grond:
De hal (circa 3,99 x 2,28) wordt gekenmerkt door sfeer en stijl, mede dankzij de donkere tegelvloer. Door het raam naast de meterkast valt veel licht naar binnen, en er is genoeg ruimte voor een garderobe.
Met het verplaatsen van de keuken naar de aanbouw, is de woonkamer een stuk groter geworden. De oppervlakte is circa 37 m2, fraai ingedeeld met een zit- en een eetgedeelte. Op de vloer ligt laminaat van brede delen, die de woonkamer optisch een stuk breder maakt. De L-vormige keuken (circa 18 m2) heeft dezelfde vloer als de woonkamer, en een portaal die toegang geeft tot de toiletruimte. Voor kook- en bakliefhebbers staat er een lichte hoekopstelling in de keuken, met een ingebouwde gaskookplaat, afzuigkap en een koelkast.
Vanuit de keuken is de geheel betegelde achtertuin te bereiken, gesitueerd op het noordoosten. Blikvanger is het overdekte terras van circa 4,89 x 3,28), die door de bewoners veel wordt gebruikt als plek om lekker buiten te zitten. Naast het terras staat een stenen garage van circa 5,93 x 3,78 meter, met een sectionaalpoort naar de lange oprit. Voor en achter de sierlijke poort is parkeergelegenheid, en de voortuin met palmbomen vergt weinig onderhoud.
1e verdieping:
Niet alleen de begane grond, maar ook de eerste verdieping heeft veel sfeer en lichtinval. Op bijna de hele verdieping ligt laminaat en de kunststof kozijnen zijn voorzien van draai-/kiepramen. Op de overloop, boven het raam, hangt een airco-unit (koelen en verwarmen).
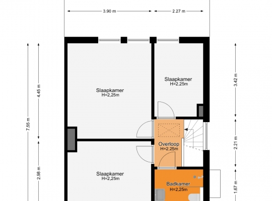
Vanaf de overloop zijn drie slaapkamers en de badkamer te bereiken. Aan de voorzijde is slaapkamer I (circa 3,89 x 2,98), ingericht als logeerkamer. Slaapkamer II (circa 4,45 x 3,90), de master bedroom, bevindt zich aan de achterzijde. Dit geldt ook voor slaapkamer III (circa 3,42 x 2,27), die nu de functie van kleedruimte vervult.
De moderne badkamer (circa 2,26 x 1,67) is een fraaie ruimte, met veel lichtinval en een ruimtelijke indeling. Uw oog valt op de inloopdouche met stijlvolle wand, het tweede toilet en het wastafelmeubel met spiegel. Een deel van de muren is gestuct, en het andere deel fraai betegeld.
Algemeen:
Bouwjaar: 1955
Perceeloppervlakte: 265 m2
Gebruiksoppervlakte wonen: circa 119 m2, inhoud circa 482 m3
Verwarming en warm water via een HR-ketel (Vaillant, 2023, eigendom)
Airco (koelen/verwarmen) op de eerste verdieping
Kunststof kozijnen met isolatieglas
Aanbouw aan de achterzijde (woonkamer plus keuken circa 55 m2!)
Drie slaapkamers en een moderne badkamer op de eerste verdieping
Stenen garage met een lange oprit voor meerdere auto’s
Energielabel: D
Aanvaarding: in onderling overleg
Ter bescherming van de belangen van zowel koper als verkoper, wordt uitdrukkelijk gesteld dat een koopovereenkomst met betrekking tot deze onroerende zaak eerst dan tot stand komt nadat koper en verkoper de koopovereenkomst hebben getekend (“schriftelijkheidsvereiste”).
Indien er in de woning huurtoestellen aanwezig zijn zoals CV-ketel, boiler, zonnepanelen, mechanische ventilatie etc. dan dienen deze door de koper te worden overgenomen.
De termijn die wordt opgenomen voor eventuele (overeengekomen) ontbindende voorwaarden (bv. financiering) is in de regel 4 tot 6 weken na het sluiten van de mondelinge wilsovereenkomst.
De waarborgsom/bankgarantie is 10% van de koopsom. De koper dient deze 3 dagen ná het vervallen van de ontbindende voorwaarden bij de desbetreffende notaris te deponeren.
Koper is te allen tijde gerechtigd voor eigen rekening een bouwkundige keuring te (laten) verrichten dan wel andere adviseurs te raadplegen teneinde een goed inzicht te verkrijgen over de staat van onderhoud.
Deze informatie is door ons, Tijs & Cyril Makelaardij met de nodige zorgvuldigheid samengesteld. Onzerzijds wordt echter geen enkele aansprakelijkheid aanvaard voor enige onvolledigheid, onjuist of anderszins, dan wel de gevolgen daarvan. Alle opgegeven maten en oppervlakten zijn indicatief. Van toepassing zijn de NVM voorwaarden.