Om de hoek van een natuurgebied staat deze deels gerenoveerde woning met een aanbouw, grote garage en een vaste trap naar de tweede verdieping.
Om de hoek van een natuurgebied staat deze deels gerenoveerde woning met een aanbouw, grote garage en een vaste trap naar de tweede verdieping.
Typering:
De woning staat aan het einde van de Lindenlaan, om de hoek van Het Hof van Limburg. Dit is een multifunctioneel landschapspark, in eigendom van Vereniging Natuurmonumenten. Op loop-/fietsafstand bevindt zich het centrum van Lindenheuvel met een supermarkt, winkels en horecagelegenheden. De voetbalvelden van R.K.F.C. Lindenheuvel zijn op loopafstand en met de fiets zijn het treinstation, ziekenhuis, de bioscoop en basis-/middelbaar onderwijs goed bereikbaar. De N294 zorgt voor een goede verbinding met Sittard en de A2 (Eindhoven-Maastricht).
INDELING:
Souterrain:
Achter een van de deuren in de hal is een trap naar de wijn-/provisiekelder (3,99 x 2,00/1,79) met een hoogte van 1,97 meter.
Begane grond:
De entree met donkergroene voordeur en rond raam is fraai. In de hal ziet u de meterkast, trapopgang en een bruine tegelvloer. Aan de rechterzijde is de toiletruimte met een raampje in de voorgevel.
Vanuit de hal zijn de woonkamer en keuken te bereiken. De woonkamer (6,41 x 3,53) staat via dubbele deuren in verbinding met de eetkamer, waardoor er een leefruimte van ca. 39,4 m2 is ontstaan. Zo kunt de woonkamer met trendy vloer en pelletkachel inrichten als zitkamer en de eetkamer met twee lichtkoepels en gietvloer heeft een fantastische uitstraling.
In de halfopen keuken (3,24 x 2,08) staat een in 2023 geplaatste keukenopstelling met een groot eiland, veel bergruimte en diverse inbouwapparatuur. Aan het eiland, aan de woonkamerzijde, is ruimte met krukken neer te zetten waardoor de keuken en woonkamer een geheel zijn.
De achtertuin met ruime garage/berging (7,33 x 5,84) is gesitueerd op het westen. In de tuin ziet u een groot terras, diverse beplanting en er is plek voor een dierenverblijf. Voor de fietsen, motor en als hobbyruimte is de garage met elektra een fantastische plek. Via een pad kunt u, ook met een auto, de Bosweg bereiken.
Eerste verdieping:
Op de eerste verdieping zijn de overloop, drie slaapkamers en de badkamer. Slaapkamer I (3,56 x 2,47) met inbouwkast en balkon bevindt zich aan de achterzijde. Aan de voorzijde zijn slaapkamer II (3,55 x 3,31) met inbouwkast en slaapkamer III (2,15 x 2,14) die nu als kleedruimte in gebruik is. De originele paneeldeuren zijn gecombineerd met stucwerk, trendy behang, een gietvloer en houten vensterbanken.
De badkamer (2,12 x 2,10) met groot raam is ingedeeld met een kwartronde douche en een wastafelmeubel. Qua grootte is de badkamer geschikt om een ligbad te realiseren. De naastgelegen inbouwkast kan worden verbouwd tot toiletruimte.
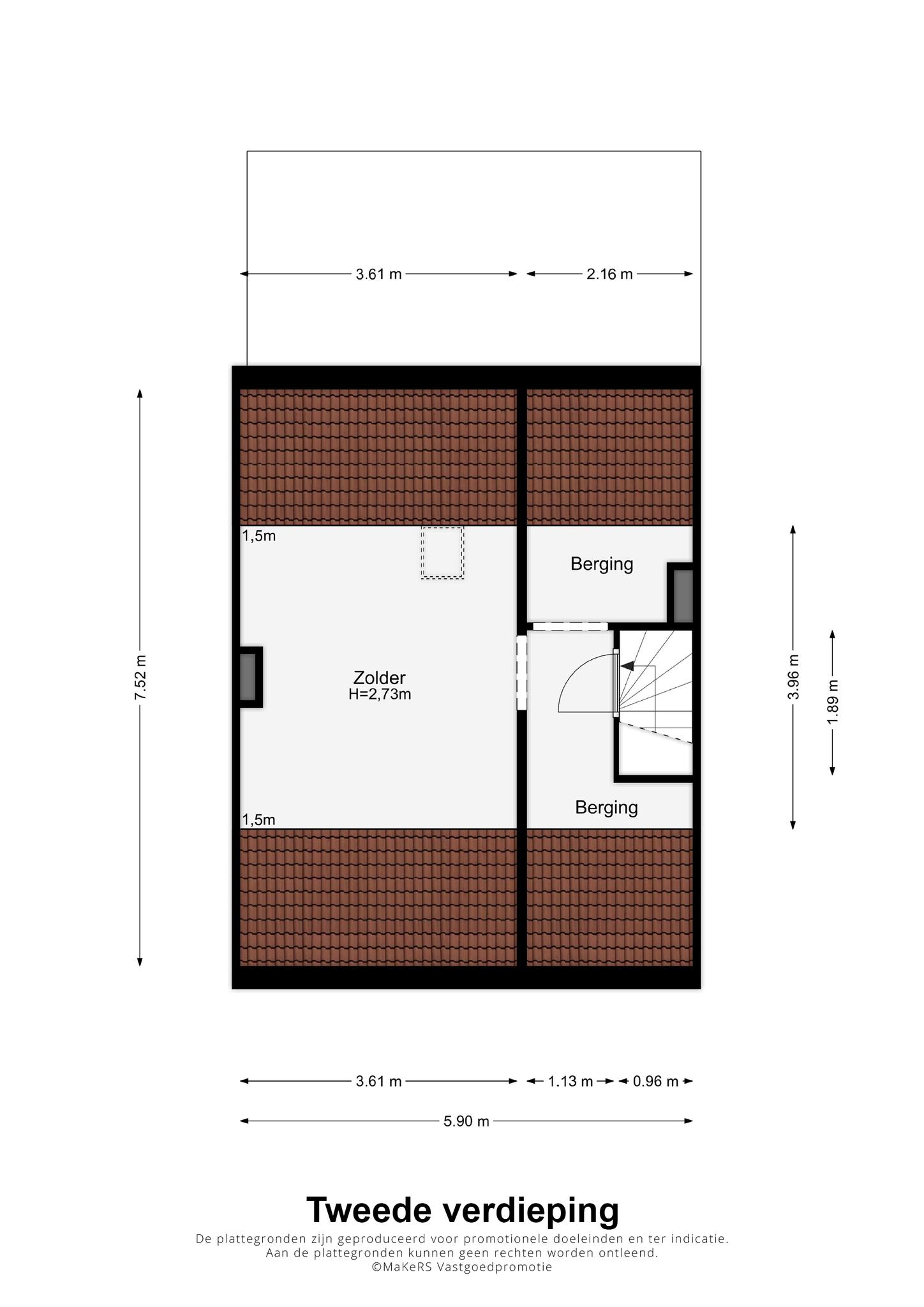
Tweede verdieping:
Een vaste trap geeft toegang tot de tweede verdieping, verdeeld in drie ruimtes. De eerste ruimte is de overloop, van waaruit een berging en de zolderkamer (3,96 x 3,61) te bereiken zijn. De hoge nok maakt het mogelijk om deze kamer te verbouwen tot ruime slaapkamer.
Algemeen:
Bouwjaar: 1947, deels gerenoveerd in 2022-2023
Gebruiksoppervlakte wonen: circa 98 m2, inhoud circa 449 m3
Verwarming via een pelletkachel (Duroflame, 2022)
Warm water via een 120 liter elektrische boiler (Itho Daalderop, 2022)
Houten kozijnen met HR++ beglazing
Vaste trap naar de tweede verdieping (mogelijkheid tot 4de slaapkamer)
Asbest: Ja
Energielabel: G
Ter bescherming van de belangen van zowel koper als verkoper, wordt uitdrukkelijk gesteld dat een koopovereenkomst met betrekking tot deze onroerende zaak eerst dan tot stand komt nadat koper en verkoper de koopovereenkomst hebben getekend (“schriftelijkheidsvereiste”).
Indien er in de woning huurtoestellen aanwezig zijn zoals CV-ketel, boiler, zonnepanelen, mechanische ventilatie etc. dan dienen deze door de koper te worden overgenomen.
De termijn die wordt opgenomen voor eventuele (overeengekomen) ontbindende voorwaarden (bv. Financiering) is in de regel 4 tot 6 weken na het sluiten van de mondelinge wilsovereenkomst.
De waarborgsom/bankgarantie is 10% van de koopsom. De koper dient deze 3 dagen ná het vervallen van de ontbindende voorwaarden bij de desbetreffende notaris te deponeren.
Koper is te allen tijde gerechtigd voor eigen rekening een bouwkundige keuring te (laten) verrichten dan wel andere adviseurs te raadplegen teneinde een goed inzicht te verkrijgen over de staat van onderhoud.
Deze informatie is door ons, Tijs & Cyril Makelaardij met de nodige zorgvuldigheid samengesteld. Onzerzijds wordt echter geen enkele aansprakelijkheid aanvaard voor enige onvolledigheid, onjuist of anderszins, dan wel de gevolgen daarvan. Alle opgegeven maten en oppervlakten zijn indicatief. Van toepassing zijn de NVM voorwaarden.