Goed onderhouden, vrijstaande semibungalow in Oud-Geleen/Haesselderveld met een inpandige garage, 18 zonnepanelen en een mooi aangelegde tuin. Deze degelijk gebouwde jaren 70 woning heeft een moderne badkamer, keuken, toiletruimte en een pvc-vloer op de begane grond. De achtertuin met grote vijver en terras is gesitueerd op het westen.
Goed onderhouden, vrijstaande semibungalow in Oud-Geleen/Haesselderveld met een inpandige garage, 18 zonnepanelen en een mooi aangelegde tuin. Deze degelijk gebouwde jaren 70 woning heeft een moderne badkamer, keuken, toiletruimte en een pvc-vloer op de begane grond. De achtertuin met grote vijver en terras is gesitueerd op het westen.
Typering:
U woont op een prachtige plek in Geleen in de nabijheid van natuurgebied Geleenbeekdal, het Zuyderland ziekenhuis en het centrum van Geleen. Basis- en middelbaar onderwijs, speciaal onderwijs, twee treinstations (Geleen Oost en Lutterade) en diverse sportverenigingen bevinden zich op fietsafstand. De snelwegen A2 en A76 zijn, net als diverse provinciale wegen en de Ring Parkstad, goed bereikbaar.
Indeling:
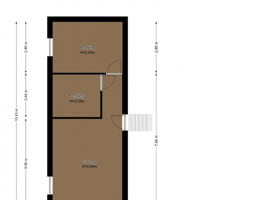
Souterrain:
Onder het linkerdeel van de woning bevindt zich het souterrain met een inpandige garage (ca. 5,00 x 3,88) en twee bergingen. Berging I is ca. 2,69 x 2,44 en berging II is ca. 3,90 x 2,85 meter groot, die ook als hobbyruimte te gebruiken zijn.
Begane grond:
Aan de rechterzijde, bij de oprit, is de entree van deze vrijstaande woning. De pui met hardhouten kozijn, deur en veel glas geeft toegang tot de ruime hal (ca. 3,05 x 2,71) met de meterkast, meterkast, een inbouwkast en een trap (5 treden) naar de woonkamer. De lichte pvc-vloer ligt op bijna de hele begane grond.
De woonkamer (ca. 46m2) heeft een lengte van bijna 10.50 meter, lichtinval aan drie zijden en een fraaie vloer-, wand- en plafondafwerking. Het zitgedeelte is aan de achterzijde en het eetgedeelte aan de voorzijde, bij de grote schouw met open haard. Het wisselen van het zit- en het eetgedeelte is, gezien de ruimte, mogelijk.
Aan de achterzijde is de dichte, sfeervolle keuken (ca. 3,86 x 2,96) die in verbinding staat met de serre (ca. 4,49 x 3,03). Zo heeft deze woning een woon-/eetkamer, keuken en serre met een gezamenlijke oppervlakte van circa 70 m2. In de keuken staan een moderne hoekopstelling met een granieten blad en een aparte halfhoge kastenwand. Alle benodigde apparatuur is ingebouwd: een 5-pits gaskookplaat, afzuigkap, vaatwasser, koelkast en een combi-oven/magnetron.
Een schuifpui verbindt de serre met de fraai aangelegde achtertuin op het westen. Hier ziet u een grote vijver, natuursteen bestrating, grind, hagen en beplanting die voor veel privacy zorgen.
Op de begane grond zijn slaapkamer I en de moderne badkamer. De slaapkamer (ca. 3,45 x 3,04) met inbouwkast is goed in te delen met een tweepersoonsbed. In de naastgelegen badkamer (ca. 3,45 x 1,99) is de ruimte ingedeeld met een whirlpoolbad, inloopdouche, designradiator en een tweepersoons wastafelmeubel. Achter de twee deuren van ondoorzichtig glas is de opstelling van de wasmachine en droger.
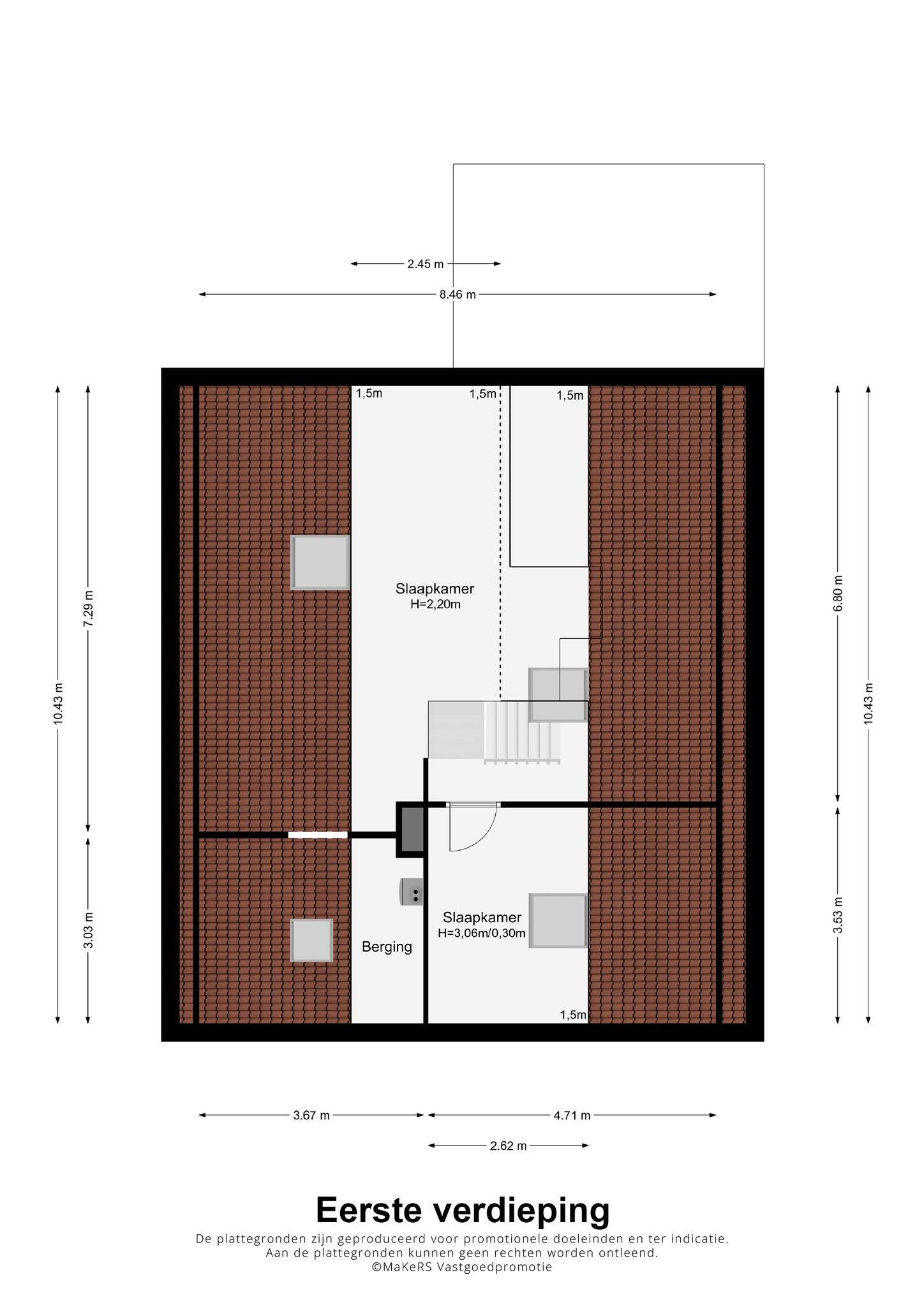
Eerste verdieping:
Achter een van de deuren in de hal is een trap naar de eerste verdieping, verdeeld over twee niveaus. Aan de voorzijde zijn slaapkamer II (ca. 3,53 x 2,40 /gemeten vanaf 1,50 meter hoogte) en een berging met de opstelling van de HR-ketel (Nefit Ecomline).
Het grootste, tevens grootste deel van de eerste verdieping is een zeer grote ruimte met een nokhoogte van ca. 2,20 meter. Als slaapkamer voor de kinderen, als logeerkamer voor de kleinkinderen, als hobbyruimte en berging is dit een zeer geschikte ruimte.
Algemeen:
Bouwjaar: 1978
Gebruiksoppervlakte wonen: circa 149 m2, inhoud circa 690 m3
Verwarming en warm water via een HR-ketel (Nefit Ecomline)
Houten kozijnen met isolatieglas en rolluiken
18 zonnepanelen (huurovereenkomst nog 5 jaar – 96,- euro per maand)
Slaap- en badkamer op de begane grond
Multifunctionele bovenverdieping, te bereiken via een vaste trap
Oprit voor meerdere auto’s en een inpandige garage
Twee bergingen in het souterrain
Moderne keuken, badkamer en toiletruimte
Energielabel: B
Aanvaarding: in overleg
Ter bescherming van de belangen van zowel koper als verkoper, wordt uitdrukkelijk gesteld dat een koopovereenkomst met betrekking tot deze onroerende zaak eerst dan tot stand komt nadat koper en verkoper de koopovereenkomst hebben getekend (“schriftelijkheidsvereiste”).
Indien er in de woning huurtoestellen aanwezig zijn zoals CV-ketel, boiler, zonnepanelen, mechanische ventilatie etc. dan dienen deze door de koper te worden overgenomen.
De termijn die wordt opgenomen voor eventuele (overeengekomen) ontbindende voorwaarden (bv. Financiering) is in de regel 4 tot 6 weken na het sluiten van de mondelinge wilsovereenkomst.
De waarborgsom/bankgarantie is 10% van de koopsom. De koper dient deze 3 dagen ná het vervallen van de ontbindende voorwaarden bij de desbetreffende notaris te deponeren.
Koper is te allen tijde gerechtigd voor eigen rekening een bouwkundige keuring te (laten) verrichten dan wel andere adviseurs te raadplegen teneinde een goed inzicht te verkrijgen over de staat van onderhoud.