Ruime en geheel gemoderniseerde hoekwoning in de populaire wijk Kluis met een grote aanbouw en parkeergelegenheid op eigen terrein.
Ruime en geheel gemoderniseerde hoekwoning in de populaire wijk Kluis met een grote aanbouw en parkeergelegenheid op eigen terrein.
Typering:
De wijk Kluis is een populaire plek om te wonen. De basisschool is op loopafstand, net als een supermarkt en andere winkels. Worden de kinderen groter, dan is het nog geen 5 minuten fietsen naar het Graaf Huyncollege. In het Danikerbos kunt u fantastisch wandelen langs de Geleenbeek en richting Daniken, Puth en Sweikhuizen. Op minder dan 2 kilometer bevindt zich de oprit van de A76 en de A2 richting Maastricht-Eindhoven is nog geen 4,5 kilometer rijden.
INDELING:
Souterrain:
Achter een van de deuren in de hal bevindt zich een trap naar de wijn-/provisiekelder (4,18 x 2,36) met een hoogte van ca. 1,96 meter. In deze ruimte is de opstelling van de wasmachine en droger.
Begane grond:
Open de kunststof voordeur naar de hal die, net als de rest van de woning, is verbouwd. Aan de linkerzijde zijn de meterkast en de toiletruimte, ingedeeld met een wandcloset en een fonteintje. In de hal ligt, net als in de eetkamer en keuken, een mooie tegelvloer van groot formaat.
De woonkamer (7,27 x 3,50) staat in verbinding met de eetkamer (3,96 x 3,36) en een werk-/studeerplek (3,26 x 2,32). Het resultaat is een leefruimte van circa 46 m2 met een mooie wand-, plafond- en vloerafwerking. Door de grote ramen valt veel licht naar binnen en een grote schuifpui verbindt de eetkamer met de tuin.
Niet alleen de eetkamer, maar ook de keuken (3,96 x 2,50) bevindt zich in de aanbouw. Er staat een moderne, ruime hoekopstelling (2016) met een keramische kookplaat, afzuigkap, vaatwasser, koelkast en een combimagnetron.
Vanuit de eetkamer en keuken is de achtertuin op het oosten te bereiken. Dankzij de hoekligging en indeling kunt u hier de hele dag in de zon zitten. De zijtuin met houten poort staat in verbinding met de oprit, waar u op eigen terrein meerdere auto’s kan parkeren.
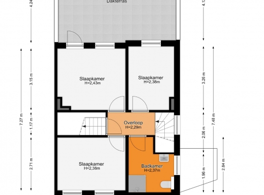
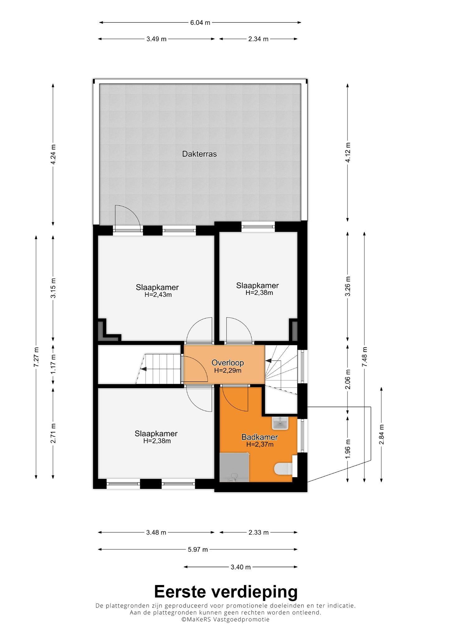
Eerste verdieping:
Aan de overloop grenzen drie slaapkamers en de badkamer. Ook op deze verdieping ziet u een mooie vloer-, wand- en plafondafwerking. De kunststof kozijnen en draai-/kiepramen zijn voorzien van isolatieglas.
Slaapkamer I (3,48 x 2,71) bevindt zich aan de voorzijde en slaapkamer II (3,49 x 3,15) heeft een deur naar het dakterras. Ook slaapkamer III (3,26 x 2,34), te gebruiken als kleed- of kinderkamer, bevindt zich aan de achterzijde. Of zoekt u een ruime werkkamer op deze etage?
De badkamer (2,71/1,96 x 2,33) met raam in de zijgevel is ingedeeld met een douche, wandcloset en een wastafelmeubel. Lichte wandtegels in de douche zijn gecombineerd met stucwerk en keramische vloertegels met een houtmotief.
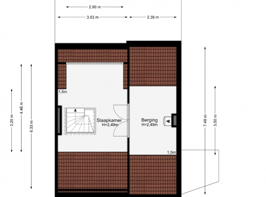
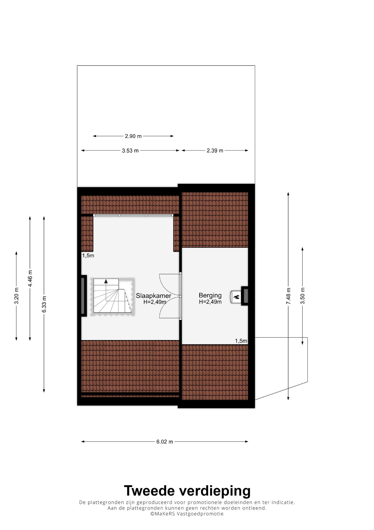
Tweede verdieping:
Een vaste trap geeft toegang tot een lichte zolderkamer (4,46 x 3,53) met een grote dakkapel. Aansluitend is een berging (3,50 x 2,39) met de opstelling van de HR-ketel (Remeha, huur).
Algemeen:
Bouwjaar: 1959, gerenoveerd in 2016
Gebruiksoppervlakte wonen: circa 137 m2, inhoud circa 502 m3
Verwarming via een HR-ketel (Remeha, huur)
Kunststof kozijnen met dubbel glas (voordeur van hout)
Vaste trap naar de tweede verdieping
Ruime parkeergelegenheid op eigen terrein
Zeer ruime woonkamer met open keuken (totaal ca. 56 m2)
Energielabel: D