Vraagprijs € 320.000,- k.k.
Nieuw, duurzaam en gelijkvloers appartement met energielabel A+++.
Nieuw, duurzaam en gelijkvloers appartement met energielabel A+++.
Op een voor velen bekende plek in Geleen heeft een winkelpand een nieuw leven gekregen, als kleinschalig appartementengebouw met een lift. Hier krijgt u de kans om gelijkvloers, duurzaam en comfortabel te wonen nabij alle benodigde voorzieningen. Dit appartement bevindt zich op de eerste verdieping, te bereiken met een lift, en heeft een fijn balkon op het zuidoosten. De duurzame voordelen van dit appartement? Een warmtepomp, eigen zonnepanelen en energielabel A+++. Met 2 ruime slaapkamers, een moderne badkamer, een aparte toiletruimte en een riante woonkamer met open keuken ontbreekt het u aan niets.
OPEN HUIS:
Dinsdag 27 januari van 16.00 tot 17.00 uur
Dinsdag 3 februari van 16.00 tot 17.00 uur
Tijdens deze Open Huizen is er tevens de mogelijkheid om Einighauserweg 15 C te bezoeken!
Komt u een kijkje nemen? Laat het ons weten, mail uw gegevens naar sittard@tijsencyril.nl en dan ontvangt u van ons de aanvullende informatie.
Typering:
Welke invulling het winkelpand heeft gehad? Inwoners van Geleen kennen het als de plek van een winkel in woninginrichting, een tweedehandswinkel, een sportschool. Nu is het pand getransformeerd in een mooie plek om gelijkvloers te wonen. Er is veel groen in de directe omgeving, iets verder in de straat stopt de bus en er is een supermarkt in de nabijheid. Op fietsafstand zijn het treinstation, het centrum van Geleen, het Zuyderland ziekenhuis en Sittard. En gaat u toch met de auto op pad? Er zijn diverse uitvalswegen in de directe omgeving, onder andere naar de A2 en A76.
Begane grond:
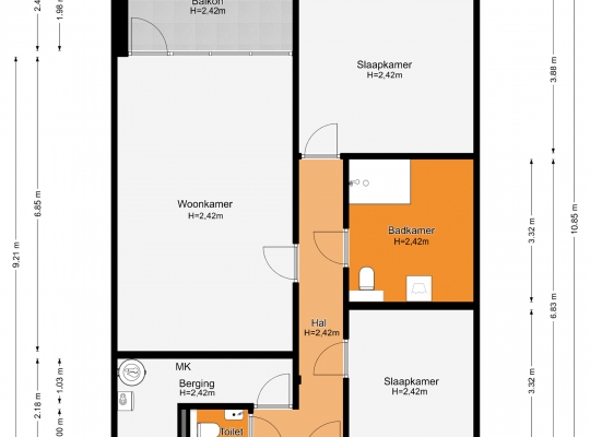
Staat de auto geparkeerd, dan is het maar een paar stappen naar de entree van het stijlvolle appartementengebouw. Aan de buitenzijde zijn de brievenbussen, het bellentableau en de video-intercom. De gezamenlijke ontvangsthal is, net als de buitenzijde van het gebouw, zeer fraai uitgevoerd. Dit appartement bevindt zich op de eerste verdieping, te bereiken met de lift en trap. Voor de fiets en andere spullen is er een privéberging van circa 2,31 x 1,93 meter.
Appartement:
Achter de voordeur is de lange hal, uitgevoerd in lichte kleuren. Onder de betonvloer ligt vloerverwarming en aan de linkerzijde is de toiletruimte, uitgevoerd met een wandcloset en een fonteintje. De naastgelegen berging (circa 5,5 m2) biedt ruimte aan de warmtepomp, boiler en de wasmachine aansluiting.
Iets verder in de hal, aan de linkerzijde, loopt u de woonkamer met open keuken (circa 6,85 x 4,08) in. Door de grote ramen, deels van vloer tot plafond, valt veel licht naar binnen en er is een deur naar het balkon. Alle aansluitingen om een keuken te plaatsen zijn aanwezig, van koud/warm water tot afvoer en elektra.
Naast de woonkamer is slaapkamer I (circa 4,06 x 3,88). Perfect als master bedroom, met genoeg plek voor een tweepersoonsbed en een grote garderobekast. Aan de andere zijde van het appartement is slaapkamer II (circa 3,32 x 2,90), onder andere geschikt als kinderkamer of werkkamer. Tussen de slaapkamers is de splinternieuwe badkamer (circa 3,31 x 3,00) met een grote inloopdouche, een elektrische wandradiator, de aansluitingen voor een wastafel en een wandcloset. Erg fijn is het raam, waardoor veel licht naar binnen valt.
Het balkon (circa 9 m2) grenst aan de woonkamer, wat een pluspunt is als u met bezoek buiten gaat zitten. Dit kan ook als het regent, maar de temperatuur goed is. Het levendige uitzicht naar de rotonde en het groen is fraai en gezellig. Wordt dit de plek waar u straks gaat borrelen en eten?
Algemeen:
Bouwjaar: 1962, herontwikkeling in 2025
Gebruiksoppervlakte wonen: circa 84 m2, inhoud circa 250 m3
Twee slaapkamers
Balkon op het zuidoosten
Geheel voorzien van vloerverwarming
Duurzaam wonen dankzij de warmtepomp en eigen zonnepanelen
Kunststof kozijnen met HR+++ glas
Parkeergelegenheid op terrein van de VvE
VvE bijdrage: circa € 151.74 per maand
Energielabel: A+++
Aanvaarding: in overleg
De NVM-vragenlijst Deel B en de Lijst van Zaken zijn niet van toepassing, aangezien de woning wordt verkocht met een niet-zelfbewoningsclausule. Verkoper heeft de woning zelf niet bewoond en kan derhalve koper niet informeren over eigenschappen en/of gebreken waarvan hij niet op de hoogte is.
Ter bescherming van de belangen van zowel koper als verkoper, wordt uitdrukkelijk gesteld dat een koopovereenkomst met betrekking tot deze onroerende zaak eerst dan tot stand komt nadat koper en verkoper de koopovereenkomst hebben getekend (“schriftelijkheidsvereiste”).
Indien er in de woning huurtoestellen aanwezig zijn zoals CV-ketel, boiler, zonnepanelen, mechanische ventilatie etc. dan dienen deze door de koper te worden overgenomen.
De termijn die wordt opgenomen voor eventuele (overeengekomen) ontbindende voorwaarden (bv. Financiering) is in de regel 4 tot 6 weken na het sluiten van de mondelinge wilsovereenkomst.
De waarborgsom/bankgarantie is 10% van de koopsom. De koper dient deze 3 dagen ná het vervallen van de ontbindende voorwaarden bij de desbetreffende notaris te deponeren.
Koper is te allen tijde gerechtigd voor eigen rekening een bouwkundige keuring te (laten) verrichten dan wel andere adviseurs te raadplegen teneinde een goed inzicht te verkrijgen over de staat van onderhoud.
Deze informatie is door ons, Tijs & Cyril Makelaardij met de nodige zorgvuldigheid samengesteld. Onzerzijds wordt echter geen enkele aansprakelijkheid aanvaard voor enige onvolledigheid, onjuist of anderszins, dan wel de gevolgen daarvan. Alle opgegeven maten en oppervlakten zijn indicatief. Van toepassing zijn de NVM voorwaarden.