Goed onderhouden woning met 3 slaapkamers, een ruime badkamer en een sauna. In Geleen-Zuid, aan de rustige Churchillstraat, staat deze lichte woning met een verrassende indeling. Zo zijn er 3 slaapkamers, een ruime badkamer en een sauna op de 1e verdieping. De begane grond is ingedeeld met een royale woonkamer en een uitgebouwde keuken, die beiden toegang geven tot de diepe tuin met 2 overdekte terrassen. De oost-westligging en de grote ramen zorgen voor veel lichtinval in dit fijne huis.
Goed onderhouden woning met 3 slaapkamers, een ruime badkamer en een sauna. In Geleen-Zuid, aan de rustige Churchillstraat, staat deze lichte woning met een verrassende indeling. Zo zijn er 3 slaapkamers, een ruime badkamer en een sauna op de 1e verdieping. De begane grond is ingedeeld met een royale woonkamer en een uitgebouwde keuken, die beiden toegang geven tot de diepe tuin met 2 overdekte terrassen. De oost-westligging en de grote ramen zorgen voor veel lichtinval in dit fijne huis.
Typering:
Geleen-Zuid is een fantastische plek om te wonen, voor jong en oud. Op circa 600 meter lopen/fietsen is een basisschool en 300 meter verder is winkelcentrum Zuidhof. Verder treft u in de wijk ontmoetingscentrum ’t Plenkhoes, sportcomplex Graaf Huyn en het Graaf Huyn College. Er is een uitstekende verbinding met de snelwegen A2/A76, het Zuyderland ziekenhuis en Beek met het bekende Makado winkelcentrum. Aan de oostkant van de wijk loopt u, via de Biesenweg, richting het Stammenderbos en de Danikerberg.
Souterrain:
Vanuit de keuken heeft u toegang tot het souterrain. Hier bevindt zich een wijn-/provisiekelder van circa 4,50 x 2,18 meter.
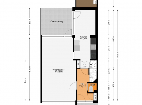
Begane grond:
De hal (circa 3,52 x 2,16) biedt ruimte aan de meterkast, de trapopgang en de in lichte kleuren uitgevoerde toiletruimte. Op bijna de hele begane grond ligt laminaat op de vloer en het geheel maakt een verzorgde indruk.
Vanuit de hal en keuken heeft u toegang tot de woonkamer (circa 6,95 x 3,78/3,45). Kiest u voor de indeling met het zitgedeelte aan de voorzijde en het eetgedeelte aan de achterzijde? Of voor een andere indeling, met de ochtendzon bij de eettafel en de avondzon bij het zitgedeelte?
In de verrassend ruime keuken (circa 5,30 x 2,41) staat, aan twee kanten, een lichte opstelling die volop bergruimte biedt. Alle benodigde apparatuur is ingebouwd: een inductie kookplaat, afzuigkap, vaatwasser, koelkast en een combimagnetron. Het achterste deel van de keuken is voor diverse doeleinden geschikt: voor een ontbijttafel, als thuiswerkplek, hobbyruimte of speelplek van de kinderen.
Vanuit de woonkamer en keuken heeft u toegang tot een overdekt terras (circa 3,48 x 3,00) en de tuin, gesitueerd op het westen. Aan de rechterzijde staat een stenen (fietsen)berging (circa 3,48 x 2,25) met de opstelling van de HR-ketel (Vaillant, eigendom). Om lekker buiten te zitten kunt u kiezen tussen twee overdekte terrassen en er is veel groen in de tuin.
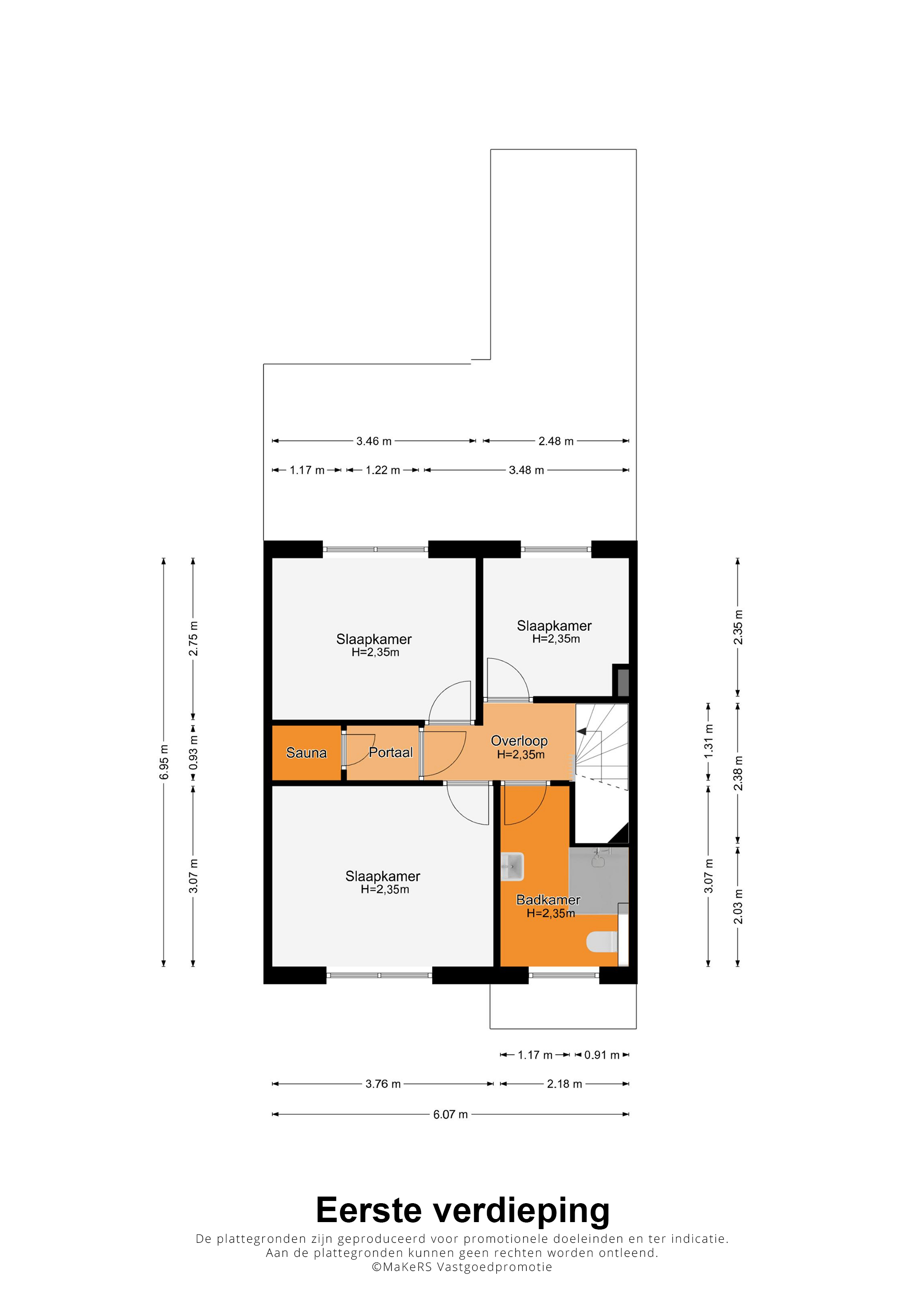
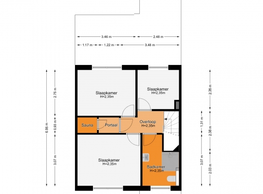
1e verdieping:
Vanaf de overloop heeft u toegang tot drie slaapkamers, de badkamer en een portaal met sauna. Op bijna de hele verdieping ligt laminaat en op de overloop hangt een airco-unit, die kan koelen en verwarmen.
Aan de voorzijde is slaapkamer I (circa 3,76 x 3,07) die, gezien de grootte, de functie van master bedroom zal krijgen. Slaapkamer II (circa 3,46 x 2,75) en slaapkamer III (circa 2,48 x 2,35) zijn aan de achterzijde.
Naast de master bedroom is de L-vormige badkamer (circa 5,5 m2) met een douche, tweede toilet en een wastafel met meubel. Verrassend is dat deze woning een sauna heeft, gemaakt op de plek waar vroeger de doucheruimte was.
Algemeen:
Bouwjaar: 1968
Perceeloppervlakte: 196 m2
Gebruiksoppervlakte wonen: circa 92 m2, inhoud circa 365 m3
Verwarming en warm water via een HR-ketel (Vaillant, eigendom)
Kunststof kozijnen met isolerende beglazing
10 zonnepanelen
Drie slaapkamers
Ruime badkamer en een sauna op de eerste verdieping
Uitgebouwde keuken met ruimte voor een thuiswerkplek/speelplek
Energielabel: D
Aanvaarding: in onderling overleg
Ter bescherming van de belangen van zowel koper als verkoper, wordt uitdrukkelijk gesteld dat een koopovereenkomst met betrekking tot deze onroerende zaak eerst dan tot stand komt nadat koper en verkoper de koopovereenkomst hebben getekend (“schriftelijkheidsvereiste”).
Indien er in de woning huurtoestellen aanwezig zijn zoals CV-ketel, boiler, zonnepanelen, mechanische ventilatie etc. dan dienen deze door de koper te worden overgenomen.
De termijn die wordt opgenomen voor eventuele (overeengekomen) ontbindende voorwaarden (bv. financiering) is in de regel 4 tot 6 weken na het sluiten van de mondelinge wilsovereenkomst.
De waarborgsom/bankgarantie is 10% van de koopsom. De koper dient deze 3 dagen ná het vervallen van de ontbindende voorwaarden bij de desbetreffende notaris te deponeren.
Koper is te allen tijde gerechtigd voor eigen rekening een bouwkundige keuring te (laten) verrichten dan wel andere adviseurs te raadplegen teneinde een goed inzicht te verkrijgen over de staat van onderhoud.
Deze informatie is door ons, Tijs & Cyril Makelaardij met de nodige zorgvuldigheid samengesteld. Onzerzijds wordt echter geen enkele aansprakelijkheid aanvaard voor enige onvolledigheid, onjuist of anderszins, dan wel de gevolgen daarvan. Alle opgegeven maten en oppervlakten zijn indicatief. Van toepassing zijn de NVM voorwaarden.