In Geleen-Zuid, vlak bij het Daniker bos, staat deze ruime woning met 4 slaapkamers, een inpandige garage, een vernieuwde badkamer met inloopdouche, 2 balkons en een onderhoudsvriendelijke tuin.
In Geleen-Zuid, vlak bij het Daniker bos, staat deze ruime woning met 4 slaapkamers, een inpandige garage, een vernieuwde badkamer met inloopdouche, 2 balkons en een onderhoudsvriendelijke tuin.
Typering:
Deze ruime woning staat aan een parallelweg van de Barbarastraat, recht tegenover een woonzorgcentrum dat wordt omringd door een mooie tuin. Hierdoor heeft u vanuit de keuken en de slaapkamers aan de voorzijde mooi uitzicht. Vlak om de hoek is een basisschool en u woont op korte afstand van een sportschool, een groot plantsoen met speeltuin en winkelcentrum Zuidhof. De snelwegen A2 en A76 zijn goed bereikbaar, net als de uitvalswegen richting Beek, Sittard en Spaubeek.
INDELING:
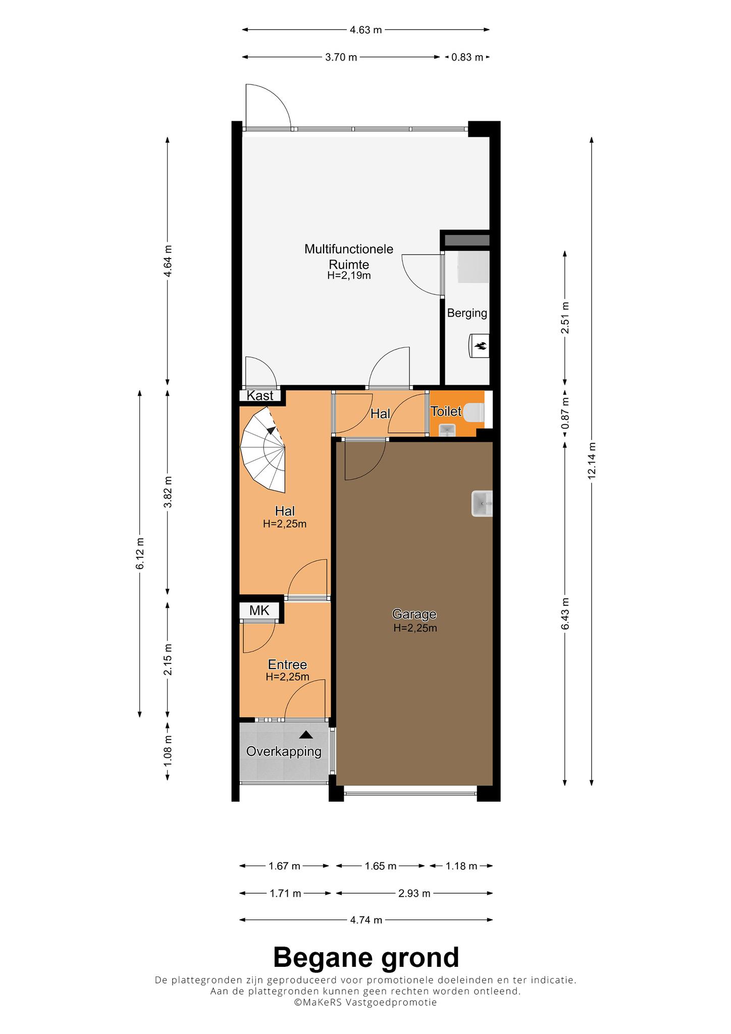
Begane grond:
Loop via de oprit naar de overdekte entree, die van buitenaf met een rolluik afgesloten kan worden. In het eerste deel van de hal (2,15 x 1,67m) is de meterkast en in het tweede deel van de hal (3,82 x 1,67m) ziet u de trap naar de eerste verdieping.
De inpandig te bereiken garage (6,43 x 2,93m) is te gebruiken als berging, voor een auto en uiteraard voor de fiets. Naast de garage is de ruime, moderne toiletruimte met een wandcloset, fonteintje en betegeling in een groot formaat.
Aan de achterzijde is een multifunctionele ruimte (4,64 x 4,63m) met een grote inbouwkast, waarin de HR-ketel (Nefit Smartline) hangt en de wasapparatuur kan staan. De rest van deze ruimte is te gebruiken als hobbyruimte, werkkamer, praktijkruimte, sportruimte of tv-kamer. Op de vloer liggen plavuizen en door de grote ramen valt veel licht naar binnen.
De achtertuin is geheel bestraat, waardoor u als nieuwe eigenaar geen groene vingers nodig hebt. Via de poort bereikt u een pleintje met garages, die in verbinding staat met de Lienaertsstraat.
Eerste verdieping:
Op de eerste verdieping zijn de woonkamer en keuken. De woonkamer (6,21 x 4,59m) grenst aan het balkon aan de voorzijde en de keuken (4,72 x 2,49m) aan het grote balkon aan de achterzijde. In de woonkamer met laminaatvloer is genoeg ruimte voor een grote zithoek, een wandmeubel en een eettafel. De keuken met keramische tegelvloer biedt ruimte aan een lichte hoekopstelling met een granieten blad, granieten achterwand en diverse inbouwapparatuur: een inductie kookplaat, afzuigkap, combimagnetron en een koelkast.
Het balkon aan de achterzijde (4,90 x 2,05m) biedt genoeg ruimte om met meerdere mensen buiten te zitten. Met het plaatsen van een buitentrap kan het balkon worden verbonden met de tuin. Vanaf het balkon aan de voorzijde (4,30 x 1,05m) kijkt u uit over de brede straat en het vele groen. Dit balkon, gesitueerd op het zuiden, is voorzien van een vaste kast en buitenzonwering.
Tweede verdieping:
De tweede verdieping is de slaapetage met drie slaapkamers, de badkamer, overloop en een berging. Slaapkamer I (4,65 x 2,14m) en slaapkamer II (3,67 x 2,55m) zijn gesitueerd aan de voorzijde van dit ruime huis. In slaapkamer III (4,78 x 2,83m) ziet u een grote inbouwkast met schuif-/spiegeldeuren.
In 2013 is de badkamer (2,31 x 2,14m) vernieuwd in dezelfde stijl als de toiletruimte. De badkamer is ingedeeld met een grote inloopdouche, een tweede toilet, designradiator, wastafelmeubel, een grote spiegel en een onmisbare hoge kast.
Algemeen:
Bouwjaar: 1968
Perceeloppervlakte: 101 m2
Gebruiksoppervlakte wonen: circa 123 m2, inhoud circa 461 m3
Verwarming en warm water via een HR-ketel (Nefit Smartline)
Aluminium kozijnen, voorzien van isolatieglas
Vier slaapkamers, waarvan een op de begane grond (mogelijk kantoor-/praktijk aan huis)
Inpandige garage
Moderne badkamer en toiletruimte
Energielabel: C
Aanvaarding: In overleg