Vraagprijs € 449.000,- k.k.
Ruime hoekwoning met energielabel A+++ en een grote tuin. In de kindvriendelijke en populaire wijk Nieuw-Poelveld, net buiten Maastricht, staat deze hoekwoning met een oprit voor 2 auto’s en een royale tuin aan drie zijden. Een warmtepomp en 24 zonnepanelen zorgen voor een (t)huis dat klaar is voor een duurzame toekomst. Er zijn 3 slaapkamers op de 1e verdieping en op de 2e verdieping is genoeg ruimte voor een extra (slaap)kamer. De keuken is voorzien van inbouwapparatuur, waardoor u al snel kunt beginnen met inrichten.
Ruime hoekwoning met energielabel A+++ en een grote tuin. In de kindvriendelijke en populaire wijk Nieuw-Poelveld, net buiten Maastricht, staat deze hoekwoning met een oprit voor 2 auto’s en een royale tuin aan drie zijden. Een warmtepomp en 24 zonnepanelen zorgen voor een (t)huis dat klaar is voor een duurzame toekomst. Er zijn 3 slaapkamers op de 1e verdieping en op de 2e verdieping is genoeg ruimte voor een extra (slaap)kamer. De keuken is voorzien van inbouwapparatuur, waardoor u al snel kunt beginnen met inrichten.
Typering:
Nieuw-Poelveld een fantastische plek om te wonen, voor jong en oud. Er zijn twee basisscholen en verder woont u in de nabijheid van het treinstation en de gezellige dorpskern, met het Breusterhof op fietsafstand. Hier vindt u supermarkten, verswinkels en horecagelegenheden. Eijsden heeft een uitstekend voorzieningenniveau met sportfaciliteiten, goede bus-/treinverbindingen en omringende natuur waar u kunt wandelen en fietsen. Het centrum van Maastricht bevindt zich op slechts 10 kilometer afstand.
Begane grond:
Nooit meer zoeken naar een parkeerplek, want er kunnen twee auto’s op eigen terrein geparkeerd worden. Vervolgens loopt u naar de voordeur en daarna de hal in. Hier zijn de meterkast, de trapopgang en de toiletruimte met fonteintje.
De tuingerichte woonkamer staat in open verbinding met de keuken, die aan de voorzijde gesitueerd is. Met een totale oppervlakte van circa 36 m2, exclusief trapkast, is er genoeg plek voor een mooie inrichting. Dankzij vloerverwarming zijn er geen radiatoren en door de grote ramen (in oost- en westrichting) valt veel licht naar binnen.
Aan de voorzijde is de open keuken, waar een lichte hoekopstelling staat. Het aanrechtblad en de achterwand zijn van natuursteen en de inductie kookplaat, afzuigkap, koelkast, vriezer en vaatwasser (2024) zijn ingebouwd.
Deze duurzame woning heeft een voor-, zij- en een achtertuin die heel onderhoudsvriendelijk zijn aangelegd. Bij de brede zijtuin zijn houten schuttingen en een poort geplaatst, waardoor u zo met een fiets, scooter of motor naar de houten berging (circa 2,95 x 2,01) kunt. De achtertuin is gesitueerd op het oosten, maar het formaat van de tuin biedt de hele dag de mogelijkheid om in de zon te zitten.
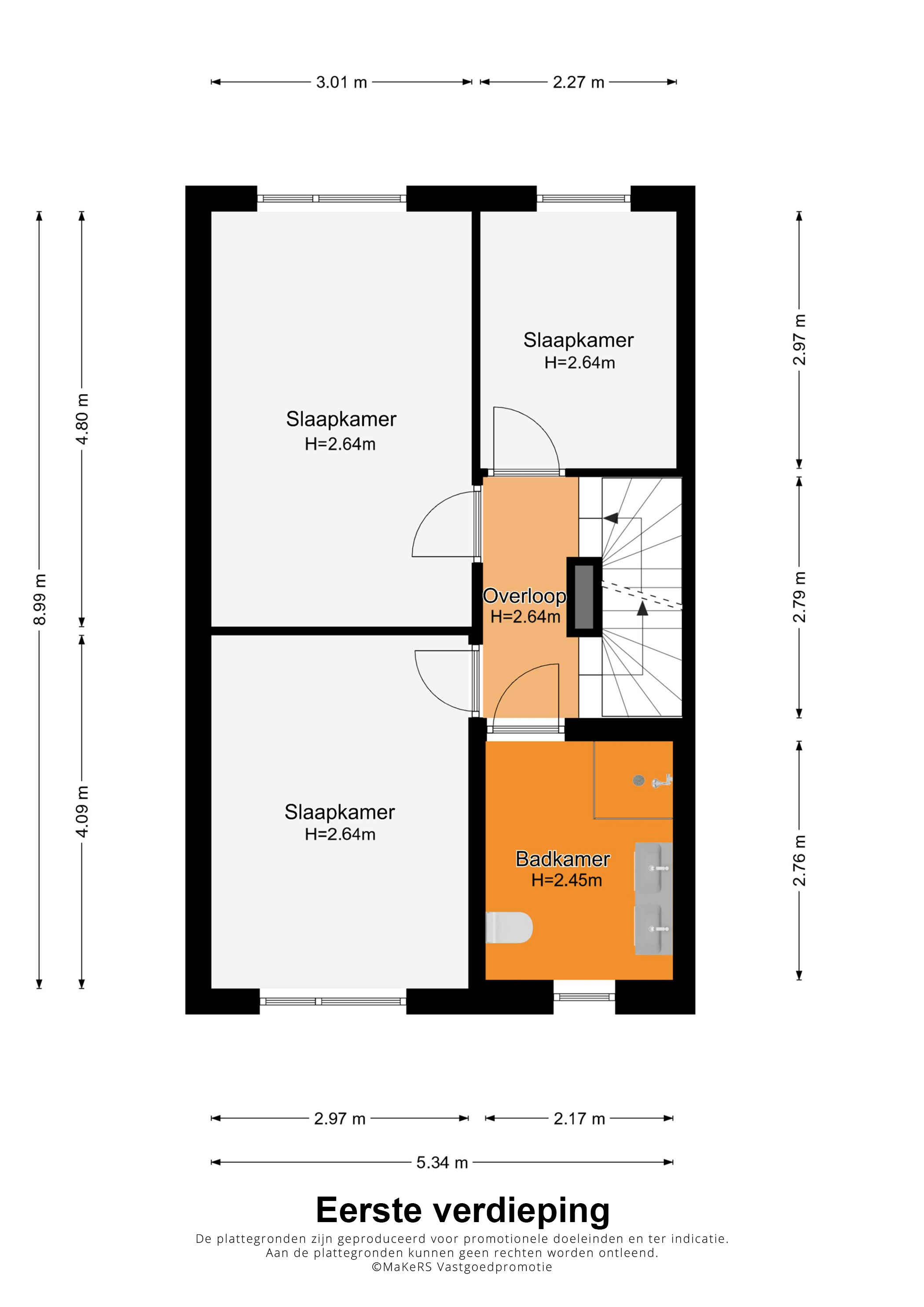
Eerste verdieping:
Niet alleen op de begane grond, maar ook op de eerste verdieping ligt een vinylvloer met vloerverwarming. Aan de achterzijde zijn slaapkamer I (circa 4,80 x 3,01) en slaapkamer II (circa 2,97 x 2,27). Slaapkamer III (circa 4,09 x 2,97) bevindt zich aan de achterzijde.
Naast deze slaapkamer is de badkamer (circa 2,76 x 2,17). Deze is ingedeeld met een inloopdouche, een toilet en een tweepersoons wastafelmeubel. Twee lades bieden bergruimte en de grote spiegel is voorzien van verlichting.
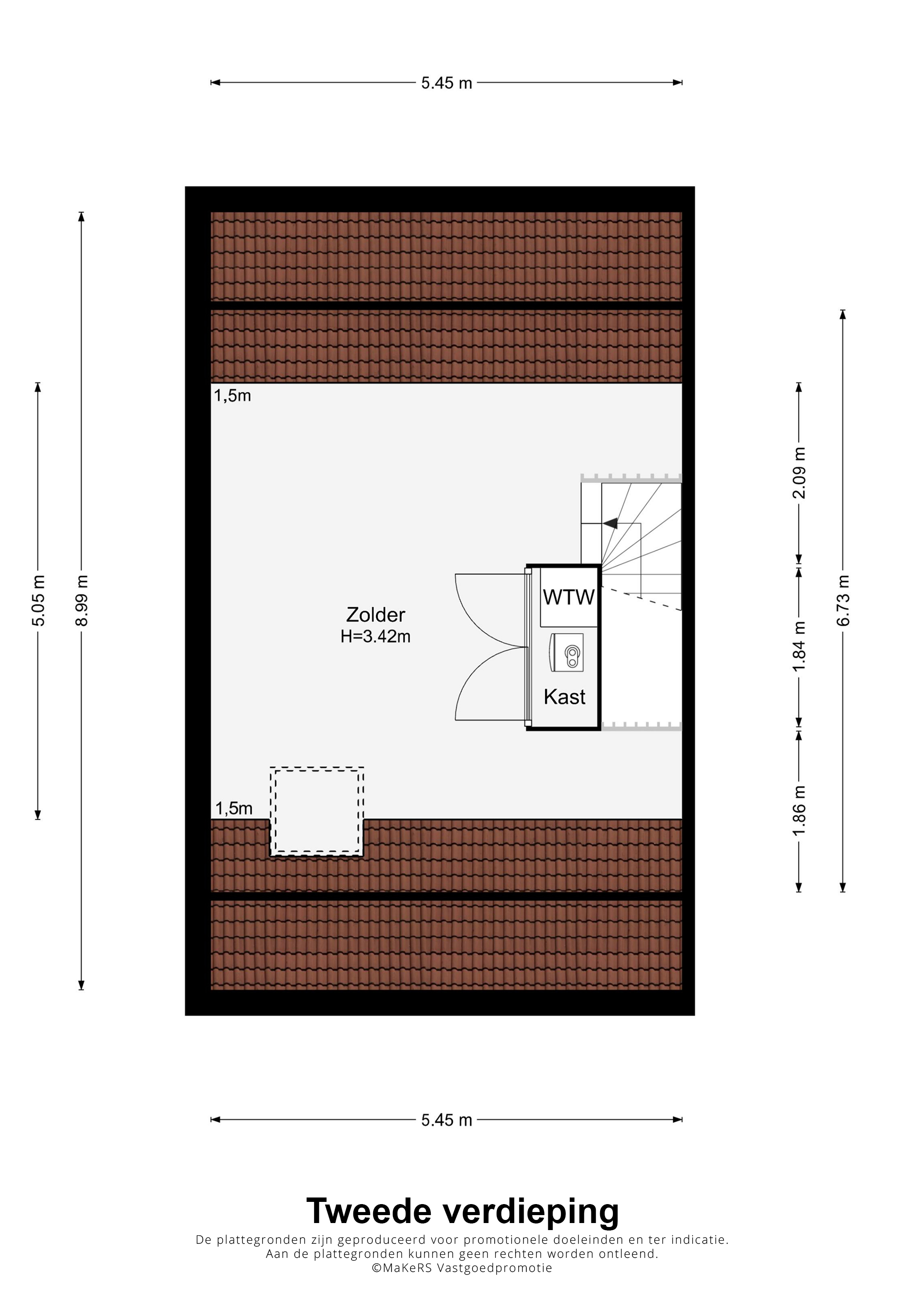
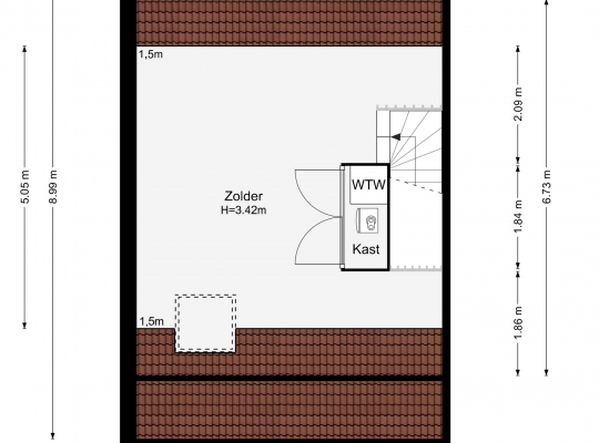
Tweede verdieping:
Een vaste trap geeft toegang tot een grote, multifunctionele ruimte van circa 30 m2, exclusief de dubbele kast en het trapgat. Het dakraam, de vloeroppervlakte en de hoge nok maken het mogelijk om een vierde slaapkamer te realiseren. In de kast bevinden zich de warmtepomp en de unit van het ventilatiesysteem.
Algemeen:
Bouwjaar: 2014
Perceeloppervlakte: 247 m2
Gebruiksoppervlakte wonen: circa 124 m2, inhoud circa 475 m3
Parkeergelegenheid op eigen terrein voor twee auto’s (naast elkaar)
Zeer royale tuin aan drie zijden
Verwarming en warm water via een warmtepomp
Vloerverwarming op de begane grond en eerste verdieping
Kunststof kozijnen met HR++ glas
24 zonnepanelen, geplaatst in 2014
Energielabel: A+++
Aanvaarding: in onderling overleg
Ter bescherming van de belangen van zowel koper als verkoper, wordt uitdrukkelijk gesteld dat een koopovereenkomst met betrekking tot deze onroerende zaak eerst dan tot stand komt nadat koper en verkoper de koopovereenkomst hebben getekend (“schriftelijkheidsvereiste”).
Indien er in de woning huurtoestellen aanwezig zijn zoals CV-ketel, boiler, zonnepanelen, mechanische ventilatie etc. dan dienen deze door de koper te worden overgenomen.
De termijn die wordt opgenomen voor eventuele (overeengekomen) ontbindende voorwaarden (bv. Financiering) is in de regel 4 tot 6 weken na het sluiten van de mondelinge wilsovereenkomst.
De waarborgsom/bankgarantie is 10% van de koopsom. De koper dient deze 3 dagen ná het vervallen van de ontbindende voorwaarden bij de desbetreffende notaris te deponeren.
Koper is te allen tijde gerechtigd voor eigen rekening een bouwkundige keuring te (laten) verrichten dan wel andere adviseurs te raadplegen teneinde een goed inzicht te verkrijgen over de staat van onderhoud.
Deze informatie is door ons, Tijs & Cyril Makelaardij met de nodige zorgvuldigheid samengesteld. Onzerzijds wordt echter geen enkele aansprakelijkheid aanvaard voor enige onvolledigheid, onjuist of anderszins, dan wel de gevolgen daarvan. Alle opgegeven maten en oppervlakten zijn indicatief. Van toepassing zijn de NVM voorwaarden.